Terreno para Venda em Ramada e Caneças
450.000 €
Tipo
Terreno
Negócio
Venda
Área Útil
582 m²
Condição
Novo
Certificado Energético
Isento
Área do Terreno
335 m²
Terreno urbano projeto aprovado prédio residencial, Ramada
O preço indicado é referente a cada lote, podendo ser vendidos juntos ou separados.
Venda de dois Lotes de terreno urbano com projeto aprovado para prédio residencial, com licença de construção e caução pagas, localizado no Bairro dos Pedrenais, Ramada em Odivelas.
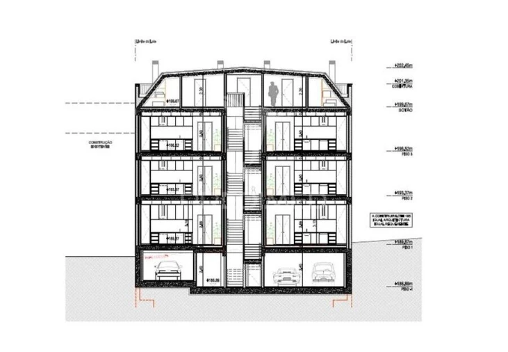
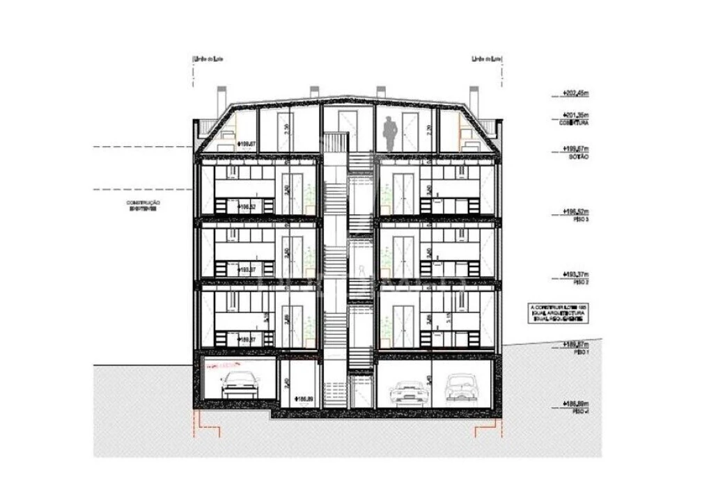
Cada Lote possui uma área 335m² e o projeto contempla a construção de um edifício com uma área de implantação de 335m². A área bruta construção é de 582.06m², sendo esta distribuída por 5 pisos: 3 pisos habitacionais, Cave e sótão.
Cada lote permite a construção de um edifício de 6 apartamentos de tipologia T2 com áreas na ordem de 86m², 6 estacionamentos no piso cave e 5 arrecadações no sótão.
Inserido num bairro tranquilo de Odivelas, com rápido acesso às principais vias rodoviárias (IC22, CRIL, CREL, Calçada de Carriche, A8, túnel do Grilo, etc).
Proximidade a todo o comércio e serviços, Hospital, ao centro de Odivelas, às Colinas do Cruzeiro, Centro Comercial Strada e Ramada, onde está prevista a saída do metro de Odivelas.
Possuímos para venda mais 1 lote (Lote 187) na mesma urbanização. Se vendidos os 3 em conjunto, o total de área bruta de construção é de 2202m².
Lote 187
Área de implantação: 500m².
Área bruta construção: 1038m²
Contacte-me para mais informações ou agendar visita.
O Lote situa-se num gaveto e possui uma área 500m² sendo a área de implantação é de 500m². A área bruta construção é de 1038m², distribuída por 4 pisos acima do solo e 1 piso em cave.
O projeto contempla a construção de um edifício com 9 apartamentos de tipologias T2 e T3, estacionamentos e arrecadações.
Possui 6 apartamentos de tipologia T2 e 3 apartamentos T3, com áreas na ordem de 98m² e 128m², respetivamente. O projeto inclui ainda 15 lugares de estacionamento no piso Cave e arrecadações no Sotão.
Inserido num bairro tranquilo de Odivelas, com rápido acesso às principais vias rodoviárias (IC22, CRIL, CREL, Calçada de Carriche, A8, túnel do Grilo, etc)
Proximidade a todo o comércio e serviços, Hospital, ao centro de Odivelas, às Colinas do Cruzeiro, Centro Comercial Strada e Ramada, onde está prevista a saída do metro de Odivelas.
Possuímos para venda mais 2 lotes na mesma urbanização. Se vendidos os 3 em conjunto, o total de área bruta de construção é de 1938m².
Contacte-me para mais informações ou agendar visita.
Venda de dois Lotes de terreno urbano com projeto aprovado para prédio residencial, com licença de construção e caução pagas, localizado no Bairro dos Pedrenais, Ramada em Odivelas.
Cada Lote possui uma área 335m² e o projeto contempla a construção de um edifício com uma área de implantação de 335m². A área bruta construção é de 582.06m², sendo esta distribuída por 5 pisos: 3 pisos habitacionais, Cave e sótão.
Cada lote permite a construção de um edifício de 6 apartamentos de tipologia T2 com áreas na ordem de 86m², 6 estacionamentos no piso cave e 5 arrecadações no sótão.
Inserido num bairro tranquilo de Odivelas, com rápido acesso às principais vias rodoviárias (IC22, CRIL, CREL, Calçada de Carriche, A8, túnel do Grilo, etc).
Proximidade a todo o comércio e serviços, Hospital, ao centro de Odivelas, às Colinas do Cruzeiro, Centro Comercial Strada e Ramada, onde está prevista a saída do metro de Odivelas.
Possuímos para venda mais 1 lote (Lote 187) na mesma urbanização. Se vendidos os 3 em conjunto, o total de área bruta de construção é de 2202m².
Lote 187
Área de implantação: 500m².
Área bruta construção: 1038m²
Contacte-me para mais informações ou agendar visita.
O Lote situa-se num gaveto e possui uma área 500m² sendo a área de implantação é de 500m². A área bruta construção é de 1038m², distribuída por 4 pisos acima do solo e 1 piso em cave.
O projeto contempla a construção de um edifício com 9 apartamentos de tipologias T2 e T3, estacionamentos e arrecadações.
Possui 6 apartamentos de tipologia T2 e 3 apartamentos T3, com áreas na ordem de 98m² e 128m², respetivamente. O projeto inclui ainda 15 lugares de estacionamento no piso Cave e arrecadações no Sotão.
Inserido num bairro tranquilo de Odivelas, com rápido acesso às principais vias rodoviárias (IC22, CRIL, CREL, Calçada de Carriche, A8, túnel do Grilo, etc)
Proximidade a todo o comércio e serviços, Hospital, ao centro de Odivelas, às Colinas do Cruzeiro, Centro Comercial Strada e Ramada, onde está prevista a saída do metro de Odivelas.
Possuímos para venda mais 2 lotes na mesma urbanização. Se vendidos os 3 em conjunto, o total de área bruta de construção é de 1938m².
Contacte-me para mais informações ou agendar visita.
Localização
Ramada e Caneças, Odivelas, Lisboa
Informação do anúncio
ID do anúncio
1753631
Referência Externa
PD-056213
Atualizado em
26/04/2026 07:19:36
Terreno para Venda em Ramada e Caneças