Lista
Comprar
Arrendar
Área de terreno : 380 m²
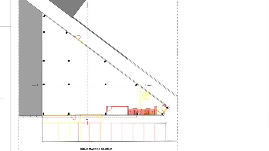
Lote de Terreno para MORADIA UNIFAMILIAR – Leça da Palmeira Na zona balnear, com projeto aprovado e com licenças a pagamento. Este Lote de Terreno com uma área de 380m2, está legalizado para a construção de uma Moradia de tipologia 3+1, com três frentes (Nascente/Sul e Poente) e 2 pisos (R/C e Andar), todavia caso pretendam é possível acrescentar mais um piso, recuado, tornando esta moradia em T4+1. O projeto está aprovado da seguinte forma: Área Bruta Privativa – 271m2 R/C: Hall de Entrada – 25,60m2; Sala de Jantar + Sala de Estar – 45,20m2; Escritório / Quarto – 12,90m2; Cozinha – 20,80m2; Lavandaria – 4,50m2; Casa de Banho Completa – 3,45m2; 1º Piso: 3 Suites – 16,50 + 17,15 + 24,50m2; +1 “Escritório” – 4,70m2; Casas de Banho Privativas – 3,90 + 5,30 + 7,95m2; Hall – 12,00m2. Área Dependente – 41,00m2 Garagem – 34,90m2; Arrumos – 6,10m2 Área Descoberta – 82,75m2 Terraços – 71,30m2; Varandas -11,45m2; Logradouro 200,00m2 Enquadramento paisagístico e urbanístico Zona constituída essencialmente por moradias. Exposição solar desafogada. Transportes públicos e Equipamentos na proximidade - Supermercados, lojas de comercio e restauração a 200mts. - Praia a 250mts. - Junta de freguesia e principais serviços (bancos, farmácia, centro de saúde, etc.) a 1Km. - Acesso às principais vias rodoviárias a 1Km. Para mais informações comerciais por favor contacte-nos.
AMI: 14553
Ref. Externa: T/01658
Id: 1650023
Inicie sessão para guardar este imóvel e aceder à sua lista de favoritos em qualquer dispositivo.
Área de terreno : 200 m²
Lote de terreno urbano, em prestigiada zona de Matosinhos, composto por 200 m2, com uma área bruta de construção de 200 m2. Matosinhos dispõe de: praias com elevada qualidade; bela arquitetura; ótima gastronomia; serviços diversos ; comércio diversificados; ótima estrutura de transportes; e acesso às principais estradas. O terreno encontra-se: A 900m da Estação de Metro de Parque real; A 2.4 km do Norteshopping; A 2.7 da Praia de Matosinhos; A 400m do centro de Desportos e Congressos de Matosinhos. 2 km do Hospital CUF; 1.8 km Pedro Hispano; 2.7 km do Parque da Cidade do Porto.
AMI: 19294
Ref. Externa: SÒL_546
Id: 1649452
Inicie sessão para guardar este imóvel e aceder à sua lista de favoritos em qualquer dispositivo.
Área de terreno : 2504 m²
Terreno rústico com viabiliade construtiva, confrontante com a propriedade da PETROGAL, para venda. Com as seguintes características: - Terreno plano com 2250m2 de área - Área possível de implantação estimada 1300m2 com uma altura máxima de 4 metros. - Completamente vedado - Infraestruturas de sanemanto executadas na rua. - Frente de rua com 57m de comprimento. - Profundidade média de 49m (ponto mais comprido de 61m e ponto mais curto de 39m, pois o terreno afunila ) - Sem construções em redor - Localizado a 200m de distancia com o estádio de Perafita e da Piscina Municipal de Perafita - Possibilidade construtiva para atividades económicas: espaço de escritórios e serviços (exemplo: moteis, hostels, comércio de retalho, espaço de escritórios,...) Leitura do PDM para a zona do terreno. Está inserido numa zona de espaços de atividades económicas, o que não é permitida habitação, salvo a que é de apoio direto às atividades económicas. Só poderão ser executados edíficios que envolvam apenas "serviços admnistrativos e não comportem consolidação/desconsolidação de carga e armazenamento de produtos. " Edificabilidade:O índice máximo de impermeabilização do solo é de 0,7 e de utilização acima do solo de 1,0 Alinhamento:O alinhamento das fachadas voltadas ao arruamento será o dominante. Afastamento laterais:A distância do edificado na propriedade face aos terrenos confinantes é de 3m (excluindo palas ou alpendres)Altura das empenas:A altura do edificado não deve ser superior a 4 metros em relação à cota dos terrenos confinantes. Espaços exteriores e coeficientes de permeabilização:O espaços exteriores e acessos às edificações não deverão ter uma superfície permeável inferior a 20% da área da parcela. Deverá ser contemplado estacionamento de acordo com a utilização/uso do edificado e deverão ser contemplados depósitos de resíduos sólidos urbanos (RSU) de acordo com o artigo 84º do RUEMM. Para obter mais informações ligue-nos. Estamos disponíveis para a concretização do melhor negócio entre as partes. ;ID RE/MAX: 120931607-9
AMI: 7772
Ref. Externa: 120931607-9
Id: 1628872
Inicie sessão para guardar este imóvel e aceder à sua lista de favoritos em qualquer dispositivo.
Área de terreno : 56 m²
Apresentamos este encantador andar moradia T2, totalmente remodelado, situado numa das zonas mais procuradas de Angeiras, a poucos passos do mar. Uma oportunidade ideal para quem procura conforto, modernidade e qualidade de vida junto à praia. O imóvel dispõe de dois quartos luminosos, uma casa de banho moderna e uma cozinha em open space, integrada com a zona de estar, criando um ambiente funcional, acolhedor e perfeito para o dia a dia ou para receber amigos e família. A remodelação foi feita com atenção ao detalhe, privilegiando materiais atuais e um design contemporâneo. Conta ainda com garagem fechada para dois carros, uma mais-valia rara na zona, e um agradável terraço, ideal para momentos de lazer ao ar livre, refeições em família ou simplesmente para relaxar ao final do dia. Localização de excelência: Situado na Avenida da Praia de Angeiras, este imóvel beneficia de uma envolvente única, com acesso rápido à praia, marginal, restaurantes típicos, comércio local, serviços e transportes. A zona é tranquila, mas ao mesmo tempo dinâmica, perfeita tanto para habitação própria como para investimento ou casa de férias. Se procura um imóvel pronto a habitar, junto ao mar e com excelentes áreas exteriores, esta é a oportunidade certa. Agende já a sua visita e venha sentir o estilo de vida que Angeiras tem para oferecer! ComprarCasa Porto Paranhos Onde as Histórias acabam bem. Missão A nossa missão é prestar um serviço de elevada qualidade, segurança e transparência na área do imobiliário, tendo como principal ativo o nosso cliente. Pretende-se estar junto das pessoas, ajudar a concretizar os seus sonhos, dispondo do nosso tempo e ferramentas. Trabalhamos em equipa para concretizar os objetivos de cada cliente, partilhamos informação e estamos em constante inovação. Colaboramos interna e externamente com o intuito de alcançar os melhores resultados. Valores A qualidade dos nossos serviços está diretamente ligada à transparência e compromisso que colocamos em cada pessoa. Estamos disponíveis para o Seu êxito. Dedicamos o nosso tempo criando laços e relações de confiança. Este é o nosso ADN. Quer comprar, vender, arrendar ou investir em um imóvel no Porto, Portugal? Contacte-nos! Trabalhamos com o mercado nacional e internacional. APEMIP: 6412 / AMI: 21325 Horário de Atendimento: De Segunda a Sexta 9h30 às 19h / Sábado 10h às 13h #ComprarCasa #Porto #Paranhos #Portugal
AMI: 21325
Ref. Externa: 395/M/00323
Id: 1589469
Inicie sessão para guardar este imóvel e aceder à sua lista de favoritos em qualquer dispositivo.
Área de terreno : 200 m²
Identificação do imóvel: ZMPT582579Investimento Pronto a Construir: Projeto e Especialidades Aprovados + Licença de Construção.Projeto aprovado: edifício com 3 frações autónomas e 4 pisos:- T2 com 179 m² de Área Total, incluindo 59 m² de Terraço;- T0 com 73 m² de Área Total;- T1 Duplex com 111 m² de Área Total, incluindo 14 m² de Exterior.- Cave: Garagens e Arrumos.Se procura um ativo verdadeiramente "Pronto a Iniciar Obra" em Matosinhos, com risco e tempo de desenvolvimento já controlados, este é um investimento desenhado para quem quer construir, vender ou explorar com agilidade.GARANTIAS JÁ ASSEGURADAS:- Projeto de Arquitetura aprovado- Projetos de especialidades aprovados- Licença para construção- Tipologias com procura comprovada: T0, T1 Duplex e T2 com terraço- Modelo flexível: venda por fração ao utilizador final, venda em bloco a investidor, ou exploração para rendimentoDETALHES DO TERRENO E ENQUADRAMENTO DO ATIVO:- Terreno urbano para construção de 3 frações autónomas;- Área total do terreno: 200 m²;- Área de implantação: 88 m²;- Área bruta de construção: 354 m²;- Propriedade plena;- Livre de encargos;- Documentação jurídica e fiscal regularizada.PROJETO APROVADO DE CONSTRUÇÃO:Empreendimento com 3 frações autónomas e 4 pisos:- Cave: garagens e arrumos;- Rés-do-chão: T2 com terraço;- 1.º piso: T0 + T1 Duplex (nível inferior);- 2.º piso: T1 Duplex (nível superior).DISCRITIVO POR FRAÇÃO:Piso 1 e 2 | T1 Duplex com 111 m² de Área Total, incluindo 14 m² de Exterior:- Área bruta privativa: 68,10 m²- Área bruta dependente: 43,20 m²- Varanda 5,90 m²- Terraço 7,70 m²- Garagem 24,50 m²- Arrumo 5,10 m²Piso 1 e 2 | T1 Duplex com 111 m² de Área Total, incluindo 14 m² de Exterior- Área bruta privativa: 44,60 m²- Área bruta dependente: 28,40 m²- Varanda 5,90 m²- Garagem 16,40 m²- Arrumo 6,10 m²Piso r/c | T2 com 179 m² de Área Total, incluindo 59 m² de Terraço:- Área bruta privativa: 76,80 m²- Área bruta dependente: 96,40 m²- Terraço 58,60 m²- Varanda 5,90 m²- Logradouro 4,70 m²- Garagem 26,50 m²- Arrumo 6,60 m²OPÇÃO 1: 280.000 € (terreno + projeto + especialidades + licença).OPÇÂO 2: "Chave na Mão": 850.000 € (Opção 1 + construção).PONTOS DE INTERESSE:Farmácia Central de Guifões – 300 mParagem STCP “Guifões – Centro” – 350 mPadaria Pão Quente Guifões – 400 mTalho Novo Guifões – 450 mParque de Guifões – 450 mSupermercado Pingo Doce Guifões – 500 mEscola Básica de Guifões – 500 mSupermercado Meu Super – 550 mIndaqua – 550 mAutoWash Matosinhos – 550 mSaída A28 – 600 mParque da Cêpa – 650 mEscola Básica da Cêpa – 700 mEscola Básica de Matosinhos – 814 mParque Real – 950 mSaída A4 – 1 kmMini Preço – 1 kmCozinha do Mariz – 1 kmAcademia de Ténis Matosinhos – 1 kmEscola Básica 1.º Ciclo com Jardim de Infância Sendim – 1 kmPalácio do Pão Prestige – 1,1 kmPiscina Municipal Matosinhos – 1,1 kmServiço de Finanças – 1 kmConservatória do Registo Civil – 1 kmPSP de Matosinhos – 1 kmBiblioteca Municipal de Matosinhos – 1.1 kmCâmara Municipal de Matosinhos – 1,2 kmJardim Basílio Teles – 1,3 kmCentro de Saúde de Guifões – 1,2 kmPalácio da Justiça Matosinhos – 1,4 kmEscola Secundária Augusto Gomes – 1.5 kmPorto de Leixões – 1,5 kmEstação de Metro "Vasco da Gama" – 1,6 kmCentro de Saúde da Senhora da Hora – 1,6 kmPiscina Municipal Guifões – 1,7 kmEstação de Metro “Estádio do Mar” – 1,9 kmCentro de Emprego Matosinhos – 2,1 kmLidl Matosinhos – 2,5 kmMercado Municipal de Matosinhos – 3,0 kmHospital Pedro Hispano – 3,3 kmNorteShopping – 4,4 kmVCI – 4,5 kmMAR Shopping / IKEA – 5,1 kmAeroporto Francisco Sá Carneiro – 7,5 km3 razões para comprar com a Zome+ acompanhamentoCom uma preparação e experiência única no mercado imobiliário, os consultores Zome põem toda a sua dedicação em dar-lhe o melhor acompanhamento, orientando-o com a máxima confiança, na direção certa das suas necessidades e ambições.Daqui para a frente, vamos criar uma relação próxima e escutar com atenção as suas expectativas, porque a nossa prioridade é a sua felicidade! Porque é importante que sinta que está acompanhado, e que estamos consigo sempre.+ simplesOs consultores Zome têm uma formação única no mercado, ancorada na partilha de experiência prática entre profissionais e fortalecida pelo conhecimento de neurociência aplicada que lhes permite simplificar e tornar mais eficaz a sua experiência imobiliária.Deixe para trás os pesadelos burocráticos porque na Zome encontra o apoio total de uma equipa experiente e multidisciplinar que lhe dá suporte prático em todos os aspetos fundamentais, para que a sua experiência imobiliária supere as expectativas.+ felizO nosso maior valor é entregar-lhe felicidade!Liberte-se de preocupações e ganhe o tempo de qualidade que necessita para se dedicar ao que lhe faz mais feliz.Agimos diariamente para trazer mais valor à sua vida com o aconselhamento fiável de que precisa para, juntos, conseguirmos atingir os melhores resultados.Com a Zome nunca vai estar perdido ou desacompanhado e encontrará algo que não tem preço: a sua máxima tranquilidade!É assim que se vai sentir ao longo de toda a experiência: Tranquilo, seguro, confortável e... FELIZ!Notas:1. Caso seja um consultor imobiliário, este imóvel está disponível para partilha de negócio. Não hesite em apresentar aos seus clientes compradores e fale connosco para agendar a sua visita.2. Para maior facilidade na identificação deste imóvel, por favor, refira o respetivo ID ZMPT ou o respetivo agente que lhe tenha enviado a sugestão.
AMI: 17432
Ref. Externa: ZMPT582579
Id: 1587679
Inicie sessão para guardar este imóvel e aceder à sua lista de favoritos em qualquer dispositivo.
Área de terreno : 370 m²
*** URBANIZAÇÃO EM LEÇA DA PALMEIRA *** *** Lotes de terreno com áreas entre os 370 e os 490 m2; *** Valores desde 165.000.00€ *** Moradias com 3 frentes em Arquitetura Moderna. *** Todas as características do imóvel indicado podem e devem ser confirmadas por visita ao local;
AMI: 4129
Ref. Externa: 027/21
Id: 1585886
Inicie sessão para guardar este imóvel e aceder à sua lista de favoritos em qualquer dispositivo.
Área de terreno : 522 m²
* AS FOTOGRAFIAS EM 3D, SÃO MERAMENTE ILUSTRATIVAS * Oportunidade exclusiva de Terreno plano, inserido em lote com 522m². O espaço ideal para transformar o seu projeto de sonho em realidade!! Para construção de moradia de 3 frentes, de 3 pisos, com garagem, anexo e espaço ajardinado! O excelente espaço exterior, permite ainda a construção de Piscina. Destacamos ótima exposição solar e o amplo terreno. Localizado em Matosinhos, na zona de Guifões, fica inserido numa urbanização de nova construção de moradias, servido de comércio, serviços e transportes. O terreno prevê construção de uma moradia com 3 frentes, com rés do chão e 1º andar, com possibilidade de fazer ainda cave: - Área de Implantação: 148.50m²; - Área Bruta de Construção: 373.50m²; - Área Exterior: 373.50m² Situado numa rua tranquila, que garante privacidade sem abdicar da proximidade a importantes pontos de interesse. Nas proximidades, destacamos: - 2m Transportes públicos - 250m Hipermercados - 900m Escolas - 1km A4 - 1.4km Estação de metro Vasco da Gama - 3.9km Praia de Matosinhos - 7.5km Aeroporto Sá Carneiro Esta é a sua oportunidade para construir uma casa de sonho, numa localização privilegiada!! Para mais informações, a nossa equipa está à sua disposição!
AMI: 14355
Ref. Externa: MM123/26MAT/CM
Id: 1577719
Inicie sessão para guardar este imóvel e aceder à sua lista de favoritos em qualquer dispositivo.
Área de terreno : 1212 m²
Excelente Terreno destinado á construção de moradias, encontrando-se já loteado com todas as infraestruturas feitas, com projeto de arquitetura e especialidades aprovado, bem como, mapa de quantidades. Pronto a iniciar construção! Composto por 5 lotes, todos projetados para moradias tipologia T4, com áreas totais compreendidas entre os 345m2 e os 391m2 e todas com um jardim exterior voltado a sul, permitindo uma ótima exposição solar. Todas as moradias compostas por cave, rés do chão e 1º andar. Com uma localização privilegiada na Senhora da Hora junto á A4 com ligação ás principais vias de comunicação tais como: A41, A3, A1, Aeroporto, A28... e, encontrando-se ainda a 10 minutos das praias de Matosinhos Sul e Foz do Porto. Tem ainda nas proximidades todo o tipo de comercio e serviços tais como: - Estação do Metro - 500m - Norte Shopping - 2Km -Unidade de Ensino Privado, Colégio Efanor - 2Km - Hospital Privado CUF - 4Km - Hospital Publico Pedro Hispano - 2,5Km - Rotunda AEP - 2.5KM - Aeroporto - 6,5KM Excellent land intended for the construction of houses, already subdivided with all infrastructures in place, with an approved architectural and specialty project, as well as a map of quantities. Ready to start construction! Consisting of 5 lots, all designed for T4 housing, with total areas between 345m2 and 391m2 and all with an outdoor garden facing south, allowing excellent sun exposure. All houses consist of basement, ground floor and 1st floor. With a privileged location in Senhora da Hora next to the A4 with connection to the main roads such as: A41, A3, A1, Aeroporto, A28... and, still 10 minutes from the beaches of Matosinhos Sul and Foz do Harbor. There are also all types of commerce and services nearby, such as: - Metro Station - 500m - Norte Shopping - 2Km -Private Education Unit, Colégio Efanor - 2Km - CUF Private Hospital - 4Km - Pedro Hispano Public Hospital - 2.5km - AEP Roundabout - 2.5KM - Airport - 6.5KM Excellent terrain destiné à la construction de maisons, déjà subdivisé avec toutes les infrastructures en place, avec un projet architectural et spécialisé approuvé, ainsi qu'une carte des quantités. Prêt à commencer la construction ! Composé de 5 lots, tous conçus pour des logements T4, avec des superficies totales comprises entre 345m2 et 391m2 et tous avec un jardin extérieur exposé sud, permettant une excellente exposition au soleil. Toutes les maisons se composent d'un sous-sol, d'un rez-de-chaussée et d'un 1er étage. Avec un emplacement privilégié à Senhora da Hora à côté de l'A4 avec connexion aux routes principales telles que : A41, A3, A1, Aéroport, A28... et toujours à 10 minutes des plages de Matosinhos Sul et Foz do Harbour. Il y a également tous types de commerces et de services à proximité, tels que : - Station de métro - 500m - Nord Shopping - 2Km -Unité d'enseignement privé, Colégio Efanor - 2Km - Hôpital Privé CUF - 4Km - Hôpital public Pedro Hispano - 2,5 km - Rond-point AEP - 2.5KM - Aéroport - 6,5KM
AMI: 14187
Ref. Externa: MI_SÒL_424
Id: 1573439
Inicie sessão para guardar este imóvel e aceder à sua lista de favoritos em qualquer dispositivo.
Área de terreno : 2259 m²
Excelente TERRENO COM FRENTE DE 49,5m PARA 2 RUAS Excelente localização, muito central. É uma zona que conjuga uma área fortemente habitacional, que é servida por uma vasta diversidade de comércio e serviços de proximidade, com transportes e supermercados na envolvente. Local rodeado de zonas verdes, junto ao rio e ciclovia. A escassos minutos do H. S. João e Pólo Universitário da cidade do Porto. A 2 minutos a pé do Supermercado Continente. Zona com transportes constantes com frequência de +/- 10 minutos, com destino ao Porto, Hospital de S. João e Centro da Maia. Viabilidade de construção para cave + r/c + 4 pisos. Área construtiva de 3934 m2, sendo 1124 m2 na cave , e acima do solo de 2810 m2 ( sem contabilizar as áreas das varandas e terraços ). Previsão de 28 fogos e lojas, dependendo do projeto.
AMI: 3227
Ref. Externa: 5913
Id: 1489335
Inicie sessão para guardar este imóvel e aceder à sua lista de favoritos em qualquer dispositivo.
Área de terreno : 583 m²
TERRENO com frente para duas ruas Área construtiva 1085 m2, sendo 775 m2 habitacional sem varandas e sem cave. Resumindo : Cave + r/c + 4 pisos. Leça do balio / Matosinhos a 3 minutos do Centro Empresarial da LIONESA.
AMI: 3227
Ref. Externa: 5912
Id: 1487144
Inicie sessão para guardar este imóvel e aceder à sua lista de favoritos em qualquer dispositivo.
Área de terreno : 200 m²
Excelente oportunidade para construir a sua casa de sonho! Situado numa zona tranquila de Matosinhos, este terreno com 205 m² oferece o equilíbrio perfeito entre conforto, privacidade e proximidade a todos os serviços essenciais. ✅ Projeto de habitação aprovado – pronto para começar a construir! ✅ Localização calma e bem servida de acessos ✅ Ideal para residência própria ou investimento Não perca esta oportunidade única de viver numa das zonas mais procuradas da cidade! Contacte-nos e agende já a sua visita!
AMI: 19461
Ref. Externa: RF294
Id: 1451408
Inicie sessão para guardar este imóvel e aceder à sua lista de favoritos em qualquer dispositivo.
Área de terreno : 4782 m²
Terreno destinado à construção de um Lar de Idosos, ou serviços. Localizado em segunda linha de mar, a apenas 15 km do centro do Porto (aproximadamente 22 minutos de distância). Área total do terreno: 4.782 m²
AMI: 710
Ref. Externa: TER_1371
Id: 1443497
Inicie sessão para guardar este imóvel e aceder à sua lista de favoritos em qualquer dispositivo.
Área de terreno : 283 m²
DL25-129. . Descubra esta incrível oportunidade de investimento! Apresentamos um excelente terreno para construção localizado na Zona Verde de S. Mamede, um local premium conhecido como Pedra Verde.. . Esta é uma área exclusiva, caracterizada pela tranquilidade, rodeada por parques e amplos espaços verdes, ideal para quem procura uma atmosfera pacífica para construir a sua casa dos sonhos.. . Este terreno está situado numa zona residencial de moradias, oferecendo um ambiente calmo e sereno, com todas as comodidades ao alcance. . . A sua localização estratégica permite o fácil acesso a todas as conveniências urbanas, estando apenas a poucos minutos de distância de lojas, serviços, e transportes públicos.. . Imagine construir a sua moradia ideal neste terreno, com a liberdade de personalizar o projeto de acordo com os seus gostos e necessidades. Com três frentes disponíveis, terá a oportunidade de desfrutar de amplas áreas interiores e exteriores, incluindo um jardim à frente e atrás da casa ou até mesmo espaço para uma piscina privativa. Além disso, o terreno permite a construção de uma garagem espaçosa para 2 ou 3 carros, proporcionando o máximo de conforto e conveniência.. . Com uma área total de 283 m2, este terreno apresenta um enorme potencial de investimento. Além disso, as vantagens da zona são inúmeras, desde a sua tranquilidade e segurança até à proximidade de áreas verdes e serviços essenciais. Esta é uma oportunidade única para adquirir um terreno num local premium, ideal para construir a casa dos seus sonhos ou para investimento a longo prazo.. . Não perca esta oportunidade de fazer parte de uma das áreas mais desejadas de S. Mamede. Entre em contato conosco hoje mesmo para mais informações e agende uma visita ao terreno. Estamos aqui para ajudá-lo a transformar os seus sonhos em realidade! . . Com uma preparação e experiência, únicas, no mercado imobiliário, os consultores Douro Lovers põem toda a sua dedicação, em dar-lhe o melhor acompanhamento, orientando-o com a maior credibilidade, na direção certa das suas necessidades e ambições.. . Daqui para a frente, iremos criar uma relação próxima e escutar com a melhor atenção as suas expectativas: porque a nossa prioridade, é a sua felicidade!. . E porque é importante que se sinta acompanhado e que estamos consigo, sempre.. . Os consultores Douro Lovers têm uma formação única no mercado, ancorada na partilha de experiência prática entre profissionais e fortalecida pelo conhecimento de Coaching, que lhes permite simplificar e tornar mais eficaz a sua experiência imobiliária.. . O nosso maior valor é entregar resultados!. Com a Douro Lovers nunca se sentirá perdido, ou desacompanhado, e encontrará algo que não tem preço: a sua máxima tranquilidade!. . É assim que se vai sentir ao longo de toda a experiência: Tranquilo, Confortável e... FELIZ!. . Deixe para trás os pesadelos burocráticos porque na Douro Lovers encontra o apoio total de uma equipa experiente e multidisciplinar que lhe dá suporte prático em todos os aspetos fundamentais, para que a sua experiência imobiliária supere as expectativas.. . O nosso maior valor é entregar-lhe felicidade!. . Liberte-se de preocupações e ganhe o tempo de qualidade que necessita para se dedicar ao que lhe faz mais feliz.. . Agimos diariamente para trazer mais valor à sua vida com o aconselhamento fiável de que precisa para juntos conseguirmos atingir os melhores resultados.. . Notas:. 1. Caso seja um consultor imobiliário, este imóvel está disponível para partilha de negócio. Não hesite em apresentar aos seus clientes compradores e fale connosco para agendar a sua visita.. 2. Para maior facilidade na identificação deste imóvel, por favor, refira o respetivo DL25-129 ou o respetivo agente que lhe tenha enviado a sugestão.
AMI: 18696
Ref. Externa: DL25-129/11654
Id: 1425090
Inicie sessão para guardar este imóvel e aceder à sua lista de favoritos em qualquer dispositivo.
Área de terreno : 583 m²
Terreno para construção em altura com excelente localização com excelentes acesso e muita centralidade. Terreno com 13m de frente e com frente para 2 ruas. A Rua de Santana e a Rua Ponte da Pedra tem grande movimento diário e constante. É uma zona que conjuga uma área fortemente habitacional, que é servida por uma vasta diversidade de comércio e serviços de proximidade, com transportes e supermercados na envolvente. Com viabilidade de construção para CAVE + R/C + 4 ANDARES. Área atual do terreno de cerca de 583m². Localizado a 3/5 minutos do Centro Empresarial da Lionesa, que comporta + de 8000 trabalhadores técnicos e qualificados, que ambicionam residir próximo ao seu local de trabalho, o que faz com que a procura de habitação nesta área geográfica seja grande e necessária, possibilitando a quem ali habitar, ganhar qualidade de vida pela curta deslocação ao trabalho e podendo usufruir de tempo de qualidade junto das zonas verdes e caminhos pedonais próximo ao rio Leça e ciclovia. Localizado numa zona com bons acessos, comércio e transportes à porta com farmácia, supermercado, parque de lazer e todo comércio de apoio. A escassos minutos do H. S. João e Pólo Universitário da cidade do Porto. A 2 minutos a pé do Supermercado Continente. Zona com transportes constantes com frequência de +/- 10 minutos, com destino ao Porto, Hospital de S. João e Centro da Maia. Local rodeado de zonas verdes, próximo ao rio Leça com percurso pedonal e ciclovia. O Plano de Pormenor aprovado, prevê habitação coletiva com 9 fogos e lojas com luz natural (ao nível da cave) para serviços ou similares hoteleiras, equipamento ou indústria compatíveis com a função residencial. A área prevista de construção acima do solo são 775m², não estando incluídas as áreas de varandas, terraços e as frações a construir nas caves, que podem ser + 310m², que dará uma área de construção de aproximadamente 1085m².
AMI: 21880
Ref. Externa: 127/25
Id: 1413971
Inicie sessão para guardar este imóvel e aceder à sua lista de favoritos em qualquer dispositivo.
Área de terreno : 253 m²
Terreno para Construção (com pré-projeto para 10/12 habitações) Zona ARU - Ao H. S. João / Metro / Faculdades Terreno com frente para duas ruas a 750 metros do Hospital de S. João / Pólo Universitário - Zona ARU Dada a proximidade deste terreno ao H.S.João, Metro e Faculdades, é um excelente investimento, com grande rentabilidade para quem quiser construir ou investir. O terreno encontra-se em zona ARU - com vantagens ao nível de impostos e IVA na construção. Tem frente para duas ruas, podendo fazer 2 construções, uma com frente para cada rua. Dando para 10/12 frações. Um Prédio na Rua principal (Padre Costa), de cave + r/c + 2 andares; Outro Prédio na Rua José Coutinho, de cave + r/c + 1º andar, com 4 habitações (2x T1 + 2x T2 Duplex), se fizerem aproveitamento do sótão. Atendendo a que os prédios serão construídos afastados das Ruas para as quais fazem frente, poderão ter jardim e portão antes da entrada principal, tendo a vantagem de funcionar como um condomínio privado. Uma segunda hipótese será a possibilidade de restaurar a moradia existente, dada a sua arquitetura singular (Inglesa, dos anos 30/40) e posteriormente, se pretender, construir atrás outra moradia ou um prédio com 4/5 habitações, voltado para a Rua José Coutinho. Excelente localização. IPO a 750m e METRO / Hospital de S. João, bem como Faculdades Zona envolvente com supermercados e comércios Local central da cidade de S. Mamede de Infesta Transportes em frente A 5 minutos a pé do IPO e H.S.João.
AMI: 21880
Ref. Externa: 125/25
Id: 1413969
Inicie sessão para guardar este imóvel e aceder à sua lista de favoritos em qualquer dispositivo.
Área de terreno : 283 m²
Terreno para construção de Moradia, na Pedra Verde a 4min. do H. S. João Temos este excelente Terreno p/ Construção (nascente / poente), numa área verdejante simpática, rodeado de moradias de elevada qualidade. Na Zona Verde de S. Mamede de Infesta, Pedra Verde, local de sonho e a apenas 4 minutos do Hospital de S João. Local tranquilo e muito bonito. Terreno plano, sem custos de desaterro e com muros de suporte. Ideal para construir moradia de rés de chão e 1º andar. Ou ainda, Moradia de cave, rés de chão e andar. Visite e verifique, esta excelente localização, rodeada de zonas verdes, ginásio ao ar livre, jardins, moradias bonitas, zona tranquila, num local de requinte e de elevada qualidade em S. Mamede de Infesta e a apenas 1500m da freguesia de Paranhos, Porto. Zona de eleição, para quem gostar de um local PREMIUM, com paz e tranquilidade. S. Mamede de Infesta é uma pequena cidade, mas com a grandiosidade de quem sabe oferecer o que precisa para viver com qualidade, segurança e acesso rápido à tudo que há de melhor na área metropolitana do Porto, sendo equivalente ou superior a algumas das melhores zonas residenciais do país (incluindo Foz do Douro e Boavista). Localizado na terra de Abel Salazar e Eduardo Lourenço, a apenas 5 minutos do H. S. João e Faculdades, 12 minutos do Aeroporto Internacional do Porto e a 15 minutos das praias da Foz e de Leça da Palmeira. Estará ao mesmo tempo perto de tudo e longe do bulício da cidade. Um lugar tranquilo, rodeado de moradias modernas e elevado padrão, onde as famílias vivem com qualidade e serenidade, num ambiente acolhedor e seguro. Faça a moradia com projeto a seu gosto, de 3 frentes, com áreas generosas, com garagem para 2 ou 3 carros, jardim à frente a atrás ou piscina. Local tranquilo, mas rodeado de comércio de apoio, farmácia, jardim infantil, escolas, supermercado, com fácil ligação às AE, a 10 minutos do Aeroporto e 15 minutos das Praias de Matosinhos. Próximo de transportes e da futura linha «Pedra Verde» de Metro. * Mercados e farmácias à 150m * Continente a 600m * Pingo Doce a 800m * Pavilhão de desporto da Académica de S. Mamede de Infesta a 200m * Paragens de autocarro próximo * Metro a 600m. Informações sobre as Áreas: * Área Total do Terreno: 283 m² * Área Bruta de Construção: 278 m² * Área Bruta Dependente: 110 m² * Área de Implantação do Edifício: 110 m²
AMI: 21880
Ref. Externa: 126/25
Id: 1413970
Inicie sessão para guardar este imóvel e aceder à sua lista de favoritos em qualquer dispositivo.
Área de terreno : 714 m²
Terreno com PIP em aprovação para 35 frações (T0 - T1 - T1+1) - A 3 min. do H. S. João / Amial. Com +/- 24m de frente, a 300 metros do cruzamento do Amial (Paranhos - Porto). A 4 minutos do Hospital de S. João / IPO, METRO. Com transportes constantes mesmo à porta, para todos os locais do Porto, Maia, Matosinhos, Baixa do Porto e Pólo Universitário. Estação de Metro a 300 metros (S. Mamede de Infesta). Terreno composto por 4 moradias de rés de chão e cave, antigas. A maior parte do terreno está ao nível da cave, o que traz vantagem na economia no desterro. A construção terá Cave + R/C + 4 Pisos Perto das Universidades, H. S. João, IPO, ISCAP, METRO, etc. Localização excelente, numa zona de grande movimento e fácil ligação direta aos principais centros, a todo o Porto e Grande Porto, assim como rápidos acessos a Auto Estradas, Circunvalação, Via Norte. Próximo de Supermercados, Farmácias, e numa rua com todo o tipo de comércio de proximidade necessário ao dia a dia. Proximidades: Farmácia - 4 minutos, na mesma rua Autocarros - Paragem em frente (com autocarros que fazem a ligação direta entre o centro da cidade da Maia com o centro das cidade do Porto - Aliados e ainda Ligação ao Hospital de S. João) a cada 10 minutos. Muito comércio de proximidade na própria rua, supermercados, restaurantes, etc. Comboio S. Mamede de Infesta - a 300m Hospital - 4 minutos Centro de Saúde - 4 minutos Supermercado - 4 minutos Centro Comercial - 8 minutos
AMI: 21880
Ref. Externa: 124/25
Id: 1413968
Inicie sessão para guardar este imóvel e aceder à sua lista de favoritos em qualquer dispositivo.
Área de terreno : 4781 m²
Terreno para Lar de Idosos. (teve PIP favorável, entretanto caducado) Tem Projeto para 82 Quartos. Na conservatória já consta como Terreno para Construção de Lar de Idosos. Segunda linha de mar Terreno fica a 15 km do Centro do Porto (22 minutos). Área de construção acima do solo: 4.782,00 m² Área de construção abaixo do solo: 2.804,00 m² Área de implantação: 1.812,00 m² Área total: 7.576,00 m² -------------------------------------------------------------------------------------------- Land for retirement home (had favourable PIP, which has since lapsed) Project for 82 rooms. The land registry already lists it as land for building a retirement home. Second sea line The land is 15 km from the centre of Porto (22 minutes). Construction area above ground: 4,782.00 m² Construction area below ground: 2.804,00 m² Deployment area: 1,812.00 m² Total area: 7,576.00 m²
AMI: 11415
Ref. Externa: SÒL_49
Id: 1390348
Inicie sessão para guardar este imóvel e aceder à sua lista de favoritos em qualquer dispositivo.
Área de terreno : 0 m²
Localização Estratégica Terreno urbano de 1742m² situado na Av. da Liberdade 106, Matosinhos. Zona socioeconomicamente dinâmica, com elevada densidade e acesso sem rival ao comércio e transportes. Frente direta à estação do Metro Câmara de Matosinhos, com acesso imediato a transporte público. Estação Câmara de Matosinhos (Metro Linha A) a poucos metros do terreno, com ligação direta ao centro do Porto. Zona consolidada, com forte procura habitacional Acesso facilitado à A28, Estrada da Circunvalação, Hospital Pedro Hispano e NorteShopping Localiza-se mesmo em frente à loja Continente (hipermercado) da Senhora da Hora, e ao lado do Continente Bom Dia Inserido numa zona de comércio consolidado e de elevada densidade habitacional. Valor de Venda por m² e Demanda na Região Dados recentes indicam que: O preço médio por m² em Matosinhos atingia cerca de 4600/m² no Porto, mas em concelhos vizinhos como Matosinhos, os valores estão em forte crescimento, cerca de 40mil a mais por apartamento de 100m² em apenas um ano. O mercado local sinaliza escassez de terrenos para construção e procura crescente por projetos pré-venda, especialmente por parte de construtoras que promovem venda em projeto antes de concluir a obra Características principais (resumo) Área do terreno 1.742m² Localização Frente ao Metro Câmara de Matosinhos Comércio adjacente Continente (hipermercado) e Continente Bom Dia Oferta do proprietário Parceria com empresas que realizem PIP/projeto Se é construtora ou investidor interessado em desenvolver projeto imobiliário de alto valor em Matosinhos, esta é uma oportunidade rara. Apresente a sua proposta ou agende uma visita técnica. O proprietário avalia propostas diretas de aquisição, permuta ou parcerias com empresas que executem o projeto e o PIP.
AMI: 19759
Ref. Externa: Terreno Matosinhos - Av Republica
Id: 1311574
Inicie sessão para guardar este imóvel e aceder à sua lista de favoritos em qualquer dispositivo.
Área de terreno : 247 m²
em angariação Elementos cadastrais: - integrante da zona ARU de Leça da Palmeira - área terreno na CRP 357m2 - área aproximada lote: 26m fundo x 11m frente Quadro áreas do PIP (referencial); - área terreno operação urbanística: 246,87m2 - área bruta construção: 725,67m2 (171,31m2 ACAS, 554,36m2 ACAS) - pisos 5, 4 acima da soleira e 1 abaixo da soleira - 4 fogos Valor Patrimonial Tributário (VPT): 61.427,80€ ___________________________________________________________ A ComCasa® Imobiliária nasce com a Missão de prestar um serviço de Excelência. O nosso objetivo é criar valor patrimonial e rendimento para o nosso cliente, com base numa equipa profissional (que integra elementos ligados à Gestão Imobiliária, assim como com credenciação na CMVM), respeitando assim os padrões de Ética, Discrição e Integridade A nossa experiência é alicerçada nas melhores ferramentas tecnológicas disponibilizadas pelo mercado, consolidadas na qualidade e fiabilidade nos produtos que mediamos. Nós somos a sua melhor estratégia para a transação do seu Imóvel! Na ComCasa, “a nossa Casa é a sua Casa”
AMI: 15121
Ref. Externa: 0988.T
Id: 1301337
Inicie sessão para guardar este imóvel e aceder à sua lista de favoritos em qualquer dispositivo.
Estes agentes são especialistas nesta zona:
Inicie sessão para ocultar este imóvel das suas pesquisas e manter a sua lista de resultados organizada.
Guardar favoritos
Este imóvel foi guardados nos seus favoritos com sucesso.
Para poder guardar pesquisa deverá ter a sua sessão iniciada.
Caso não tenha uma conta, deverá criar uma.
A sua pesquisa foi guardada com sucesso!
© Copyright 2023 | CASACERTA. All rights reserved
Este site utiliza cookies. Ao navegar no site estará a consentir a sua utilização.
Para mais informações sobre os cookies pode consultar a
política de privacidade.