Lista
Comprar
Arrendar
150.000 €
Área de terreno : 4785 m²
Procura o espaço ideal para construir a sua moradia de sonho? Ou o projeto da sua vida? Apresentamos este terreno com 4785m² em Baltar - Paredes, com viabilidade para construção de várias moradias. Inserido numa zona residencial em crescimento, combina tranquilidade e boa localização, a poucos minutos dos principais acessos rodoviários. Uma excelente oportunidade para quem procura investir. Venha visitar! ComprarCasa é uma Rede Imobiliária integrada exclusivamente por associados da APEMIP (Associação dos Profissionais e Empresas de Mediação Imobiliária de Portugal), garantia de profissionalismo e de protecção dos direitos dos consumidores e utilizadores. A ComprarCasa Rede Imobiliária da APEMIP, resulta de um acordo de colaboração, celebrado em Junho de 2004, entre a APEMIP e a UCI (União de Créditos Imobiliários - instituição financeira especialista na concessão de crédito à habitação a particulares, através dos profissionais do sector imobiliário). A ComprarCasa iniciou a sua actividade comercial em Agosto de 2004, com a missão de Ser a Maior e Melhor Rede Imobiliária Nacional, oferecendo múltiplos serviços a mediadores imobiliários, baseados no conceito de marca comum, possibilitando e potenciando negócios nomeadamente para si, que pretende vender, comprar, arrendar ou trespassar um determinado imóvel. Com loja em Lousada, a IMOCERTA, faz parte da Rede ComprarCasa desde de Outubro de 2016. Na Mediação Imobiliária desde 2008, a IMOCERTA já ajudou imensas famílias a concretizar os seus sonhos, tanto na venda como na compra dos seus imóveis, para além de as apoiar na obtenção de crédito habitação, junto de instituições financeiras. Com a entrada em vigor do Decreto- Lei nº 81-C /2017 de 7 de Julho, que aprova o regime jurídico que estabelece os requisitos de acesso e de exercício da actividade de intermediário de crédito e de prestação de serviços de consultoria, e do Aviso do Banco de Portugal nº 6/2017, a ComprarCasa IMOCERTA (LA & EC, Soc. Med. Imobiliária, Lda), para além de ser uma Empresa de Mediação Imobiliária (Licença AMI 8359), passou também a ser um Intermediário de Crédito autorizado pelo Banco de Portugal com o número de registo 2124, ajudando os seus clientes junto das várias entidades bancárias. Na compra ou venda, procure a ComprarCasa IMOCERTA. ComprarCasa. A melhor forma de encontrar a casa ideal.
AMI: 8359
Ref. Externa: 365/T/03234
Id: 1449864
Inicie sessão para guardar este imóvel e aceder à sua lista de favoritos em qualquer dispositivo.
55.000 €
Área de terreno : 9360 m²
Terreno localizado no perímetro do parque industrial Baltar/Paredes. Venha conhecer, fale connosco e faça a sua proposta!
AMI: 8507
Ref. Externa: 181024.00
Id: 1301673
Inicie sessão para guardar este imóvel e aceder à sua lista de favoritos em qualquer dispositivo.
650.000 €
Área de terreno : 7969 m²
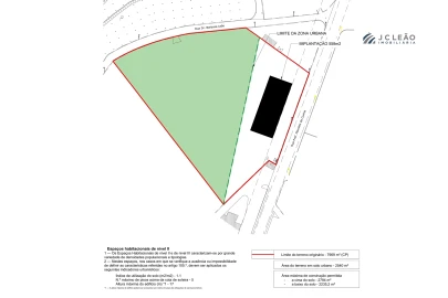
Terreno Rústico com Viabilidade de Construção – Centro de BaltarÁrea total: 7.969 m²Excelente oportunidade de investimento no centro de Baltar, com forte potencial construtivo, inserido numa zona com comércio, serviços e ótimos acessos rodoviários.Este terreno apresenta viabilidade para construção habitacional multifamiliar, permitindo o desenvolvimento de um projeto moderno e atrativo, ideal para responder à crescente procura por habitação na região.Potencial Construtivo Uso dominante: Habitacional Tipologias previstas: T2 Capacidade até 30 fogos, distribuídos por 6 fogos por piso Possibilidade de construção até 5 pisos acima do soloEnquadramento UrbanísticoInserido em Espaço Habitacional – Nível II, com aplicação dos seguintes índices: Índice de utilização do solo: 1,1 m² Número máximo de pisos acima da cota de soleira: 5 Altura máxima do edifício: 17 m Possibilidade de acréscimo de 1 metro em pisos destinados a serviços/comércio Localização e Acessos A apenas 3 minutos da Autoestrada A4 (Baltar) 7 minutos da Estação de Comboios 15 minutos do Hospital de Penafiel 7 minutos do Centro de Paredes 10 minutos do Centro de Gandra 10 minutos da Universidade CESPU 20 minutos do PortoDestaquesLocalização centralBons acessosForte potencial de valorizaçãoIdeal para promotores e investidoresZona com elevada procura habitacionalPara mais informações ou agendamento de visita, contacte-nos.JC LEÃO ImobiliáriaGarra, Determinação e Solução.Consigo desde 2010.Compramos, vendemos e ajudamos a financiar o seu imóvel.Intermediário de Crédito aprovado pelo Banco de Portugal.
AMI: 9075
Ref. Externa: B250016
Id: 1206773
Inicie sessão para guardar este imóvel e aceder à sua lista de favoritos em qualquer dispositivo.
56.500 €
Área de terreno : 1897 m²
Terreno Para Construção de Moradia(s). Terreno localizado na freguesia de Baltar, em zona residencial, próximo de Comércio e Serviços, Cafés Snack-bar e Restaurantes, Indústrias, Estradas N15, N319 e Auto-Estrada A4; Com este terreno terá a oportunidade de concretizar o seu projecto de casa da sua vida, exactamente como sempre imaginou; Este imóvel pode ser o início dessa sua nova etapa; Estamos a seu dispôr para mais esclarecimentos. ComprarCasa é uma Rede Imobiliária integrada exclusivamente por associados da APEMIP (Associação dos Profissionais e Empresas de Mediação Imobiliária de Portugal), garantia de profissionalismo e de protecção dos direitos dos consumidores e utilizadores. A ComprarCasa Rede Imobiliária da APEMIP, resulta de um acordo de colaboração, celebrado em Junho de 2004, entre a APEMIP e a UCI (União de Créditos Imobiliários - instituição financeira especialista na concessão de crédito à habitação a particulares, através dos profissionais do sector imobiliário). A ComprarCasa iniciou a sua actividade comercial em Agosto de 2004, com a missão de Ser a Maior e Melhor Rede Imobiliária Nacional, oferecendo múltiplos serviços a mediadores imobiliários, baseados no conceito de marca comum, possibilitando e potenciando negócios nomeadamente para si, que pretende vender, comprar, arrendar ou trespassar um determinado imóvel. Com loja em Lousada, a IMOCERTA, faz parte da Rede ComprarCasa desde de Outubro de 2016. Na Mediação Imobiliária desde 2008, a IMOCERTA já ajudou imensas famílias a concretizar os seus sonhos, tanto na venda como na compra dos seus imóveis, para além de as apoiar na obtenção de crédito habitação, junto de instituições financeiras. Com a entrada em vigor do Decreto- Lei nº 81-C /2017 de 7 de Julho, que aprova o regime jurídico que estabelece os requisitos de acesso e de exercício da actividade de intermediário de crédito e de prestação de serviços de consultoria, e do Aviso do Banco de Portugal nº 6/2017, a ComprarCasa IMOCERTA (LA & EC, Soc. Med. Imobiliária, Lda), para além de ser uma Empresa de Mediação Imobiliária (Licença AMI 8359), passou também a ser um Intermediário de Crédito autorizado pelo Banco de Portugal com o número de registo 2124, ajudando os seus clientes junto das várias entidades bancárias. Na compra ou venda, procure a ComprarCasa IMOCERTA. ComprarCasa. A melhor forma de encontrar a casa ideal.
AMI: 8359
Ref. Externa: 365/T/03069
Id: 1145930
Inicie sessão para guardar este imóvel e aceder à sua lista de favoritos em qualquer dispositivo.
275.000 €
Área de terreno : 4382 m²
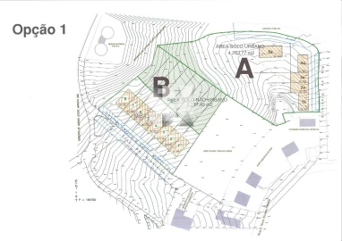
Terreno - Baltar - ParedesDescobre o potencial deste terreno urbanizável em Baltar, Paredes, uma joia rara no coração de uma zona tranquila e bem servida. Com uma área total de 9.524,62m², este espaço oferece a oportunidade única de desenvolver até 8 moradias, ideal para um projeto residencial de qualidade. Situado estrategicamente entre a Travessa e a Rua da Giesteira, o terreno proporciona fácil acesso a comodidades essenciais, garantindo conforto e conveniência.A Parcela "B", com 4.382,48m², dos quais 2.463,40m² são urbanizáveis, é perfeita para quem procura investir em imóveis com grande potencial de valorização. O Grupo Soluções Ideais, com mais de duas décadas de experiência no mercado imobiliário, oferece todo o apoio necessário em mediação imobiliária, intermediação de crédito e gestão de arrendamentos. Com parcerias sólidas junto a instituições financeiras, garantimos soluções de financiamento vantajosas para tornar o teu projeto realidade.Não percas esta oportunidade de construir num núcleo urbano em crescimento, onde a tranquilidade do ambiente se alia à proximidade das comodidades urbanas. Contacta-nos para mais informações e descobre como este terreno pode ser o local perfeito para o teu próximo investimento imobiliário.
AMI: 20423
Ref. Externa: PRDMN175
Id: 963882
Inicie sessão para guardar este imóvel e aceder à sua lista de favoritos em qualquer dispositivo.
175.000 €
Área de terreno : 5142 m²
**Terreno Urbanizável em Baltar, Paredes: Oportunidade Imperdível**Descobre este magnífico terreno urbanizável com uma área total de 9.524,62m², situado numa localização privilegiada em Baltar, Paredes. Com acesso a dois arruamentos, Travessa e Rua da Giesteira, este terreno oferece a possibilidade de ser dividido em duas parcelas distintas. A Parcela A, com 5.142,14m², dispõe de solo urbanizável de 4.783,77m², permitindo a construção de até cinco moradias. Já a Parcela B, com 4.382,48m², tem potencial para edificar oito moradias, com solo urbanizável de 2.463,40m².O preço anunciado refere-se exclusivamente à Parcela A, que conta com uma superfície total de 5.142m² e uma área edificável de 3.827m². Este terreno destaca-se pela sua fácil acessibilidade através de estrada e pela disponibilidade de infraestruturas essenciais como água e luz. É uma oportunidade única para desenvolver um projeto residencial num ambiente tranquilo e bem localizado.O Grupo Soluções Ideais, fundado em 2002, oferece a sua vasta experiência no mercado imobiliário, pautando-se por valores de confiança, lealdade e profissionalismo. Além disso, disponibiliza serviços de mediação imobiliária, intermediação de crédito e gestão de arrendamentos. Existe ainda a possibilidade de financiamento através de parcerias com instituições financeiras nacionais. Não percas esta chance de investir num terreno com tanto potencial!
AMI: 20423
Ref. Externa: PRDMN174
Id: 963881
Inicie sessão para guardar este imóvel e aceder à sua lista de favoritos em qualquer dispositivo.
225.000 €
Área de terreno : 2592 m²
Terreno com 2.592 m2 onde será possível construir moradias unifamiliares de 3 ou 4 frentes, com áreas amplas e bons acessos. As moradias a construir poderão ser térreas ou adicionar um piso num primeiro andar. Caso seja pretendido, será possível construir um piso adicional em cave. As moradias a construir terão uma boa orientação solar e na zona mais alta do terreno, umas vistas amplas sobre o vale da freguesia de Baltar que fica a poente. Realçamos ainda que o terreno possui uma mina de água, o que será uma mais valia futura!! O terreno está localizado numa zona residencial, com uma envolvente predominantemente de moradias unifamiliares, com transportes públicos, bons acessos viários e próximos de vias estruturantes, estando a 2 Km do acesso à autoestrada A4, na qual em 15 minutos chega ao Porto! Uma excelente oportunidade para construir a sua moradia ou para investidores! Marque a sua visita! ;ID RE/MAX: 123631067-547
AMI: 7772
Ref. Externa: 123631067-547
Id: 961131
Inicie sessão para guardar este imóvel e aceder à sua lista de favoritos em qualquer dispositivo.
25.000 €
Área de terreno : 840 m²
Terreno rústico, inserido em RAN, na localidade de Baltar, concelho de Paredes. Terreno fértil, na proximidade de um ribeiro, a ser atualmente usado como área de cultivo. Possibilidade de aquisição conjunta com os terrenos adjacentes a nascente (Art 542 e ID 123631246-16) e a poente (Art 573 e ID 123631246-17), bem como com uma Quinta localizada imediatamente a norte do caminho que lhe dá acesso (ID 123631246-15).;ID RE/MAX: 123631246-18
AMI: 7772
Ref. Externa: 123631246-18
Id: 961103
Inicie sessão para guardar este imóvel e aceder à sua lista de favoritos em qualquer dispositivo.
45.000 €
Área de terreno : 1440 m²
Terreno rústico, inserido em REN e RAN, na localidade de Baltar, concelho de Paredes. Terreno fértil, na proximidade de um ribeiro, a ser atualmente usado como área de cultivo. Possibilidade de aquisição conjunta com os terrenos adjacentes a nascente (Art 574 e ID 123631246-18) e a poente (Art 542 e ID 123631246-16), bem como com uma Quinta localizada imediatamente a norte do caminho que lhe dá acesso (ID 123631246-15).;ID RE/MAX: 123631246-17
AMI: 7772
Ref. Externa: 123631246-17
Id: 961102
Inicie sessão para guardar este imóvel e aceder à sua lista de favoritos em qualquer dispositivo.
10.000 €
Área de terreno : 1340 m²
Terreno rústico, inserido em REN e RAN, na localidade de Baltar, concelho de Paredes. Terreno fértil, na proximidade de um ribeiro, a ser atualmente usado como área de cultivo. Possibilidade de aquisição conjunta com os terrenos adjacentes a nascente (Art 574 e ID 123631246-18) e a poente (Art 573 e ID 123631246-17), bem como com uma Quinta localizada imediatamente a norte do caminho que lhe dá acesso (ID 123631246-15).;ID RE/MAX: 123631246-16
AMI: 7772
Ref. Externa: 123631246-16
Id: 961097
Inicie sessão para guardar este imóvel e aceder à sua lista de favoritos em qualquer dispositivo.
12.500 €
Área de terreno : 1660 m²
Duas Cavadas de Eucalipto com uma área total de 1660m2, perto da zona Industrial de Baltar e da Escola Básica.;ID RE/MAX: 125411012-30
AMI: 7772
Ref. Externa: 125411012-30
Id: 945149
Inicie sessão para guardar este imóvel e aceder à sua lista de favoritos em qualquer dispositivo.
12.500 €
Área de terreno : 1800 m²
Conjunto de 4 terrenos rústicos com uma área total de 1800m2, no lugar de Casal de Egas em Baltar.;ID RE/MAX: 125411012-31
AMI: 7772
Ref. Externa: 125411012-31
Id: 945150
Inicie sessão para guardar este imóvel e aceder à sua lista de favoritos em qualquer dispositivo.
27.000 €
Área de terreno : 230 m²
Terreno com 230 m2 em Baltar, ParedesJá possui das fundações para construção de uma moradia T3 com projeto caducadoBoa exposição solar e bons acessosPróximo de comércio e serviços3 Min. Autoestrada A410 Min. Centro de Paredes10 Min. Gandra20 Min. Porto25 Min. Aeroporto JC LEÃO ImobiliáriaGarra, Determinação e SoluçãoConsigo desde 2010Compramos, Vendemos, Ajudamos a Financiar o seu Imóvel.Intermediário de Crédito aprovado pelo Banco de Portugal.
AMI: 9075
Ref. Externa: B220035
Id: 890443
Inicie sessão para guardar este imóvel e aceder à sua lista de favoritos em qualquer dispositivo.
Estes agentes são especialistas nesta zona:
Inicie sessão para ocultar este imóvel das suas pesquisas e manter a sua lista de resultados organizada.
Guardar favoritos
Este imóvel foi guardados nos seus favoritos com sucesso.
Para poder guardar pesquisa deverá ter a sua sessão iniciada.
Caso não tenha uma conta, deverá criar uma.
A sua pesquisa foi guardada com sucesso!
© Copyright 2023 | CASACERTA. All rights reserved
Este site utiliza cookies. Ao navegar no site estará a consentir a sua utilização.
Para mais informações sobre os cookies pode consultar a
política de privacidade.