Lista
Comprar
Arrendar
2.250.000 €
Área de terreno : 15000 m²
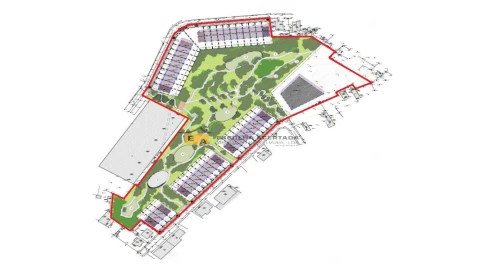
Terreno para construção com elevado potencial | Vila das Aves, Santo Tirso Apresento este terreno com ?? ?????, localizado em Vila das Aves, no concelho de Santo Tirso, ideal para desenvolvimento de projeto habitacional multifamiliar. Inserido em zona classificada no PDM como ?????̧? ???????????? – ???? ?, permite ????????̧?̃? ?? ??????, oferecendo uma oportunidade sólida para promotores e investidores. A sua localização estratégica destaca-se pela ??????????? ???????? ? ????́???? ? ??????̧??, nomeadamente supermercados (Intermarché, Pingo Doce e Lidl), farmácias, padarias, CTT, instituições bancárias e clínica de análises. A zona dispõe ainda de uma rede escolar completa, desde creche até ao ensino secundário. Conta com excelentes acessibilidades, estando a apenas 350 metros da N105 (ligação Santo Tirso – Guimarães) e a cerca de 1,5 km da estação de comboios, além de bons acessos a transportes públicos. O terreno beneficia de ótima exposição solar e insere-se numa envolvente predominantemente residencial, com ????? ??????? ????????????. Refira-se que já foi desenvolvido um estudo prévio que contempla a edificação de 88 frações habitacionais, demonstrando a expressiva capacidade construtiva do terreno. Realty ONE Group A Realty ONE Group é atualmente a marca imobiliária com o crescimento mais rápido nos Estados Unidos. Com mais de 20 anos de experiência, está presente em 26 países e continua a expandir-se a nível global. À frente da marca está Vinnie Tracey, presidente da Realty ONE Group, que durante 40 anos liderou uma das maiores referências mundiais do setor. Com a sua vasta experiência, está a consolidar a Realty ONE Group como uma das marcas líderes nos Estados Unidos e no mundo. Motivos para escolher a ONE As Pessoas Primeiro. Os nossos consultores recebem formação de excelência, nacional e internacional, ministrada pelos melhores especialistas em todas as vertentes do negócio. Toda a formação é gratuita, garantindo que a equipa está preparada para o apoiar com máxima eficiência. “Enquanto desfruta dos prazeres da sua vida, compre e venda o seu imóvel de forma rápida, simples e segura.” ONE House. ONE Dream. ONE Life(style).
AMI: 8815
Ref. Externa: ONE0011492-6
Id: 1751896
Inicie sessão para guardar este imóvel e aceder à sua lista de favoritos em qualquer dispositivo.
300.000 €
Área de terreno : 2585 m²
Terreno c/ alto Índice Máximo de Construção e Localização Central. Com 2585 m2, este constitui uma verdadeira oportunidade de investimento, não só pelo número e tipo de frações que nele podem ser construídas, mas também, por quão próximo está de estruturas como o Centro Cívico Desportivo e Administrativo, o Parque Urbano, Centros Comerciais e Cultural, entre outros. Uma particularidade que contribui para a ainda maior valorização deste terreno, é poço com água corrente que nele se encontra e que há cerca de 40 anos, abasteceu a Vila das Aves. Funcionalidade, Centralidade e História, o que poderia tornar mais atrativa uma construção? Não perca esta oportunidade, contacte-me e faça o seu melhor investimento!
AMI: 15052
Ref. Externa: DSEPSMBG206
Id: 1749468
Inicie sessão para guardar este imóvel e aceder à sua lista de favoritos em qualquer dispositivo.
497.200 €
Área de terreno : 45833 m²
Oportunidade Única de Investimento: Terreno com PIP Aprovado para 44 Moradias - Vila das AvesApresentamos um terreno estratégico com 44.983m² localizado em Monte da Barca, na Vila das Aves, Santo Tirso.Esta é a oportunidade ideal para promotores imobiliários que procuram um projeto com viabilidade garantida e excelente enquadramento geográfico.Destaques do Projeto (PIP Aprovado):O terreno conta com um Pedido de Informação Prévia (PIP) aprovado para a criação de um loteamento habitacional moderno:Tipologia: Moradias unifamiliares em bandaCapacidade: 44 Lotes destinados a habitaçãoÁrea Total de Construção: 18.480m²Área de Implantação: 6.160m².Configuração: Projetadas para 2 pisos acima da cota da soleira e 1 piso abaixo.Localização e Acessibilidades:Situado numa zona de expansão em contexto urbano consolidado, o terreno oferece o equilíbrio perfeito entre a tranquilidade e a proximidade aos grandes centros do Norte:Conectividade: Próximo às autoestradas A3 (Porto-Braga) e A41, além de servido pela Estação Ferroviária de Vila das Aves (Linha de Guimarães).Distâncias: Apenas 8 km de Santo Tirso, 33 km de Braga e a cerca de 40 minutos do Aeroporto Francisco Sá Carneiro.Serviços: Envolvente rica em comércio local, escolas, bancos e equipamentos de saúde.Detalhes Técnicos:Área Total do Terreno: 45.833m².Artigo Matricial: RústicoConfiguração: Terreno com frentes para caminho público (Norte e Poente).Preço de Venda: 497.200,00€Não perca a oportunidade de liderar um dos projetos habitacionais mais promissores da região.Para mais informações ou consulta de documentação técnica, entre em contacto connosco.Predimed Activa - A sua parceira de confiança no imobiliário
AMI: 22503
Ref. Externa: PD-058905
Id: 1723597
Inicie sessão para guardar este imóvel e aceder à sua lista de favoritos em qualquer dispositivo.
650.000 €
Área de terreno : 10485 m²
TERRENO AVES 10485 M2, para construção. Terreno com dois artigos urbanos matriciais com um estudo prévio de mercado. ?️ Distância às principais cidades: * Cidade * Distância aproximada * Tempo médio - Porto - 25–30 km - 20–30 min - Braga - 35–40 km - 30–35 min - Guimarães - 25–30 km - 25–30 min - Vila N. Famalicão -15–20 km - 15–20 min - Trofa - 10–15 km - 10–15 min - Maia - 20–25 km - 20–25 min ?️ Acessos rodoviários principais * Via * Distância * Ligação - A3 ~5–10 min Porto ↔ Braga ↔ Valença (Espanha) - A7 ~10–15 min Guimarães ↔ Fafe ↔ interior - A41 ~15–20 min Circular externa do Porto - N104 Muito próximo Ligação direta local ✈️ Infraestruturas relevantes *Local * Distância * Tempo - Aeroporto Francisco Sá Carneiro ~25–30 km 20–25 min - Porto de Leixões ~30–35 km 25–30 min Não perca esta oportunidade ! Agende já a sua visita !
AMI: 23416
Ref. Externa: TER AVES2
Id: 1719406
Inicie sessão para guardar este imóvel e aceder à sua lista de favoritos em qualquer dispositivo.
2.362.500 €
Área de terreno : 15000 m²
Parcela de terreno para construção com 15.000 m², no coração da Vila das Aves, junto ao Intermaché, com boa exposição solar, perto de todo o tipo de comércio e serviços. Este terreno está localizado em zona de Espaço Habitacional Tipo I. Características Principais do Terreno: - Área total do terreno: 15.000 m² - Índice máximo de construção: 1.25 - Área máxima de construção: 18.750 m² - Índice de impermeabilização do solo: 70% - Máximo de pisos acima da cota de soleira: 6 *Se tratarmos do crédito bancário, o mesmo não terá custas adicionais e suportaremos o custo da escritura e registo de aquisição. Marque a sua visita, será este o terreno que procura?
AMI: 9800
Ref. Externa: TER_40
Id: 1706872
Inicie sessão para guardar este imóvel e aceder à sua lista de favoritos em qualquer dispositivo.
665.000 €
Área de terreno : 4200 m²
Parcela de terreno para construção com 4.200m², no coração da Vila das Aves, junto ao Intermaché, com boa exposição solar, perto de todo o tipo de comércio e serviços. Caracteristicas principais: - Tipo de solo: Espaço Habitacional Tipo I - Área total do terreno: 4.200 m² - Índice máximo de construção: 1.25 - Área máxima de construção: 5.250 m² - Índice de impermeabilização do solo: 70% - Máximo de pisos acima da cota de soleira: 6 Marque a sua visita, será este o terreno que procura?
AMI: 9800
Ref. Externa: TER_41
Id: 1706869
Inicie sessão para guardar este imóvel e aceder à sua lista de favoritos em qualquer dispositivo.
497.200 €
Área de terreno : 45833 m²
Terreno industrial com 45833 m2, com PIP aprovado, situado em Monte da Barca (Aves, Santo Tirso), numa zona em expansão. O imóvel apresenta-se rodeado de infraestruturas rodoviárias na zona industrial da Barca e possui bons acessos. Encontra-se aprovado PIP com a seguinte viabilidade de construção: - Loteamento habitacional de moradias unifamiliares em banda; - 44 lotes destinados a habitação unifamiliar (43 moradias em banda e 1 isolada); Área total: 45.833 m²; Área bruta de construção: 12.070 m². Excelente oportunidade de investimento! Consulte a nossa equipa comercial para mais informações...
AMI: 8366
Ref. Externa: 3304
Id: 1703590
Inicie sessão para guardar este imóvel e aceder à sua lista de favoritos em qualquer dispositivo.
497.200 €
Área de terreno : 45833 m²
Terreno para construção - Santo Tirso. Encontra-se aprovado PIP com a seguinte viabilidade de construção: - Loteamento habitacional de moradias unifamiliares em banda; - 44 lotes destinados a habitação unifamiliar (43 moradias em banda e 1 isolada); - numa zona em expansão. - Área total: 45.833 m²; - Área bruta de construção: 12.070 m². Poderá obter para outro fim. Agimos diariamente para trazer mais valor à sua vida com o aconselhamento fiável de que precisa para juntos, conseguirmos atingir os melhores resultados. Com a Indexipredi nunca vai estar perdido ou desacompanhado e encontrará algo que não tem preço: a sua máxima tranquilidade! Com uma preparação e experiência única no mercado imobiliário, a Indexipredi põe toda a sua dedicação em dar-lhe o melhor acompanhamento, orientando-o com a máxima confiança, na direção certa das suas necessidades e ambições. Para agendamento de visita ou financiamento de crédito contate a Indexipredi Unipessoal Lda Esta é a sua oportunidade! Marque já a sua visita! IMOVEIS DA BANCA E FUNDO DE INVESTIMENTOS Temos - Quintas - Moradias - Apartamentos - Lojas - Terrenos - Hotéis - Armazéns - Em todo o pais.
AMI: 10858
Ref. Externa: IPPC1149
Id: 1703168
Inicie sessão para guardar este imóvel e aceder à sua lista de favoritos em qualquer dispositivo.
497.200 €
Área de terreno : 45833 m²
Oportunidade Única de Investimento: Terreno com PIP Aprovado para 44 Moradias – Vila das AvesApresentamos um terreno estratégico com 44.983 m² localizado em Monte da Barca, na Vila das Aves, Santo Tirso. Esta é a oportunidade ideal para promotores imobiliários que procuram um projeto com viabilidade garantida e excelente enquadramento geográfico.Destaques do Projeto (PIP Aprovado):O terreno conta com um Pedido de Informação Prévia (PIP) aprovado para a criação de um loteamento habitacional moderno:Tipologia: Moradias unifamiliares em bandaCapacidade: 44 Lotes destinados a habitaçãoÁrea Total de Construção: 18.480 m²Área de Implantação: 6.160 m².Configuração: Projetadas para 2 pisos acima da cota da soleira e 1 piso abaixo.Localização e Acessibilidades:Situado numa zona de expansão em contexto urbano consolidado, o terreno oferece o equilíbrio perfeito entre a tranquilidade e a proximidade aos grandes centros do Norte:Conectividade: Próximo às autoestradas A3 (Porto-Braga) e A41, além de servido pela Estação Ferroviária de Vila das Aves (Linha de Guimarães).Distâncias: Apenas 8 km de Santo Tirso, 33 km de Braga e a cerca de 40 minutos do Aeroporto Francisco Sá Carneiro.Serviços: Envolvente rica em comércio local, escolas, bancos e equipamentos de saúde.Detalhes Técnicos:Área Total do Terreno: 45.833 m².Artigo Matricial: RústicoConfiguração: Terreno com frentes para caminho público (Norte e Poente).Preço de Venda: 497.200,00€Não perca a oportunidade de liderar um dos projetos habitacionais mais promissores da região.Para mais informações ou consulta de documentação técnica, entre em contacto connosco.Predimed Activa – A sua parceira de confiança no imobiliárioPredimed Imobiliária, Mediação Imobiliária, Lda.Avenida Brasil 43, 12º Andar, 1700-062 LisboaLicença AMI nº 22503Pessoa Coletiva nº 517 239 345Seguro Responsabilidade Civil: Nº de Apólice RC65379424 Fidelidade Características: Áreas de Lazer Infantil;Auto-Estrada;Banco;Bombeiros;Escola;Espaços Verdes;Farmácia;Ginásio;Hipermercado;Hospital;Polícia;Posto de Combustível;Transportes Públicos
AMI: 13558
Ref. Externa: 058905
Id: 1690388
Inicie sessão para guardar este imóvel e aceder à sua lista de favoritos em qualquer dispositivo.
220.000 €
Área de terreno : 7000 m²
Terreno para construção em Areias – Santo Tirso Localizado na freguesia de Areias, a poucos minutos do centro de Santo Tirso, este terreno destaca-se pela sua excelente localização e potencial construtivo. Com frente para duas ruas já servidas de infraestruturas essenciais — saneamento e água canalizada — oferece todas as condições para um projeto sólido e bem estruturado. Implantado num plano elevado, o terreno beneficia de vistas desafogadas e de um enquadramento envolvente muito agradável, com um ligeiro declive que potencia soluções arquitetónicas diferenciadoras. É composto por dois artigos matriciais (1.000 m² e 6.000 m²), sendo a venda realizada em conjunto, o que representa uma mais-valia significativa para investidores ou projetos de maior dimensão. Uma oportunidade única para quem procura localização, dimensão e potencial. Agendamos uma visita?
AMI: 13093
Ref. Externa: 00325
Id: 1569288
Inicie sessão para guardar este imóvel e aceder à sua lista de favoritos em qualquer dispositivo.
65.000 €
Área de terreno : 550 m²
TERRENO URBANO COM 550M2 EM VILA DAS AVES, TERRENO COM AS SEGUINTES CARACTRÍSTICAS:- PRONTO A CONSTRUIR - POSSIBILIDADE DE CONSTRUÇÃO EM 3 PISOS COM 132M2 POR PISO - FÁCIL ACESSO- ZONA HABITACIONAL- BOA EXPOSIÇÃO SOLARINVESTMOREIRA - a CONFIANÇA que você precisa !❤️InvestMoreira surge pautada de confiança e tranquilidade, dedicando-se à administração, venda e promoção de imóveis.Uma equipa que segue pelo caminho que acredita ser o do sucesso: o acompanhamento transparente, permanente e personalizado ao nosso cliente, com base na confiança da procura ativa de quem queira comprar ou vender o seu imóvel com satisfação.Um grupo de profissionais ao seu dispor, marque a sua visita, encontre connosco o imóvel à sua medida!Interessado no Imóvel? Contacte-nos para receber informações adicionais ou agendar visita.
AMI: 12719
Ref. Externa: IM108.5.075
Id: 1565061
Inicie sessão para guardar este imóvel e aceder à sua lista de favoritos em qualquer dispositivo.
58.000 €
Área de terreno : 322 m²
? Excelente oportunidade de investimento em Vilar das Aves, Santo Tirso! Este terreno para moradia, com uma área bruta de 322m2 e área útil de 149m2, está disponível para venda por apenas 58 000,00€. Com a possibilidade de permuta, este terreno está localizado numa zona residencial tranquila, mas com fácil acesso a transportes públicos e auto-estradas. A sua localização na periferia oferece comodidades como centro comercial, supermercados, bancos, farmácia, escolas, hospital e muito mais. O terreno dispõe de um jardim com árvores, muro e poço, com uma orientação solar nascente, garantindo luminosidade e privacidade. Com visibilidade privilegiada e em estado novo, este terreno é ideal para construir a casa dos seus sonhos. Não perca esta oportunidade única de adquirir um terreno com estas características numa das freguesias mais procuradas da região do Porto. Agende já a sua visita e venha conhecer o seu futuro lar em Vilar das Aves! ??
AMI: 9118
Ref. Externa: 240-T-25751
Id: 1236455
Inicie sessão para guardar este imóvel e aceder à sua lista de favoritos em qualquer dispositivo.
95.000 €
Área de terreno : 5200 m²
- Terreno para construção de uma moradia ou quintinha - Completamente plano - Acesso á rua - Excelente exposição solar - Vila das Aves - Temos ao seu dispor os nossos parceiros de credito, que tratam de todo o processo de financiamento por si! (Serviço Gratuito). A Solução Imobiliária
AMI: 12140
Ref. Externa: 362
Id: 1162038
Inicie sessão para guardar este imóvel e aceder à sua lista de favoritos em qualquer dispositivo.
990.400 €
Área de terreno : 9904 m²
- Terreno para construção tipo III - Completamente plano - Frente de rua e muito central - Excelente exposição solar - Centro de Vila das Aves - Temos ao seu dispor os nossos parceiros de credito, que tratam de todo o processo de financiamento por si! (Serviço Gratuito). A Solução Imobiliária
AMI: 12140
Ref. Externa: 360
Id: 1162036
Inicie sessão para guardar este imóvel e aceder à sua lista de favoritos em qualquer dispositivo.
280.000 €
Área de terreno : 5695 m²
Terreno com viabilidade para Construção de 17 MORADIAS em banda | com 5695 m2 em Aves, Santo Tirso.Imóvel com viabilidade para construção de 17 moradias em banda.Artigo matricial independente.Boa exposição solar.Situa-se:- A 2 minutos do centro de Vila das Aves.- Junto a posto da GNR, hipermercados, padarias e vários serviços.Referência: ASG23023Por sermos intermediários de crédito devidamente autorizados pelo Banco de Portugal (Reg. 2736) fazemos a gestão de todo o seu processo de financiamento, sempre com as melhores soluções de mercado.Porquê escolher a AS ImobiliáriaCom mais de 14 anos no ramo imobiliário e milhares de famílias felizes, dispomos de 8 agências estrategicamente localizadas, para o servir com proximidade, corresponder à suas expectativas e ajudá-lo a adquirir a sua casa de sonho. Compromisso, Competência e Confiança são os nossos valores que entregamos aos nossos Clientes na hora de comprar, arrendar ou vender o seu imóvel.A nossa prioridade é a sua Felicidade!Especialistas imobiliários em Vizela ; Guimarães ; Taipas ; Felgueiras ; Lousada ; Santo Tirso ; Barcelos ; S. João da Madeira ; Porto ; Lisboa ; Braga ;
AMI: 13249
Ref. Externa: ASG23023
Id: 1154628
Inicie sessão para guardar este imóvel e aceder à sua lista de favoritos em qualquer dispositivo.
57.500 €
Área de terreno : 400 m²
Terreno para construção de moradia individual APENAS 3 LOTES DISPONÍVEIS Lotes desde os 350m2 até os 400m2 Terreno Plano Ideal para construção de moradias de 2 pisos! Ajudamos em todo o projeto de construção, desde a arquitetura até ter as chaves na sua mão.
AMI: 14573
Ref. Externa: DSBRGNTM58
Id: 1153713
Inicie sessão para guardar este imóvel e aceder à sua lista de favoritos em qualquer dispositivo.
56.500 €
Área de terreno : 600 m²
Identificação do imóvel: ZMPT574492 Terreno Urbano em Vila das Aves – Oportunidade Imperdível!Já imaginou construir a casa dos seus sonhos? Este fantástico terreno urbano de 600m², com 300m² de área de implantação e construção, está situado numa zona calma e familiar de Vila das Aves, rodeado por moradias e um ambiente acolhedor.Com excelentes acessos e perto de tudo o que precisa – comércio, serviços e principais vias rodoviárias – é o local ideal para dar vida ao seu projeto. Tudo isto por apenas 56.500€! Não perca esta oportunidade! Agende já a sua visita e comece a planear o seu futuro lar. 3 razões para comprar com a Zome+ acompanhamentoCom uma preparação e experiência única no mercado imobiliário, os consultores Zome põem toda a sua dedicação em dar-lhe o melhor acompanhamento, orientando-o com a máxima confiança, na direção certa das suas necessidades e ambições.Daqui para a frente, vamos criar uma relação próxima e escutar com atenção as suas expectativas, porque a nossa prioridade é a sua felicidade! Porque é importante que sinta que está acompanhado, e que estamos consigo sempre.+ simplesOs consultores Zome têm uma formação única no mercado, ancorada na partilha de experiência prática entre profissionais e fortalecida pelo conhecimento de neurociência aplicada que lhes permite simplificar e tornar mais eficaz a sua experiência imobiliária.Deixe para trás os pesadelos burocráticos porque na Zome encontra o apoio total de uma equipa experiente e multidisciplinar que lhe dá suporte prático em todos os aspetos fundamentais, para que a sua experiência imobiliária supere as expectativas.+ felizO nosso maior valor é entregar-lhe felicidade!Liberte-se de preocupações e ganhe o tempo de qualidade que necessita para se dedicar ao que lhe faz mais feliz.Agimos diariamente para trazer mais valor à sua vida com o aconselhamento fiável de que precisa para, juntos, conseguirmos atingir os melhores resultados.Com a Zome nunca vai estar perdido ou desacompanhado e encontrará algo que não tem preço: a sua máxima tranquilidade!É assim que se vai sentir ao longo de toda a experiência: Tranquilo, seguro, confortável e... FELIZ!Notas:1. Caso seja um consultor imobiliário, este imóvel está disponível para partilha de negócio. Não hesite em apresentar aos seus clientes compradores e fale connosco para agendar a sua visita.2. Para maior facilidade na identificação deste imóvel, por favor, refira o respetivo ID ZMPT ou o respetivo agente que lhe tenha enviado a sugestão.
AMI: 17432
Ref. Externa: ZMPT574492
Id: 1068801
Inicie sessão para guardar este imóvel e aceder à sua lista de favoritos em qualquer dispositivo.
55.000 €
Área bruta : 475 m²
Lote de Terreno com 475 m², destinado a construção de moradia unifamiliar, na Vila das Aves. Excelente localização com bons acessos, perto do centro e junto a hipermercado e escolas com boa exposição solar. Área de construção é de 237,5 m². Será este o terreno que procura para a sua moradia? Marque já a sua visita.
AMI: 9800
Ref. Externa: LTE_11
Id: 779665
Inicie sessão para guardar este imóvel e aceder à sua lista de favoritos em qualquer dispositivo.
57.500 €
Área de terreno : 487 m²
Três lotes de terreno destinados a construção de moradias unifamiliares de dois pisos na Vila das Aves. Bons acessos, boa exposição solar, sendo: Lote 1A - 487,4m2, Lote 2A - 460,7m2, Lote 3A - 477,7 m2. As áreas de implantação das moradias sao de 117 m2 e a area de construção é de 234 m2. O Alvara de loteamento é o n 39/81. Preço: 57.500€ cada lote. Marque a sua visita. Será este o terreno que procura, para a sua nova habitação?
AMI: 9800
Ref. Externa: LTE_14
Id: 779661
Inicie sessão para guardar este imóvel e aceder à sua lista de favoritos em qualquer dispositivo.
220.000 €
Área de terreno : 1367 m²
Terreno Para Construção em Vila das Aves 1367m2 - Infra-estruturas de Energia e águas. - Localizado em zona urbanizada com envolvência residencial - Óptimos acessos, serviços, comércio, escolas, transportes. Excelente localização no centro Urbano de Vila das Aves. Com o plano aprovado para construção. Potencial de Investimento Incrível no setor.
AMI: 15297
Ref. Externa: 2001
Id: 609611
Inicie sessão para guardar este imóvel e aceder à sua lista de favoritos em qualquer dispositivo.
Estes agentes são especialistas nesta zona:
Inicie sessão para ocultar este imóvel das suas pesquisas e manter a sua lista de resultados organizada.
© Copyright 2023 | CASACERTA. All rights reserved
Guardar favoritos
Este imóvel foi guardados nos seus favoritos com sucesso.
Para poder guardar pesquisa deverá ter a sua sessão iniciada.
Caso não tenha uma conta, deverá criar uma.
A sua pesquisa foi guardada com sucesso!
Este site utiliza cookies. Ao navegar no site estará a consentir a sua utilização.
Para mais informações sobre os cookies pode consultar a
política de privacidade.