Lista
Comprar
Arrendar
3 Quartos
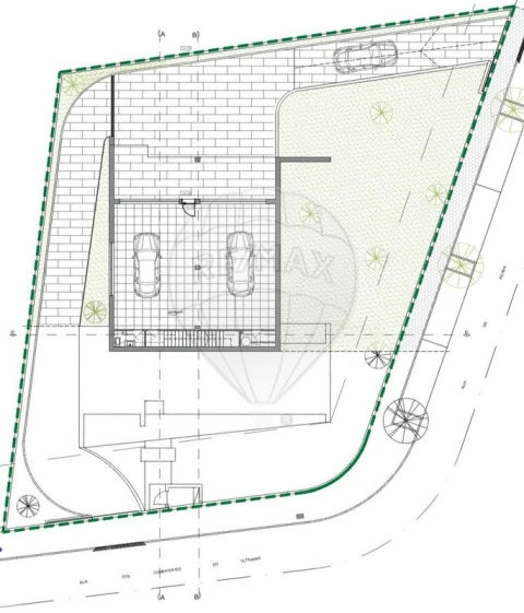
Área de terreno : 1450 m²
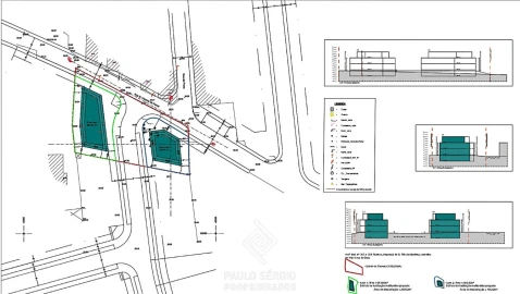
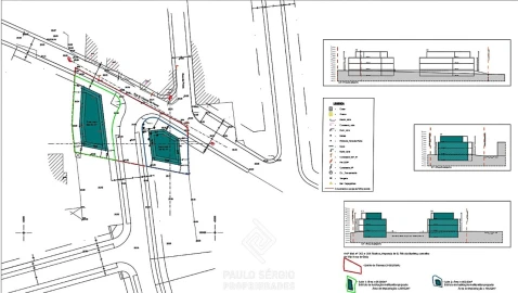
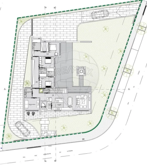
Terreno com 1.450 m² para venda em São Félix da Marinha, com projeto aprovado para uma moradia térrea contemporânea, cuidadosamente desenhada para privilegiar conforto, funcionalidade e integração com o espaço exterior. Localizado abaixo da A29, numa zona calma e de excelentes acessos, o terreno encontra-se a apenas 1 km da praia, permitindo desfrutar da proximidade ao mar sem abdicar da conveniência dos principais acessos automóveis. O projeto inclui uma ampla área social em open space, grandes envidraçados que garantem luminosidade natural ao longo do dia e uma ligação direta à zona de lazer exterior, onde se destaca uma piscina elegante e uma generosa área verde pensada para proporcionar privacidade, tranquilidade e um ambiente perfeito para convívio ou descanso. A topografia plana, a exposição solar privilegiada e o enquadramento do projeto tornam esta uma oportunidade excecional para quem procura construir uma moradia térrea moderna, com piscina e um espaço exterior verdadeiramente valorizado, numa das zonas mais procuradas da região.Entre em contacto para mais informações.Excluído do SCE, ao abrigo da alínea f), do artigo 4º, do Decreto-Lei nº 118/2013, de 20 de Agosto.
AMI: 8481
Ref. Externa: 4370
Id: 1593590
Inicie sessão para guardar este imóvel e aceder à sua lista de favoritos em qualquer dispositivo.
Área de terreno : 1183 m²
Terreno de 1183m2 com possibilidade de construção de moradias. Este terreno situa-se numa zona em franca expansão construtiva de S. Félix da Marinha, com excelente localização. Quer pelos serviços e comércio envolvente, quer pelas novas construções que surgem. A cerca de 1.8km da praia de Brito e do Hotel Solverde. A 900m do acesso à A29. Tem como referência da boa localização, os vários serviços que tem nas proximidades, tais como farmácia, laboratórios clínicos, duas grandes superfícies de supermercados (Pingo Doce e Lidl), posto de gasolina. Na estrada entre a rotunda do Juncal e o Hotel Solverde já estão a ser construídos novos empreendimentos, significando que a construção na Rua da Bela, neste momento é um excelente investimento quer para construção de habitação própria, quer para rentabilidade imobiliária. Ou neste caso específico, poderá optar por construção de habitação própria e comercializar as restantes moradias. Este terreno está numa localização muito estratégica de mobilidade e ao mesmo tempo usufruir da calma que os espaços verdes circundantes (e protegidos) garantem. O terreno está também próximo da Junta de Freguesia de S. Félix da Marinha e seguindo por essa estrada – Rua de S. Félix tem acesso directo ao centro da Granja, também um local de referência, assim como acesso a comércio e serviços e à Estação ferroviária da Granja. Segundo o PDM este terreno permite construção de moradias: - Zona destinada a edifícios uni ou bifamiliares, isolados, geminados ou em banda com ou sem cave comum. - A cércea máxima é de 2 pisos, admitindo-se um terceiro piso com área bruta equivalente até 50% da área do piso imediatamente inferior. - Sendo o limite máximo de área de implantação, 75% da sua área, não contando as áreas de cedência ao domínio público para efeito do cálculo desta percentagem. Pelo estudo efectuado por gabinete arquitectura, neste terreno poderão ser construídas 2 a 3 moradias. Assim como também, existe a possibilidade de aquisição do terreno confrontante (a sul) com 1258m2 (ref. 1119811) e desta forma optimizar a construção com 6 moradias em banda com acesso comum e garagens box de acesso individual a cada moradia. Podendo ter dois pisos + 1 recuado (50% área de construção). ou então: Se priorizar as grandes áreas de privacidade e de lazer poderá construir 4 moradias independentes e térreas na sua área habitacional. As garagens ficariam ao nível da estrada e dessa forma optimiza-se o declive do terreno. Contacte-me para esclarecimento da potencialidade da compra do terreno isolado ou em conjunto.
AMI: 10340
Ref. Externa: 1119751
Id: 1582380
Inicie sessão para guardar este imóvel e aceder à sua lista de favoritos em qualquer dispositivo.
Área de terreno : 2350 m²
Terreno com 2350m² para construção de moradia, na rua velha da calçada Romana, frente ao nr.776 Terreno com 18m² de frente e 130m² de profundidade.
AMI: 7142
Ref. Externa: AR/02262
Id: 1573351
Inicie sessão para guardar este imóvel e aceder à sua lista de favoritos em qualquer dispositivo.
1.200.000 €
Área de terreno : 7000 m²
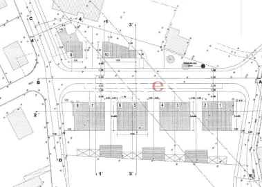
Terreno com projeto de loteamento aprovado LOTEAMENTO 18 Lotes individuais Aguarda Especialidades Rua das Flores / Rua S. Pedro - S.Felix da Marinha Terreno com 7.000 m2 Venda com Projecto de Loteamento Aprovado Valor de venda 1.200.000,00 € . Características: . Orientação Nascente-Poente . A 5 minutos da A29 . A 10 minutos da praia Situado numa zona tranquila, mas perto da praia e dos principais acessos. Não perca esta oportunidade, ligue já para mais informações!
AMI: 13781
Ref. Externa: SÒL_2110
Id: 1461030
Inicie sessão para guardar este imóvel e aceder à sua lista de favoritos em qualquer dispositivo.
Área de terreno : 5600 m²
Terreno para vendana Rua Fonte dos Loureiros / São Félix da Marinha Trata-se de um terreno Rustico rodeado de Zona Habitacional e Zona desportiva (Pavilhão Félix da Marinha em construção) Terreno com uma área de 5.600m2, bem localizado a poucos minutos do Centro de São Félix daMarinha perto de todo comercio e serviços bem como das Praias Saliento a proximidade de acessos ás vias principais Estrada antiga Porto Espinho, A29 e A1 Oportunidade a não perder! Este imóvel carece do parecer da Camara Municipal sobre a viabilidade de construção Estamos disponíveis para o ajudar a realizar sonhos, seja na compra ou na venda do seu imóvel. ;ID RE/MAX: 124881063-235
AMI: 7772
Ref. Externa: 124881063-235
Id: 1435928
Inicie sessão para guardar este imóvel e aceder à sua lista de favoritos em qualquer dispositivo.
Área de terreno : 2040 m²
Lote de terreno para construção, com área de 2.040 m2, possibilidade de construção de três moradias, localizado em São Félix da Marinha junto á Praia de Brito, Vila Nova de Gaia. Zona de grande potencial urbanístico com grande procura, vários serviços, nomeadamente pastelarias, cafés, restaurantes, Hipermercado e outros . Óptimas vias pedonais e ciclovias junto ás praias de Espinho e Vila Nova de Gaia. Excelente oportunidade de investimento! Tratamos de todo o processo, incluindo o Crédito Bancário. Conte com a nossa ajuda e profissionalismo.
AMI: 11829
Ref. Externa: 1202-3180
Id: 1426943
Inicie sessão para guardar este imóvel e aceder à sua lista de favoritos em qualquer dispositivo.
Área de terreno : 7250 m²
REF. 1700 - Terreno industrial 7.000m2 com frente de 45m na Rua dos Mouroes junto á Zona Industrial S. Félix da Marinha, Grijó e Serzedo.
AMI: 32767
Ref. Externa: 1700
Id: 1412040
Inicie sessão para guardar este imóvel e aceder à sua lista de favoritos em qualquer dispositivo.
Área de terreno : 7780 m²
REF. 1703 - 2 Terrenos para 2 moradias térreas, 7.780m2 S. Félix da Marinha. São 2 parcelas, 2 artigos com frente total de 48m. Na Rua dos Mourões junto à zona industrial. Rua com todas as infraestruturas. excelentes acessos.
AMI: 32767
Ref. Externa: 1703
Id: 1411998
Inicie sessão para guardar este imóvel e aceder à sua lista de favoritos em qualquer dispositivo.
Área de terreno : 4100 m²
Terreno São Félix da Marinha – 4.100 m² Apresentamos este magnífico terreno com 4.100 m², localizado em São Félix da Marinha, Vila Nova de Gaia, uma freguesia com forte tradição piscatória e agrícola, hoje reconhecida pela sua beleza natural, praias emblemáticas e qualidade de vida. A poucos minutos da cidade do Porto, esta é uma zona onde a tranquilidade da natureza se funde com a proximidade de serviços essenciais e acessibilidades modernas. A envolvente oferece todas as comodidades: escolas, comércio local, restauração, transportes públicos, bem como fáceis acessos à A29 e EN109. Em lazer, destaca-se a proximidade à Piscina de Água Salgada da Granja e às praias de Miramar e Granja, conhecidas pela sua história, tradição balnear e ambiente familiar. O terreno encontra-se totalmente tratado e organizado, destacando-se pela sua funcionalidade e cuidado: - Árvores de fruto, relvado de relva brasileira e sebes de folha de louro em todo o perímetro; - Zona de horta e caixa de areia para lazer; - Dupla vedação: alvenaria e estacaria com rede ovelheira e arame farpado; - Furo de captação de água equipado com motor e balão de pressão; - Contentor marítimo novo (2023) e casa abrigo nova, já implantados no local; - Muro e portão de entrada novos, com caixas de infraestrutura preparadas para futuras ligações de água e eletricidade. Trata-se de um terreno versátil, com enorme potencial para eventual para investimento, rodeado de qualidade de vida, tradição e natureza, ideal para quem procura espaço, conforto e proximidade a tudo o que realmente importa. ONE house, ONE dream, ONE life (style)
AMI: 22143
Ref. Externa: ONE91493-20
Id: 1333011
Inicie sessão para guardar este imóvel e aceder à sua lista de favoritos em qualquer dispositivo.
Área de terreno : 381 m²
Terreno urbano com uma área total de 331m2, para construção de uma moradia geminada, com uma área de implantação de 152,90, na freguesia de São Félix da Marinha, concelho de Vila Nova de Gaia. Este fabuloso terreno urbano situa-se numa sossegada urbanização a 3 minutos do nó da A29 em São Félix da Marinha. Esta localização privilegia os rápidos acessos às principais vias rodoviárias do norte de Portugal, que lhe permite rapidamente chegar ás principais cidades do pais (Porto, Braga, Aveiro, Coimbra, Lisboa). NOTA: EXISTE POSSIBILIDADE DE VENDA DE 4 LOTES IGUAIS!!! - CONSULTE-NOS Os acessos às principais praias também são um dos seus pontos fortes (Praia de Espinho, Granja e Aguda entre outras) permite-lhe um estilo de vida saudável, onde os acessos a tudo o comercio e serviços de uma sociedade organizada estão garantidos. Se isto faz sentido na sua vida, estamos cá para o próximo passo. Até já. ______ STALKeR ___________ A distinção "STALKER " se destacará e atrairá aqueles que procuram uma experiência imobiliária recompensadora e excecional. A Stalker RE tem uma equipa que está sempre um passo à frente, que trabalha incansavelmente para alcançar os resultados. Com uma abordagem inovadora e empolgante no setor, encapsulamos a jornada do cliente, revelando um mundo de possibilidades, ao mesmo tempo que transmitimos a mensagem de comprometimento e sucesso. A distinção "STALKER " se destacará e atrairá aqueles que procuram uma experiência imobiliária recompensadora e excepcional. A Stalker RE tem uma equipa que está sempre um passo à frente, que trabalha incansavelmente para alcançar os resultados. Com uma abordagem inovadora e empolgante no setor, encapsulamos a jornada do cliente, revelando um mundo de possibilidades, ao mesmo tempo que transmitimos a mensagem de comprometimento e sucesso. Não procuramos casas. Revelamos possibilidades." Na Stalker Real Estate, encontre mais do que uma casa — encontre o seu lugar. Um espaço com alma, onde cada decisão tem intenção, e cada detalhe é perseguido com olhos de futuro. Somos movidos pela curiosidade estratégica, pela visão fora do comum e por uma obsessão saudável em descobrir o que ainda ninguém viu. Exploramos o invisível, antecipamos oportunidades e nunca paramos onde os outros ficam. O nosso nome pode surpreender — e é isso mesmo que queremos: despertar. Porque no mercado imobiliário, quem se destaca é quem vai além do esperado. Aqui, cada cliente é único, cada imóvel é uma peça rara e cada transação, uma experiência cuidada com precisão, transparência e propósito. Dos investimentos às casas personalizadas, abrimos portas para um futuro moldado à sua medida. Inovamos no processo, quebramos padrões antigos e construímos consigo, passo a passo, conquistas com significado. Se procura mais do que uma experiência imobiliária — se procura uma jornada com visão, estratégia e emoção — então já sabe por onde começar. Stalker Real Estate. Um passo à frente, sempre. Vamos construir juntos?
AMI: 22706
Ref. Externa: 11052
Id: 1303532
Inicie sessão para guardar este imóvel e aceder à sua lista de favoritos em qualquer dispositivo.
2.500.000 €
Área de terreno : 12500 m²
REFERÊNCIA: 2797 Terreno com 12.500m² em São Félix da Marinha perto da praia. Capacidade de construção de tipologia mista. Constituído por 2 artigos: * Um de 6500m² – terreno rústico * Outro de 6000m² – terreno rústico Excelente localização, perto dos acessos à A29, perto da praia. NoTa: Os nossos imóveis encontram-se em regime de partilha somos uma equipa do setor imobiliário que atua no mercado de vendas de imóveis há mais de 20 anos we are a team from the real estate sector that has been operating in the property sales market for over 20 years.
AMI: 9191
Ref. Externa: 2797
Id: 1268812
Inicie sessão para guardar este imóvel e aceder à sua lista de favoritos em qualquer dispositivo.
Área de terreno : 539 m²
Terreno urbano para venda em São Félix da Marinha, com 539m2, plano, com uma frente de 20m, para construção de 1 moradia térrea ou 2 pisos. - Frente de Rua: 20 metrosSe pensa em construir a moradia dos seus sonhos de raiz a seu gosto, este terreno é o ideal para si.Entre em contacto para mais informações e consulte o local para conhecer o terreno onde irá construir a sua moradia de sonho. Excluído do SCE, ao abrigo da cláusula f), do artigo 4º, do Decreto-Lei nº 118/2013, de 20 de Agosto
AMI: 8481
Ref. Externa: 4147
Id: 1205002
Inicie sessão para guardar este imóvel e aceder à sua lista de favoritos em qualquer dispositivo.
Área de terreno : 1772 m²
Terreno para venda em São Félix da Marinha, Vila Nova de Gaia.O terreno possui uma área total de 1.772 m², com uma frente de aproximadamente 30 metros, garantindo uma ótima exposição e acessibilidade.Com topografia favorável e bons acessos, este lote oferece potencial para construção de duas moradias unifamiliares, podendo ser ideal para habitação própria ou para investimento.Localizado numa zona tranquila e residencial, o terreno beneficia ainda da bons acessos às praias da Granja e de São Félix da Marinha, bem como de serviços essenciais, escolas, comércio local e excelentes acessos à A29 e à N109.Características principais: Área total: 1.772 m² Frente: cerca de 30 metros 2 artigos independentes para construção de 2 moradias unifamiliares Zona calma e em crescimento Bons acessos rodoviários Próximo de praias e serviçosEntre em contacto para mais informações e agende já a sua visita a este imóvel.Excluído do SCE, ao abrigo da alínea f), do artigo 4º, do Decreto-Lei nº 118/2013, de 20 de Agosto.
AMI: 8481
Ref. Externa: 4111
Id: 1168394
Inicie sessão para guardar este imóvel e aceder à sua lista de favoritos em qualquer dispositivo.
1.650.000 €
Área de terreno : 6800 m²
Terreno para construção em altura, perto de Espinho.R/C+2 e R/C+3, com a área aproximada de 6800 m2, com PIP aprovado para construção de 5.500 m2 acima do solo, situado em local calmo e residencial, a cerca de 300 metros do nó de acesso à A29 e da marginal marítima.Terreno de gaveto para duas ruas.Excelente Oportunidade de Negócio!MARQUE JÁ A SUA VISITA!A Solução Casa é uma empresa do setor imobiliário que atua no mercado de Mediação e Vendas de Imóveis há mais de 25 anos.Com um padrão de seriedade na prestação de serviços imobiliários, procura realizar bons negócios com eficiência, proporcionando assim, tranquilidade aos seus clientes.Criada originalmente para vender imóveis residenciais, ao longo dos anos a Solução Casa tem ampliado a sua atuação para outros segmentos do mercado, incluindo imóveis comerciais, industriais e de lazer em todo o país.A nossa equipa de colaboradores é formada por profissionais experientes, com vasto conhecimento para sugerir as melhores alternativas. Além disso, dispomos de um sistema totalmente informatizado, o que permite uma maior agilidade na pesquisa e adequação do perfil do imóvel às solicitações do cliente.Apoiada pelo profissionalismo e seriedade, a Solução Casa está colocada entre as maiores imobiliárias do Porto - Vila Nova de Gaia.TODOS OS SERVIÇOS QUE DISPONIBILIZAMOS PARA GARANTIR UMA VENDA EFICAZ:- Aconselhamento Imobiliário;- Intermediação de Crédito: * Entidade autorizada pelo Banco de Portugal 001348; - Gabinete Jurídico;- Gabinete de Marketing e Publicidade.Prestamos um acompanhamento constante em todo o processo de compra ou venda do seu imóvel.
AMI: 7931
Ref. Externa: 3166
Id: 1154191
Inicie sessão para guardar este imóvel e aceder à sua lista de favoritos em qualquer dispositivo.
7.500.000 €
Área de terreno : 11920 m²
Oportunidade Prime para Construtoras e Investidores Terreno de 11.920 m² na Praia de São Félix da Marinha com Potencial para 23.000 m² de Construção! Apresentamos um terreno exclusivo de 11.920 m², localizado na deslumbrante Praia de São Félix da Marinha, uma das áreas mais valorizadas do litoral. Com um projeto aprovado para dois prédios com apartamentos de alto padrão e vista mar, este é um investimento imperdível para construtoras que buscam desenvolver empreendimentos de luxo em uma localização privilegiada. Destaques do Terreno: Projeto para Dois Prédios Modernos Ideal para apartamentos premium com varandas panorâmicas e vistas deslumbrantes para o oceano. Potencial Construtivo de 23.000 m² Oportunidade para desenvolver um empreendimento exclusivo, aproveitando ao máximo a valorização da região. Localização de Alto Prestígio Frente marítima, com acesso direto à praia, ciclovias, restaurantes e zonas de lazer. Mercado Imobiliário Aquecido Preço médio de venda na região para apartamentos com vista mar superior a 3.900 /m², garantindo alta rentabilidade. Infraestrutura Completa Fácil acesso a vias principais, transportes públicos e serviços essenciais, tornando o projeto ainda mais atrativo para futuros compradores. Transforme este espaço em um empreendimento de referência na linha costeira! Em São Félix da Marinha, o preço médio de venda de apartamentos é de aproximadamente 3.536 /m². Para apartamentos com vista para o mar, os valores tendem a ser superiores, refletindo a valorização adicional proporcionada pela localização privilegiada. Entre em contato agora para mais informações e agendamento de visita!
AMI: 19759
Ref. Externa: DSVNGCANCL27
Id: 1114478
Inicie sessão para guardar este imóvel e aceder à sua lista de favoritos em qualquer dispositivo.
Área de terreno : 1571 m²
Apresentamos dois terrenos exclusivos, totalizando 1571 m2, divididos em dois lotes distintos: um de 791,07 m2 e outro de 780,00 m2. Localizados em S. Felix da Marinha, esses terrenos desfrutam de uma localização privilegiada, com aproximadamente 30 metros de frente, e estão convenientemente situados a apenas 500 metros da reta do Solverde, uma área conhecida por sua beleza e comodidades. O primeiro lote, com 791,07 m2, oferece uma oportunidade única para desenvolver uma propriedade personalizada, seja uma moradia unifamiliar espaçosa ou um projeto de condomínio residencial. Com dimensões generosas e espaço para jardins exuberantes ou instalações adicionais, este lote é ideal para quem busca criar uma residência exclusiva em um ambiente tranquilo e desejável. Por sua vez, o segundo lote, com 780,00 m2, também apresenta uma frente ampla e oferece um potencial igualmente atrativo para projetos residenciais. Com um terreno levemente inclinado e vistas panorâmicas deslumbrantes, este lote é perfeito para aqueles que desejam construir moradias ou apartamentos com uma atmosfera serena e vistas deslumbrantes da área circundante. Ambos os terrenos oferecem uma oportunidade única para investidores e desenvolvedores que buscam capitalizar em uma localização privilegiada, com fácil acesso a praias deslumbrantes e outras comodidades locais. Com uma demanda crescente por propriedades nesta área, esses lotes representam um investimento promissor no mercado imobiliário de S. Felix da Marinha. Não perca a chance de adquirir esses terrenos excecionais e transformar suas visões em realidade. Entre em contato connosco hoje mesmo para mais informações e para discutir suas opções de investimento. Na Espaço60, acreditamos firmemente que a compra, venda ou arrendamento de uma propriedade vai além de uma simples transação - é a concretização de sonhos e aspirações. Com mais de 35 anos de experiência dedicada à mediação imobiliária exclusiva, consolidamos a nossa posição como líderes confiáveis neste setor em constante evolução. A nossa equipa é formada por consultores profissionais apaixonados e experientes, cada um comprometido em oferecer um serviço personalizado e eficiente. Desde o primeiro contacto até à conclusão da transação, estamos ao seu lado, fornecendo orientação especializada e soluções à medida para satisfazer as suas necessidades únicas. Na Espaço60, a transparência e a integridade são os pilares de todas as nossas ações. Valorizamos cada cliente e cada negociação, buscando construir relações de confiança baseadas em comunicação aberta, honestidade e resultados excecionais. Ao escolher o Espaço60, está a optar por um parceiro confiável e dedicado que irá superar as suas expectativas e tornar o processo imobiliário uma experiência tranquila e gratificante. Estamos aqui para transformar os seus sonhos imobiliários em realidade.
AMI: 23515
Ref. Externa: 05240312
Id: 1036488
Inicie sessão para guardar este imóvel e aceder à sua lista de favoritos em qualquer dispositivo.
1.850.000 €
Área de terreno : 10000 m²
Terreno para Venda em São Félix da Marinha – Excelente Oportunidade de InvestimentoLocalização PremiumSituado em São Félix da Marinha, este terreno oferece uma oportunidade única para empreendedores e investidores. A região destaca-se pela elevada procura de habitação e comércio, sendo ideal para projetos de grande porte. Características do TerrenoÁrea total: 10.000 m² (lote anunciado)Tipologia mista Tipo II (0.4): permite construção de apartamentos e lojas no rés-do-chãoPossibilidade de adquirir outro lote adicional de 11.240 m², totalizando 21.240 m²Venda disponível de forma individual ou conjuntaVantagens da LocalizaçãoCrescente procura por habitação na regiãoExcelente potencial para lojas e serviços locaisLocalização estratégica, ideal para negócios de sucessoDocumentação100% regularizada e pronta para escrituraAproveite esta oportunidade para desenvolver um projeto de sucesso numa região em constante valorização!Entre em contacto para mais informações e agendamento de visita!FRACÇÃO EXACTACom uma história de sucesso, a Fracção Exacta foi fundada em 2008 e hoje é uma das principais redes imobiliárias em Portugal. Com mais de 20 lojas espalhadas pelo Distrito do Porto, Aveiro, Braga, Lisboa, Algarve e Ilha da Madeira, e uma equipa de mais de 200 colaboradores, estamos presentes em todo o país para atender às necessidades dos nossos clientes.A nossa filosofia de trabalho é baseada no profissionalismo e no compromisso com a excelência. Cada membro da nossa equipa é dedicado, competente e está sempre focado em encontrar as melhores soluções para os nossos clientes. Acreditamos que só através do rigor e da competência é possível oferecer um serviço de qualidade e superar as expectativas dos nossos clientes.A nossa visão é ser a maior rede imobiliária em Portugal, 100% portuguesa. Queremos oferecer as melhores condições tanto para os compradores como para os vendedores, criando parcerias duradouras e beneficiando todos os envolvidos no processo de compra e venda de imóveis. Além disso, valorizamos os nossos colaboradores e garantimos as melhores condições para que se destaquem no mercado imobiliário.Outro ponto importante é que somos um Intermediário de Crédito aprovado pelo Banco de Portugal, o que nos permite oferecer aos nossos clientes condições de financiamento especiais. Assumimos a responsabilidade de tratar de toda a documentação necessária de forma gratuita, para que os nossos clientes possam desfrutar de uma experiência tranquila e sem preocupações.Na Fracção Exacta, comprometemo-nos em oferecer um serviço de excelência, baseado em valores como integridade, transparência e dedicação. Estamos focados em tornar o processo de compra e venda de imóveis mais simples e eficiente, para que os nossos clientes possam alcançar os seus objetivos de forma rápida e segura.Se procura um parceiro de confiança para as suas necessidades imobiliárias, venha conhecer a Fracção Exacta. Estamos prontos para o ajudar a encontrar a sua casa de sonho, vender a sua propriedade ou qualquer outra questão relacionada com o mercado imobiliário. Conte connosco para fazer a diferença na sua vida imobiliária.
AMI: 8866
Ref. Externa: 25.21/009
Id: 1021807
Inicie sessão para guardar este imóvel e aceder à sua lista de favoritos em qualquer dispositivo.
Área de terreno : 2500 m²
Terreno para venda em São Félix da Marinha, próximo do Continente, Recta do Hotel Solverde), tem 37 metros de frente e cerca de 70 de fundo.O terreno é vendido com um projecto de arquitectura aprovado e com viabilidade para a construção de 2 moradias de rés-do-chão e 1ºandar com área de implantação total de 361,40m2 e 581m2 de área bruta de construção.Local calmo, privado e tranquilo, boa exposição solar a um passo de vários serviço de Espinho e das praias. Fácil acesso às principais vias A29/A41/A1.Oportunidade única, numa zona de forte procura residencial, tanto para habitação própria como para investimento.Entre em contacto para mais informações e agende já a sua visita a este imóvel.Excluído do SCE, ao abrigo da alínea f), do artigo 4º, do Decreto-Lei nº 118/2013, de 20 de Agosto.
AMI: 8481
Ref. Externa: 3969
Id: 1014147
Inicie sessão para guardar este imóvel e aceder à sua lista de favoritos em qualquer dispositivo.
Área de terreno : 471 m²
Lote de Terreno, com uma área de 471,80m2, para construção de moradia de 3 frentes, com 2 pisos, anexo e garagem, Possibilidade de venda de 2 lotes para construção de moradias geminadas, sendo que cada lote tem o valor de €62.000. Um terreno em zona residencial, na freguesia de São Félix da Marinha, concelho de Vila nova de Gaia, com uma localização privilegiada perto da praia e com acesso fácil às principais vias rodoviárias, A1 e A29 de rápido acesso ao Porto e Aveiro é uma excelente opção para quem busca qualidade de vida e conveniência. Os acessos ao comercio e serviços são outra das das vantagem desta localização. Se privilegia viver num local sossegado sem perder o acesso a toda a qualidade de uma vida urbana encontra aqui o seu "lugar". Contacte-nos. A distinção "STALKER " se destacará e atrairá aqueles que procuram uma experiência imobiliária recompensadora e excecional. A Stalker RE tem uma equipa que está sempre um passo à frente, que trabalha incansavelmente para alcançar os resultados. Com uma abordagem inovadora e empolgante no setor, encapsulamos a jornada do cliente, revelando um mundo de possibilidades, ao mesmo tempo que transmitimos a mensagem de comprometimento e sucesso. A distinção "STALKER " se destacará e atrairá aqueles que procuram uma experiência imobiliária recompensadora e excecional. A Stalker RE tem uma equipa que está sempre um passo à frente, que trabalha incansavelmente para alcançar os resultados. Com uma abordagem inovadora e empolgante no setor, encapsulamos a jornada do cliente, revelando um mundo de possibilidades, ao mesmo tempo que transmitimos a mensagem de comprometimento e sucesso.
AMI: 22706
Ref. Externa: 1125
Id: 967361
Inicie sessão para guardar este imóvel e aceder à sua lista de favoritos em qualquer dispositivo.
Área de terreno : 482 m²
Lote de Terreno, com uma área de 482,30m2, para construção de moradia de 3 frentes, com 2 pisos, anexo e garagem. Possibilidade de venda de 2 lotes para construção de moradias geminadas, sendo que cada lote tem o valor de €62.000. Um terreno em zona residencial, na freguesia de São Félix da Marinha, concelho de Vila nova de Gaia, com uma localização privilegiada perto da praia e com acesso fácil às principais vias rodoviárias, A1 e A29 de rápido acesso ao Porto e Aveiro é uma excelente opção para quem busca qualidade de vida e conveniência. Os acessos ao comercio e serviços são outra das das vantagem desta localização. Se privilegia viver num local sossegado sem perder o acesso a toda a qualidade de uma vida urbana encontra aqui o seu "lugar". Contacte-nos. ______ STALKER RE _____________ A distinção "STALKER " se destacará e atrairá aqueles que procuram uma experiência imobiliária recompensadora e excecional. A Stalker RE tem uma equipa que está sempre um passo à frente, que trabalha incansavelmente para alcançar os resultados. Com uma abordagem inovadora e empolgante no setor, encapsulamos a jornada do cliente, revelando um mundo de possibilidades, ao mesmo tempo que transmitimos a mensagem de comprometimento e sucesso.
AMI: 22706
Ref. Externa: 1124
Id: 967242
Inicie sessão para guardar este imóvel e aceder à sua lista de favoritos em qualquer dispositivo.
Estes agentes são especialistas nesta zona:
Inicie sessão para ocultar este imóvel das suas pesquisas e manter a sua lista de resultados organizada.
© Copyright 2023 | CASACERTA. All rights reserved
Guardar favoritos
Este imóvel foi guardados nos seus favoritos com sucesso.
Para poder guardar pesquisa deverá ter a sua sessão iniciada.
Caso não tenha uma conta, deverá criar uma.
A sua pesquisa foi guardada com sucesso!
Este site utiliza cookies. Ao navegar no site estará a consentir a sua utilização.
Para mais informações sobre os cookies pode consultar a
política de privacidade.