Lista
Comprar
Arrendar
1.500.000 €
2 Quartos
2 WCs
Área bruta : 120 m²
Apresentamos esta elegante moradia geminada situada em Alvalade, um dos bairros mais prestigiados e valorizados de Lisboa, junto à Prime School International. Com uma área total de 120 m² e um amplo jardim de 290 m², trata-se de uma excelente oportunidade para quem procura um imóvel com potencial para personalização e modernização. Construída em 1966, a moradia possui tipologia T2 distribuída por dois pisos. No piso térreo, destaca-se um hall acolhedor, uma sala dupla de boas dimensões e uma cozinha com acesso direto ao jardim. O piso superior integra dois quartos, uma casa de banho com janela e um quarto interior que poderá funcionar como escritório, área de arrumação ou espaço adicional. O imóvel necessita de renovação e permite ampliação, oferecendo aos futuros proprietários a possibilidade de criar um ambiente completamente adaptado às suas necessidades. Dispõe ainda de uma garagem coberta com 20 m². Localizada numa zona residencial calma, a propriedade beneficia de proximidade a comércio local, serviços e transportes públicos, garantindo praticidade no quotidiano. A orientação das fachadas a norte, sul, este e oeste assegura excelente luminosidade ao longo do dia. Não perca a oportunidade de investir nesta moradia com elevado potencial de valorização. Agende a sua visita e descubra o espaço ideal para construir o seu futuro lar.
AMI: 2786
Ref. Externa: ILX-116/25
Id: 1555752
Inicie sessão para guardar este imóvel e aceder à sua lista de favoritos em qualquer dispositivo.
7.500.000 €
7 Quartos
8 WCs
Área bruta : 1510 m²
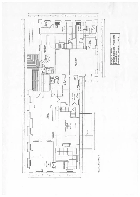
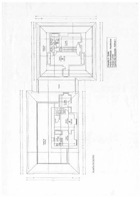
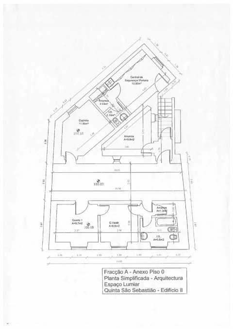
Viver em Lisboa é um sonho, e viver num palácio do século XVII é uma experiência verdadeiramente única. A Quinta de São Sebastião, localizada no Lumiar, é um testemunho da rica história nobre de Portugal, tendo sido construída por D. João V e reconhecida como Residência Real. Esta impressionante propriedade ocupa um terreno de 2.780 m² e possui 1.514 m² de área construída, distribuídos por três pisos. No rés-do-chão, encontra 3 luxuosas suítes, uma casa de banho social, uma majestosa entrada principal, e duas salas de estar, bem como uma capela com acesso ao exterior. O primeiro andar oferece uma espaçosa cozinha e sala de jantar com capacidade para acomodar até 30 pessoas, com vistas deslumbrantes para o jardim e a piscina. Há também um charmoso terraço, uma sala de música e mais 3 salas de estar e leitura. O segundo andar, com sótão, abriga 4 quartos e 2 suítes adicionais, perfeitas para hóspedes ou família. A arrecadação situa-se no piso -1, sendo que a garagem, com 199,10 m², oferece espaço para 3 carros e arrumos, com proteção acústica e paredes revestidas a cortiça. Além disso, a propriedade dispõe de estacionamento exterior para aproximadamente 30 carros e um jardim deslumbrante, ideal para relaxar e desfrutar da beleza natural que a rodeia. Venha conhecer este esplêndido palácio e descubra a história que ele carrega, enquanto imagina o seu futuro numa casa cheia de glamour e sofisticação. Esta é a oportunidade de viver a vida dos seus sonhos em Lisboa!
AMI: 21865
Ref. Externa: TAPT01-1010_MZ
Id: 919648
Inicie sessão para guardar este imóvel e aceder à sua lista de favoritos em qualquer dispositivo.
7.500.000 €
7 Quartos
8 WCs
Área bruta : 1514 m²
Deslumbrante Palacete localizado em Lisboa, inserido na Quinta de São Sebastião - freguesia do Lumiar, a sua construção imponente remonta ao Séc. XVIII. O majestoso Palacete do Lumiar, de uma beleza e nobreza únicas, teve a honra de ter sido habitado por D. João V e ser considerado Casa Real. Ao longo dos tempos, no Séc XX, o arquiteto Raul Lino foi responsável pelas obras de expansão e conservação. Já nos anos 70 o reconhecido arquiteto paisagista Gonçalo Ribeiro Telles, galardoado com o Prémio Sir Geoffrey Jellicoe, a máxima distinção internacional da área, assume o estudo do projeto das zonas ajardinadas, o que se traduz num inigualável Palacete onde o conforto e os espaços verdes envolventes perduram no tempo. O Palacete, apresenta uma área de construção, destinada à habitação, de 2780 m2, divididas entre o Rés do Chão, primeiro andar e águas furtadas. Para além de um idílico jardim com cerca de 14.000 m2, o condomínio onde se insere o Palacete, permite a utilização de um conjunto de amenities, onde se destacam as duas piscinas (interior com água aquecida e exterior), um Health Club e um salão para realização de eventos, anteriormente conhecido como "salão de caça". Características do Palacete por Piso: Piso 0: - 1 Hall de entrada; - 1 sala de estar, com uma bonita lareira e com acesso ao jardim do palacete; - 1 imponente capela; - 1 master suite, com closet, e acesso ao jardim do palacete; - 2 suites; - 1 quarto de arrumos; - Ampla master suite, com zona closet, e acesso direto aos jardins do palacete; Piso 1: - 1 ante sala de estar; - 1 sala de estar; - 1 sala de estar com uma imponente lareira; - 1 sala de música, em formato oval, pintada a frescos; - 1 salão nobre com mesa de jantar para 30 pessoas, com as paredes e tetos pintado com frescos; - 1 cozinha equipada com eletrodomésticos da marca Smeg, - 1 sala junto à cozinha, para as refeições diárias em família; - 1 casa de banho social; Piso 2 (águas furtadas): - 2 suites, com uma pátio entre elas; Características gerais do Palacete: - Ar condicionado; - aquecimento Central; - As lareiras articulam-se com o sistema de aquecimento central instalado; - Fibra ótica instalada; - Garagem para 3 lugares de estacionamento; - 1 das entradas do Palacete, totalmente privada, permite o parqueamento exterior de 30 viaturas; - 1 fonte centenária; Amenities do Condomínio onde se insere o Palacete: - 1 Health Club; - 2 piscinas (1 interior com água aquecida e 1 exterior); - 1 salão para a realização de eventos, com traços oitocentistas, desenhado em 1920, por Raul Lino - Jardins impecavelmente cuidados; Vamos conhecer o seu próximo investimento.
AMI: 1032
Ref. Externa: CB02-0286
Id: 894556
Inicie sessão para guardar este imóvel e aceder à sua lista de favoritos em qualquer dispositivo.
Estes agentes são especialistas nesta zona:
Inicie sessão para ocultar este imóvel das suas pesquisas e manter a sua lista de resultados organizada.
Guardar favoritos
Este imóvel foi guardados nos seus favoritos com sucesso.
Para poder guardar pesquisa deverá ter a sua sessão iniciada.
Caso não tenha uma conta, deverá criar uma.
A sua pesquisa foi guardada com sucesso!
© Copyright 2023 | CASACERTA. All rights reserved
Este site utiliza cookies. Ao navegar no site estará a consentir a sua utilização.
Para mais informações sobre os cookies pode consultar a
política de privacidade.