Lista
Comprar
Arrendar
395.000 €
Área bruta : 360 m²
Excelente oportunidade de investimento! Prédio em propriedade total, composto por dois pisos e quatro frações independentes, ideal para rendimento, remodelação ou exploração própria. Piso 0 Comércio - Duas frações destinadas a atividade comercial: - R/C Esquerdo - R/C Direito Ótimas para lojas, serviços, gabinetes ou arrendamento comercial, garantindo rendimento estável. Piso 1 Habitação - Duas frações habitacionais (1º Esquerdo e 1º Direito), ambas T2, compostas por: - Hall de entrada - Sala ampla - 2 quartos - Casa de banho - Cozinha Perfeito para arrendamento tradicional, alojamento ou habitação própria. Agende a sua visita e descubra o seu novo estilo de vida! Prestamos um serviço de acompanhamento antes e depois da sua escritura. AO SEU LADO EM CADA PASSO.
AMI: 9537
Ref. Externa: VD-2512230/W3/DD
Id: 1513912
Inicie sessão para guardar este imóvel e aceder à sua lista de favoritos em qualquer dispositivo.
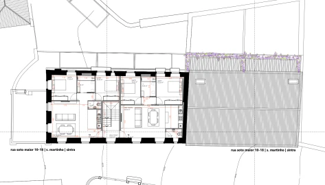
395.000 €
Área bruta : 360 m²
Prédio de dois pisos em propriedade total, composto por dois espaços comerciais interligados no rés-do-chão e dois apartamentos T2 no primeiro andar. Os espaços comerciais dispõem de duas áreas amplas, duas instalações sanitárias e uma cozinha, oferecendo grande versatilidade para diferentes tipos de negócio. Destaca-se ainda a existência de saída de fumos, fator que amplia o potencial para atividades de restauração. Medidas aproximadas de 18x10m para cada piso. O vão de escadas é de aproximadamente 2 x 4,2m. Pé direito de 2,8 metros. O primeiro andar tem dois apartamentos T2, ambos constituídos por hall, sala, dois quartos, instalação sanitária e cozinha. O imóvel está inserido numa zona residencial consolidada, numa localização privilegiada, a poucos minutos a pé da Estação de CP de Algueirão-Mem Martins, garantindo excelentes ligações a Sintra, Lisboa e a toda a área metropolitana. A envolvente beneficia da proximidade a comércio local, escolas, transportes públicos e diversos serviços essenciais. Todos estes fatores reforçam de forma significativa a atratividade do imóvel, seja para fins habitacionais ou comerciais, seja para investimento. Imóvel de banca a analisar propostas de compra para este imóvel recebidas até às 17h do dia 29/12/2025. Venha conhecer e apresente a Sua proposta!
AMI: 9466
Ref. Externa: EDI_4224
Id: 1507477
Inicie sessão para guardar este imóvel e aceder à sua lista de favoritos em qualquer dispositivo.
400.000 €
6 Quartos
Área bruta : 271 m²
Prédio com 6 frações (4 habitacionais e 2 comerciais) em propriedade total no centro de Casal de Cambra. O prédio de momento encontra- se com 3 frações arrendadas com contratos vitalícios. As frações são as seguintes: 1º Esquerdo: 37m2 1º Direito: 54m2 Sótão: 90m2 Rés do chão: 47,7m2 Loja B: 13,5m2 Loja A: 28,8m2 Esta propriedade conta ainda com um terreno de 500 metros quadrados. Não perca esta oportunidade de investimento.
AMI: 11721
Ref. Externa: HMBK4962
Id: 1493296
Inicie sessão para guardar este imóvel e aceder à sua lista de favoritos em qualquer dispositivo.
450.000 €
6 Quartos
3 WCs
Área útil : 115 m²
Prédio com garagem no Cacém Apresentamos uma oportunidade de investimento única no coração do Cacém! Este edifício de 3 pisos, inserido num lote com 272m² e com área bruta de construção de 192m², localiza-se na Rua da Polícia, uma das áreas mais centrais e bem servidas da região. Com uma proximidade inigualável a todos os tipos de serviços, comércio e transportes, esta propriedade reúne o melhor da conveniência urbana. Características do Prédio: Rés-do-chão: Este piso oferece atualmente uma garagem, arrecadação e uma casa de banho. 1º Andar: Encontramos dois quartos uma sala com varanda e cozinha com acesso direto a um terraço privativo, onde se encontra um anexo, proporcionando um ambiente versátil e agradável. 2º Andar: Temos três quartos, sala e cozinha, perfeito para maximizar o potencial habitacional deste prédio. A propriedade inclui ainda um espaço de jardim com excelente potencial, onde poderá ser instalada uma charmosa casa de madeira, criando um ambiente adicional de lazer e relaxamento ao ar livre. Esta é uma oportunidade para reabilitar e transformar este prédio, conferindo-lhe um novo e valioso propósito. Seja para investimento ou para habitação própria, esta é uma opção que prima pela localização e versatilidade. Marca a tua visita e venha conhecer este imóvel. ;ID RE/MAX: 122141247-190
AMI: 7772
Ref. Externa: 122141247-190
Id: 1451679
Inicie sessão para guardar este imóvel e aceder à sua lista de favoritos em qualquer dispositivo.
320.000 €
Área bruta : 200 m²
Apresentamos este Prédio, que se caracteriza-se por 4 Frações: - Duas de habitação; - Dois anexos. Anexo 1: Destinado a Comércio (atualmente com todas as alterações realizadas para ser utilizado como habitação); Anexo 2: Destinado a Garagem; Encontra-se arrendado tendo todos os contratos de arrendamento término, este ano; Situado na zona norte e residencial de Casal de Cambra, e a apenas 400 metros da A9. O Centro de Casal de Cambra tem várias acessibilidades, como comércio, serviços e escolas, fazendo frente com Caneças onde tem a possibilidade de usufruir, numa igual distância, dos variados serviços que esta propõe. Marque já a sua visita!
AMI: 12689
Ref. Externa: PREPMS001
Id: 1449190
Inicie sessão para guardar este imóvel e aceder à sua lista de favoritos em qualquer dispositivo.
1.350.000 €
4 WCs
Área bruta : 883 m²
Excelente oportunidade de investimento!Vende-se Palacete em plena zona histórica de São Pedro de Sintra, com área útil 864m2, dividido por 17 assoalhadas em estilo clássico. O edificio foi construido em 1951, onde ocupa todo um quarteirão com 5 números de porta. Dois deles para habitação e 3 para comércio, onde ainda funciona em um café / restaurante e logradouro com 40m2, armazém e garagem para uns 4 carros.O imóvel é vendido sem inquilinos. Este prédio é para reconstrução. com enorme potencial para investimento turístico, como um pequeno hotel de charme ou dividi-lo em 5 a 6 apartamentos.A localização é privilegiada, situada na encosta da luxuriante Serra, em São Pedro de Sintra, sendo considerado um dos locais mais bonitos de Portugal. Perto de Palácios, Casas Senhoriais e Jardins Exóticos. O edifício fica a alguns minutos do Parque Nacional de Sintra, do Castelo dos Mouros, construído durante o período de dominação árabe, do Palácio da Pena construído por D. Fernando II, no século XIX, bem como do Palácio da Vila do século XI durante o domínio exclusivo na Península Ibérica. Este imóvel também fica próximo ao litoral, onde pode encontrar as melhores praias, como a Praia do Guincho, Praia das Maças, Praia Grande, etc. São Pedro é conhecido pelo seu comércio, pelas velharias e antiguidades, e pela proximidade com o centro histórico Património Cultural da Humanidade de Sintra, que, com um crescente número de visitantes, tem sabido manter as suas tradições e beleza patrimonial. A localidade exibe ainda uma orgulhosa Igreja Paroquial, consagrada a São Pedro, sendo uma das primeiras paróquias portuguesas, juntamente com três outras que D. Afonso Henriques construiu em Sintra, depois da tomada definitiva da Vila aos mouros, em 1147.Muito célebre é a Feira de São Pedro que se realiza todos os segundos e quartos domingos de cada mês no Largo D. Fernando II. Fica a 1 minuto onde está localizado este casarão. Esta é uma feira que origens remontam ao século XII, onde se encontra de tudo um pouco, sendo provavelmente a maior feira do concelho de Sintra.Lisboa fica uns escasso 30 minutos bem como o aeroporto internacional e uns 20 minutos as praias mais bonitas da Costa do Estoril, Praia Grande e Guincho. Características: Características Gerais - Para remodelar; Orientação - Nascente; Norte; Sul; Poente; Outras características - Garagem; Moradia;
AMI: 16107
Ref. Externa: 1218-312
Id: 1432522
Inicie sessão para guardar este imóvel e aceder à sua lista de favoritos em qualquer dispositivo.
1.890.000 €
Área bruta : 727 m²
Este edifício em Sintra oferece uma excelente oportunidade para desenvolvimento, com diversas vantagens tanto pela localização quanto pelas possibilidades de aproveitamento do projeto. Com 727 m² de área bruta de construção e inserido em um terreno de 690 m², o imóvel já conta com um projeto aprovado que permite a criação de uma unidade hoteleira ou outro conceito dentro do ramo, com possibilidade de expandir a área construída para entre 1.250 m² a 1.500 m² de área bruta privativa, distribuída em 26 frações independentes. Características principais: - Localização privilegiada: Situado no centro de Sintra, a apenas 10 minutos a pé do centro da vila, com fácil acesso a comércio, restaurantes, lojas e serviços. A região é conhecida pelo seu charme, e o projeto visa valorizar ainda mais as características únicas do local. - Acesso rápido a importantes centros: A 15 minutos de carro das escolas internacionais TASIS e CAISL, do shopping CascaiShopping e do centro de Cascais, e a 45 minutos de Lisboa e do Aeroporto Humberto Delgado. - Potencial de venda: O projeto permite a criação de frações independentes, o que abre possibilidade para a venda das unidades como imóveis separados, diversificando as formas de rentabilização do investimento. - Valorização com a reconstrução: Parte do trabalho de reconstrução já foi iniciado, preservando o charme original da região, o que pode aumentar ainda mais o valor do imóvel, ao unir a modernização com a estética tradicional de Sintra. Com essas características, este imóvel pode atender a diversos conceitos de negócios, desde o setor hoteleiro até empreendimentos residenciais ou mistos. A proximidade com a vila de Sintra e outros centros urbanos é um diferencial importante para quem busca um projeto de sucesso nesta região.
AMI: 7183
Ref. Externa: KWPT-008079
Id: 1431803
Inicie sessão para guardar este imóvel e aceder à sua lista de favoritos em qualquer dispositivo.
Área bruta : 1100 m²
Uma Propriedade de Elevado Potencial Gerador de Receita Visão Geral da Propriedade Este projeto de boutique hotel combina charme, localização estratégica e múltiplas fontes de rendimento, tornando-o um investimento atrativo. Sintra, um local classificado como Património Mundial pela UNESCO, é um destino turístico durante todo o ano, com elevadas taxas de ocupação devido à sua rica história, beleza natural e atrações diversas. Pontos de interesse como o Palácio da Pena, o Castelo dos Mouros e a Quinta da Regaleira atraem tanto turistas culturais como aventureiros. Para além do turismo cultural, Sintra atrai também entusiastas do desporto, como surfistas, ciclistas, praticantes de caminhada, corrida de trilhos e retiros de yoga. Com a proximidade ao Parque Natural de Sintra-Cascais e à costa Atlântica, Sintra oferece uma variedade de atividades ao ar livre, ampliando ainda mais a base de clientes potenciais para o hotel. - Área do Terreno: 488 m² - Área de Implantação: 362 m² - Área Bruta de Construção Total: 1101 m² O projeto está totalmente aprovado pela Câmara Municipal e pelo Turismo de Portugal para o desenvolvimento de um hotel de 4 estrelas. No entanto, podem ser feitas algumas alterações no interior sem necessidade de aprovação da Câmara, permitindo personalização. Todas as ideias mencionadas neste texto podem ser adaptadas às preferências e visão do investidor. Principais Características & Fontes de Rendimento 1. 20 Quartos de Hóspedes - Principal Fonte de Rendimento: Alojamento. Os 20 quartos planeados são desenhados para atrair um grupo diversificado de turistas, incluindo visitantes culturais e entusiastas de atividades ao ar livre, garantindo uma potencial taxa de ocupação constante. A combinação de maravilhas naturais e arquitetónicas de Sintra deverá manter elevadas taxas de ocupação ao longo do ano. - Potencial: Tarifas de quartos premium poderão ser alcançadas devido à localização privilegiada da propriedade e às comodidades de luxo. 2. Restaurante & Bar no Rooftop - Potencial de Rendimento: Vendas no restaurante e bar. O bar no rooftop oferecerá vistas deslumbrantes de Sintra, incluindo locais icónicos como o Palácio da Pena e o Castelo dos Mouros. Este espaço visa preencher uma lacuna no mercado local para uma experiência de jantar de qualidade em rooftop, atraindo tanto turistas como locais. O rooftop contará ainda com uma pequena piscina e uma fogueira, criando uma atmosfera mágica. - Oportunidade de Cloud Kitchen: A cozinha na cave terá uma entrada independente, permitindo um serviço eficiente de entrega de refeições sem perturbar os hóspedes do hotel ou os clientes do restaurante. Este conceito apoia a ideia de uma cloud kitchen, onde vários menus podem ser desenvolvidos para entregas, expandindo assim o potencial de receita. 3. Espaço Comercial / Área de Coworking - **Potencial de Rendimento:** Renda ou receita comercial. O espaço comercial flexível pode ser utilizado para vender produtos locais, oferecer aluguer de bicicletas e pranchas de surf ou organizar passeios guiados de caminhada ou ciclismo pela Sintra. Alternativamente, o espaço pode ser alugado a vendedores locais ou transformado numa área de coworking, atraindo nómadas digitais e aumentando o tráfego local. 4. Biblioteca Secreta - Potencial de Rendimento: Esta biblioteca secreta, localizada atrás do restaurante, aproveita o misticismo de quartos e passagens secretas, frequentemente encontrados em antigos palácios e castelos, acrescentando um toque de encanto mágico de Sintra à propriedade. Pode ser utilizada como um bar estilo "speakeasy", oferecendo uma atmosfera exclusiva e intimista, ou convertida numa sala de jantar privada, espaço para pequenas reuniões ou até mesmo num lounge de leitura para os hóspedes. A sua atratividade secreta oferece oportunidades para usos criativos, atraindo diferentes segmentos de clientes. 5. Sala Privada no Rooftop - Potencial de Rendimento: Atividades de bem-estar e eventos privados. A sala privada no rooftop é destinada a aulas de yoga, retiros de bem-estar ou tratamentos de spa, aproveitando o apelo de Sintra aos viajantes conscientes da saúde. Pode também acolher jantares privados ou eventos íntimos, proporcionando uma experiência única e tranquila para os hóspedes. Vantagens Estratégicas - Turismo Durante Todo o Ano: Sintra beneficia de um turismo constante devido ao seu rico património cultural, atividades ao ar livre e desportos de aventura, garantindo um público diversificado e amplo de hóspedes. - Localização Prime: Localizada entre a área residencial e a vila turística, a propriedade desfrutará de alta visibilidade e acessibilidade, tornando-a apelativa tanto para os locais como para os visitantes internacionais. - Lacuna no Mercado: Sintra carece atualmente de uma experiência de jantar em rooftop de alta qualidade, proporcionando uma vantagem competitiva significativa para o restaurante e bar. - Múltiplas Fontes de Rendimento: O hotel pode gerar receita através do alojamento, refeições, comércio, coworking, atividades de bem-estar e eventos, oferecendo um modelo de negócio diversificado e resiliente. - Utilização Eficiente do Pessoal: A receção está alinhada com o bar, permitindo que a equipa gere ambas as áreas de forma eficiente, reduzindo os custos operacionais. Os hóspedes podem ser recebidos pelo bartender, que pode oferecer uma bebida no check-in, acrescentando um toque acolhedor e memorável à sua chegada. - Oportunidades de Crescimento: A infraestrutura suporta o crescimento futuro através de operações de cloud kitchen, serviços de bem-estar e ofertas de coworking, maximizando a receita com um investimento adicional mínimo. Resumo do Investimento Este projeto de boutique hotel em Sintra representa uma oportunidade de investimento de primeira linha, oferecendo diversas e elevadas fontes de rendimento. Com características planeadas que incluem alojamento, refeições, atividades ao ar livre e opções de bem-estar, pretende atrair uma ampla gama de hóspedes. Totalmente aprovado para desenvolvimento como hotel de 4 estrelas, a propriedade está destinada a tornar-se um destino de destaque no próspero mercado turístico de Sintra, garantindo retornos fortes e sustentados.
AMI: 7183
Ref. Externa: KWPT-000867
Id: 1431673
Inicie sessão para guardar este imóvel e aceder à sua lista de favoritos em qualquer dispositivo.
2.450.000 €
Área bruta : 238 m²
Oportunidade à venda na Praia das Maçãs, SintraSe gostava de ter o seu próprio negócio de alojamento turístico, numa das zonas mais bonitas e procuradas de Portugal, então não perca esta oportunidade. Se gostava de ter uma casa cheia de charme e luz natural para habitação própria, então aqui está uma excelente oportunidade para realizar esse sonho. Situado no centro da Vila da Praia das Maçãs, em pleno funcionamento, e com uma excelente classificação.Numa zona com bastante comercio, perto de transportes públicos com ligação direta a vários destinos tais como Cascais e Lisboa. Edifício com 120m2 construídos inserida em lote de 716m2 está distribuída da seguinte maneira: Rés-do-chão: Restaurante em funcionamento com cozinha totalmente equipada, casa de banho, sala de refeições e esplanada. No mesmo piso encontra-se ainda um bar em funcionamento com sala, casa de banho e esplanada. Primeiro piso: Alojamento local com 5 quartos, sala de estar comum, cozinha e casa de banho. A Praia das Maça é uma das prinicipais praias da zona de Sintra. Conhecida pela sua beleza natural, pelo seu clima e pelas ondas ideais para quem gosta de surf. Este hostel está a apenas 50 metros da praia e tem uma vista deslumbrante para a serra e para o mar. Está também perto de outros pontos de interesse, como o centro histórico de Sintra, onde pode visitar o património cultural e natural da zona, como o Palácio da Pena, o Castelo dos Mouros, a Quinta da Regaleira, e muitos outros. Além disso, fica apenas a 40 minutos de Lisboa, onde pode encontrar todos os serviços e comodidades que necessita. Este é um investimento que lhe vai gerar rendimentos e satisfação. Ligue e marque a sua visita. Características: Características Exteriores - Barbeque; Características Gerais - Primeiro Proprietário; Outros Equipamentos - Máquina de lavar louça; Frigorífico; Micro-ondas; Máquina de lavar roupa; Vistas - Vista mar; Vista praia; Vista campo; Outras características - Garagem; Cozinha Equipada;
AMI: 16107
Ref. Externa: 1218-2879
Id: 1431398
Inicie sessão para guardar este imóvel e aceder à sua lista de favoritos em qualquer dispositivo.
495.000 €
3 WCs
Área bruta : 232 m²
Terreno com moradia em ruína de frente ao Parque Urbano Felício Loureiro, Queluz, SintraTerreno com moradia em ruína de frente ao Parque Urbano Felício Loureiro, Queluz, Sintra Este terreno contem uma moradia em ruina para demolição total. Pode realizar o seu projeto de sonho neste imóvel.Localiza-se numa ótima zona.Pode ser ideal para investidores.Principais atributos dos imóveis:Boa exposição Solar;Terreno plano;Localização privilegiada;Áreas do imóvel:Área total do terreno - 320m²;Área de implantação - 120,00m²;Área bruta de construção - 232,67m²;Área bruta dependente - 42,60m²;Área bruta privada - 190,07m².Proximidades e serviços:Parque Urbano Felício Loureiro - Na porta de casa ;Espaço Cidadão de Queluz 431m;EB/ES Padre Alberto Neto - 950m ;Palácio Nacional de Queluz - 500m ;Jardim do Palácio de Queluz - 500m;Matinha de Queluz - 860m;Mercado de Queluz - 400m ;Principais Acessos e Transportes:Estação de Comboio de Queluz - Belas - 650m;Estação de Comboio Monte Abraão - 1800m;Transporte(Autocarro) - Nasceu;N117 - 365m;A37 - 800m;A9 - 3000m. A9 - 3000m. Características: Orientação - Nascente; Vistas - Vista cidade; Vista jardim; Outras características - Garagem; Varanda; Garagem para 2 Carros; Arrecadação; Suite; Moradia;
AMI: 15760
Ref. Externa: 1208-3039
Id: 1431031
Inicie sessão para guardar este imóvel e aceder à sua lista de favoritos em qualquer dispositivo.
Área bruta : 290 m²
Prédio em pleno Centro da Vila de Sintra. Prédio totalmente reabilitado, inserido em lote com 185m2, com uma área de implantação de 145 m2 e 420m² de área bruta de construção. Prédio em propriedade total, composto por 4 apartamentos(2 T2 e 2 T3 duplex), totalmente remodelados, todos com 2 casas de banho. Encontra-se arrendado com uma rentabilidade assegurada de 6,7%/ano. Localização central, em zona classificada como Património Mundial da Unesco, muito procurada por turistas, rodeada de comércio tradicional e vários monumentos históricos e de referência. Este imóvel está angariado com comissão de 5%+IVA, na KW Portugal acreditamos na partilha (50%-50%) como uma forma de prestar o melhor serviço ao cliente e por isso se é profissional do sector e tem um cliente comprador qualificado, contate-nos e agende a sua visita!
AMI: 7183
Ref. Externa: KWPT-008000
Id: 1430515
Inicie sessão para guardar este imóvel e aceder à sua lista de favoritos em qualquer dispositivo.
3.500.000 €
Área bruta : 11500 m²
Prédio / Loja / Armazém com 11.500 m2 para Venda, na Estrada Principal Rio de Mouro, Sintra Área do Terreno : 10.000 m2 Área de Implantação : 4.500 m2 Área de Construção : 11.500 m2 Loja e Armazém de grandes dimensões, tem Licença Comercial, possibilidade de ser um Supermercado ou outro Negócio aberto ao Público. De momento, não tem licença de construção ativa, sendo recomendado pedir à Câmara uma licença para acabar a obra. Localizado junto à estrada principal, em fase de acabamento, com 3 frentes para 3 ruas em local de grande confluência de trafego e com grande exposição ao mesmo, bons acessos e excelente construção. Cave : 5300 m2 e 192 lugares de estacionamento Piso 0 : 4500 m2 com 9 metros de altura e 8 cais de descarga, 5 lugares de estacionamento para pesados e 29 para ligeiros. Piso 1 : 1600 m2 ---------- Alguma dúvida, não hesite em contactar-nos. NOTA: Fazemos parceria e partilha com todas as imobiliárias profissionais. ---- SOBRE A LT REAL ESTATE. Na LT Real Estate primamos pela DISCRIÇÃO, comprometemos-nos a trabalhar com EXCELÊNCIA e concedemos DISTINÇÃO. Fundada por Marisa Guedes e Bruno Queirós, a LT Real Estate foi criada com a intenção de consolidar-se como referência de excelência no seletíssimo Mercado de Residências Premium/Luxo e no sofisticado âmbito dos Investimentos. A exclusividade, celeridade e primor no atendimento são os alicerces mais preponderantes que fundamentam a essência da nossa marca. Na LT, a nossa dedicação é focada na sublime meta de criar relações duradouras e de máxima satisfação para o nosso cliente. 'A verdadeira essência do luxo revela-se em cada minucioso detalhe. Luxo não é um privilégio, é uma estratégia de negócios.' ---- ltrealestate.pt
AMI: 19915
Ref. Externa: EDI_1733
Id: 1408219
Inicie sessão para guardar este imóvel e aceder à sua lista de favoritos em qualquer dispositivo.
2.540.000 €
Área útil : 435 m²
Prédio renovado com licença AL no centro de Sintra! Descubra uma joia única no coração da Vila de Sintra, onde o charme histórico se encontra com o design moderno e sofisticado! Este deslumbrante edifício renovado, oferece vistas deslumbrantes sobre o Palácio da Vila, o Castelo dos Mouros e a majestosa Serra de Sintra. Com cinco pisos distribuídos por três apartamentos independentes, esta propriedade é perfeita tanto para habitação como para investimento. No rés-do-chão e no primeiro andar, espera por si um espaçoso apartamento T3 duplex com 225 m², completo com um generoso terraço, três luxuosas suites, uma cozinha moderna e uma sala de estar que irradia conforto. O piso -1 dispõe ainda de lavandaria e garagem para dois carros, garantindo comodidade no seu dia a dia. No segundo andar, destaca-se um elegante T2 de 88 m² com dois quartos e duas casas de banho, realçado por uma sala de estar em open space que se integra harmoniosamente com a cozinha. No topo do edifício, um acolhedor T1 de 74 m², perfeito para quem valoriza o espaço e a luz natural, promete momentos de tranquilidade. Nenhum detalhe foi esquecido: todos os apartamentos dispõem de ar condicionado embutido e acabamentos de alta qualidade, como azulejos da conceituada Viúva Lamego e isolamento acústico, garantindo um ambiente calmo e agradável durante todo o ano. Localizado a poucos minutos de serviços essenciais, transportes públicos e numa zona vibrante, este imóvel convida verdadeiramente a um estilo de vida sofisticado. Escolas internacionais de prestígio estão a uma curta distância de carro, assim como as deslumbrantes praias da costa de Sintra. Não perca a oportunidade de fazer parte desta experiência única, seja como nova residência ou como um investimento inteligente! Este edifício incorpora perfeitamente conforto, localização e charme histórico, tornando-se uma oferta irresistível para quem procura o melhor de Sintra. A MILLION GROUP surge da união de sinergias, da complementaridade e experiência dos seus fundadores. Que iniciaram a sua colaboração sob a matriz de uma marca internacional e decidem criar um novo conceito para o setor imobiliário. Sentiram os desafios com uma perspetiva mais universal e flexível na abordagem do mercado imobiliário, e a criação da marca MILLION GROUP vem responder a todas as necessidades. Era preciso dar corpo a uma filosofia e uma forma de estar no mercado, nova e diferenciadora. Os nossos valores CONFIANÇA, PROXIMIDADE, MATURIDADE, UNIVERSALIDADE. CONFIANÇA – Conquistada interna e externamente pelo rigor e a lealdade na relação que estabelecemos com os nossos Consultores, Parceiros, Clientes e Amigos. PROXIMIDADE – Uma relação sincera, com acompanhamento, apoio e disponibilidade permanente. MATURIDADE – Um património de experiência e conhecimento no mercado imobiliário. UNIVERSALIDADE – Baseada numa presença abrangente em todos os segmentos de mercado, a profissionalizar os nossos consultores com foco na satisfação dos nossos clientes. O que fazemos "Concretizamos sonhos" Uma verdadeira síntese emocional do que fazemos todos os dias. Conciliamos compradores e vendedores, promovemos negócios e apoiamos a sua concretização.
AMI: 22034
Ref. Externa: MGB00272
Id: 1399158
Inicie sessão para guardar este imóvel e aceder à sua lista de favoritos em qualquer dispositivo.
Área bruta : 540 m²
Prédio em São Pedro de Sintra, constituído em propriedade total, com afetação a comércio e habitação, totalmente renovado em 2023 com materiais de alta qualidade. Inserido em lote de terreno com 667m², encontra-se distribuído por dois pisos da seguinte forma: Piso térreo: Um apartamento T1 e quatro lojas com montras para a rua. Apartamento T1 composto por: sala de estar (22,5m²) em open space com cozinha, quarto (14m²) com saída direta para um logradouro privado e WC completo com base de duche. Equipado com ar condicionado. Loja 1: 40 m² com 1 WC; Loja 2: 40 m² com 2 WC e arrumos; Loja 3: 20 m² com 1 WC; Loja 4: 56 m² com 1 WC e arrecadação. Piso superior: Dois apartamentos T2 e T2+1. Apartamento T2 é composto por: sala de estar (40m²) com acesso direto ao jardim, cozinha (18,4m²) com acesso a uma varanda, master suite (32,6m²) com closet e WC completo com banheira e base de duche, suite (26,1m²) com WC completo com base de duche, hall de passagem com acesso a um pátio interior e WC social. Apartamento T2+1 é composto por: sala de estar (40m2) com mezzanine ( 25m2), criando um espaço extra versátil, cozinha (8,7m2), master suite (38,4m²), dividida em dois ambientes, com WC completo com base de duche, escritório (8,2m²) e WC com base de duche. Ambos os apartamentos do piso superior têm piso radiante em todas as áreas. Dispõe de parqueamento para 4 carros e arrumos. A presente informação não tem caráter contratual, carecendo o comprador da verificação prévia de toda a documentação do imóvel. Este anúncio poderá eventualmente ter alguma imprecisão da qual a agência não poderá ser responsabilizada. Classificação Energética: B- SR_622
AMI: 18376
Ref. Externa: SR_622
Id: 1382749
Inicie sessão para guardar este imóvel e aceder à sua lista de favoritos em qualquer dispositivo.
499.999 €
Área bruta : 252 m²
Trata-se de uma venda conjunta de 3 frações independentes: - R/C - Sala 25m2, Cozinha 6m2, Quarto 8 m2, Quarto 10 m2, Corredor 6 m2, Wc 3 m2, Arrumos 6 m2. Encontra-se arrendado mas ficará desocupado com a venda. - 1º Andar Sala 23 m2, Corredor 12 m2, Dispensa 6 m2 c/ acesso Sotão 60 m2, Wc 8.75 m2, Quarto 13 m2, Quarto 13 m2, Cozinha 10 m2, Terraço Fechado 28 m2, Varanda 10 m2, Arrumos 37 m2, Quintal 60 m2, estando desocupado. Ainda faz parte da fração do 1º andar um anexo transformado em T2 com 50 m2 arrendado mas ficará desocupado com a venda. - Loja com 30 m2 e Wc, desocupada. Perto de acessos a IC17, A16, junto a escolas, comércio, serviços, transportes, PSP, Junta Freguesia, etc Atenção investidores....... Aguardo pela sua visita !!! 405/N/00030
AMI: 18002
Ref. Externa: 405/N/00030
Id: 1314711
Inicie sessão para guardar este imóvel e aceder à sua lista de favoritos em qualquer dispositivo.
Área bruta : 340 m²
PRÉDIO/HOSTEL HISTÓRICO EM AL E ARRENDAMENTO NO CENTRO DE SINTRA - Oportunidade Única de Investimento! REILAR convida a visitar um edifício histórico datado de 1938, remodelado e em excelente estado de conservação, atualmente a funcionar como hostel/ alojamento local com licenças em vigor, no coração de Sintra. Com uma área generosa de 340 m², este imóvel distribui-se por três pisos (Cave, R/C e 1.º andar) e oferece vários quartos, casas de banho, cozinhas equipadas e uma ampla zona exterior, ideal para proporcionar conforto e momentos agradáveis aos hóspedes. Distribuição do Imóvel: Rés-do-chão: 3 suites duplas; 2 quartos duplos; 1 quarto triplo; 3 casas de banho; 1 cozinha equipada. 1.º Andar: 3 suites duplas; 2 quartos; 2 casas de banho. Cave: 7 quartos; 2 cozinhas; 2 casas de banho; Lavandaria. No exterior, conta com logradouro com mais de 150 m², ideal para áreas de lazer, refeições ao ar livre ou eventos sociais. Situado numa localização privilegiada, no centro de Sintra, a poucos passos do ISCTE - Polo de Sintra, comércio local, farmácias, supermercados e todo o tipo de serviços. Apenas a 3 minutos a pé da estação de comboios da CP, com ligação direta a Lisboa e Cascais. Uma localização estratégica, tanto para turismo como para alojamento estudantil ou arrendamento de longa duração. Ideal para: - Investidores que procuram um imóvel pronto a rentabilizar; - Operadores turísticos ou empreendedores no setor hoteleiro; - Famílias ou grupos que desejem transformar o espaço em residência multifamiliar com rendimento. Sintra é uma das vilas mais visitadas de Portugal, famosa pelos seus palácios, castelos, jardins românticos e ambiente encantador - um destino turístico de eleição com procura constante durante todo o ano. Não perca esta oportunidade única de adquirir um edifício com história, charme e grande rentabilidade garantida. Para marcação de Visita, ligue-me! Sofia Cardigos, a sua Consultora Imobiliária. »» «« NÃO ENCONTRA O IMÓVEL QUE PROCURA ? Sabia que há proprietários que preferem que os seus imóveis não sejam publicitados? É verdade! Temos mais imóveis disponíveis no nosso portal REILAR e outros ainda que aguardam por si.
AMI: 2092
Ref. Externa: L5/03338
Id: 1257935
Inicie sessão para guardar este imóvel e aceder à sua lista de favoritos em qualquer dispositivo.
860.000 €
Área bruta : 222 m²
Prédio centenário em propriedade total em Colares, Sintra Localizado na vila de Colares, a apenas 100 metros da Igreja Paroquial de Sintra, com comércio tradicional à porta, este prédio centenário em propriedade total é uma oportunidade rara para viver ou investir numa das zonas mais autênticas e procuradas de Sintra. Principais características: * Edifício histórico com charme e identidade própria * Composto por 3 pisos de utilização independente, ideal para habitação, alojamento local ou projeto turístico * Logradouro exterior privativo, com potencial para jardim, zona de lazer ou estacionamento Edifício fica localizado a 4,5 km da praia das maçãs, 5,1 km da praia da Adraga e a 5,2 km das Azenhas do Mar. A poucos minutos do litoral e das paisagens naturais únicas da Serra de Sintra, este imóvel combina a tranquilidade da vila com o acesso rápido às praias e à zona histórica da vila de Sintra. Uma excelente oportunidade para recuperar um edifício com alma, história e localização estratégica. Agende já a sua visita e descubra todo o potencial deste imóvel singular em Colares. A Castelhana agora é Dils. Com mais de 25 anos de experiência no mercado imobiliário português, a Castelhana é agora Dils, uma empresa internacional com mais de 50 anos de história e presença em Itália, Países Baixos, Espanha e Portugal. Sob a marca Dils, continuamos a prestar serviços especializados de consultoria, compra, venda, arrendamento e desenvolvimento de imóveis residenciais. Estamos ao seu lado, com uma equipa dedicada nos nossos escritórios em Lisboa, Estoril, Comporta, Porto e Algarve, prontos para apoiar o seu próximo investimento. Quando o mundo muda, é hora de reescrever as regras. It's time to imagine your future space.
AMI: 3497
Ref. Externa: 31271
Id: 1254839
Inicie sessão para guardar este imóvel e aceder à sua lista de favoritos em qualquer dispositivo.
275.000 €
Área bruta : 306 m²
Prédio em propriedade total localizado em pleno centro da Venda Seca, inserido numa zona rural tranquila. A propriedade necessita de remodelação total, sendo ideal para quem procura um projeto de reabilitação com margem de valorização. Integrado num lote de cerca de 500m2, o imóvel é composto por um edifício principal de dois andares com aproveitamento de sótão e um edifício secundário, dispondo ainda de um logradouro privativo, oferecendo potencial para aproveitamento do espaço exterior A zona dispõe de boas acessibilidades às principais vias rodoviárias, nomeadamente CREL, A16 e IC19, que possibilitam o acesso a Lisboa com facilidade, estando ainda servida de transporte público. Trata-se de uma excelente oportunidade de investimento, tanto para reabilitação com fins habitacionais como para arrendamento ou revenda. Peça mais informações!
AMI: 14860
Ref. Externa: 5096
Id: 1226806
Inicie sessão para guardar este imóvel e aceder à sua lista de favoritos em qualquer dispositivo.
1.350.000 €
4 WCs
Área bruta : 883 m²
Excelente oportunidade de investimento!Vende-se Palacete em plena zona histórica de São Pedro de Sintra, com área útil 864m2, dividido por 17 assoalhadas em estilo clássico. O edificio foi construido em 1951, onde ocupa todo um quarteirão com 5 números de porta. Dois deles para habitação e 3 para comércio, onde ainda funciona em um café / restaurante e logradouro com 40m2, armazém e garagem para uns 4 carros.O imóvel é vendido sem inquilinos. Este prédio é para reconstrução. com enorme potencial para investimento turístico, como um pequeno hotel de charme ou dividi-lo em 5 a 6 apartamentos.A localização é privilegiada, situada na encosta da luxuriante Serra, em São Pedro de Sintra, sendo considerado um dos locais mais bonitos de Portugal. Perto de Palácios, Casas Senhoriais e Jardins Exóticos. O edifício fica a alguns minutos do Parque Nacional de Sintra, do Castelo dos Mouros, construído durante o período de dominação árabe, do Palácio da Pena construído por D. Fernando II, no século XIX, bem como do Palácio da Vila do século XI durante o domínio exclusivo na Península Ibérica. Este imóvel também fica próximo ao litoral, onde pode encontrar as melhores praias, como a Praia do Guincho, Praia das Maças, Praia Grande, etc. São Pedro é conhecido pelo seu comércio, pelas velharias e antiguidades, e pela proximidade com o centro histórico Património Cultural da Humanidade de Sintra, que, com um crescente número de visitantes, tem sabido manter as suas tradições e beleza patrimonial. A localidade exibe ainda uma orgulhosa Igreja Paroquial, consagrada a São Pedro, sendo uma das primeiras paróquias portuguesas, juntamente com três outras que D. Afonso Henriques construiu em Sintra, depois da tomada definitiva da Vila aos mouros, em 1147.Muito célebre é a Feira de São Pedro que se realiza todos os segundos e quartos domingos de cada mês no Largo D. Fernando II. Fica a 1 minuto onde está localizado este casarão. Esta é uma feira que origens remontam ao século XII, onde se encontra de tudo um pouco, sendo provavelmente a maior feira do concelho de Sintra.Lisboa fica uns escasso 30 minutos bem como o aeroporto internacional e uns 20 minutos as praias mais bonitas da Costa do Estoril, Praia Grande e Guincho. Características: Características Gerais - Para remodelar; Orientação - Nascente; Norte; Sul; Poente; Outras características - Garagem; Moradia;
AMI: 16107
Ref. Externa: 1218-312
Id: 1206089
Inicie sessão para guardar este imóvel e aceder à sua lista de favoritos em qualquer dispositivo.
2.250.000 €
32 Quartos
Área bruta : 1251 m²
Oportunidade de aquisição de prédio habitacional no Cacém, composto por 14 apartamentos (tipologias T2 e T3), duas garagens e elevador. Localizado junto à principal avenida da freguesia, numa zona com elevada procura e acessibilidade, o edifício encontra-se a poucos minutos da estação de comboio e do centro comercial. O prédio está atualmente 100% arrendado, com contratos recentes e, na sua maioria, sem renovação. Imóvel em bom estado, com custos mensais de manutenção e limpeza de apenas 250/mês. Gera um rendimento mensal de 11.400. Contacte-nos para mais informações ou agendamento de visita.
AMI: 23920
Ref. Externa: PRIV-032
Id: 1204119
Inicie sessão para guardar este imóvel e aceder à sua lista de favoritos em qualquer dispositivo.
Estes agentes são especialistas nesta zona:
Inicie sessão para ocultar este imóvel das suas pesquisas e manter a sua lista de resultados organizada.
Guardar favoritos
Este imóvel foi guardados nos seus favoritos com sucesso.
Para poder guardar pesquisa deverá ter a sua sessão iniciada.
Caso não tenha uma conta, deverá criar uma.
A sua pesquisa foi guardada com sucesso!
© Copyright 2023 | CASACERTA. All rights reserved
Este site utiliza cookies. Ao navegar no site estará a consentir a sua utilização.
Para mais informações sobre os cookies pode consultar a
política de privacidade.