Lista
Comprar
Arrendar
3 Quartos
3 WCs
Área bruta : 250 m²
Moradia para restauro em pleno centro da Póvoa de Varzim. Com enorme potencial, acompanhada de estudo prévio com imagens meramente indicativas, que ilustram uma possível requalificação do espaço. Inserido em lote com 637 m2 e com excelente orientação solar (nascente/poente). Localização privilegiada, a cerca de 400 metros da praia , Avenida dos Banhos , Casino e Marina. Com todo o tipo de comércio, serviços e restauração nas imediações, resulta numa combinação perfeita para quem procura uma moradia no centro. Excelente espaço exterior onde poderá desfrutar de agradáveis momentos em família e amigos. Com 180 m2 de área bruta e com possibilidade de ampliação. Venha conhecer esta oportunidade exclusiva no centro da cidade !!! _ Beatriz Real Estate - AMI 5921 With more than 20 years of experience, we have a vast knowledge of the real estate market in the region, with special focus on Vila do Conde and Póvoa de Varzim. In every deal we leave a bond of friendship and satisfaction, but also a feeling of trust and transparency, besides the familiar and personal feeling that is not explained, it is felt. We are native of Vila do Conde and Póvoa de Varzim, so we know very well what kind of neighborhood best fits your family and the type of investment you want to make. As official credit intermediaries, we are aware of the conditions and requirements necessary to obtain the best possible housing loan. We take care of all the bureaucratic paperwork leading up to the purchase/sale, everything, so that you only have one thing to worry about: When would you like to start the moving? _ Beatriz Inmobiliaria - AMI 5921 Con más de 20 años de experiencia, tenemos un amplio conocimiento del mercado inmobiliario de la región, con especial atención a Vila do Conde y Póvoa de Varzim. En cada trato dejamos un vínculo de amistad y satisfacción, pero también un sentimiento de confianza y transparencia, además del sentimiento familiar y personal que no se explica, se siente. Somos nativos de Vila do Conde y Póvoa de Varzim, por lo que sabemos bien qué tipo de barrio se adapta mejor a su familia y al tipo de inversión que desea realizar. Como intermediarios oficiales de crédito, conocemos las condiciones y requisitos necesarios para obtener el mejor préstamo hipotecario posible. Nos encargamos de todo el proceso burocrático hasta la realización de la compra/venta, todo, para que usted sólo se preocupe de una cosa: ¿Cuándo quieres comenzar con la mudanza?
AMI: 5921
Ref. Externa: vc/5683_2
Id: 1714541
Inicie sessão para guardar este imóvel e aceder à sua lista de favoritos em qualquer dispositivo.
4 Quartos
4 WCs
Área bruta : 463 m²
Bem-vindo a esta deslumbrante moradia totalmente renovada, situada na pitoresca cidade da Póvoa de Varzim. Com 4 quartos e 4 casas de banho, esta propriedade oferece todo o conforto, espaço e funcionalidade que uma família procura. Com uma área total de 463,15 m², distribui-se por três pisos amplos, proporcionando uma excelente sensação de luminosidade e liberdade. Ao entrar, destaca-se de imediato o charme da renovação e a atenção ao detalhe. A moradia conta com cave, adega de vinhos, lavandaria e sótão — espaços versáteis, ideais tanto para convívio como para momentos de tranquilidade. No exterior, poderá desfrutar de um agradável terraço, varanda com vista panorâmica sobre a cidade e um jardim sereno, perfeito para relaxar. Entre as comodidades, destacam-se: Garagem Sistema de vídeo-porteiro Alarme de segurança Janelas com vidro dupla A localização central permite fácil acesso a restaurantes, supermercados, escolas e espaços verdes, garantindo uma excelente qualidade de vida no dia a dia. Com uma orientação solar privilegiada e uma localização estratégica, esta moradia é a escolha ideal para quem procura viver com conforto, conveniência e qualidade. Não perca esta oportunidade — marque já a sua visita. ------------------------------- Somos uma empresa com vasta experiência na mediação imobiliária. Fundada em 1999 e desde 2002 no mercado imobiliário de Vila do Conde e Póvoa de Varzim. Contamos com profissionais que procuram a excelência na qualidade dos serviços prestados com o objetivo de conseguirem a satisfação total dos nossos clientes. Trabalhamos, para satisfazer um dos nossos objetivos da mediação imobiliária, o sucesso na transação de imóveis, satisfazendo assim tanto os promotores como as famílias compradoras e vendedoras. A si que nos procura para vender temos para lhe oferecer: - uma vasta quantidade de ferramentas profissionais - um conjunto de meios sofisticados que incluem uma extensa e dinâmica rede informática, com exportação dos nossos imóveis para vários portais e motores de busca em Portugal e no estrangeiro. - dispomos de uma equipa comercial altamente formada, com vários anos de experiência no ramo, dotada das melhores ferramentas imobiliárias existentes. - uma equipa com valências nas áreas de estudo de mercado, analise financeira, formação comercial, negociação avançada e fotografia profissional. - partilharemos consigo, os valores de mercado, tempos médios de venda de imóveis e outras informações do mercado imobiliário. A si que nos escolheu como seu mediador para a compra da sua nova casa fique a saber: - estamos em permanentemente acompanhamento do mercado e procuramos determinar com rigor o fluxo do mesmo e as expectativas dos promotores através do contacto preferencial. - temos acesso a uma base de dados dos imóveis disponíveis para venda nos nossos concelhos, podendo-o aconselhar eficazmente qual a melhor solução para si. - garantimos total segurança na sua compra, garantindo o desenvolvimento processual correto. - acompanhamos o processo de escritura da sua casa garantido que o sucesso da mesma sem sobressaltos. - encontramos, por via de intermediarias de crédito certificados, a melhor solução de financiamento para a sua compra. - apoiamos e orientamos o seu processo pós-venda, elucidando-o nos passos seguintes à compra de um imóvel. Fique com a certeza que desenvolvemos o nosso trabalho com muito gosto, satisfação, garantido total segurança aos envolvidos no negócio, zero preocupações a todos e facilitando todo o processo burocrático e financeiro. Acreditamos piamente que na IBC encontrará uma nova imobiliária, forte nos valores, competente nas tarefas, com imagem renovada que a fará atingir uma nova era no mercado imobiliário. Venha visitar connosco os apartamentos e moradias com que sempre sonhou.
AMI: 5308
Ref. Externa: IBC-0621
Id: 1712572
Inicie sessão para guardar este imóvel e aceder à sua lista de favoritos em qualquer dispositivo.
375.000 €
3 Quartos
Área bruta : 220 m²
Moradia T3 Nova | Rates – Póvoa de VarzimApresentamos esta exclusiva moradia T3 em fase de construção, localizada em Rates, numa zona tranquila e residencial, a poucos minutos da Póvoa de Varzim.Pensada para proporcionar conforto, funcionalidade e qualidade de vida, esta moradia destaca-se pela sua construção sólida em betão e pelos elevados padrões de isolamento térmico, garantindo eficiência energética e bem-estar ao longo de todo o ano.Inserida num lote com cerca de 700 m², distribui-se por dois pisos:Rés do chão: Sala e cozinha em conceito open space, criando um ambiente amplo, moderno e luminoso Lavandaria independente Casa de banho de serviço Acesso direto ao exterior GaragemPrimeiro andar: Três quartos com roupeiros embutidos Uma suíte com casa de banho privativa Casa de banho completa de apoio aos dois quartosNo exterior, contará com acabamento em capoto, reforçando o desempenho térmico e a eficiência da habitação. A moradia ficará ainda preparada para instalação de ar condicionado.O prazo contratual de conclusão é de 18 meses, estando neste momento prevista a sua conclusão para o final do ano.Uma excelente oportunidade para quem procura uma moradia nova, com qualidade de construção, espaço exterior generoso e localização tranquila, mantendo proximidade às principais vias e serviços.Fotos são de moradia equivalente já construída.Agende já a sua visita, sem compromisso!
AMI: 23705
Ref. Externa: VR174
Id: 1700231
Inicie sessão para guardar este imóvel e aceder à sua lista de favoritos em qualquer dispositivo.
4 Quartos
3 WCs
Área bruta : 280 m²
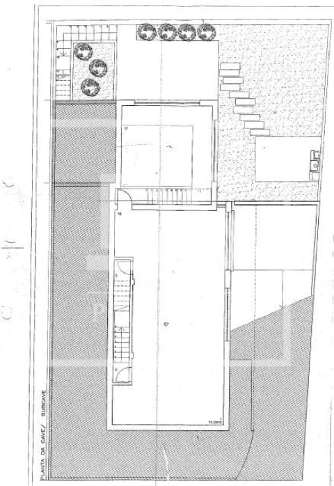
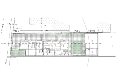
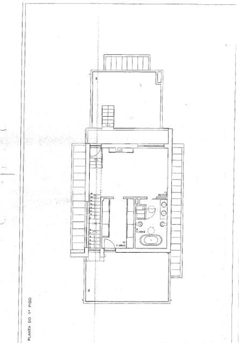
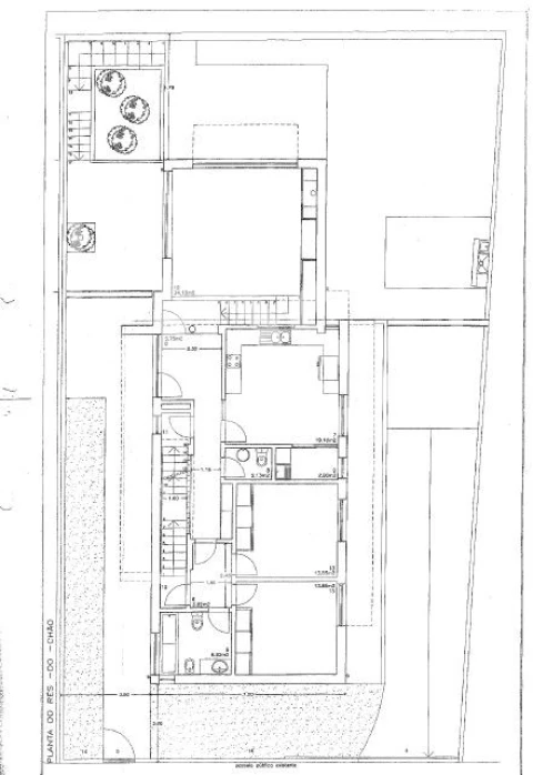
Moradia para reconstruir no centro da Póvoa de Varzim, inserida em terreno com cerca de 600 m2, constituída por R/C + dois pisos.. A moradia beneficia de uma excelente localização, com orientação solar Nascente/Poente, em zona consolidada com as acessibilidades e arruamentos já requalificados.. O imóvel é vendido com projeto aprovado, conforme consta nas imagens obtidas através do projeto 3D.. Foi idealizada uma moradia com quatro quartos, escritório com comunicação para a sala (através de uma espécie de mezanino), garagem para duas viaturas, pátio interior e jardim com piscina.. Trata-se de uma oportunidade única de poder reconstruir uma moradia com terreno no centro da Póvoa de Varzim, com tudo nas imediações (proximidade a Rua da Junqueira, Teatro Garrett, Mercado Municipal, etc).. Marque a sua Visita!
AMI: 11693
Ref. Externa: NOR21403/11675
Id: 1699836
Inicie sessão para guardar este imóvel e aceder à sua lista de favoritos em qualquer dispositivo.
3 Quartos
2 WCs
Área bruta : 853 m²
Moradia com uma área de 220m2 para Restauro, com 853 m2 de terreno. Freguesia de Aguçadoura. Ideal investimento para construção da sua moradia de sonho. Destaques da propriedade: Poço Estufa Boa exposição solar Junto ao centro da Vila e a apenas 2 minutos da praia Zona central Proximidades de todos os serviços e comércio Agende já a sua visita e venha conhecer o seu futuro lar!
AMI: 20665
Ref. Externa: GS1/31071918
Id: 1699648
Inicie sessão para guardar este imóvel e aceder à sua lista de favoritos em qualquer dispositivo.
2 Quartos
1 WCs
Área bruta : 202 m²
Esta encantadora moradia para renovar, localizada na cidade costeira de Póvoa de Varzim, é uma oportunidade única para criar a casa dos seus sonhos à beira-mar. Com dois quartos, uma casa de banho , cozinha , sala e sótão , a propriedade ocupa um terreno generoso de 593,51 metros quadrados. Construída em 1949, a casa tem um potencial incrível para se transformar num refúgio acolhedor e moderno, com uma área bruta total de 202,46 metros quadrados. A localização privilegiada oferece deslumbrantes vistas para o mar, tornando-a o cenário ideal para relaxar e desfrutar do sol e da brisa marítima. Além disso, a propriedade inclui um jardim privado. Com certificação energética de classe F, a casa inclui todas as comodidades necessárias, como água da rede e instalação saneamento básico. A sua proximidade com restaurantes, transportes públicos, praias e parques infantis torna-a ideal para quem procura uma vivência costeira conveniente e relaxante. Esta moradia tem um enorme potencial para se tornar um refúgio à beira-mar que sempre desejou. Agende já a sua visita e comece a transformar esta casa num lar!
AMI: 12069
Ref. Externa: DSGMRCIF120
Id: 1694971
Inicie sessão para guardar este imóvel e aceder à sua lista de favoritos em qualquer dispositivo.
3 Quartos
4 WCs
Área útil : 230 m²
Apresentamos esta elegante moradia térrea de arquitetura contemporânea, implantada num lote de 476 m² e com 230 m² de área de implantação, pensada para proporcionar conforto, funcionalidade e uma excelente ligação entre os espaços interiores e exteriores. A zona social destaca-se por um amplo espaço em open space com cerca de 60,5 m², onde se integram cozinha, sala de jantar e sala de estar, criando um ambiente luminoso e perfeito para convívio. A cozinha é complementada por despensa (5,5 m²) e lavandaria independente (4,5 m²), garantindo maior organização e praticidade no dia a dia. Na zona privada, a moradia dispõe de três quartos: • Duas suítes confortáveis, ideais para família ou convidados • Uma suíte principal generosa, com 18 m², closet (5 m²) e casa de banho privativa (5 m²) Existe ainda uma casa de banho de apoio e um hall de distribuição que assegura privacidade entre as áreas da casa. No exterior, a propriedade conta com garagem fechada para dois carros (37,5 m²) e espaço adicional de estacionamento no logradouro. O terreno envolvente permite criar zonas ajardinadas, área de lazer ou até piscina, valorizando ainda mais o imóvel. Esta moradia foi concebida para quem procura conforto, modernidade e funcionalidade num único piso, proporcionando uma vivência prática e harmoniosa. --------------------------- Somos uma empresa com vasta experiência na mediação imobiliária. Fundada em 1999 e desde 2002 no mercado imobiliário de Vila do Conde e Póvoa de Varzim. Contamos com profissionais que procuram a excelência na qualidade dos serviços prestados com o objetivo de conseguirem a satisfação total dos nossos clientes. Trabalhamos, para satisfazer um dos nossos objetivos da mediação imobiliária, o sucesso na transação de imóveis, satisfazendo assim tanto os promotores como as famílias compradoras e vendedoras. A si que nos procura para vender temos para lhe oferecer: - uma vasta quantidade de ferramentas profissionais - um conjunto de meios sofisticados que incluem uma extensa e dinâmica rede informática, com exportação dos nossos imóveis para vários portais e motores de busca em Portugal e no estrangeiro. - dispomos de uma equipa comercial altamente formada, com vários anos de experiência no ramo, dotada das melhores ferramentas imobiliárias existentes. - uma equipa com valências nas áreas de estudo de mercado, analise financeira, formação comercial, negociação avançada e fotografia profissional. - partilharemos consigo, os valores de mercado, tempos médios de venda de imóveis e outras informações do mercado imobiliário. A si que nos escolheu como seu mediador para a compra da sua nova casa fique a saber: - estamos em permanentemente acompanhamento do mercado e procuramos determinar com rigor o fluxo do mesmo e as expectativas dos promotores através do contacto preferencial. - temos acesso a uma base de dados dos imóveis disponíveis para venda nos nossos concelhos, podendo-o aconselhar eficazmente qual a melhor solução para si. - garantimos total segurança na sua compra, garantindo o desenvolvimento processual correto. - acompanhamos o processo de escritura da sua casa garantido que o sucesso da mesma sem sobressaltos. - encontramos, por via de intermediarias de crédito certificados, a melhor solução de financiamento para a sua compra. - apoiamos e orientamos o seu processo pós-venda, elucidando-o nos passos seguintes à compra de um imóvel. Fique com a certeza que desenvolvemos o nosso trabalho com muito gosto, satisfação, garantido total segurança aos envolvidos no negócio, zero preocupações a todos e facilitando todo o processo burocrático e financeiro. Acreditamos piamente que na IBC encontrará uma nova imobiliária, forte nos valores, competente nas tarefas, com imagem renovada que a fará atingir uma nova era no mercado imobiliário. Venha visitar connosco os apartamentos e moradias com que sempre sonhou.
AMI: 5308
Ref. Externa: IP-1518
Id: 1694838
Inicie sessão para guardar este imóvel e aceder à sua lista de favoritos em qualquer dispositivo.
1 Quartos
Área bruta : 58 m²
Apresentamos esta moradia térrea com enorme potencial, localizada numa zona tranquila e privilegiada de Beiriz, ideal para quem procura personalizar a sua futura casa. O imóvel dispõe de dois quartos, uma área de estar e cozinha, e a possibilidade de aproveitamento do sótão, permitindo criar mais espaços habitáveis ou até uma suite adicional. A propriedade conta com um jardim, perfeito para momentos de lazer ou convívio familiar, e inclui anexos que podem ser adaptados conforme a sua imaginação – desde espaço de arrumos ou ateliers. Esta moradia oferece a oportunidade de restauro completo, permitindo combinar o charme de uma construção tradicional com soluções modernas, criando uma residência à medida das suas necessidades e estilo de vida. Localizada em Beiriz, próximo de serviços, comércio e transportes, representa uma excelente oportunidade de investimento ou a realização de um projeto residencial único, com grande potencial de valorização. Marque visita A MILLION GROUP surge da união de sinergias, da complementaridade e experiência dos seus fundadores. Que iniciaram a sua colaboração sob a matriz de uma marca internacional e decidem criar um novo conceito para o setor imobiliário. Sentiram os desafios com uma perspetiva mais universal e flexível na abordagem do mercado imobiliário, e a criação da marca MILLION GROUP vem responder a todas as necessidades. Era preciso dar corpo a uma filosofia e uma forma de estar no mercado, nova e diferenciadora. Os nossos valores CONFIANÇA, PROXIMIDADE, MATURIDADE, UNIVERSALIDADE. CONFIANÇA – Conquistada interna e externamente pelo rigor e a lealdade na relação que estabelecemos com os nossos Consultores, Parceiros, Clientes e Amigos. PROXIMIDADE – Uma relação sincera, com acompanhamento, apoio e disponibilidade permanente. MATURIDADE – Um património de experiência e conhecimento no mercado imobiliário. UNIVERSALIDADE – Baseada numa presença abrangente em todos os segmentos de mercado, a profissionalizar os nossos consultores com foco na satisfação dos nossos clientes. O que fazemos "Concretizamos sonhos" Uma verdadeira síntese emocional do que fazemos todos os dias. Conciliamos compradores e vendedores, promovemos negócios e apoiamos a sua concretização.
AMI: 22034
Ref. Externa: MGG00028
Id: 1687933
Inicie sessão para guardar este imóvel e aceder à sua lista de favoritos em qualquer dispositivo.
425.000 €
6 Quartos
1 WCs
Área bruta : 242 m²
Moradia em Aver-o-Mar - A 50 Metros da Praia | 898 m² de Terreno Se sempre sonhou viver junto ao mar ou investir numa zona premium do litoral norte, esta é uma oportunidade rara. Localizada em Aver-o-Mar, a apenas 50 metros da praia, esta moradia oferece espaço, versatilidade e um enorme potencial de valorização. Características Principais: 6 quartos com boas áreas 2 cozinhas 1 casa de banho Anexos independentes Terreno com 898 m² Excelente exposição solar Potencial do Imóvel: Ideal para habitação própria permanente Perfeita para casa de férias Excelente oportunidade para alojamento local Possibilidade de remodelação e valorização Espaço exterior amplo com potencial para jardim, piscina ou ampliação Localização Premium: A escassos passos da praia Zona tranquila e muito procurada Comércio e serviços nas proximidades Excelente acessibilidade Imóveis com esta localização e dimensão de terreno são cada vez mais raros no mercado. Se procura investir numa das zonas mais valorizadas da Póvoa de Varzim, esta pode ser a oportunidade certa.
AMI: 17761
Ref. Externa: HC0764
Id: 1678900
Inicie sessão para guardar este imóvel e aceder à sua lista de favoritos em qualquer dispositivo.
850.000 €
3 Quartos
Área bruta : 139 m²
Moradia T3+1 com Potencial Único em Estela – Póvoa de VarzimLocalizada na tranquila freguesia de Estela, no concelho de Póvoa de Varzim, esta moradia de dois pisos oferece versatilidade, áreas generosas e um enorme potencial tanto para habitação própria como para investimento.Inserida num lote com 840 m², a propriedade dispõe de uma área de implantação de 139 m², combinando conforto, funcionalidade e múltiplas possibilidades de utilização.🏡 Distribuição do ImóvelPiso inferior: • 2 quartos (incluindo opções partilhadas) • 1 WC independente • 2 duches adicionais • Cozinha interior equipada • Cozinha de apoio no bar • Espaço dedicado a yoga / bem-estar • Zona de arrumos • Lavandaria • GaragemExiste ainda um espaço adicional com beliche, ideal para visitas, apoio extra ou otimização de ocupação.Piso superior: • 2 quartos amplos (um com espaço para closet) • Escritório independente • 2 casas de banho completas • Casa de banho de grandes dimensões✨ Pontos Fortes✔ Excelente exposição solar✔ Lote amplo com potencial exterior✔ Layout versátil (ideal para famílias numerosas ou investimento)✔ Várias casas de banho – conforto acrescido✔ Espaço para teletrabalho✔ Potencial para projeto de alojamento ou turismo📍 LocalizaçãoSituada numa zona calma e residencial, a poucos minutos da praia de Estela, campos de golfe e acessos rápidos à cidade da Póvoa de Varzim e principais vias rodoviárias.💼 Ideal para: • Família numerosa • Projeto de co-living • Alojamento turístico • Espaço multifuncional com áreas de bem-estarUma oportunidade diferenciadora numa zona em crescente valorização.Referência: ASP26009Porquê escolher a AS Imobiliária?Com mais de 18 anos no ramo imobiliário e milhares de famílias felizes, dispomos de 10 agências estrategicamente localizadas, para o servir com proximidade, corresponder à suas expectativas e ajudá-lo a adquirir a sua casa de sonho. Compromisso, Competência e Confiança são os nossos valores que entregamos aos nossos Clientes na hora de comprar, arrendar ou vender o seu imóvel.A nossa prioridade é a sua Felicidade!Na AS Imobiliária somos apaixonados por vender casas!Especialistas imobiliários em Vizela ; Guimarães ; Felgueiras ; Lousada ; Santo Tirso ; Porto ; Braga ; Trofa; Lisboa ; Fafe ;
AMI: 13249
Ref. Externa: ASP26009
Id: 1664132
Inicie sessão para guardar este imóvel e aceder à sua lista de favoritos em qualquer dispositivo.
429.900 €
4 Quartos
2 WCs
Área útil : 146 m²
?✨ Apresento-lhe uma moradia onde o espaço, a tranquilidade e a qualidade de vida se encontram. Tenho o prazer de lhe apresentar esta magnífica moradia individual T4, localizada a poucos minutos da Póvoa de Varzim e de Esposende, ideal para quem procura viver com conforto, privacidade e em contacto com a natureza. Inserida num generoso terreno de 1.250 m², esta propriedade oferece amplos espaços interiores e exteriores, com excelente exposição solar nas quatro frentes. No interior encontra quatro quartos com roupeiros embutidos, duas casas de banho completas, uma sala acolhedora e um amplo salão de convívio com cozinha regional e fogão a lenha, perfeito para criar momentos únicos em família ou entre amigos. A casa dispõe ainda de cozinha principal equipada, sótão, varandas com vistas desafogadas sobre o campo e zonas verdes, lareira e aquecimento a gás canalizado, proporcionando conforto em todas as estações do ano. No exterior, poderá desfrutar de um bonito jardim, logradouro murado e estacionamento coberto para até 6 viaturas, com portão automático — um espaço pensado para quem valoriza liberdade e tranquilidade. A localização é outro dos seus grandes pontos fortes, próxima de escolas, transportes, comércio, serviços e acessos rápidos às principais vias. ✨ Se procura mais do que uma casa — se procura um lugar para viver momentos, criar memórias e desfrutar da vida — esta moradia pode ser exatamente o que procura. ✔️ Ideal para habitação própria ou casa de fim de semana ✔️ Possibilidade de permuta Venha Visitar!!! Siga-nos nas nossas redes sociais! WEBSITE: https://www.lardesonho.pt/barcelos/ FACEBOOK: https://www.facebook.com/lardesonhobarcelospagina INSTAGRAM: https://www.instagram.com/lardesonhobarcelos/ YOUTUBE: https://www.youtube.com/@lardesonhobarcelos2733 A história de sucesso da rede imobiliária LardeSonho deve-se a um serviço de excelência, personalizado para cada cliente, marcado por três premissas- SATISFAÇÃO- RECOMENDAÇÃO-FIDELIZAÇÃO. É a Maior Rede Imobiliária 100% Nacional tendo 24 agências distribuídas por todo o país com mais de 400 Consultores, o que garante uma presença forte junto de potenciais compradores e investidores. A Rede Imobiliária LardeSonho tem como ferramentas uma equipa de profissionais dinâmicos, motivados, com uma vasta experiência; uma carteira de imóveis aos preços mais competitivos do mercado; uma atitude proactiva que se carateriza por inúmeras iniciativas de marketing, campanhas, eventos publicitários, promovendo e divulgando com sucesso a sua carteira de imóveis em cada localidade onde tem Agência. Aliados a parcerias com instituições bancárias, gabinetes de arquitetura, empresas de construção, marketing e publicidade, a rede Imobiliária LardeSonho ajuda os seus clientes a encontrar a solução adequada às suas necessidades. ---- ?✨ I present to you a villa where space, tranquility, and quality of life come together. I am pleased to present this magnificent 4-bedroom detached villa, located just a few minutes from Póvoa de Varzim and Esposende, ideal for those looking to live in comfort, privacy, and in contact with nature. Set on a generous 1,250 m² plot, this property offers ample indoor and outdoor spaces, with excellent sun exposure on all four sides. Inside, you will find four bedrooms with built-in wardrobes, two full bathrooms, a cozy living room, and a large lounge with a regional kitchen and wood-burning stove, perfect for creating unique moments with family or friends. The house also has an equipped main kitchen, attic, balconies with unobstructed views of the countryside and green areas, fireplace, and piped gas heating, providing comfort in all seasons. Outside, you can enjoy a beautiful garden, walled patio, and covered parking for up to 6 cars with an automatic gate—a space designed for those who value freedom and tranquility. The location is another of its great strengths, close to schools, transportation, shops, services, and quick access to major roads. ✨ If you are looking for more than just a house—if you are looking for a place to live moments, create memories, and enjoy life—this villa may be exactly what you are looking for. ✔️ Ideal for primary residence or weekend home ✔️ Possibility of exchange ? Contact us for more information and schedule your visit now! WEBSITE: https://www.lardesonho.pt/barcelos/ FACEBOOK: https://www.facebook.com/lardesonhobarcelospagina INSTAGRAM: https://www.instagram.com/lardesonhobarcelos/ YOUTUBE: https://www.youtube.com/@lardesonhobarcelos2733 The success story of the LardeSonho real estate network is due to a service of excellence, personalised for each client, marked by three premises - SATISFACTION - RECOMMENDATION - RELEASE. It is the Largest 100% National Real Estate Network with 24 branches throughout the country with more than 400 Consultants, which guarantees a strong presence among potential buyers and investors. The LardeSonho Real Estate Network has as its tools a team of dynamic, motivated professionals with vast experience; a portfolio of properties at the most competitive prices on the market; a proactive attitude characterised by numerous marketing initiatives, campaigns and advertising events, successfully promoting and publicising its property portfolio in every location where it has an agency. Combined with partnerships with banks, architectural offices, construction, marketing and advertising companies, the LardeSonho Real Estate network helps its clients find the right solution for their needs.
AMI: 17319
Ref. Externa: 265-M-02179
Id: 1655608
Inicie sessão para guardar este imóvel e aceder à sua lista de favoritos em qualquer dispositivo.
4 Quartos
3 WCs
Área bruta : 220 m²
Moradia T4 em Construção. Argivai, Póvoa de Varzim. Excelente moradia, atualmente a iniciar construção, está localizada em Argivai, Póvoa de Varzim. Com uma área de construção generosa com cerca de 230m2, a propriedade está inserida num lote de cerca de 300m2, desfrutando de uma posição privilegiada com três frentes de exposição solar. Arquitetura e design contemporâneo e de construção moderna de qualidade superior. De estilo minimalista caracterizado por linhas direitas e sóbrias. Os interiores são igualmente simples e sofisticados, com uma excelente luminosidade e uma distribuição inteligente das áreas, garantindo conforto e praticidade. A qualidade de construção e os materiais escolhidos são de padrão superior, refletindo o cuidado com cada detalhe e um toque de requinte em todos os pormenores. Outro aspeto de destaque é o jardim com uma ótima área. O local perfeito para momentos de convívio com a família e amigos, enquanto a envolvência rural e natural proporciona uma tranquilidade verdadeiramente paradisíaca. A moradia nos acabamentos interiores inclui características modernas. Excelentes áreas, pavimentos em madeira, excelente luminosidade, boa orientação solar, como uma ampla sala em openspace com ligação à cozinha e uma lavandaria sala voltada a sul e ligada diretamente ao jardim. Três quartos de banho, sendo um deles uma ótima suite, amplos roupeiros embutidos, tetos falsos com focos, caixilharia de elevada qualidade com corte térmico e vidros duplos, estores elétricos, pré-instalação de ar-condicionado, porta de segurança, vídeo porteiro e garagem fechada. Dispõe de amplas áreas em todas as divisões, privilegia a luz natural conferindo maior luminosidade e ambientes sofisticados. Elevado padrão de qualidade com acabamentos de eleição e selecionados, contribuindo para o conforto e o bem estar que procura. Localizada numa zona calma e privilegiada, em constante valorização, oferecendo excelentes acessos às principais vias de comunicação e atrações da cidade. Apenas a 5 minutos da entrada da A28 e do centro da cidade, a localização é verdadeiramente conveniente para quem procura praticidade e conforto, beneficiando ainda de bons acessos às principais vias de comunicação e atrações das cidades de Vila do Conde e da Póvoa de Varzim. Esta localização e bons acessos colocam esta excelente moradia muito próxima de todas as comodidades que a cidade lhe oferece, mesmo estando numa zona mais calma, podendo assim usufruir de uma maior qualidade de vida. Mapa de acabamentos: - Tetos falsos com placas de gesso cartonado, pintado de cor branca. - Pavimentos em flutuante, cor à escolha. - Iluminação encastrada com focos. - Escadas em madeira, com vidro na lateral. - Iluminação encastrada com focos. - Estores elétricos, térmicos em alumínio. - Móveis de cozinha com frente termolaminada de acordo com o projeto, com tampo em granizo. - Portas interiores em madeira, lacadas de cor branca. - Rodapés, lacados de cor branca. - Roupeiros embutidos. - Puxadores e ferragem em aço inox. - Portão com motor automático. - Pavimento exterior e interior com cimento afagado mecanicamente. - Portão de entrada em alumínio, com motor automático. - Pré-instalação de ar condicionado. - Bomba de calor elétrica 300L. - Garagem. Aproveite a oportunidade de acompanhar a construção da moradia dos seus sonhos! ---------------------------------------------------------------------------------------------------- 4-Bedroom House Under Construction. Argivai, Póvoa de Varzim. Excellent house, currently under construction, located in Argivai, Póvoa de Varzim. With a generous construction area of approximately 230m2, the property is situated on a plot of approximately 300m2, enjoying a privileged position with three sun-facing sides. Contemporary architecture and design, and superior quality modern construction. Minimalist style characterized by straight and sober lines. The interiors are equally simple and sophisticated, with excellent natural light and intelligent distribution of areas, guaranteeing comfort and practicality. The quality of construction and the materials chosen are of a superior standard, reflecting attention to detail and a touch of refinement in every aspect. Another highlight is the garden with its excellent area. The perfect place for moments of conviviality with family and friends, while the rural and natural surroundings provide a truly paradisiacal tranquility. The villa's interior finishes include modern features. Excellent areas, wooden floors, excellent natural light, good sun exposure, such as a large open-plan living room connected to the kitchen and a laundry room facing south and directly connected to the garden. Three bathrooms, one of which is a great en-suite, large built-in wardrobes, ceilings with reflectors, high-quality window frames with thermal break and double glazing, electric blinds, pre-installation for air conditioning, security door, video intercom and closed garage. It has spacious areas in all rooms, prioritizing natural light, providing greater brightness and sophisticated environments. High standard of quality with carefully selected finishes, contributing to the comfort and well-being you seek. Located in a quiet and privileged area, constantly appreciating in value, offering excellent access to the main roads and attractions of the city. Just 5 minutes from the A28 motorway entrance and the city center, the location is truly convenient for those seeking practicality and comfort, also benefiting from good access to the main roads and attractions of the cities of Vila do Conde and Póvoa de Varzim. This location and good access place this excellent house very close to all the amenities the city offers, even though it is in a quieter area, thus allowing you to enjoy a higher quality of life. Finishes map: - False ceilings with plasterboard panels, painted white. - Floating floors, color to be chosen. - Recessed lighting with spotlights. - Wooden staircase with glass on the side. - Recessed lighting with spotlights. - Electric, thermal aluminum blinds. - Kitchen furniture with thermolaminated front as per project, with granite countertop. - Internal wooden doors, lacquered white. - White lacquered baseboards. - Built-in wardrobes. - Stainless steel handles and hardware. - Automatic gate. - Mechanically smoothed cement flooring inside and out. - Aluminum entrance gate with automatic motor. - Pre-installation for air conditioning. - 300L electric heat pump. - Garage. Take advantage of the opportunity to follow the construction of your dream home! Enviar feedback e opiniões ----------------------------------------------------------------------------------------------------- Beatriz Imobiliária - AMI 5921 Com mais de 20 anos de experiência, dispomos de um vasto conhecimento do mercado imobiliário da região, com especial foco em Vila do Conde e Póvoa de Varzim. Em todos os negócios deixamos uma ligação de amizade e satisfação, mas também um sentimento de confiança e transparência, além do sentimento familiar e pessoal que não se explica, sente-se. Somos naturais de Vila do Conde e Póvoa de Varzim, por isso, sabemos bem qual o tipo de vizinhança que melhor se enquadra na sua família e no tipo de investimento que pretende realizar. Como intermediários oficiais de crédito, estamos a par das condições e requisitos necessários à obtenção do melhor crédito habitação possível. Encarregamo-nos de todo o processo burocrático à realização da compra/venda, tudo, para que se preocupe apenas com uma coisa: Quando quer começar as mudanças? _ Beatriz Imobiliária - AMI 5921 With over 20 years of experience, we have a vast knowledge of the real estate market in the region, with a special focus on Vila do Conde and Póvoa de Varzim. In all businesses, we leave a bond of friendship and satisfaction, but also a feeling of trust and transparency, in addition to the family and personal feeling that cannot be explained. Sit down. We are from Vila do Conde and Póvoa de Varzim, so we know very well which type of neighborhood best fits your family and the type of investment you want to make. As official credit intermediaries, we are aware of the conditions and requirements necessary to obtain the best mortgage loan possible. We take care of the entire bureaucratic process to carry out the purchase/sale, everything, so that you can only worry about one thing: When do you want to start the changes? _ Beatriz Imobiliária - AMI 5921 Con más de 20 años de experiencia, tenemos un vasto conocimiento del mercado inmobiliario de la región, con especial foco en Vila do Conde y Póvoa de Varzim. En todos los negocios dejamos un vínculo de amistad y satisfacción, pero también un sentimiento de confianza y transparencia, además del sentimiento familiar y personal que no se explica. Siéntate. Somos de Vila do Conde y Póvoa de Varzim, por lo que sabemos muy bien qué tipo de barrio se adapta mejor a tu familia y el tipo de inversión que quieres realizar. Como intermediarios oficiales de crédito, conocemos las condiciones y requisitos necesarios para obtener el mejor préstamo hipotecario posible. Nos encargamos de todo el proceso burocrático para realizar la compra / venta, de todo, para que tú solo puedas preocuparte de una cosa: ¿Cuándo quieres comenzar con los cambios? _ Beatriz Imobiliária - AMI 5921 Avec plus de 20 ans d'expérience, nous avons une vaste connaissance du marché immobilier de la région, avec un accent particulier sur Vila do Conde et Póvoa de Varzim. Dans toutes les entreprises, nous laissons un lien d'amitié et de satisfaction, mais aussi un sentiment de confiance et de transparence, en plus du sentiment familial et personnel qui ne s'explique pas. S'asseoir. Nous sommes de Vila do Conde et de Póvoa de Varzim, nous savons donc très bien quel type de quartier correspond le mieux à votre famille et le type d'investissement que vous souhaitez faire. En tant qu'intermédiaires officiels de crédit, nous connaissons les conditions et exigences nécessaires pour obtenir le meilleur prêt hypothécaire possible. Nous nous occupons de tout le processus bureaucratique pour effectuer l'achat/la vente, tout, afin que vous ne puissiez vous soucier que d'une chose : Quand voulez-vous commencer les changements ? _ Beatriz Imobiliária - AMI 5921 Mit über 20 Jahren Erfahrung verfügen wir über umfassende Kenntnisse des Immobilienmarktes in der Region, mit besonderem Fokus auf Vila do Conde und Póvoa de Varzim. In allen Betrieben hinterlassen wir neben dem nicht zu erklärenden familiären und persönlichen Gefühl ein Band der Freundschaft und Zufriedenheit, aber auch ein Gefühl von Vertrauen und Transparenz. Hinsetzen. Wir kommen aus Vila do Conde und Póvoa de Varzim, daher wissen wir sehr gut, welche Art von Nachbarschaft am besten zu Ihrer Familie passt und welche Art von Investition Sie tätigen möchten. Als offizieller Kreditvermittler kennen wir die Voraussetzungen und Voraussetzungen, um den bestmöglichen Hypothekarkredit zu erhalten. Wir übernehmen den gesamten bürokratischen Prozess bis hin zur Abwicklung des Kaufs/Verkaufs, alles, damit Sie sich nur um eines kümmern können:
AMI: 5921
Ref. Externa: vc/6231
Id: 1655473
Inicie sessão para guardar este imóvel e aceder à sua lista de favoritos em qualquer dispositivo.
375.000 €
3 Quartos
3 WCs
Área bruta : 240 m²
Moradia T3 em Construção. Balazar, Póvoa de Varzim. Excelente moradia, atualmente em construção, está localizada em Balazar, Póvoa de Varzim. Com uma área de construção generosa com cerca de 230m2, a propriedade está inserida num amplo lote de cerca de 700m2, desfrutando de uma posição privilegiada com três frentes e ótima exposição solar. Arquitetura e design contemporâneo e de construção moderna de ótima qualidade. De estilo minimalista caracterizado por linhas direitas e sóbrias. Os interiores são igualmente simples e sofisticados, com uma excelente luminosidade e uma distribuição inteligente das áreas, garantindo conforto e praticidade. A qualidade de construção e os materiais escolhidos são de padrão elevado, refletindo o cuidado com cada detalhe e um toque de requinte em todos os pormenores. Outro aspeto de maior destaque é o amplo jardim com uma excelente área. O local perfeito para momentos de convívio com a família e amigos, enquanto a envolvência rural e natural proporciona uma tranquilidade verdadeiramente paradisíaca. A moradia nos acabamentos interiores inclui características modernas. Excelentes áreas, pavimentos em madeira, excelente luminosidade, boa orientação solar, como uma ampla sala em openspace com ligação à cozinha e uma lavandaria sala voltada a sul e ligada diretamente ao jardim. Três quartos de banho, sendo um deles uma ótima suite, amplos roupeiros embutidos, tetos falsos com focos, caixilharia de elevada qualidade com corte térmico e vidros duplos, estores elétricos, pré-instalação de ar-condicionado, porta de segurança, vídeo porteiro e garagem fechada. Dispõe de amplas áreas em todas as divisões, privilegia a luz natural conferindo maior luminosidade e ambientes sofisticados. Elevado padrão de qualidade com acabamentos de eleição e selecionados, contribuindo para o conforto e o bem estar que procura. Localizada em zona calma habitacional, em zona recente composto por moradias modernas. Próximo dos acessos da A28 e da A7 beneficiando assim de bons acessos às principais vias de comunicação e atrações das cidades de Vila do Conde e da Póvoa de Varzim. Esta localização e bons acessos colocam esta excelente moradia muito próxima de todas as comodidades que a cidade lhe oferece, mesmo estando numa zona mais calma, podendo assim usufruir de uma maior qualidade de vida. Mapa de acabamentos: - Tetos falsos com placas de gesso cartonado, pintado de cor branca. - Pavimentos em flutuante, cor à escolha. - Iluminação encastrada com focos. - Escadas em madeira, com vidro na lateral. - Iluminação encastrada com focos. - Estores elétricos, térmicos em alumínio. - Móveis de cozinha com frente termolaminada de acordo com o projeto, com tampo em granizo. - Portas interiores em madeira, lacadas de cor branca. - Rodapés, lacados de cor branca. - Roupeiros embutidos. - Puxadores e ferragem em aço inox. - Portão seccionado com motor automático. - Pavimento exterior e interior com cimento afagado mecanicamente. - Portão de entrada em alumínio, com motor automático. - Pré-instalação de ar condicionado. - Bomba de calor elétrica 300L. - Garagem. Aproveite a oportunidade de acompanhar a construção da moradia dos seus sonhos! ------------------------------------------------------------------------------------------------- 3-Bedroom House Under Construction Balazar, Póvoa de Varzim Excellent house, currently under construction, located in Balazar, Póvoa de Varzim. With a generous construction area of around 230 m², the property sits on a large plot of approximately 700 m², enjoying a privileged position with three fronts and excellent sun exposure. Contemporary architecture and design, with modern, high-quality construction. A minimalist style characterised by clean and sober lines. The interiors are equally simple and sophisticated, with excellent natural light and an intelligent layout that ensures comfort and practicality. The construction quality and chosen materials are of a high standard, reflecting attention to every detail and a touch of refinement throughout. Another highlight is the large garden with an excellent area the perfect place for moments with family and friends, while the rural and natural surroundings provide truly paradisiacal tranquility. The house, in its interior finishes, includes modern features. Excellent areas, wooden flooring, great natural light, good solar orientation, including a large open-space living room connected to the kitchen and a laundry room facing south with direct access to the garden. Three bathrooms, one of which is a spacious suite, large built-in wardrobes, false ceilings with spotlights, high-quality frames with thermal break and double glazing, electric shutters, pre-installation for air conditioning, security door, video intercom, and a closed garage. All rooms offer generous space, prioritising natural light for brighter and more sophisticated environments. A high standard of quality with selected finishes, contributing to the comfort and well-being you seek. Located in a quiet residential area, in a recently developed zone featuring modern houses. Close to the A28 and A7 access points, benefiting from easy access to the main roads and to the cities of Vila do Conde and Póvoa de Varzim. This location and its excellent access make this house conveniently close to all city amenities, while still being in a quieter area allowing you to enjoy a higher quality of life. Finishes List: - False ceilings with plasterboard panels, painted white. - Floating floors, colour of choice. - Recessed lighting with spotlights. - Wooden staircase with side glass. - Recessed lighting with spotlights. - Electric, thermal aluminium shutters. - Kitchen furniture with thermolaminated fronts according to the project, with granite countertop. - Interior doors in wood, lacquered white. - Skirting boards lacquered white. - Built-in wardrobes. - Stainless steel handles and fittings. - Sectional garage door with automatic motor. - Exterior and interior flooring in mechanically trowelled concrete. - Aluminium entrance gate with automatic motor. - Pre-installation for air conditioning. - 300 L electric heat pump. - Garage. Take the opportunity to follow the construction of the home of your dreams! ---------------------------------------------------------------------------------------------------- Beatriz Imobiliária - AMI 5921 Com mais de 20 anos de experiência, dispomos de um vasto conhecimento do mercado imobiliário da região, com especial foco em Vila do Conde e Póvoa de Varzim. Em todos os negócios deixamos uma ligação de amizade e satisfação, mas também um sentimento de confiança e transparência, além do sentimento familiar e pessoal que não se explica, sente-se. Somos naturais de Vila do Conde e Póvoa de Varzim, por isso, sabemos bem qual o tipo de vizinhança que melhor se enquadra na sua família e no tipo de investimento que pretende realizar. Como intermediários oficiais de crédito, estamos a par das condições e requisitos necessários à obtenção do melhor crédito habitação possível. Encarregamo-nos de todo o processo burocrático à realização da compra/venda, tudo, para que se preocupe apenas com uma coisa: Quando quer começar as mudanças? _ Beatriz Imobiliária - AMI 5921 With over 20 years of experience, we have a vast knowledge of the real estate market in the region, with a special focus on Vila do Conde and Póvoa de Varzim. In all businesses, we leave a bond of friendship and satisfaction, but also a feeling of trust and transparency, in addition to the family and personal feeling that cannot be explained. Sit down. We are from Vila do Conde and Póvoa de Varzim, so we know very well which type of neighborhood best fits your family and the type of investment you want to make. As official credit intermediaries, we are aware of the conditions and requirements necessary to obtain the best mortgage loan possible. We take care of the entire bureaucratic process to carry out the purchase/sale, everything, so that you can only worry about one thing: When do you want to start the changes? _ Beatriz Imobiliária - AMI 5921 Con más de 20 años de experiencia, tenemos un vasto conocimiento del mercado inmobiliario de la región, con especial foco en Vila do Conde y Póvoa de Varzim. En todos los negocios dejamos un vínculo de amistad y satisfacción, pero también un sentimiento de confianza y transparencia, además del sentimiento familiar y personal que no se explica. Siéntate. Somos de Vila do Conde y Póvoa de Varzim, por lo que sabemos muy bien qué tipo de barrio se adapta mejor a tu familia y el tipo de inversión que quieres realizar. Como intermediarios oficiales de crédito, conocemos las condiciones y requisitos necesarios para obtener el mejor préstamo hipotecario posible. Nos encargamos de todo el proceso burocrático para realizar la compra / venta, de todo, para que tú solo puedas preocuparte de una cosa: ¿Cuándo quieres comenzar con los cambios? _ Beatriz Imobiliária - AMI 5921 Avec plus de 20 ans d'expérience, nous avons une vaste connaissance du marché immobilier de la région, avec un accent particulier sur Vila do Conde et Póvoa de Varzim. Dans toutes les entreprises, nous laissons un lien d'amitié et de satisfaction, mais aussi un sentiment de confiance et de transparence, en plus du sentiment familial et personnel qui ne s'explique pas. S'asseoir. Nous sommes de Vila do Conde et de Póvoa de Varzim, nous savons donc très bien quel type de quartier correspond le mieux à votre famille et le type d'investissement que vous souhaitez faire. En tant qu'intermédiaires officiels de crédit, nous connaissons les conditions et exigences nécessaires pour obtenir le meilleur prêt hypothécaire possible. Nous nous occupons de tout le processus bureaucratique pour effectuer l'achat/la vente, tout, afin que vous ne puissiez vous soucier que d'une chose : Quand voulez-vous commencer les changements ? _ Beatriz Imobiliária - AMI 5921 Mit über 20 Jahren Erfahrung verfügen wir über umfassende Kenntnisse des Immobilienmarktes in der Region, mit besonderem Fokus auf Vila do Conde und Póvoa de Varzim. In allen Betrieben hinterlassen wir neben dem nicht zu erklärenden familiären und persönlichen Gefühl ein Band der Freundschaft und Zufriedenheit, aber auch ein Gefühl von Vertrauen und Transparenz. Hinsetzen. Wir kommen aus Vila do Conde und Póvoa de Varzim, daher wissen wir sehr gut, welche Art von Nachbarschaft am besten zu Ihrer Familie passt und welche Art von Investition Sie tätigen möchten. Als offizieller Kreditvermittler kennen wir die Voraussetzungen und Voraussetzungen, um den bestmöglichen Hypothekarkredit zu erhalten. Wir übernehmen den gesamten bürokratischen Prozess bis hin zur Abwicklung des Kaufs/Verkaufs, alles, damit Sie sich nur um eines kümmern können: Wann möchten Sie mit den Änderungen beginnen?
AMI: 5921
Ref. Externa: vc/6225
Id: 1655470
Inicie sessão para guardar este imóvel e aceder à sua lista de favoritos em qualquer dispositivo.
2 Quartos
Área bruta : 70 m²
Moradia Térrea Geminada Remodelada | Terraços 60m² | Póvoa de VarzimApresentamos esta moradia geminada totalmente remodelada, localizada na Póvoa de Varzim, junto aos principais acessos da cidade e a poucos minutos da A28.Uma solução ideal para quem procura conforto moderno, eficiência energética e excelente mobilidade.Encontra-se atualmente em fase final de remodelação, sendo entregue pronta a habitar e com cozinha totalmente equipada.🔧 Obras já executadas: Aplicação de capoto (isolamento térmico exterior) Caixilharia nova em alumínio com vidro duplo e corte térmico Canalização totalmente nova Instalação elétrica nova Anexo exterior preparado para lavandaria🌿 Espaço exterior diferenciador: Terraço frontal com aproximadamente 30m² Terraço traseiro com cerca de 30m² e acesso direto à ruaDois espaços exteriores amplos que permitem criar zona de lazer, refeições ao ar livre ou até estacionamento adicional.🏗 Projeto e TransparênciaDisponíveis imagens 3D ilustrativas do projeto final, permitindo visualizar o resultado da remodelação após conclusão da obra.Existe ainda caderno de encargos detalhado para consulta de verdadeiros interessados, garantindo total transparência relativamente aos materiais e acabamentos previstos.📍 Localização estratégica:Zona muito procurada pela proximidade aos acessos rápidos, comércio variado, serviços e escolas — perfeita para quem trabalha na Póvoa ou necessita de ligação rápida ao Porto e cidades vizinhas.
AMI: 23705
Ref. Externa: VR168
Id: 1642259
Inicie sessão para guardar este imóvel e aceder à sua lista de favoritos em qualquer dispositivo.
448.000 €
4 Quartos
3 WCs
Área útil : 153 m²
Magnífica Moradia Individual T4 em Estela – Póvoa de Varzim Descubra esta extraordinária moradia individual T4, situada na tranquila freguesia de Estela, no concelho da Póvoa de Varzim, distrito do Porto. Inserida numa zona residencial calma e envolta pela natureza, esta propriedade oferece o equilíbrio perfeito entre conforto, privacidade e proximidade aos principais acessos. Com uma área bruta de 190 m² e 153,46 m² de área útil, a moradia encontra-se implantada num amplo terreno de 3.360 m², com quatro frentes, rodeado por árvores e espaços verdes. O exterior convida ao lazer, contando com um jardim muito bem cuidado, logradouro, churrasqueira, piscina ideal para os dias de verão e ainda um poço com motor e sistema de filtragem, proporcionando água de excelente qualidade. A moradia desenvolve-se em dois pisos (rés-do-chão e primeiro andar) e apresenta uma distribuição funcional e confortável: Hall de entrada acolhedor Ampla sala de estar e jantar com lareira Cozinha totalmente equipada Casa de banho de serviço Quatro quartos, sendo um deles suíte Um quarto com acesso a uma excelente varanda Casa de banho completa Garagem fechada para dois carros Ao nível de conforto e segurança, o imóvel dispõe de: Sistema de alarme ativo Aquecimento central completo Caldeira elétrica Caixilharia em alumínio com vidros duplos A localização é outro dos grandes destaques: ✔ A apenas 3 minutos da N13 ✔ 7 minutos da A28 ✔ 20 minutos do Aeroporto do Porto Na proximidade encontrará escolas, transportes públicos, supermercados, hospitais, farmácias e vários serviços essenciais, garantindo uma excelente qualidade de vida. Uma oportunidade única para quem procura espaço, tranquilidade e conforto. Não adie mais o seu sonho — marque já a sua visita! Siga-nos nas nossas redes sociais! WEBSITE: https://www.lardesonho.pt/barcelos/ FACEBOOK: https://www.facebook.com/lardesonhobarcelospagina INSTAGRAM: https://www.instagram.com/lardesonhobarcelos/ YOUTUBE: https://www.youtube.com/@lardesonhobarcelos2733 A história de sucesso da rede imobiliária LardeSonho deve-se a um serviço de excelência, personalizado para cada cliente, marcado por três premissas- SATISFAÇÃO- RECOMENDAÇÃO-FIDELIZAÇÃO. É a Maior Rede Imobiliária 100% Nacional tendo 24 agências distribuídas por todo o país com mais de 400 Consultores, o que garante uma presença forte junto de potenciais compradores e investidores. A Rede Imobiliária LardeSonho tem como ferramentas uma equipa de profissionais dinâmicos, motivados, com uma vasta experiência; uma carteira de imóveis aos preços mais competitivos do mercado; uma atitude proactiva que se carateriza por inúmeras iniciativas de marketing, campanhas, eventos publicitários, promovendo e divulgando com sucesso a sua carteira de imóveis em cada localidade onde tem Agência. Aliados a parcerias com instituições bancárias, gabinetes de arquitetura, empresas de construção, marketing e publicidade, a rede Imobiliária LardeSonho ajuda os seus clientes a encontrar a solução adequada às suas necessidades. ---- Magnificent 4-bedroom detached house in Estela – Póvoa de Varzim Discover this extraordinary 4-bedroom detached house, located in the quiet parish of Estela, in the municipality of Póvoa de Varzim, district of Porto. Set in a quiet residential area surrounded by nature, this property offers the perfect balance between comfort, privacy, and proximity to major access routes. With a gross area of 190 m² and 153.46 m² of usable area, the villa is set on a large 3,360 m² plot with four fronts, surrounded by trees and green spaces. The exterior invites leisure, with a well-kept garden, patio, barbecue, swimming pool ideal for summer days, and even a well with a motor and filtration system, providing excellent quality water. The villa is spread over two floors (ground floor and first floor) and has a functional and comfortable layout: Cozy entrance hall Large living and dining room with fireplace Fully equipped kitchen Guest bathroom Four bedrooms, one of which is en suite One bedroom with access to an excellent balcony Full bathroom Closed garage for two cars In terms of comfort and security, the property has: Active alarm system Full central heating Electric boiler Aluminum window frames with double glazing The location is another major highlight: ✔ Just 3 minutes from the N13 ✔ 7 minutes from the A28 ✔ 20 minutes from Porto Airport Nearby you will find schools, public transport, supermarkets, hospitals, pharmacies, and various essential services, ensuring an excellent quality of life. A unique opportunity for those looking for space, tranquility, and comfort. Don't put off your dream any longer—schedule your visit now! Follow us on our social networks! WEBSITE: https://www.lardesonho.pt/barcelos/ FACEBOOK: https://www.facebook.com/lardesonhobarcelospagina INSTAGRAM: https://www.instagram.com/lardesonhobarcelos/ YOUTUBE: https://www.youtube.com/@lardesonhobarcelos2733 The success story of the LardeSonho real estate network is due to a service of excellence, personalized for each client, marked by three premises - SATISFACTION - RECOMMENDATION - RELEASE. It is the largest 100% national real estate network, with 24 branches throughout the country and more than 400 consultants, guaranteeing a strong presence among potential buyers and investors. The LardeSonho Real Estate Network has as its tools a team of dynamic, motivated professionals with vast experience; a portfolio of properties at the most competitive prices on the market; a proactive attitude that is characterized by numerous marketing initiatives, campaigns, advertising events, successfully promoting and disseminating its portfolio of properties in each location where it has an Agency. Combined with partnerships with banks, architectural offices, construction, marketing and advertising companies, the LardeSonho Real Estate network helps its clients find the right solution for their needs.
AMI: 17319
Ref. Externa: 265-M-01654
Id: 1636137
Inicie sessão para guardar este imóvel e aceder à sua lista de favoritos em qualquer dispositivo.
375.000 €
3 Quartos
Área bruta : 220 m²
Moradia T3 Nova | Rates – Póvoa de VarzimApresentamos esta exclusiva moradia T3 em fase de construção, localizada em Rates, numa zona tranquila e residencial, a poucos minutos da Póvoa de Varzim.Pensada para proporcionar conforto, funcionalidade e qualidade de vida, esta moradia destaca-se pela sua construção sólida em betão e pelos elevados padrões de isolamento térmico, garantindo eficiência energética e bem-estar ao longo de todo o ano.Inserida num lote com cerca de 700 m², distribui-se por dois pisos:Rés do chão: Sala e cozinha em conceito open space, criando um ambiente amplo, moderno e luminoso Lavandaria independente Casa de banho de serviço Acesso direto ao exterior GaragemPrimeiro andar: Três quartos com roupeiros embutidos Uma suíte com casa de banho privativa Casa de banho completa de apoio aos dois quartosNo exterior, contará com acabamento em capoto, reforçando o desempenho térmico e a eficiência da habitação. A moradia ficará ainda preparada para instalação de ar condicionado.O prazo contratual de conclusão é de 18 meses, estando neste momento prevista a sua conclusão para o final do ano.Uma excelente oportunidade para quem procura uma moradia nova, com qualidade de construção, espaço exterior generoso e localização tranquila, mantendo proximidade às principais vias e serviços.Fotos são de moradia equivalente já construída.Agende já a sua visita, sem compromisso!
AMI: 23705
Ref. Externa: VR166
Id: 1635306
Inicie sessão para guardar este imóvel e aceder à sua lista de favoritos em qualquer dispositivo.
3 Quartos
2 WCs
Área bruta : 142 m²
Moradia em Navais para restauro. Possibilidade de construção de garagem. -------------------------- A IBC Imobiliária é uma empresa de mediação imobiliária em Vila do Conde e Póvoa de Varzim, com atividade desde 1999 e presença consolidada no mercado local desde 2002. Apoiamos a compra e venda de imóveis com total segurança, profissionalismo e acompanhamento em todas as fases do processo. Contamos com uma equipa experiente e especializada no mercado imobiliário local, garantindo um serviço completo desde a avaliação do imóvel até à escritura. Trabalhamos com ferramentas de divulgação nacionais e internacionais, estudo de mercado rigoroso e apoio processual e financeiro, assegurando tranquilidade a compradores e vendedores. Se procura comprar casa ou vender um imóvel em Vila do Conde ou na Póvoa de Varzim, a IBC Imobiliária acompanha-o com transparência, conhecimento e dedicação.
AMI: 5308
Ref. Externa: IBC-0599
Id: 1633015
Inicie sessão para guardar este imóvel e aceder à sua lista de favoritos em qualquer dispositivo.
420.000 €
3 Quartos
4 WCs
Área bruta : 199 m²
Moradia T3 Nova 2º linha de mar - a 100 metros da praia de A Ver-o-Mar, Póvoa de Varzim R/chão e 1º andar, com estacionamento privado RC -Hall de entrada com armário embutido -Sala e cozinha em opensPace -Cozinha mobilada e equipada -Sala com grande armário embutido -Casa de banho com base de chuveiro, resguardo, móvel de lavatório e espelho Andar superior: -3 quartos suítes com armário embutidos ( 1 com closet ) e varanda -3 casas de banho com base de chuveiro, resguardo, móvel de lavatório e espelho -Ar condicionado -Bomba de calor -Caixilharia em alumínio com vidros duplos e estores elétricos -Tetos falsos com focos embutidos -Pavimentos em vinílico -Vídeo porteiro -Classe energética: A Características principais: Área: Ambientes amplos e luminosos, com excelente orientação solar (nascente). Cozinha: Open space, parcialmente equipada, criando um ambiente moderno e prático. Quartos: Todos com suíte, oferecendo mais privacidade e conforto. Além disso, os quartos têm roupeiros embutidos, otimizando o espaço. Conforto: Equipamentos de ar condicionado para garantir o bem-estar durante todo o ano. Despesas: Despensa adicional para organização e armazenamento. Logradouro: Espaço exterior com capacidade para dois carros, garantindo praticidade e facilidade de estacionamento. Além disso, a moradia está localizada numa zona com ótimos acessos, próximo de comércio, restauração e transportes públicos e oferece uma combinação perfeita de conforto e praticidade. Ideal para quem deseja viver perto da praia com todo o conforto de uma moradia moderna e funcional. Excelente oportunidade para quem procura conforto e proximidade ao mar. Agende já a sua visita! A Trunfos Célebres é uma empresa especializada em mediação imobiliária, a nível mundial, com profissionais altamente qualificados e experientes. A nossa prioridade é prestar um serviço de qualidade e de oferta variada. Queremos crescer como empresa, e isso só é possível através de uma postura séria, que privilegie a relação com o cliente. Prestamos um acompanhamento constante em todo o processo de compra ou venda do seu imóvel. Sabemos que é importante mantê-lo/a informado, pois as decisões tomadas podemos mudar a sua vida. Estamos preparados para atender todas as necessidades dos nossos clientes. Queremos marcar a nossa posição como um exemplo a seguir. Trabalhamos diariamente para melhorar o acompanhamento ao cliente e estudamos as tendências da mediação imobiliária para que possamos descobrir novas maneiras de agilizar todos os processos. Comprar ou vender uma propriedade não tem que ser uma ação demorada e complicada. confiança a base de tudo.
AMI: 21026
Ref. Externa: TC-00091
Id: 1632688
Inicie sessão para guardar este imóvel e aceder à sua lista de favoritos em qualquer dispositivo.
530.000 €
4 Quartos
2 WCs
Área bruta : 244 m²
Moradia Rústica em Pedra T4 com Terreno - Póvoa de Varzim Apresentamos esta encantadora moradia rústica em pedra, datada de 1903, inserida num amplo terreno com 2.970 m², localizada numa zona tranquila da Póvoa de Varzim, com vistas amplas e desafogadas sobre a natureza envolvente. Implantada em zona de construção R3, esta propriedade oferece elevado potencial de valorização, sendo ideal tanto para habitação própria como para projeto turístico ou investimento, com possibilidade de destaque de parcela do terreno. Características do imóvel: Moradia em pedra com mais de um século de história Distribuída por dois pisos 4 quartos, incluindo um quarto principal e possibilidade de criação de quartos adicionais 2 casas de banho completas 2 cozinhas, despensa e várias áreas de arrumação Duas frentes, com acesso por duas ruas distintas, garantindo versatilidade e privacidade Exterior: Jardim com árvores de fruto Dois poços com abundância de água Espaço exterior amplo, ideal para lazer, cultivo ou desenvolvimento de projeto turístico Localização: Zona calma e envolvida pela natureza Bons acessos Serviços e comércio nas proximidades A apenas 7 km da praia e do centro da cidade da Póvoa de Varzim Uma propriedade única, com caráter, história e um enorme potencial, perfeita para quem procura tranquilidade sem abdicar da proximidade urbana. Agende já a sua visita e descubra todo o potencial desta moradia singular. A Trunfos Célebres é uma empresa especializada em mediação imobiliária, a nível mundial, com profissionais altamente qualificados e experientes. A nossa prioridade é prestar um serviço de qualidade e de oferta variada. Queremos crescer como empresa, e isso só é possível através de uma postura séria, que privilegie a relação com o cliente. Prestamos um acompanhamento constante em todo o processo de compra ou venda do seu imóvel. Sabemos que é importante mantê-lo/a informado, pois as decisões tomadas podemos mudar a sua vida. Estamos preparados para atender todas as necessidades dos nossos clientes. Queremos marcar a nossa posição como um exemplo a seguir. Trabalhamos diariamente para melhorar o acompanhamento ao cliente e estudamos as tendências da mediação imobiliária para que possamos descobrir novas maneiras de agilizar todos os processos. Comprar ou vender uma propriedade não tem que ser uma ação demorada e complicada. confiança a base de tudo.
AMI: 21026
Ref. Externa: TC-00128
Id: 1632686
Inicie sessão para guardar este imóvel e aceder à sua lista de favoritos em qualquer dispositivo.
3 Quartos
4 WCs
Área bruta : 496 m²
Apresentamos esta moradia T3 térrea em construção, localizada em Beiriz, uma excelente oportunidade para quem procura uma casa moderna, confortável e funcional, concebida para oferecer qualidade de vida e bem-estar num só piso. Esta moradia insere-se numa zona tranquila e privilegiada, beneficiando da proximidade a serviços, escolas, transportes e rápidos acessos à autoestrada. Totalmente desenvolvida ao nível do rés do chão, esta moradia térrea garante maior comodidade, acessibilidade e segurança, sendo ideal para famílias, casais ou para quem valoriza uma vivência prática e sem escadas. A excelente exposição solar com três frentes proporciona luminosidade natural durante todo o dia, valorizando os espaços interiores. No interior, destaca-se a sala ampla com cerca de 60 m², perfeita para momentos de convívio, em ligação com uma cozinha moderna e totalmente equipada. A área privada é composta por três suítes espaçosas, todas com roupeiros embutidos, assegurando conforto e privacidade. Dispõe ainda de quatro casas de banho, lavandaria e despensa, pensadas para facilitar o dia a dia. No exterior, a moradia oferece jardim, terraço e logradouro, ideais para desfrutar de momentos ao ar livre, bem como garagem fechada para dois carros. Ao nível do conforto e eficiência, conta com pré-instalação de ar condicionado, aquecimento solar e caixilharia com vidros duplos. Três suítes espaçosas, todas com roupeiros embutidos. Sala ampla com cerca de 60 m², perfeita para momentos de convívio. Cozinha totalmente equipada, com eletrodomésticos modernos. Quatro casas de banho, com acabamentos de elevada qualidade. Lavandaria e despensa. Garagem fechada para dois carros, com acesso direto à habitação. Jardim, terraço e logradouro, ideais para desfrutar do exterior com total comodidade. Uma moradia térrea nova, elegante e cuidadosamente pensada para quem procura conforto, modernidade e qualidade de vida. Contacte-nos e agende a sua visita! ---------------------------------------------------------------------------------------------------- We present this single-story, three-bedroom house under construction, located in Beiriz, an excellent opportunity for those seeking a modern, comfortable, and functional home, designed to offer quality of life and well-being on a single floor. This house is situated in a quiet and privileged area, benefiting from proximity to services, schools, transport, and quick access to the highway. Completely developed on the ground floor, this single-story house guarantees greater convenience, accessibility, and security, making it ideal for families, couples, or anyone who values a practical, stair-free living experience. The excellent sun exposure with three facades provides natural light throughout the day, enhancing the interior spaces. Inside, the spacious living room of approximately 60 m² stands out, perfect for social gatherings, connected to a modern and fully equipped kitchen. The private area comprises three spacious suites, all with built-in wardrobes, ensuring comfort and privacy. It also has four bathrooms, a laundry room, and a pantry, designed to facilitate daily life. Outside, the villa offers a garden, terrace, and patio, ideal for enjoying moments outdoors, as well as a closed garage for two cars. In terms of comfort and efficiency, it features pre-installation for air conditioning, solar heating, and double-glazed windows. Three spacious suites, all with built-in wardrobes. Large living room of approximately 60 m², perfect for socializing. Fully equipped kitchen with modern appliances. Four bathrooms with high-quality finishes. Laundry room and pantry. Closed garage for two cars with direct access to the house. Garden, terrace, and patio, ideal for enjoying the outdoors in complete comfort. A new, elegant, and carefully designed single-story house for those seeking comfort, modernity, and quality of life. Contact us and schedule your visit! We present this single-story, three-bedroom house under construction, located in Beiriz, an excellent opportunity for those seeking a modern, comfortable, and functional home, designed to offer quality of life and well-being on a single floor. This house is situated in a quiet and privileged area, benefiting from proximity to services, schools, transport, and quick access to the highway. Completely developed on the ground floor, this single-story house guarantees greater convenience, accessibility, and security, making it ideal for families, couples, or anyone who values a practical, stair-free living experience. The excellent sun exposure with three facades provides natural light throughout the day, enhancing the interior spaces. Inside, the spacious living room of approximately 60 m² stands out, perfect for social gatherings, connected to a modern and fully equipped kitchen. The private area comprises three spacious suites, all with built-in wardrobes, ensuring comfort and privacy. It also has four bathrooms, a laundry room, and a pantry, designed to facilitate daily life. Outside, the villa offers a garden, terrace, and patio, ideal for enjoying moments outdoors, as well as a closed garage for two cars. In terms of comfort and efficiency, it features pre-installation for air conditioning, solar heating, and double-glazed windows. Three spacious suites, all with built-in wardrobes. Large living room of approximately 60 m², perfect for socializing. Fully equipped kitchen with modern appliances. Four bathrooms with high-quality finishes. Laundry room and pantry. Closed garage for two cars with direct access to the house. Garden, terrace, and patio, ideal for enjoying the outdoors in complete comfort. A new, elegant, and carefully designed single-story house for those seeking comfort, modernity, and quality of life. Contact us and schedule your visit! ------------------------------------------------------------------------------------------------------ Beatriz Imobiliária - AMI 5921 Com mais de 20 anos de experiência, dispomos de um vasto conhecimento do mercado imobiliário da região, com especial foco em Vila do Conde e Póvoa de Varzim. Em todos os negócios deixamos uma ligação de amizade e satisfação, mas também um sentimento de confiança e transparência, além do sentimento familiar e pessoal que não se explica, sente-se. Somos naturais de Vila do Conde e Póvoa de Varzim, por isso, sabemos bem qual o tipo de vizinhança que melhor se enquadra na sua família e no tipo de investimento que pretende realizar. Como intermediários oficiais de crédito, estamos a par das condições e requisitos necessários à obtenção do melhor crédito habitação possível. Encarregamo-nos de todo o processo burocrático à realização da compra/venda, tudo, para que se preocupe apenas com uma coisa: Quando quer começar as mudanças? _ Beatriz Imobiliária - AMI 5921 With over 20 years of experience, we have a vast knowledge of the real estate market in the region, with a special focus on Vila do Conde and Póvoa de Varzim. In all businesses, we leave a bond of friendship and satisfaction, but also a feeling of trust and transparency, in addition to the family and personal feeling that cannot be explained. Sit down. We are from Vila do Conde and Póvoa de Varzim, so we know very well which type of neighborhood best fits your family and the type of investment you want to make. As official credit intermediaries, we are aware of the conditions and requirements necessary to obtain the best mortgage loan possible. We take care of the entire bureaucratic process to carry out the purchase/sale, everything, so that you can only worry about one thing: When do you want to start the changes? _ Beatriz Imobiliária - AMI 5921 Con más de 20 años de experiencia, tenemos un vasto conocimiento del mercado inmobiliario de la región, con especial foco en Vila do Conde y Póvoa de Varzim. En todos los negocios dejamos un vínculo de amistad y satisfacción, pero también un sentimiento de confianza y transparencia, además del sentimiento familiar y personal que no se explica. Siéntate. Somos de Vila do Conde y Póvoa de Varzim, por lo que sabemos muy bien qué tipo de barrio se adapta mejor a tu familia y el tipo de inversión que quieres realizar. Como intermediarios oficiales de crédito, conocemos las condiciones y requisitos necesarios para obtener el mejor préstamo hipotecario posible. Nos encargamos de todo el proceso burocrático para realizar la compra / venta, de todo, para que tú solo puedas preocuparte de una cosa: ¿Cuándo quieres comenzar con los cambios? _ Beatriz Imobiliária - AMI 5921 Avec plus de 20 ans d'expérience, nous avons une vaste connaissance du marché immobilier de la région, avec un accent particulier sur Vila do Conde et Póvoa de Varzim. Dans toutes les entreprises, nous laissons un lien d'amitié et de satisfaction, mais aussi un sentiment de confiance et de transparence, en plus du sentiment familial et personnel qui ne s'explique pas. S'asseoir. Nous sommes de Vila do Conde et de Póvoa de Varzim, nous savons donc très bien quel type de quartier correspond le mieux à votre famille et le type d'investissement que vous souhaitez faire. En tant qu'intermédiaires officiels de crédit, nous connaissons les conditions et exigences nécessaires pour obtenir le meilleur prêt hypothécaire possible. Nous nous occupons de tout le processus bureaucratique pour effectuer l'achat/la vente, tout, afin que vous ne puissiez vous soucier que d'une chose : Quand voulez-vous commencer les changements ? _ Beatriz Imobiliária - AMI 5921 Mit über 20 Jahren Erfahrung verfügen wir über umfassende Kenntnisse des Immobilienmarktes in der Region, mit besonderem Fokus auf Vila do Conde und Póvoa de Varzim. In allen Betrieben hinterlassen wir neben dem nicht zu erklärenden familiären und persönlichen Gefühl ein Band der Freundschaft und Zufriedenheit, aber auch ein Gefühl von Vertrauen und Transparenz. Hinsetzen. Wir kommen aus Vila do Conde und Póvoa de Varzim, daher wissen wir sehr gut, welche Art von Nachbarschaft am besten zu Ihrer Familie passt und welche Art von Investition Sie tätigen möchten. Als offizieller Kreditvermittler kennen wir die Voraussetzungen und Voraussetzungen, um den bestmöglichen Hypothekarkredit zu erhalten. Wir übernehmen den gesamten bürokratischen Prozess bis hin zur Abwicklung des Kaufs/Verkaufs, alles, damit Sie sich nur um eines kümmern können:
AMI: 5921
Ref. Externa: vc/6240_3
Id: 1631785
Inicie sessão para guardar este imóvel e aceder à sua lista de favoritos em qualquer dispositivo.
Estes agentes são especialistas nesta zona:
Inicie sessão para ocultar este imóvel das suas pesquisas e manter a sua lista de resultados organizada.
© Copyright 2023 | CASACERTA. All rights reserved
Guardar favoritos
Este imóvel foi guardados nos seus favoritos com sucesso.
Para poder guardar pesquisa deverá ter a sua sessão iniciada.
Caso não tenha uma conta, deverá criar uma.
A sua pesquisa foi guardada com sucesso!
Este site utiliza cookies. Ao navegar no site estará a consentir a sua utilização.
Para mais informações sobre os cookies pode consultar a
política de privacidade.