Moradia T7 para Venda em Alcochete
3.558.000 €
Tipo
Moradia
Negócio
Venda
Ano de Construção
2025
Quartos
7
Casas de Banho
7
Área Bruta
1164 m²
Área Útil
957 m²
Certificado Energético
N/A
Villa Veneza - MORADIA DE LUXO T7 EM ALCOCHETE
Villa Veneza
MORADIA DE LUXO T7 EM ALCOCHETE
Esta magnífica moradia de luxo em Alcochete oferece um estilo de vida verdadeiramente excecional, combinando elegância, conforto e uma localização privilegiada. Situada às margens do rio Tejo, esta propriedade exclusiva proporciona vistas deslumbrantes sobre o rio e Lisboa, criando um cenário verdadeiramente idílico.
O interior da moradia é igualmente impressionante, com espaços amplos e luminosos que incorporam um design de interiores sofisticado e contemporâneo. A cozinha gourmet é equipada com aparelhos de última geração e bancadas em mármore, tornando-a um ponto focal perfeito para os amantes da culinária.
Esta moradia é composta por:
Piso 0:
-Sala de estar/jantar de 47m2
-Cozinha de 15,6m2
-Hall de entrada/circulação de 28m2
-Wc social de 6,58m2
-Escritorio de 20m2
-Três Suites com closet integrado
-Area exterior com piscina, lounge e wc social
A dividir estas divisões encontramos ainda um pequeno lago
Piso 1:
-Hall de circulação de 45m2
-Suite de 21m2 com closet de 22,95m2 e casa de banho de 9m2 (com varanda)
-Suite de 18m2 com closet de 31m2 e casa de banho de 12,38m2 (com varanda)
-Suite de 17m2 com closet de 15m2 e casa de banho de 12,41m2
-Wc social de 6,58m2
Piso 2:
-Terraço de 83m2 com jazuzzi
-Sotão de de 42,17 m2 com possibilidade de conversão para suite
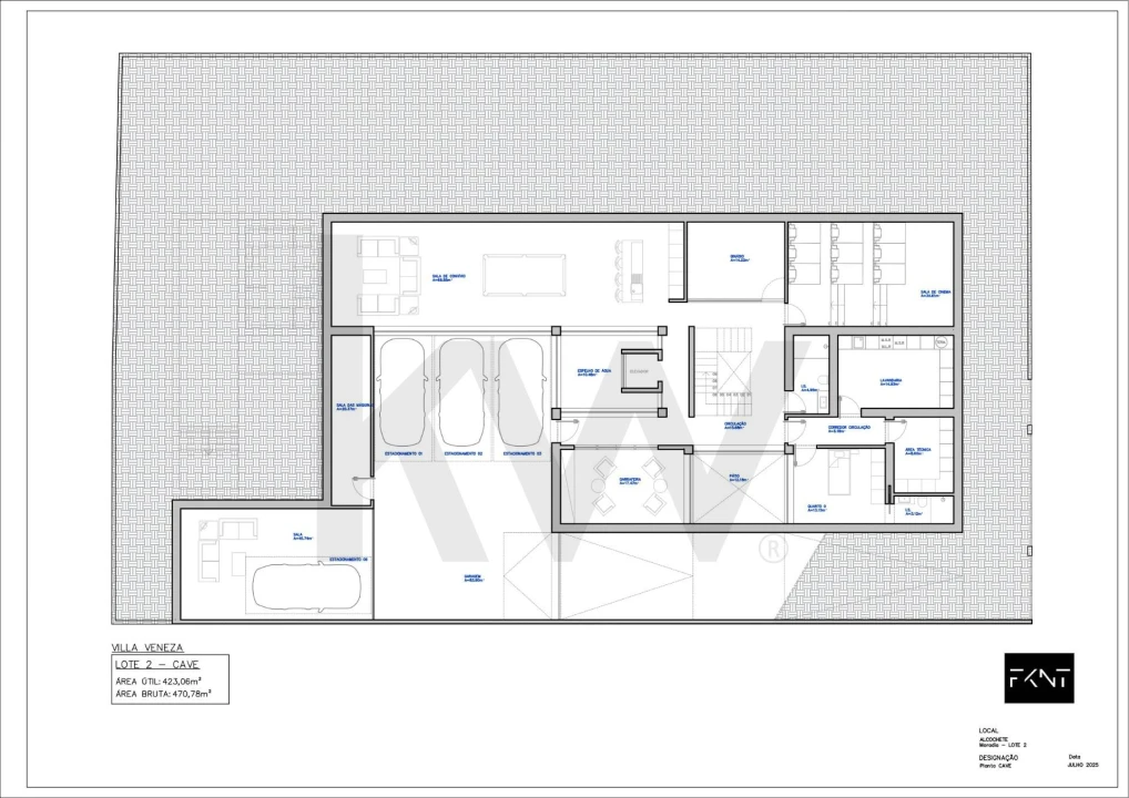
Piso -1
-Garagem de 50m2 (3 viaturas)
-Sala de convivio/jogos de 65m2
-Ginásio de 15m2
-Sala de cinema de 46,36m2
-Sauna e banho turco de 20m2
-Lavandaria de 12m2
-Wc Social de 6,58m2
A propriedade também oferece uma variedade de comodidades de alto nível, como uma sala de cinema em casa, uma adega climatizada, um ginásio, uma sala de jogos e uma sauna e banho turco, proporcionando entretenimento e relaxamento incomparáveis.
Além disso, a localização em Alcochete é um verdadeiro ponto de destaque. Esta encantadora vila costeira oferece uma atmosfera tranquila e pitoresca, com uma rica herança cultural, restaurantes gourmet, lojas de luxo e acesso direto às praias deslumbrantes da região.
Esta moradia de luxo em Alcochete é a expressão máxima do conforto e sofisticação, oferecendo uma vida de privacidade e elegância num cenário naturalmente espetacular. É a escolha ideal para quem busca o melhor em estilo de vida e comodidades, e representa uma oportunidade única de possuir uma propriedade de prestígio numa das regiões mais desejadas de Portugal.
MORADIA DE LUXO T7 EM ALCOCHETE
Esta magnífica moradia de luxo em Alcochete oferece um estilo de vida verdadeiramente excecional, combinando elegância, conforto e uma localização privilegiada. Situada às margens do rio Tejo, esta propriedade exclusiva proporciona vistas deslumbrantes sobre o rio e Lisboa, criando um cenário verdadeiramente idílico.
O interior da moradia é igualmente impressionante, com espaços amplos e luminosos que incorporam um design de interiores sofisticado e contemporâneo. A cozinha gourmet é equipada com aparelhos de última geração e bancadas em mármore, tornando-a um ponto focal perfeito para os amantes da culinária.
Esta moradia é composta por:
Piso 0:
-Sala de estar/jantar de 47m2
-Cozinha de 15,6m2
-Hall de entrada/circulação de 28m2
-Wc social de 6,58m2
-Escritorio de 20m2
-Três Suites com closet integrado
-Area exterior com piscina, lounge e wc social
A dividir estas divisões encontramos ainda um pequeno lago
Piso 1:
-Hall de circulação de 45m2
-Suite de 21m2 com closet de 22,95m2 e casa de banho de 9m2 (com varanda)
-Suite de 18m2 com closet de 31m2 e casa de banho de 12,38m2 (com varanda)
-Suite de 17m2 com closet de 15m2 e casa de banho de 12,41m2
-Wc social de 6,58m2
Piso 2:
-Terraço de 83m2 com jazuzzi
-Sotão de de 42,17 m2 com possibilidade de conversão para suite
Piso -1
-Garagem de 50m2 (3 viaturas)
-Sala de convivio/jogos de 65m2
-Ginásio de 15m2
-Sala de cinema de 46,36m2
-Sauna e banho turco de 20m2
-Lavandaria de 12m2
-Wc Social de 6,58m2
A propriedade também oferece uma variedade de comodidades de alto nível, como uma sala de cinema em casa, uma adega climatizada, um ginásio, uma sala de jogos e uma sauna e banho turco, proporcionando entretenimento e relaxamento incomparáveis.
Além disso, a localização em Alcochete é um verdadeiro ponto de destaque. Esta encantadora vila costeira oferece uma atmosfera tranquila e pitoresca, com uma rica herança cultural, restaurantes gourmet, lojas de luxo e acesso direto às praias deslumbrantes da região.
Esta moradia de luxo em Alcochete é a expressão máxima do conforto e sofisticação, oferecendo uma vida de privacidade e elegância num cenário naturalmente espetacular. É a escolha ideal para quem busca o melhor em estilo de vida e comodidades, e representa uma oportunidade única de possuir uma propriedade de prestígio numa das regiões mais desejadas de Portugal.
Localização
Alcochete, Alcochete, Setúbal
Informação do anúncio
ID do anúncio
1430838
Referência Externa
KWPT-022368
Atualizado em
01/05/2026 00:03:40
Moradia T7 para Venda em Alcochete