Voltar

Terreno para Venda em Cascais e Estoril

6.900.000 €

Tipo
Terreno
Negócio
Venda
Ano de Construção
2025
Área Bruta
855 m²
Certificado Energético
N/A
Área do Terreno
2138 m²

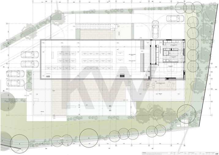
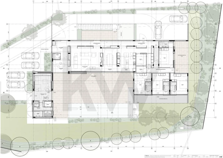
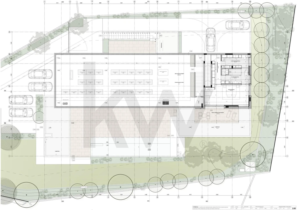
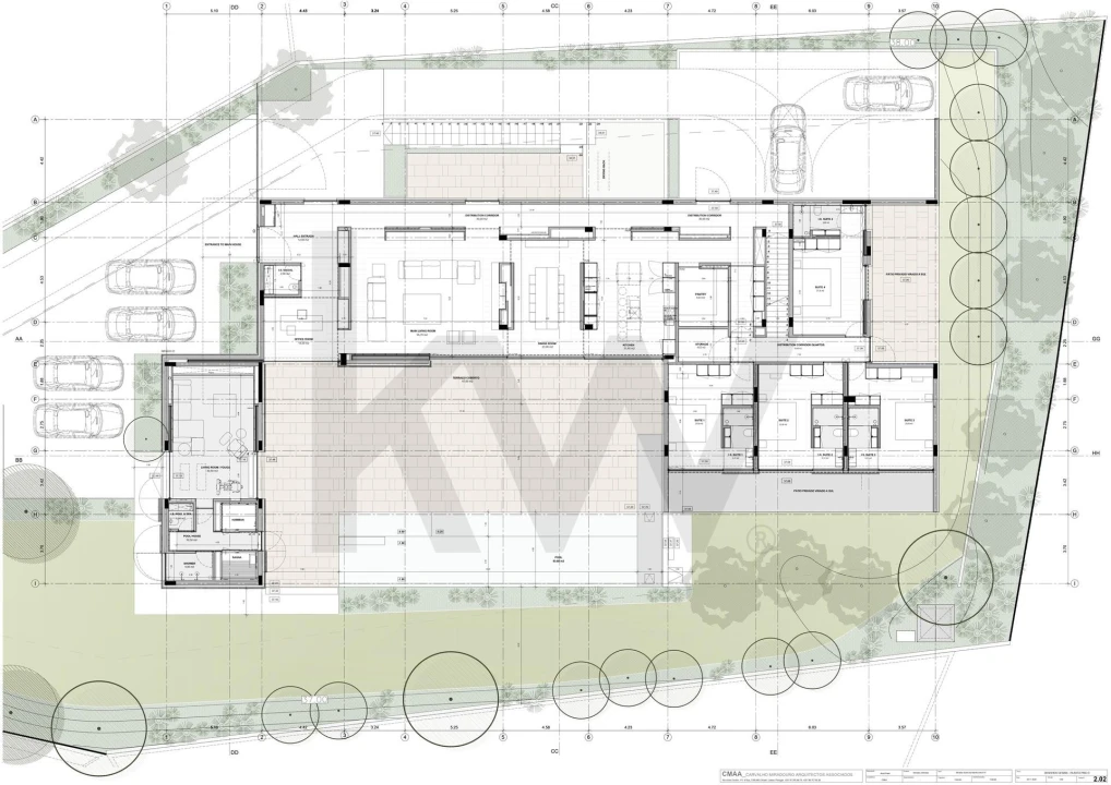
Terreno para construção na Quinta da Marinha – Projeto aprovado para moradia de luxo | 2.1

Terreno para construção na Quinta da Marinha – Projeto aprovado para moradia de luxo de 3 pisos com pátio e piscina | 2.138 m² | Cascais

Terreno com 2.138 m² localizado na prestigiada Quinta da Marinha, uma das zonas mais exclusivas e valorizadas de Cascais.

O lote conta com projeto aprovado e licença paga para a construção de uma moradia de luxo de 3 pisos, com uma área de implantação de 600 m² e 855 m² de área bruta de construção, incluindo pátio interior e piscina privativa. Um conceito arquitetónico contemporâneo que privilegia a luz, a fluidez entre espaços interiores e exteriores e a ligação à natureza envolvente.

Situado numa zona residencial de prestígio, com total privacidade e rodeado por natureza, campos de golfe, centro equestre, hotéis de cinco estrelas e a poucos minutos das praias do Guincho e do centro histórico de Cascais.

Características principais:

Terreno com 2.138 m²

Projeto aprovado

Licença paga

Área de implantação: 600 m²

Área bruta de construção: 855 m²

Pátio interior e piscina incluídos no projeto

Arquitetura contemporânea

Zona tranquila, com segurança e elevada valorização

Excelente exposição solar

Uma oportunidade rara para construir na mais prestigiada localização da linha de Cascais.

Localização

Cascais e Estoril, Cascais, Lisboa

Informação do anúncio

ID do anúncio 1431216
Referência Externa KWPT-018572
Atualizado em 28/04/2026 00:10:26
KW Lead AMI 12518
Referência do imóvel: KWPT-018572
Phone
Chamada para a rede fixa nacional
KW LEAD SANTOS
KW LEAD SANTOS
Phone
Chamada para a rede fixa nacional
KW Lead AMI 12518
Referência do imóvel: KWPT-018572
Phone
Chamada para a rede fixa nacional
KW LEAD SANTOS
KW LEAD SANTOS
Phone
Chamada para a rede fixa nacional
1 / 20
Terreno para Venda em Cascais e Estoril Foto 1
Terreno para Venda em Cascais e Estoril Foto 2
Terreno para Venda em Cascais e Estoril Foto 3
Terreno para Venda em Cascais e Estoril Foto 4
Terreno para Venda em Cascais e Estoril Foto 5
Terreno para Venda em Cascais e Estoril Foto 6
Terreno para Venda em Cascais e Estoril Foto 7
Terreno para Venda em Cascais e Estoril Foto 8
Terreno para Venda em Cascais e Estoril Foto 9
Terreno para Venda em Cascais e Estoril Foto 10
Terreno para Venda em Cascais e Estoril Foto 11
Terreno para Venda em Cascais e Estoril Foto 12
Terreno para Venda em Cascais e Estoril Foto 13
Terreno para Venda em Cascais e Estoril Foto 14
Terreno para Venda em Cascais e Estoril Foto 15
Terreno para Venda em Cascais e Estoril Foto 16
Terreno para Venda em Cascais e Estoril Foto 17
Terreno para Venda em Cascais e Estoril Foto 18
Terreno para Venda em Cascais e Estoril Foto 19
Terreno para Venda em Cascais e Estoril Foto 20
Clicky