Voltar
Terreno para Venda em Melides Foto 1
Terreno para Venda em Melides Foto 2
Terreno para Venda em Melides Foto 3
Terreno para Venda em Melides Foto 4
Terreno para Venda em Melides Foto 5

Terreno para Venda em Melides

2.000.000 €

Tipo
Terreno
Negócio
Venda
Ano de Construção
2026
Certificado Energético
N/A
Área do Terreno
15250 m²

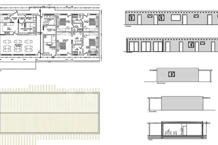
Terreno 1.525ha - Projeto de 416 m² de construção aprovado - Melides

Oportunidade única! Terreno com projeto aprovado pela Câmara Municipal de Grândola, incluindo uma moradia, piscina e seis bungalows, além de um parque de estacionamento.

Detalhes do projeto:
- Plano de arquitetura do edifício principal: Medidas de 9.10m x 22m, totalizando 200.2m2 de área construída.
- Plano de arquitetura para cada bungalow: 6m x 6m, com 36m2 de área cada, totalizando 216m2 para os seis bungalows.

O terreno aprovado para construção abrange uma área de 1,525 hectares e está estrategicamente localizado na estrada da Praia de Melides e da Lagoa de Melides.

Este incrível imóvel está a apenas 3 minutos da praia de carro ou 8 minutos a pé. Apresenta um terreno plano em areia, adornado por pinheiros, oliveiras, figueiras e sobreiros.

As infraestruturas de eletricidade e água da rede já foram construídas e estão operacionais.

Não perca esta excelente oportunidade de viver próximo ao Oceano Atlântico e à deslumbrante Lagoa de Melides. Seu refúgio à beira-mar está mais próximo do que nunca!

https://www.visitportugal.com/pt-pt/content/praia-de-melideshttps://www.guiadacidade.pt/pt/poi-praia-de-melides-14455https://www.portugaldenorteasul.pt/5213/melides-e-o-paraiso-das-praias-desertas-a-uma-hora-e-meia-de-lisboa-banhado-por-um-mar-azul-cristalino

Características:
- Vistas: Vista lago;
- Vista mar;
- Vista praia;
- Vista campo.

Localização

Melides, Grândola, Setúbal

Informação do anúncio

ID do anúncio 1431830
Referência Externa 1217-3479
Atualizado em 16/03/2026 01:02:44
KW Lead AMI 12518
Referência do imóvel: 1217-3479
Phone
Chamada para a rede fixa nacional
KW LEAD SANTOS
KW LEAD SANTOS
Phone
Chamada para a rede fixa nacional
KW Lead AMI 12518
Referência do imóvel: 1217-3479
Phone
Chamada para a rede fixa nacional
KW LEAD SANTOS
KW LEAD SANTOS
Phone
Chamada para a rede fixa nacional
1 / 29
Terreno para Venda em Melides Foto 1
Terreno para Venda em Melides Foto 2
Terreno para Venda em Melides Foto 3
Terreno para Venda em Melides Foto 4
Terreno para Venda em Melides Foto 5
Terreno para Venda em Melides Foto 6
Terreno para Venda em Melides Foto 7
Terreno para Venda em Melides Foto 8
Terreno para Venda em Melides Foto 9
Terreno para Venda em Melides Foto 10
Terreno para Venda em Melides Foto 11
Terreno para Venda em Melides Foto 12
Terreno para Venda em Melides Foto 13
Terreno para Venda em Melides Foto 14
Terreno para Venda em Melides Foto 15
Terreno para Venda em Melides Foto 16
Terreno para Venda em Melides Foto 17
Terreno para Venda em Melides Foto 18
Terreno para Venda em Melides Foto 19
Terreno para Venda em Melides Foto 20
Terreno para Venda em Melides Foto 21
Terreno para Venda em Melides Foto 22
Terreno para Venda em Melides Foto 23
Terreno para Venda em Melides Foto 24
Terreno para Venda em Melides Foto 25
Terreno para Venda em Melides Foto 26
Terreno para Venda em Melides Foto 27
Terreno para Venda em Melides Foto 28
Terreno para Venda em Melides Foto 29
Terreno para Venda em Melides
Clicky