Voltar
Terreno para Venda em Ramada e Caneças Foto 1
Terreno para Venda em Ramada e Caneças Foto 2
Terreno para Venda em Ramada e Caneças Foto 3
Terreno para Venda em Ramada e Caneças Foto 4
Terreno para Venda em Ramada e Caneças Foto 5

Terreno para Venda em Ramada e Caneças

450.000 €

Tipo
Terreno
Negócio
Venda
Ano de Construção
2025
Área Bruta
582 m²
Área Útil
582 m²
Área do Terreno
335 m²

Terreno urbano projeto aprovado prédio residencial, Ramada

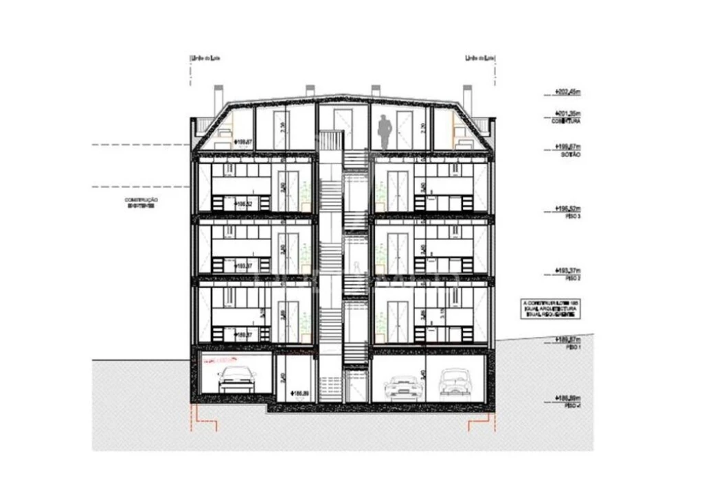
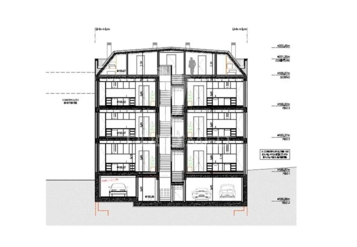
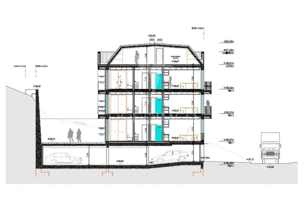
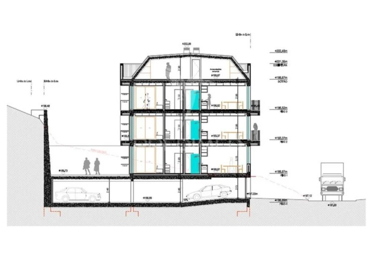
O preço indicado é referente a cada lote, podendo ser vendidos juntos ou separados. Venda de dois Lotes de terreno urbano com projeto aprovado para prédio residencial, com licença de construção e caução pagas, localizado no Bairro dos Pedrenais, Ramada em Odivelas. Cada Lote possui uma área 335 m2 e o projeto contempla a construção de um edifício com uma área de implantação de 335 m2. A área bruta construção é de 582.06 m2, sendo esta distribuída por 5 pisos: 3 pisos habitacionais, Cave e sótão. Cada lote permite a construção de um edifício de 6 apartamentos de tipologia T2 com áreas na ordem de 86 m², 6 estacionamentos no piso cave e 5 arrecadações no sótão. Inserido num bairro tranquilo de Odivelas, com rápido acesso às principais vias rodoviárias (IC22, CRIL, CREL, Calçada de Carriche, A8, túnel do Grilo, etc).Proximidade a todo o comércio e serviços, Hospital, ao centro de Odivelas, às Colinas do Cruzeiro, Centro Comercial Strada e Ramada, onde está prevista a saída do metro de Odivelas. Possuímos para venda mais 1 lote (Lote 187) na mesma urbanização. Se vendidos os 3 em conjunto, o total de área bruta de construção é de 2202 m2.Lote 187Área de implantação: 500 m2. Área bruta construção: 1038 m2Contacte-me para mais informações ou agendar visita. O Lote situa-se num gaveto e possui uma área 500m2 sendo a área de implantação é de 500 m2. A área bruta construção é de 1038 m2, distribuída por 4 pisos acima do solo e 1 piso em cave.O projeto contempla a construção de um edifício com 9 apartamentos de tipologias T2 e T3, estacionamentos e arrecadações.Possui 6 apartamentos de tipologia T2 e 3 apartamentos T3, com áreas na ordem de 98 m² e 128 m², respetivamente. O projeto inclui ainda 15 lugares de estacionamento no piso Cave e arrecadações no Sotão.Inserido num bairro tranquilo de Odivelas, com rápido acesso às principais vias rodoviárias (IC22, CRIL, CREL, Calçada de Carriche, A8, túnel do Grilo, etc)- Proximidade a todo o comércio e serviços, Hospital, ao centro de Odivelas, às Colinas do Cruzeiro, Centro Comercial Strada e Ramada, onde está prevista a saída do metro de Odivelas. Possuímos para venda mais 2 lotes na mesma urbanização. Se vendidos os 3 em conjunto, o total de área bruta de construção é de 1938 m2.Contacte-me para mais informações ou agendar visita. Predimed Imobiliária, Mediação Imobiliária, Lda.Avenida Brasil 43, 12º Andar, 1700-062 LisboaLicença AMI nº 22503Pessoa Coletiva nº 517 239 345Seguro Responsabilidade Civil: Nº de Apólice RC65379424 Fidelidade

Características:
Auto-Estrada;Centro Comercial;Escola;Farmácia;Hipermercado;Hospital;Transportes Públicos

Localização

Ramada e Caneças, Odivelas, Lisboa

Informação do anúncio

ID do anúncio 1449640
Referência Externa 056213
Atualizado em 05/12/2025 00:30:33
Predimed Portugal AMI 13558
Referência do imóvel: 056213
Phone
Chamada para a rede fixa nacional
Predimed Portugal AMI 13558
Referência do imóvel: 056213
Phone
Chamada para a rede fixa nacional
1 / 12
Terreno para Venda em Ramada e Caneças Foto 1
Terreno para Venda em Ramada e Caneças Foto 2
Terreno para Venda em Ramada e Caneças Foto 3
Terreno para Venda em Ramada e Caneças Foto 4
Terreno para Venda em Ramada e Caneças Foto 5
Terreno para Venda em Ramada e Caneças Foto 6
Terreno para Venda em Ramada e Caneças Foto 7
Terreno para Venda em Ramada e Caneças Foto 8
Terreno para Venda em Ramada e Caneças Foto 9
Terreno para Venda em Ramada e Caneças Foto 10
Terreno para Venda em Ramada e Caneças Foto 11
Terreno para Venda em Ramada e Caneças Foto 12
Clicky