Voltar
Apartamento T3 para Venda em Golães Foto 1
Apartamento T3 para Venda em Golães Foto 2
Apartamento T3 para Venda em Golães Foto 3
Apartamento T3 para Venda em Golães Foto 4
Apartamento T3 para Venda em Golães Foto 5

Apartamento T3 para Venda em Golães

255.000 €

Tipo
Apartamento
Negócio
Venda
Ano de Construção
2025
Quartos
3
Casas de Banho
3
Área Bruta
155 m²
Área Útil
132 m²
Condição
Usado
Certificado Energético
A
Área do Terreno
60 m²

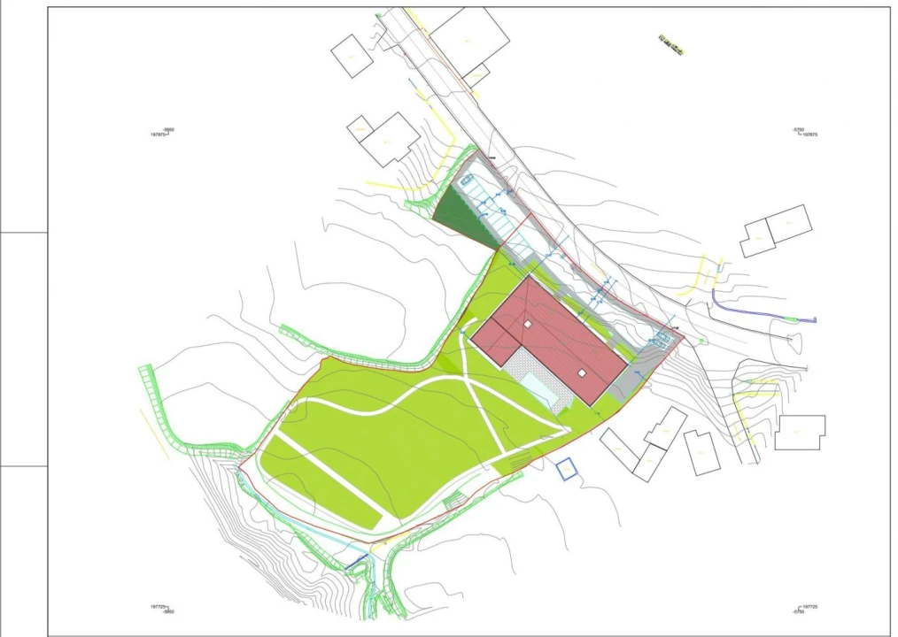
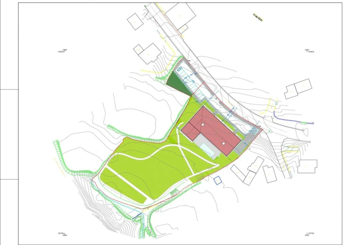
APARTAMENTOS T3 EM CONDOMÍNIO PRIVADO FAFE

Empreendimento entre Fafe e Guimarães "Condomínio Varziela".

O futuro da sua casa começa aqui!
Apresentamos este moderno Apartamento T3 em fase de construção, num empreendimento pensado para oferecer conforto, qualidade e valorização garantida.

Destaques que fazem a diferença:

3 Quartos com roupeiros embutidos (inclui 1 suíte com WC privativo)
Sala e cozinha em open space, totalmente equipada
3 Casas de banho (suite, social, serviço)
Varanda ampla com churrasqueira
Piscina comum e espaço exterior privativo (60 m² para horta ou lazer)
Garagens fechadas individuais e lugar de estacionamento
Equipado com bomba de calor, ar condicionado e estores elétricos
Caixilharia com corte térmico e vidro térmico para maior eficiência energética
Acabamentos de qualidade e localização privilegiada, perto de comércio e serviços

Valores entre 255.000, 00 € e 295.000,00€ (dependendo das áreas e andar).
Golães – Fafe (a 5 min do centro e a 15 min de Guimarães)

Investimento seguro e oportunidade única – Ideal para quem procura modernidade, conforto e uma excelente valorização futura.

Reserve já a sua fração! Entre em contacto conosco e garanta a sua casa de sonho.

Localização

Golães, Fafe, Braga

Informação do anúncio

ID do anúncio 1451530
Referência Externa 169
Atualizado em 21/11/2025 09:35:29
AMS Imobiliária AMI 25358
Referência do imóvel: 169
Phone
Chamada para a rede móvel nacional
AMS Imobiliária AMI 25358
Referência do imóvel: 169
Phone
Chamada para a rede móvel nacional
1 / 48
Apartamento T3 para Venda em Golães Foto 1
Apartamento T3 para Venda em Golães Foto 2
Apartamento T3 para Venda em Golães Foto 3
Apartamento T3 para Venda em Golães Foto 4
Apartamento T3 para Venda em Golães Foto 5
Apartamento T3 para Venda em Golães Foto 6
Apartamento T3 para Venda em Golães Foto 7
Apartamento T3 para Venda em Golães Foto 8
Apartamento T3 para Venda em Golães Foto 9
Apartamento T3 para Venda em Golães Foto 10
Apartamento T3 para Venda em Golães Foto 11
Apartamento T3 para Venda em Golães Foto 12
Apartamento T3 para Venda em Golães Foto 13
Apartamento T3 para Venda em Golães Foto 14
Apartamento T3 para Venda em Golães Foto 15
Apartamento T3 para Venda em Golães Foto 16
Apartamento T3 para Venda em Golães Foto 17
Apartamento T3 para Venda em Golães Foto 18
Apartamento T3 para Venda em Golães Foto 19
Apartamento T3 para Venda em Golães Foto 20
Apartamento T3 para Venda em Golães Foto 21
Apartamento T3 para Venda em Golães Foto 22
Apartamento T3 para Venda em Golães Foto 23
Apartamento T3 para Venda em Golães Foto 24
Apartamento T3 para Venda em Golães Foto 25
Apartamento T3 para Venda em Golães Foto 26
Apartamento T3 para Venda em Golães Foto 27
Apartamento T3 para Venda em Golães Foto 28
Apartamento T3 para Venda em Golães Foto 29
Apartamento T3 para Venda em Golães Foto 30
Apartamento T3 para Venda em Golães Foto 31
Apartamento T3 para Venda em Golães Foto 32
Apartamento T3 para Venda em Golães Foto 33
Apartamento T3 para Venda em Golães Foto 34
Apartamento T3 para Venda em Golães Foto 35
Apartamento T3 para Venda em Golães Foto 36
Apartamento T3 para Venda em Golães Foto 37
Apartamento T3 para Venda em Golães Foto 38
Apartamento T3 para Venda em Golães Foto 39
Apartamento T3 para Venda em Golães Foto 40
Apartamento T3 para Venda em Golães Foto 41
Apartamento T3 para Venda em Golães Foto 42
Apartamento T3 para Venda em Golães Foto 43
Apartamento T3 para Venda em Golães Foto 44
Apartamento T3 para Venda em Golães Foto 45
Apartamento T3 para Venda em Golães Foto 46
Apartamento T3 para Venda em Golães Foto 47
Apartamento T3 para Venda em Golães Foto 48
Clicky