Armazém para Arrendamento em Aver-O-Mar, Amorim e Terroso
2.600 €
Tipo
Armazém
Negócio
Arrendamento
Área Bruta
441 m²
Área Útil
440 m²
Condição
Usado
Certificado Energético
Isento
Armazéns novos em Amorim - venda/arrendamento
RO2716
Oportunidade única de adquirir ou arrendar armazéns novos e prontos a ocupar, situados numa localização privilegiada na zona industrial de Amorim, Póvoa de Varzim. Estes armazéns oferecem excelentes acessos, ideal para empresas que procuram eficiência logística e facilidade de movimentação.
Disponíveis duas frações:
-**Fração H**: Com 390 m² de área de implantação, incluindo 60 m² de escritórios. Está à venda por 540.000€ ou para arrendamento por 2.600€/mês. Possui um pé direito de 7 metros, isolamento térmico, zona de manobras e ampla circulação para camiões TIR, facilitando operações de carga e descarga.
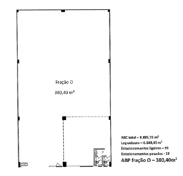
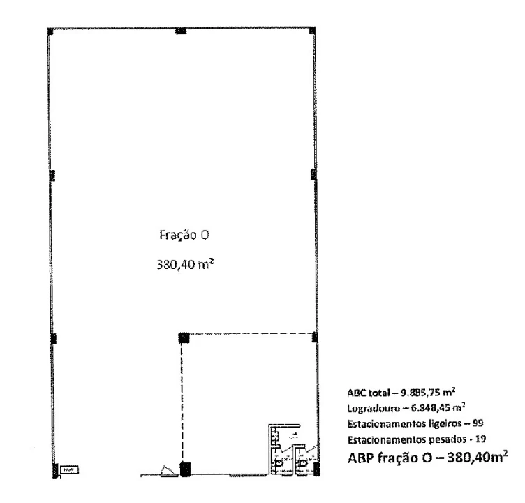
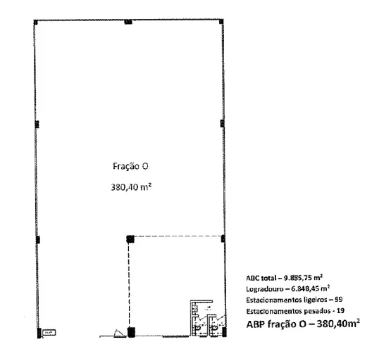
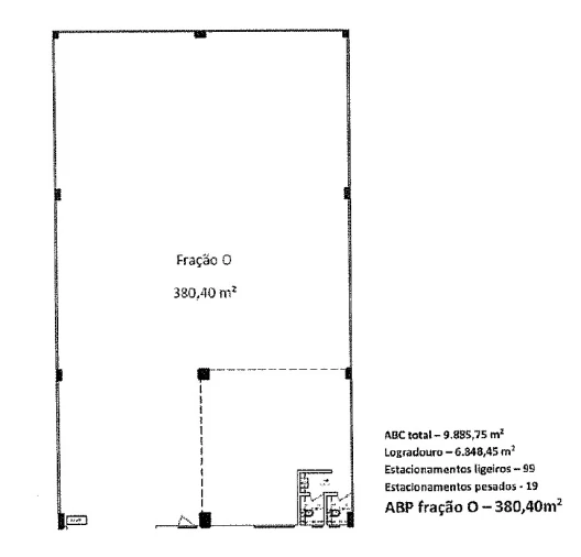
- **Fração O**: Com 380 m² de área de implantação e 60 m² de escritórios. Disponível para venda por 520.000€ ou arrendamento por 2.600€/mês, com as mesmas características de pé direito, isolamento térmico e zona de manobras.
Aproveite esta oportunidade de integrar o seu negócio a uma infraestrutura moderna e de fácil acesso!
ACABAMENTOS:
- Infraestruturas gerais: (Abastecimento de Água; Drenagem de Águas Residuais; Drenagem de Águas Pluviais; Rede de Gás; Rede de Eletricidade; Rede de Telecomunicações;).
- Construção em elementos pré-fabricados, incluindo painéis maciços de revestimento e setorização em betão armado com 16 cm de espessura;
- Cobertura tipo deck, incluindo claraboias para iluminação natural;
- Pisos interiores em betão com fibras metálicas e espessura de 15 cm;
- Pisos exteriores em betuminoso;
- Caixilharia em alumínio com vidros duplos;
- Bainhadas elétricas concluídas com potência de 41,40 KVA;
- Portões seccionados e eletrificados;
- Iluminação da nave apenas com 1 ponto de luz, 1 tomada monofásica e 1 tomada trifásica;
- Instalações sanitárias com revestimento a material cerâmico no pavimento e paredes e a gesso cartonado no teto;
Para mais informações e/ou agendar visita contacte-nos!
A Real Objectiva é uma empresa implantada no norte de Portugal, vocacionada para a venda e arrendamento de imóveis. Fruto dos seus 26 anos de trabalho, pautados pelo rigor e profissionalismo alcançou resultados reconhecidos pelo mercado em que se insere, atuando de forma transversal no mercado habitacional e no mercado industrial.
Missão:
Praticar um conceito de mediação imobiliária baseada na relação cliente/empresa consolidada pelo papel do consultor especialista e capaz de permitir a superação das expectativas de todos os intervenientes.
Posicionamento:
Vendemos casas
Vendemos armazéns, escritórios, lojas e terrenos
Especialistas do mercado imobiliário
Princípios de Atuação:
Competência
Confidencialidade
Idoneidade
Disponibilidade
Modelos de Ação:
Rigor e profissionalismo
Especialistas na angariação e na mediação imobiliária
Estudamos o mercado e propomo-nos a encontrar soluções adequadas
Avaliações rigorosas e alvo de estudo pormenorizado
Cuidado extremo nas visitas
Oportunidade única de adquirir ou arrendar armazéns novos e prontos a ocupar, situados numa localização privilegiada na zona industrial de Amorim, Póvoa de Varzim. Estes armazéns oferecem excelentes acessos, ideal para empresas que procuram eficiência logística e facilidade de movimentação.
Disponíveis duas frações:
-**Fração H**: Com 390 m² de área de implantação, incluindo 60 m² de escritórios. Está à venda por 540.000€ ou para arrendamento por 2.600€/mês. Possui um pé direito de 7 metros, isolamento térmico, zona de manobras e ampla circulação para camiões TIR, facilitando operações de carga e descarga.
- **Fração O**: Com 380 m² de área de implantação e 60 m² de escritórios. Disponível para venda por 520.000€ ou arrendamento por 2.600€/mês, com as mesmas características de pé direito, isolamento térmico e zona de manobras.
Aproveite esta oportunidade de integrar o seu negócio a uma infraestrutura moderna e de fácil acesso!
ACABAMENTOS:
- Infraestruturas gerais: (Abastecimento de Água; Drenagem de Águas Residuais; Drenagem de Águas Pluviais; Rede de Gás; Rede de Eletricidade; Rede de Telecomunicações;).
- Construção em elementos pré-fabricados, incluindo painéis maciços de revestimento e setorização em betão armado com 16 cm de espessura;
- Cobertura tipo deck, incluindo claraboias para iluminação natural;
- Pisos interiores em betão com fibras metálicas e espessura de 15 cm;
- Pisos exteriores em betuminoso;
- Caixilharia em alumínio com vidros duplos;
- Bainhadas elétricas concluídas com potência de 41,40 KVA;
- Portões seccionados e eletrificados;
- Iluminação da nave apenas com 1 ponto de luz, 1 tomada monofásica e 1 tomada trifásica;
- Instalações sanitárias com revestimento a material cerâmico no pavimento e paredes e a gesso cartonado no teto;
Para mais informações e/ou agendar visita contacte-nos!
A Real Objectiva é uma empresa implantada no norte de Portugal, vocacionada para a venda e arrendamento de imóveis. Fruto dos seus 26 anos de trabalho, pautados pelo rigor e profissionalismo alcançou resultados reconhecidos pelo mercado em que se insere, atuando de forma transversal no mercado habitacional e no mercado industrial.
Missão:
Praticar um conceito de mediação imobiliária baseada na relação cliente/empresa consolidada pelo papel do consultor especialista e capaz de permitir a superação das expectativas de todos os intervenientes.
Posicionamento:
Vendemos casas
Vendemos armazéns, escritórios, lojas e terrenos
Especialistas do mercado imobiliário
Princípios de Atuação:
Competência
Confidencialidade
Idoneidade
Disponibilidade
Modelos de Ação:
Rigor e profissionalismo
Especialistas na angariação e na mediação imobiliária
Estudamos o mercado e propomo-nos a encontrar soluções adequadas
Avaliações rigorosas e alvo de estudo pormenorizado
Cuidado extremo nas visitas
Localização
Aver-O-Mar, Amorim e Terroso, Póvoa de Varzim, Porto
Informação do anúncio
ID do anúncio
1456894
Referência Externa
RO2716
Atualizado em
08/11/2025 08:03:28
Armazém para Arrendamento em Aver-O-Mar, Amorim e Terroso
Vídeo