Moradia T4 para Venda em Aradas
850.000 €
Tipo
Moradia
Negócio
Venda
Quartos
4
Casas de Banho
4
Área Bruta
220 m²
Área Útil
180 m²
Condição
Novo
Certificado Energético
A
Área do Terreno
350 m²
Características
Arrecadação
Moradia T4, Aveiro, perto da Universidade com vista ria
Moradia T4 Aveiro, com vista para as marinhas e próxima da Universidade. Inserida em zona residencial calma com uma envolvente natural de uma beleza paisagística única, esta moradia é ideal para a sua família.
A moradia tem dois pisos, sendo que no rés-do-chão tem cozinha totalmente equipada, sala ampla com acesso ao jardim, quarto com casa de banho completa, e uma casa de banho de serviço de apoio à zona social
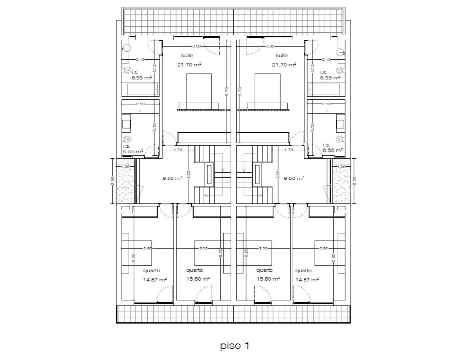
No piso superior a moradia tem uma casa de banho completa, e três quartos com roupeiros embutidos, sendo que um tem casa de banho privativa. Todos os quartos têm varanda.
Tem jardim e pátio descoberto onde pode usufruir de bons momentos em família e com Amigos .
Tem garagem dupla.
Marque a sua visita!
CE A
Ref. 7069
4-bedroom detached house in Aveiro, with views over the salt pans and close to the University. Set in a quiet residential area with a natural setting of unique scenic beauty, this property is ideal for family living.
The house has two floors. On the ground floor there is a fully equipped kitchen, a spacious living room with direct access to the garden, one bedroom with a full bathroom, and a guest bathroom serving the social area.
On the upper floor there are three bedrooms with built-in wardrobes, one of which has an en-suite bathroom. All bedrooms have balconies.
The property also features a garden and an outdoor patio, perfect for enjoying quality time with family and friends.
Double garage.
Book your visit now!
Energy Certificate: A
Ref. 7069
A moradia tem dois pisos, sendo que no rés-do-chão tem cozinha totalmente equipada, sala ampla com acesso ao jardim, quarto com casa de banho completa, e uma casa de banho de serviço de apoio à zona social
No piso superior a moradia tem uma casa de banho completa, e três quartos com roupeiros embutidos, sendo que um tem casa de banho privativa. Todos os quartos têm varanda.
Tem jardim e pátio descoberto onde pode usufruir de bons momentos em família e com Amigos .
Tem garagem dupla.
Marque a sua visita!
CE A
Ref. 7069
4-bedroom detached house in Aveiro, with views over the salt pans and close to the University. Set in a quiet residential area with a natural setting of unique scenic beauty, this property is ideal for family living.
The house has two floors. On the ground floor there is a fully equipped kitchen, a spacious living room with direct access to the garden, one bedroom with a full bathroom, and a guest bathroom serving the social area.
On the upper floor there are three bedrooms with built-in wardrobes, one of which has an en-suite bathroom. All bedrooms have balconies.
The property also features a garden and an outdoor patio, perfect for enjoying quality time with family and friends.
Double garage.
Book your visit now!
Energy Certificate: A
Ref. 7069
Localização
Aradas, Aveiro, Aveiro
Informação do anúncio
ID do anúncio
1488829
Referência Externa
7069
Atualizado em
16/04/2026 05:56:31
Moradia T4 para Venda em Aradas