Voltar
Apartamento T2 para Venda em Lagos (São Sebastião e Santa Maria) Foto 1
Apartamento T2 para Venda em Lagos (São Sebastião e Santa Maria) Foto 2
Apartamento T2 para Venda em Lagos (São Sebastião e Santa Maria) Foto 3
Apartamento T2 para Venda em Lagos (São Sebastião e Santa Maria) Foto 4
Apartamento T2 para Venda em Lagos (São Sebastião e Santa Maria) Foto 5
Visita Virtual Visita Virtual

Apartamento T2 para Venda em Lagos (São Sebastião e Santa Maria)

790.000 €

Tipo
Apartamento
Negócio
Venda
Ano de Construção
2028
Quartos
2
Casas de Banho
2
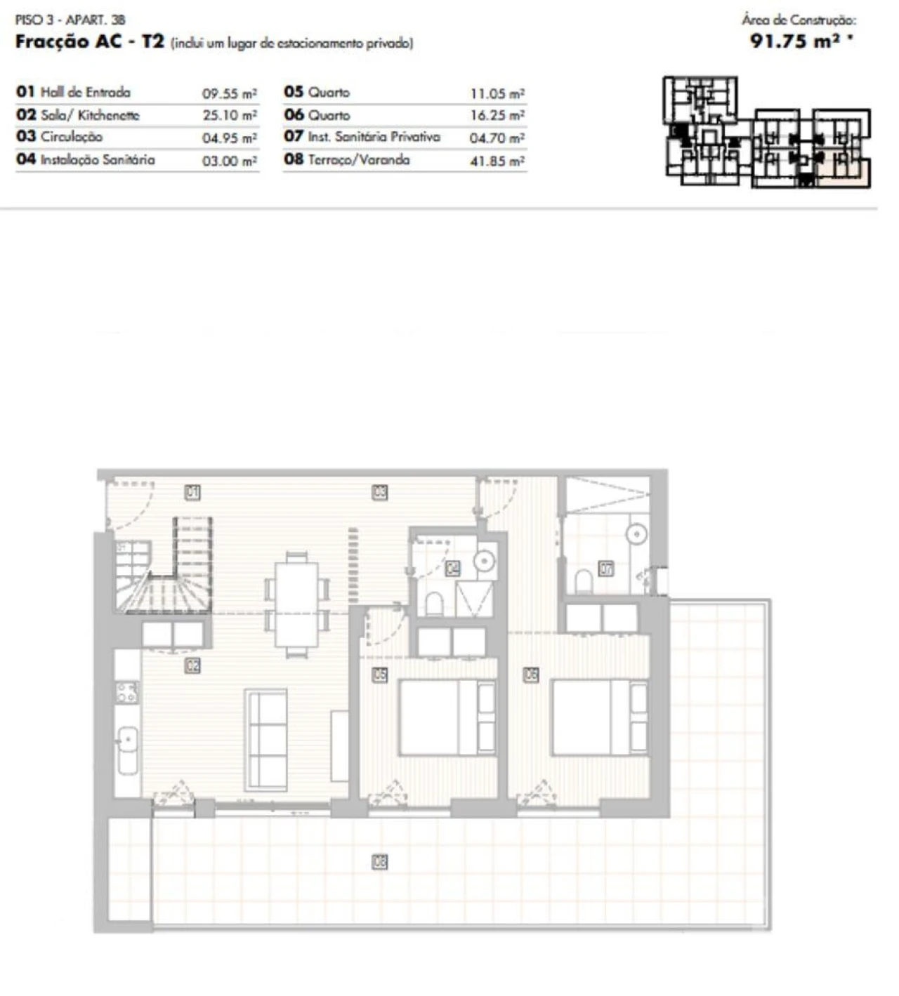
Área Útil
92 m²
Certificado Energético
A

Apartamento T2 em São Gonçalo De Lagos de 92,00 m²

Residências Contemporâneas de Luxo a Apenas 5 Minutos da Praia de Porto de Mós, Lagos -D22 - 3B
T2 + duplex com area util 114m2 e total 174m2

Descubra um novo conceito residencial de alto padrão em Lagos, composto por dois edifícios modernos e exclusivos com um total de 65 apartamentos de design contemporâneo.
Criado para proporcionar um estilo de vida elegante, confortável e em harmonia com a natureza, este projeto combina arquitetura sofisticada, materiais de qualidade superior e tecnologia de última geração.

Situado a apenas 5 minutos da praia de Porto de Mós, oferece um ambiente ideal, equilibrando a energia do centro da cidade com a tranquilidade do oceano.

Conforto, design e bem-estar
Os apartamentos, desde T1+1 até T2 Duplex, destacam-se pelos espaços amplos e luminosos, varandas espaçosas e concepção pensada para o conforto total.
Cada detalhe foi cuidadosamente projetado para criar um espaço de vida moderno, funcional e harmonioso, perfeito tanto para residência permanente quanto para investimento.

✨ Características e acabamentos:
Ar-condicionado
Piso radiante
Estores elétricos
Cozinha totalmente equipada
Sistema solar e painéis fotovoltaicos
Domótica inteligente
Isolamento térmico e acústico de alta eficiência
Internet por fibra ótica
Piscina exterior
Ginásio
Estacionamento privado em garagem subterrânea

Tipologias e preços:
T1+1 a partir de 550 000 €
T2 a partir de 560 000 €
T2 Duplex até 860 000 €
Áreas entre 85 m² e mais de 250 m², com varandas e terraços privados.

Conclusão prevista: dezembro de 2028
Mais do que uma simples residência, este projeto representa uma nova experiência de vida, onde design contemporâneo, tecnologia moderna e qualidade de vida se unem em perfeita harmonia, no coração de Lagos.

Uma oportunidade única de adquirir uma propriedade de excelência no Algarve, num ambiente moderno e tranquilo.
#ref: 154079

Localização

Lagos (São Sebastião e Santa Maria), Lagos, Faro

Informação do anúncio

ID do anúncio 1507177
Referência Externa 154079
Atualizado em 12/03/2026 00:22:58
IAD Portugal AMI 11220
Referência do imóvel: 154079
Phone
Chamada para a rede fixa nacional
IAD Portugal AMI 11220
Referência do imóvel: 154079
Phone
Chamada para a rede fixa nacional
1 / 13
Apartamento T2 para Venda em Lagos (São Sebastião e Santa Maria) Foto 1
Apartamento T2 para Venda em Lagos (São Sebastião e Santa Maria) Foto 2
Apartamento T2 para Venda em Lagos (São Sebastião e Santa Maria) Foto 3
Apartamento T2 para Venda em Lagos (São Sebastião e Santa Maria) Foto 4
Apartamento T2 para Venda em Lagos (São Sebastião e Santa Maria) Foto 5
Apartamento T2 para Venda em Lagos (São Sebastião e Santa Maria) Foto 6
Apartamento T2 para Venda em Lagos (São Sebastião e Santa Maria) Foto 7
Apartamento T2 para Venda em Lagos (São Sebastião e Santa Maria) Foto 8
Apartamento T2 para Venda em Lagos (São Sebastião e Santa Maria) Foto 9
Apartamento T2 para Venda em Lagos (São Sebastião e Santa Maria) Foto 10
Apartamento T2 para Venda em Lagos (São Sebastião e Santa Maria) Foto 11
Apartamento T2 para Venda em Lagos (São Sebastião e Santa Maria) Foto 12
Apartamento T2 para Venda em Lagos (São Sebastião e Santa Maria) Foto 13
Apartamento T2 para Venda em Lagos (São Sebastião e Santa Maria)
Clicky