Escritório para Venda em Benedita
170.000 €
Tipo
Escritório
Negócio
Venda
Ano de Construção
2026
Casas de Banho
2
Área Útil
63 m²
Certificado Energético
N/A
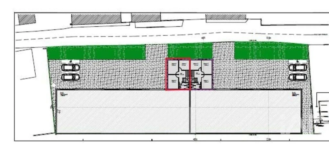
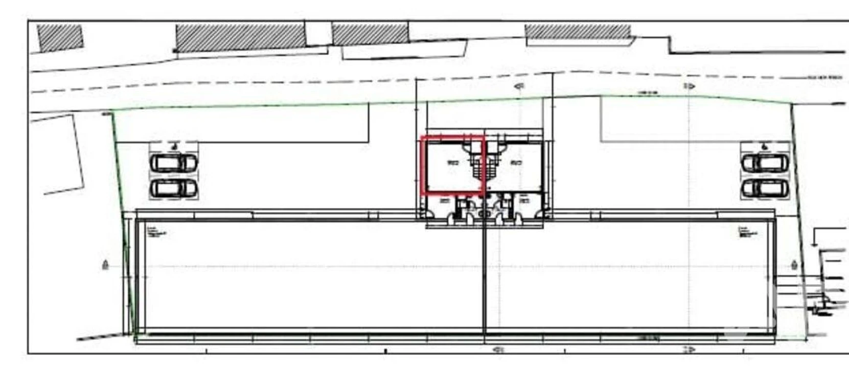
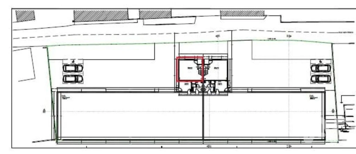
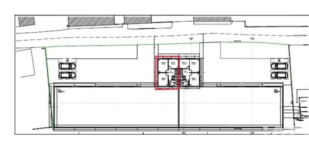
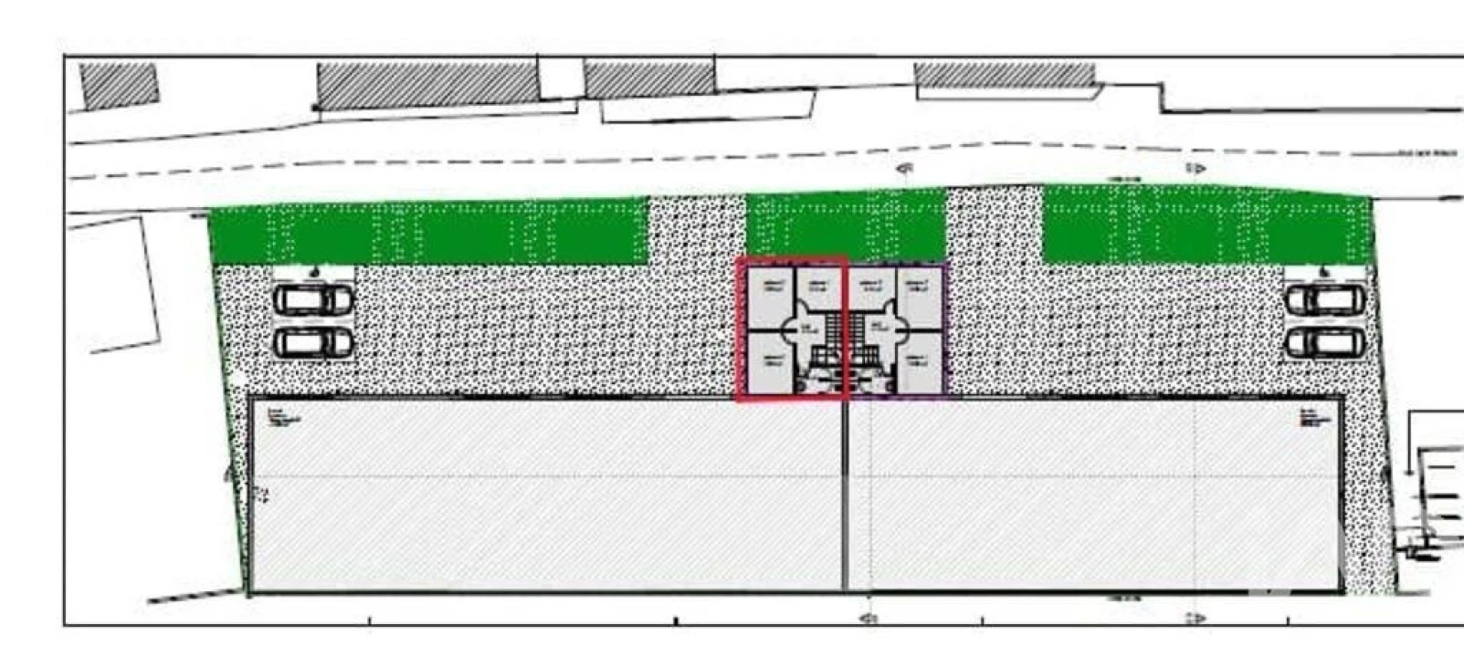
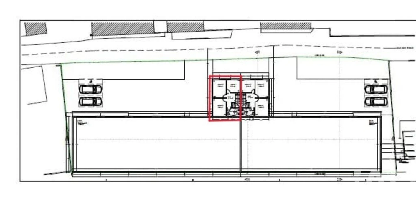
Escritório em Benedita de 63,00 m²
Oportunidade Única – Escritório em Construção na Moita do Gavião (63 m²) - Escritório do lado esquerdo.
Se procura um espaço profissional moderno, versátil e estrategicamente localizado, esta é a oportunidade ideal. Situado na Moita do Gavião, este escritório com 63 m² encontra-se atualmente em fase de construção, permitindo ao comprador personalizar acabamentos e adaptar o ambiente às necessidades do seu negócio.
O imóvel destaca-se pela sua excelente exposição, acessibilidade e proximidade a vias principais, tornando-o perfeito para empresas que valorizam imagem, funcionalidade e rapidez de acesso. A planta aberta oferece total flexibilidade para organizar gabinetes, zona de receção, área de trabalho colaborativa ou sala de reuniões.
Além disso, tem como complemento um espaço de showroom, ideal para apresentação de produtos, atendimento especializado ou criação de uma área de demonstração premium. Esta opção acrescenta grande valor a marcas que pretendem elevar a experiência dos seus clientes.
Construção moderna, materiais de qualidade e atenção ao detalhe garantem um ambiente profissional confortável, eficiente e preparado para receber qualquer tipo de atividade comercial ou de serviços.
Existe ainda a possibilidade da aquisição de armazém para produção, também em fase de construção, o que permite conciliar os dois espaços numa atividade só, bem como, a possibilidade de arrendamento.
Se pretende investir num espaço com potencial real de valorização, adaptável e bem localizado, não perca esta oportunidade. Entre em contacto para mais informações ou para agendar visita ao local.
#ref: 153944
Se procura um espaço profissional moderno, versátil e estrategicamente localizado, esta é a oportunidade ideal. Situado na Moita do Gavião, este escritório com 63 m² encontra-se atualmente em fase de construção, permitindo ao comprador personalizar acabamentos e adaptar o ambiente às necessidades do seu negócio.
O imóvel destaca-se pela sua excelente exposição, acessibilidade e proximidade a vias principais, tornando-o perfeito para empresas que valorizam imagem, funcionalidade e rapidez de acesso. A planta aberta oferece total flexibilidade para organizar gabinetes, zona de receção, área de trabalho colaborativa ou sala de reuniões.
Além disso, tem como complemento um espaço de showroom, ideal para apresentação de produtos, atendimento especializado ou criação de uma área de demonstração premium. Esta opção acrescenta grande valor a marcas que pretendem elevar a experiência dos seus clientes.
Construção moderna, materiais de qualidade e atenção ao detalhe garantem um ambiente profissional confortável, eficiente e preparado para receber qualquer tipo de atividade comercial ou de serviços.
Existe ainda a possibilidade da aquisição de armazém para produção, também em fase de construção, o que permite conciliar os dois espaços numa atividade só, bem como, a possibilidade de arrendamento.
Se pretende investir num espaço com potencial real de valorização, adaptável e bem localizado, não perca esta oportunidade. Entre em contacto para mais informações ou para agendar visita ao local.
#ref: 153944
Localização
Benedita, Alcobaça, Leiria
Informação do anúncio
ID do anúncio
1508924
Referência Externa
153944
Atualizado em
25/04/2026 23:34:56
Escritório para Venda em Benedita
Vídeo