Voltar
Armazém para Venda em Benedita Foto 1
Armazém para Venda em Benedita Foto 2
Armazém para Venda em Benedita Foto 3
Armazém para Venda em Benedita Foto 4
Armazém para Venda em Benedita Foto 5

Armazém para Venda em Benedita

400.000 €

Tipo
Armazém
Negócio
Venda
Ano de Construção
2026
Casas de Banho
1
Área Útil
342 m²
Certificado Energético
N/A

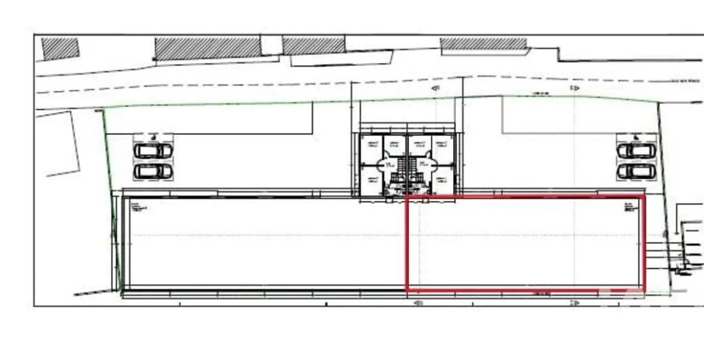
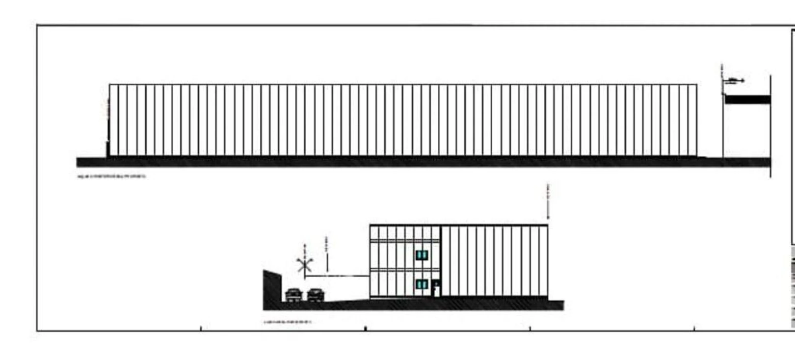
Hangar em Benedita de 342,00 m²

Oportunidade Única – Armazém em Construção na Moita do Gavião (342 m²) - Armazém do lado direito.
Apresentamos um armazém em construção com 342 m², localizado na tranquila e valorizada zona da Moita do Gavião, Benedita. Este espaço destaca-se pela sua versatilidade, sendo ideal para armazenamento geral, pequenas atividades comerciais, estúdios criativos ou apoio logístico leve. A configuração ampla e funcional permite adaptar o imóvel a diferentes tipos de negócio, garantindo praticidade e eficiência no uso diário.
A localização é um dos principais pontos fortes do imóvel. A Moita do Gavião oferece um ambiente calmo, organizado e com excelentes acessos às principais vias da região, permitindo deslocações rápidas para Alcobaça, Caldas da Rainha, Nazaré e outras localidades do Oeste. A envolvente proporciona boa exposição, facilidade de estacionamento e um enquadramento agradável, ideal para quem procura trabalhar longe da agitação urbana, sem perder acessibilidade.
A construção segue padrões atuais, utilizando materiais de qualidade e soluções que asseguram conforto térmico, boa luminosidade natural e eficiência no dia a dia.
Existe ainda a possibilidade da aquisição de Escritório com showroom e três gabinetes, também em fase de construção, o que permite conciliar os dois espaços numa atividade só.
Se procura um armazém moderno, funcional e bem localizado, esta é uma oportunidade a considerar. Há também opção de arrendamento.
Contacte para mais informações ou visita.
#ref: 154099

Localização

Benedita, Alcobaça, Leiria

Informação do anúncio

ID do anúncio 1508949
Referência Externa 154099
Atualizado em 23/02/2026 00:17:27
IAD Portugal AMI 11220
Referência do imóvel: 154099
Phone
Chamada para a rede fixa nacional
IAD Portugal AMI 11220
Referência do imóvel: 154099
Phone
Chamada para a rede fixa nacional
1 / 14
Armazém para Venda em Benedita Foto 1
Armazém para Venda em Benedita Foto 2
Armazém para Venda em Benedita Foto 3
Armazém para Venda em Benedita Foto 4
Armazém para Venda em Benedita Foto 5
Armazém para Venda em Benedita Foto 6
Armazém para Venda em Benedita Foto 7
Armazém para Venda em Benedita Foto 8
Armazém para Venda em Benedita Foto 9
Armazém para Venda em Benedita Foto 10
Armazém para Venda em Benedita Foto 11
Armazém para Venda em Benedita Foto 12
Armazém para Venda em Benedita Foto 13
Armazém para Venda em Benedita Foto 14
Armazém para Venda em Benedita
Clicky