Terreno para Venda em Canelas
1.060.000 €
Tipo
Terreno
Negócio
Venda
Área do Terreno
5060 m²
Terreno para construção em Canelas
Oportunidade de Investimento única – Terreno com PIP Aprovado em Canelas | Vila Nova de Gaia, na cidade do Porto !
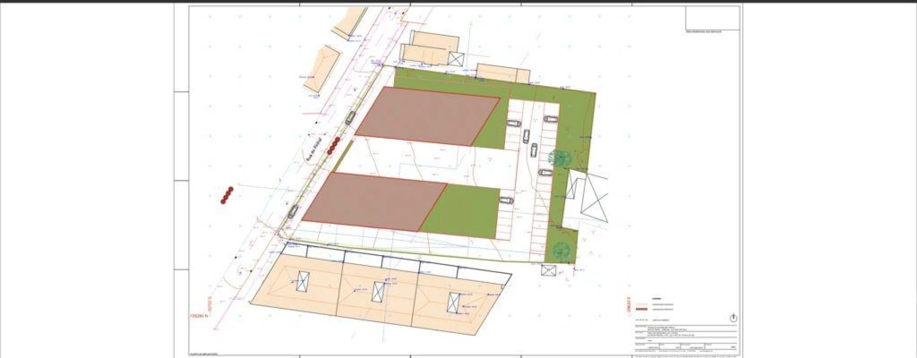
Apresentamos uma oportunidade única de investimento num terreno com , Pedido de Informação Prévia (PIP) aprovado, para o desenvolvimento de um , empreendimento habitacional multifamiliar, com capacidade estimada para , 70 a 90 apartamentos , localizado em Canelas, uma das zonas residenciais com maior crescimento em Vila Nova de Gaia e na cidade do Porto.
Com uma área total de , 5.056,58 m², o projeto prevê a construção de dois volumes edificados, com cave comum para estacionamento, praceta central de acesso e zonas verdes de utilização pública, promovendo um conceito urbano equilibrado que alia funcionalidade, conforto e qualidade arquitetónica.
Um projeto alinhado com a procura atual do mercado
Inserido num concelho que tem registado , crescimento populacional contínuo e forte procura por habitação nova, este projeto responde de forma clara às tendências atuais do mercado imobiliário:
- Elevada procura por habitação nova nas zonas periféricas da cidade do Porto.
- Forte potencial de valorização associado à evolução urbana de Vila Nova de Gaia.
- Excelente relação entre área de construção e preço por metro quadrado.
- Enquadramento urbanístico favorável.
- Bons acessos a serviços, escolas, transportes públicos e principais vias rodoviárias.
Características principais do terreno e do projeto:
* Área do terreno: 5.056,58 m²
* Área de implantação: 2.062,64 m²
* Área bruta de construção (habitação): 5.300,96 m²
* Área de estacionamento (cave): 2.062,64 m²
* Área a ceder ao domínio público: 2.993,94 m²
* Cércea máxima aprovada: 13,51 m
* Volumetria total: 20.362,86 m³
* Tipologia: Habitação multifamiliar
* Preço: 1.060.000 €
Este projeto oferece ao investidor segurança jurídica, viabilidade técnica e elevada margem de valorização , estando preparado para responder de forma eficaz à crescente pressão demográfica e à necessidade de soluções habitacionais integradas em Vila Nova de Gaia.
Entre em contacto para mais informações ou para agendar uma reunião de apresentação do projeto.
#ref: 777835
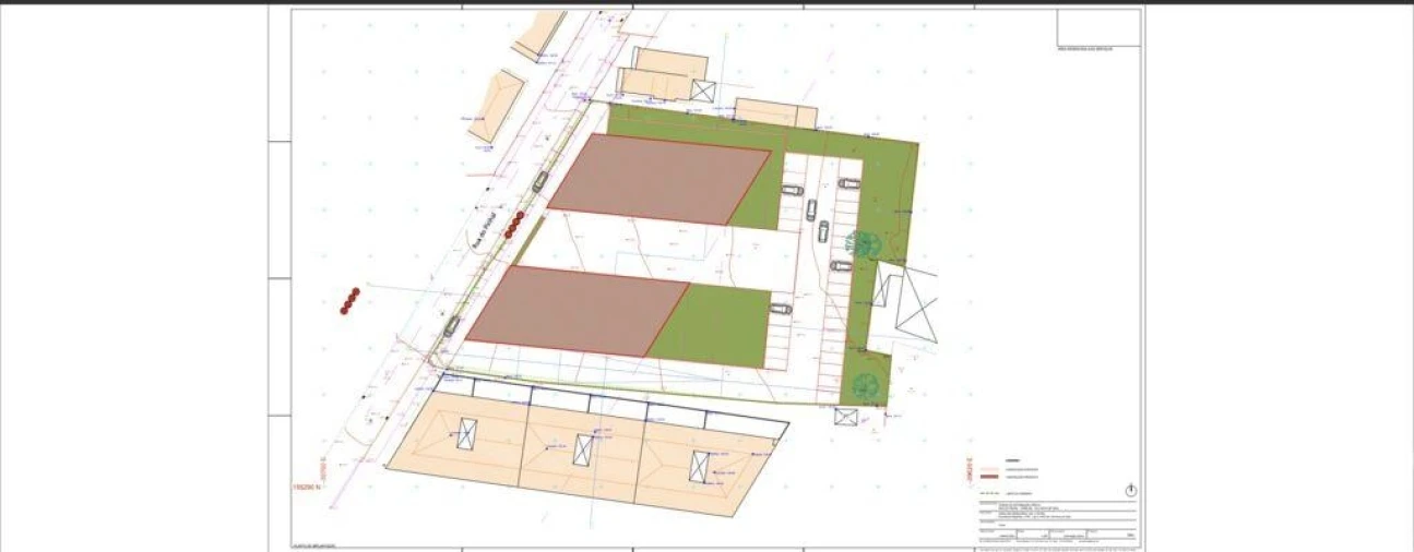
Apresentamos uma oportunidade única de investimento num terreno com , Pedido de Informação Prévia (PIP) aprovado, para o desenvolvimento de um , empreendimento habitacional multifamiliar, com capacidade estimada para , 70 a 90 apartamentos , localizado em Canelas, uma das zonas residenciais com maior crescimento em Vila Nova de Gaia e na cidade do Porto.
Com uma área total de , 5.056,58 m², o projeto prevê a construção de dois volumes edificados, com cave comum para estacionamento, praceta central de acesso e zonas verdes de utilização pública, promovendo um conceito urbano equilibrado que alia funcionalidade, conforto e qualidade arquitetónica.
Um projeto alinhado com a procura atual do mercado
Inserido num concelho que tem registado , crescimento populacional contínuo e forte procura por habitação nova, este projeto responde de forma clara às tendências atuais do mercado imobiliário:
- Elevada procura por habitação nova nas zonas periféricas da cidade do Porto.
- Forte potencial de valorização associado à evolução urbana de Vila Nova de Gaia.
- Excelente relação entre área de construção e preço por metro quadrado.
- Enquadramento urbanístico favorável.
- Bons acessos a serviços, escolas, transportes públicos e principais vias rodoviárias.
Características principais do terreno e do projeto:
* Área do terreno: 5.056,58 m²
* Área de implantação: 2.062,64 m²
* Área bruta de construção (habitação): 5.300,96 m²
* Área de estacionamento (cave): 2.062,64 m²
* Área a ceder ao domínio público: 2.993,94 m²
* Cércea máxima aprovada: 13,51 m
* Volumetria total: 20.362,86 m³
* Tipologia: Habitação multifamiliar
* Preço: 1.060.000 €
Este projeto oferece ao investidor segurança jurídica, viabilidade técnica e elevada margem de valorização , estando preparado para responder de forma eficaz à crescente pressão demográfica e à necessidade de soluções habitacionais integradas em Vila Nova de Gaia.
Entre em contacto para mais informações ou para agendar uma reunião de apresentação do projeto.
#ref: 777835
Localização
Canelas, Vila Nova de Gaia, Porto
Informação do anúncio
ID do anúncio
1531345
Referência Externa
777835
Atualizado em
16/05/2026 23:36:52
Terreno para Venda em Canelas
Vídeo