Apartamento T2 para Venda em Esgueira
495.000 €
Tipo
Apartamento
Negócio
Venda
Ano de Construção
2025
Quartos
2
Casas de Banho
3
Área Útil
206 m²
Certificado Energético
B-
Área do Terreno
1016 m²
Apartamento T2 em Esgueira de 206,00 m²
Apartamento T2 Duplex em Esgueira
Apartamento de áreas generosas, distribuído por 2 pisos, localizado numa zona residencial tranquila.
A poucos minutos do centro de Aveiro e próximo de comércio, serviços e transportes. Bons acessos à A25, com ligação à A1, A17 e A8. Localizado a cerca de 15 minutos das praias da Barra e Costa Nova e a poucos minutos da estação ferroviária de Aveiro.
Áreas:
•206,39m2 de área habitável situado no 2.º Andar.
•Garagem fechada para 3 viaturas, na cave, com 39,71m2.
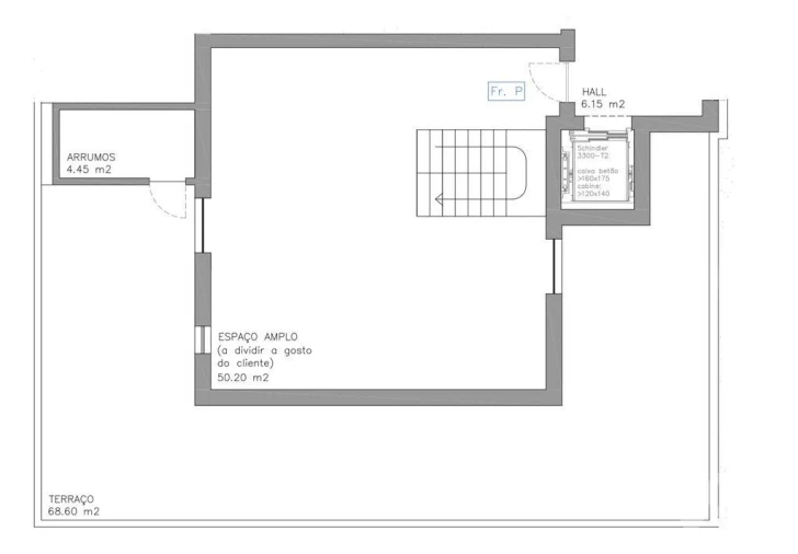
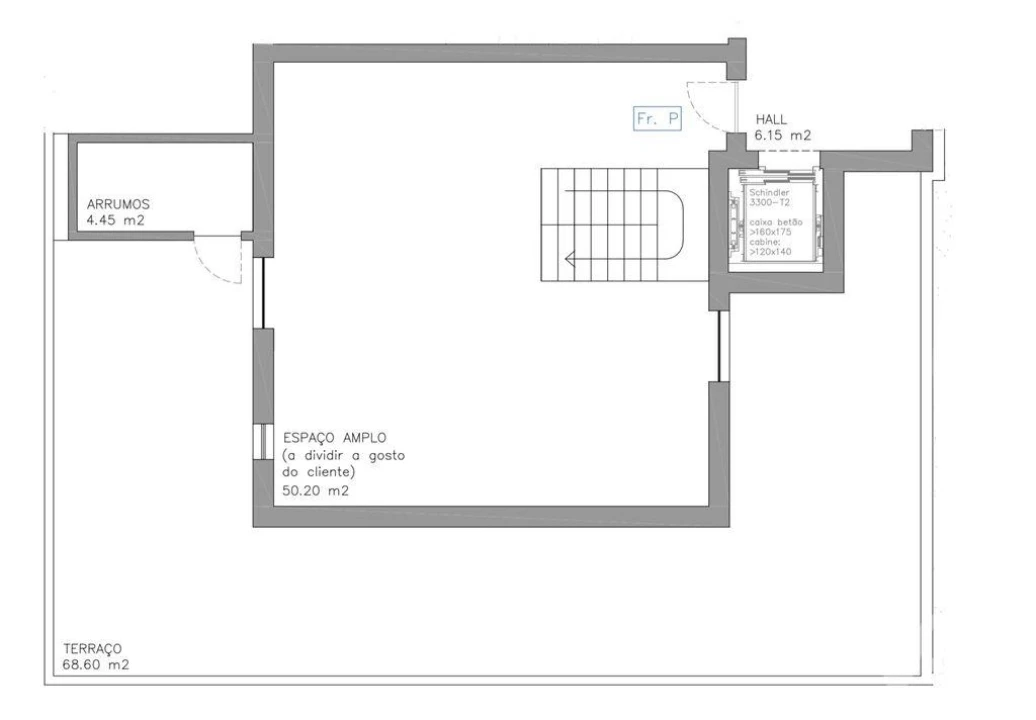
•Terraço na cobertura com 68,60m2.
•Varandas com 7,85m2.
•Arrumo na cobertura com 4,45m2.
Distribuição 1.º Piso:
•2 quartos suites, equipados com roupeiros embutidos, quartos banho completos.
•Cozinha e sala em open space.
•Despensa.
•Rouparia
•Quarto de banho de serviço.
Distribuição 2.º Piso:
• Espaço amplo (a dividir a gosto pelo cliente), com 50,20m2
Equipamentos:
•Caixilharia em alumínio de corte térmico série LT, vidro duplo Stadip + caixa de ar + Planitherm.
•Estores elétricos automatizados.
•Estores térmicos.
•Ar condicionado, em todas as divisões, marca Bosh.
•Cozinha equipada com micro-ondas; forno; placa; exaustor e máquina de lavar louça, tudo marca Bosh.
•Aquecimento das águas por bomba de calor marca Termobrasa sem necessidade de troca do ânodo de magnésio.
•Louças sanitárias suspensas da Sanitana modelo Ruby, tampo da sanita com queda amortecida.
•Base de duche marca Planstone.
•Torneira e chuveiro marca Grohe.
•Pré-instalação de painéis fotovoltaicos.
•Pré-instalação para carregamento de viaturas elétricas.
•Pavimentos, na generalidade, em flutuante Vinílico, nas casas de banho revestimento cerâmico.
#ref: 154604
Apartamento de áreas generosas, distribuído por 2 pisos, localizado numa zona residencial tranquila.
A poucos minutos do centro de Aveiro e próximo de comércio, serviços e transportes. Bons acessos à A25, com ligação à A1, A17 e A8. Localizado a cerca de 15 minutos das praias da Barra e Costa Nova e a poucos minutos da estação ferroviária de Aveiro.
Áreas:
•206,39m2 de área habitável situado no 2.º Andar.
•Garagem fechada para 3 viaturas, na cave, com 39,71m2.
•Terraço na cobertura com 68,60m2.
•Varandas com 7,85m2.
•Arrumo na cobertura com 4,45m2.
Distribuição 1.º Piso:
•2 quartos suites, equipados com roupeiros embutidos, quartos banho completos.
•Cozinha e sala em open space.
•Despensa.
•Rouparia
•Quarto de banho de serviço.
Distribuição 2.º Piso:
• Espaço amplo (a dividir a gosto pelo cliente), com 50,20m2
Equipamentos:
•Caixilharia em alumínio de corte térmico série LT, vidro duplo Stadip + caixa de ar + Planitherm.
•Estores elétricos automatizados.
•Estores térmicos.
•Ar condicionado, em todas as divisões, marca Bosh.
•Cozinha equipada com micro-ondas; forno; placa; exaustor e máquina de lavar louça, tudo marca Bosh.
•Aquecimento das águas por bomba de calor marca Termobrasa sem necessidade de troca do ânodo de magnésio.
•Louças sanitárias suspensas da Sanitana modelo Ruby, tampo da sanita com queda amortecida.
•Base de duche marca Planstone.
•Torneira e chuveiro marca Grohe.
•Pré-instalação de painéis fotovoltaicos.
•Pré-instalação para carregamento de viaturas elétricas.
•Pavimentos, na generalidade, em flutuante Vinílico, nas casas de banho revestimento cerâmico.
#ref: 154604
Localização
Esgueira, Aveiro, Aveiro
Informação do anúncio
ID do anúncio
1545054
Referência Externa
154604
Atualizado em
25/04/2026 23:39:06
Apartamento T2 para Venda em Esgueira
Vídeo