Voltar

Negócio para Venda em Malagueira e Horta das Figueiras

45.000 €

Tipo
Negócio
Negócio
Venda
Casas de Banho
1
Área Bruta
48 m²
Área Útil
48 m²
Condição
Usado
Certificado Energético
C
Área do Terreno
48 m²

Espaço Comercial com 48 m² | Bairro da Cruz da Picada, Évora

Na Avenida do Escurinho, nº 36, junto à conhecida Farmácia Avó, encontra-se este espaço comercial com 48 m², ideal para quem procura iniciar ou expandir o seu negócio numa zona consolidada e com forte passagem diária.

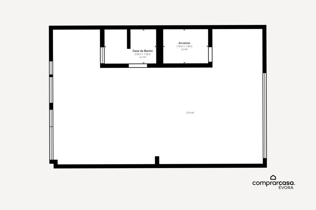
O imóvel distribui-se por:
- Zona aberta com 37,6 m², versátil e adaptável a diferentes tipos de atividade;
- Espaço de arrecadação com 2,4 m², ideal para apoio ao funcionamento do negócio;
- Casa de banho com 2,7 m².

A localização estratégica garante excelente visibilidade, proximidade imediata a comércio, serviços, restauração e zonas habitacionais, beneficiando de um fluxo constante de residentes e clientes da área envolvente.

Vantagens de investir neste espaço:
- Inserido numa das principais artérias da Cruz da Picada;
- Zona com comércio ativo e serviços essenciais nas imediações;
- Forte potencial para comércio de proximidade, serviços ou escritório;
- Boa acessibilidade e facilidade de estacionamento na zona;
- Proximidade ao centro de Évora e aos principais acessos rodoviários.

Nota: O valor do condomínio é de 100.

Uma oportunidade sólida para quem procura um espaço funcional, bem localizado e com potencial de valorização.

Contacte-nos para mais informações ou para agendar a sua visita.

Localização

Malagueira e Horta das Figueiras, Évora, Évora

Informação do anúncio

ID do anúncio 1550742
Referência Externa 318/N/03753
Atualizado em 10/01/2026 02:51:05
ComprarCasa Évora AMI 8303
Referência do imóvel: 318/N/03753
Phone
Chamada para a rede fixa nacional
ComprarCasa Évora AMI 8303
Referência do imóvel: 318/N/03753
Phone
Chamada para a rede fixa nacional
1 / 24
Negócio para Venda em Malagueira e Horta das Figueiras Foto 1
Negócio para Venda em Malagueira e Horta das Figueiras Foto 2
Negócio para Venda em Malagueira e Horta das Figueiras Foto 3
Negócio para Venda em Malagueira e Horta das Figueiras Foto 4
Negócio para Venda em Malagueira e Horta das Figueiras Foto 5
Negócio para Venda em Malagueira e Horta das Figueiras Foto 6
Negócio para Venda em Malagueira e Horta das Figueiras Foto 7
Negócio para Venda em Malagueira e Horta das Figueiras Foto 8
Negócio para Venda em Malagueira e Horta das Figueiras Foto 9
Negócio para Venda em Malagueira e Horta das Figueiras Foto 10
Negócio para Venda em Malagueira e Horta das Figueiras Foto 11
Negócio para Venda em Malagueira e Horta das Figueiras Foto 12
Negócio para Venda em Malagueira e Horta das Figueiras Foto 13
Negócio para Venda em Malagueira e Horta das Figueiras Foto 14
Negócio para Venda em Malagueira e Horta das Figueiras Foto 15
Negócio para Venda em Malagueira e Horta das Figueiras Foto 16
Negócio para Venda em Malagueira e Horta das Figueiras Foto 17
Negócio para Venda em Malagueira e Horta das Figueiras Foto 18
Negócio para Venda em Malagueira e Horta das Figueiras Foto 19
Negócio para Venda em Malagueira e Horta das Figueiras Foto 20
Negócio para Venda em Malagueira e Horta das Figueiras Foto 21
Negócio para Venda em Malagueira e Horta das Figueiras Foto 22
Negócio para Venda em Malagueira e Horta das Figueiras Foto 23
Negócio para Venda em Malagueira e Horta das Figueiras Foto 24
Clicky