Voltar

Apartamento T1 para Venda em Caparica e Trafaria

210.000 €

Tipo
Apartamento
Negócio
Venda
Ano de Construção
2026
Quartos
1
Casas de Banho
1
Área Bruta
40 m²
Área Útil
40 m²
Certificado Energético
C

Apartamento T1 NOVO - 18 min de Lisboa– Trafaria, a 200m do Mar

IMÓVEL PROMOVIDO EM SISTEMA DE PROPOSTAS MÚLTIPLAS

Preço base: 210.000€
O proprietário estará disponível para analisar todas as propostas apresentadas acima do valor base, desde que enviadas até ao dia 24 de fevereiro, às 19h00.
Caso o proprietário considere não estarem reunidas as condições para a aceitação de qualquer proposta, poderá solicitar aos interessados a apresentação de contrapropostas.
O imóvel será considerado vendido com a assinatura do Contrato de Promessa de Compra e Venda (CPCV).

Datas para visitas (mediante marcação):
22 de fevereiro (domingo): 10h00 – 13h00
23 de fevereiro (segunda-feira): 16h00 – 19h00

Apartamento T1 NOVO - 18 min de Lisboa– Trafaria, a 200m do Mar
Disponível para 100% de Financiamento
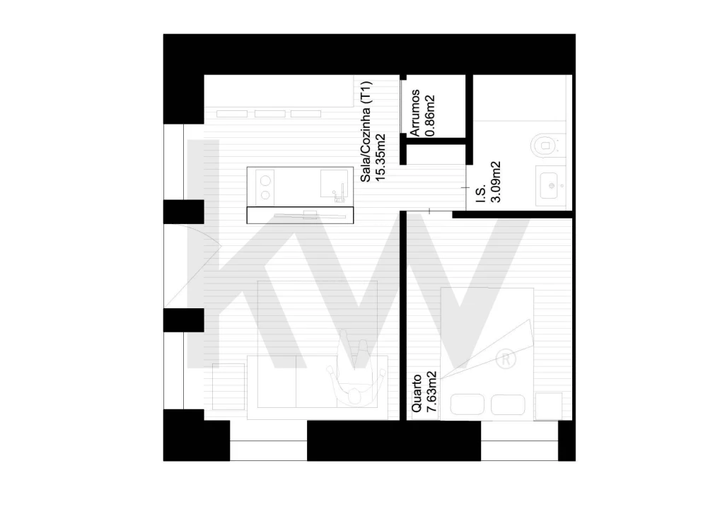
Apartamento novo, construído em 2022 com licença de 2022, totalmente independente e com 40m² muito bem distribuídos. Uma solução prática, moderna e funcional, ideal para viver ou investir numa das zonas costeiras com maior valorização.

Características do T1:
• 40m² de área privativa, com distribuição inteligente e várias zonas de arrumação que maximizam o conforto.
• Cozinha moderna em open space, integrada na sala, criando um ambiente acolhedor e prático para o dia a dia.
• Zona de arrumação junto à casa de banho, perfeita para organização adicional ou para utilização como lavandaria.
• Casa de banho central, situada entre a sala e o quarto, equipada com acabamentos topo de gama.
• Quarto luminoso, com janela e total privacidade, garantindo conforto e tranquilidade.
Este T1 foi pensado para oferecer funcionalidade e bem-estar, tornando-se ideal para habitação própria num início de vida.

Equipamentos e Acabamentos:
• Ar condicionado na sala e no quarto, para conforto durante todo o ano.
• Caixilharia em PVC com vidro duplo, garantindo excelente isolamento térmico e acústico.
•Construção nova (2022), com materiais modernos, elevada eficiência e todos os sistemas totalmente novos - canalização de água, instalação elétrica, telecomunicações… apresentando um estado irrepreensível.
Localização:
Localizado no Largo da República, Trafaria, a apenas 200 metros do mar, numa zona costeira em forte expansão.
A curta distância encontra restaurantes, cafés, comércio local, transportes e ligação rápida a Lisboa através do ferry ou por via rodoviária em 18 min.
Uma localização que combina o ambiente descontraído duma zona de comércio tranquila com a conveniência urbana.

Potencial e Rentabilidade:
• Excelente oportunidade de investimento, dada a elevada procura por T1 independentes na zona e a falta de oferta dos mesmos.
• Capacidade de gerar rendimento atrativo, tanto em arrendamento tradicional como em alojamento local com rentabilidades ao torno dos 5%.

Fotografias com decoração virtual (virtual staging), meramente ilustrativas.

Um T1 novo, funcional e independente, com localização privilegiada junto ao mar.
Agende já a sua visita e descubra uma oportunidade única na Trafaria — perfeita para viver, investir ou rentabilizar desde o primeiro dia.

Localização

Caparica e Trafaria, Almada, Setúbal

Informação do anúncio

ID do anúncio 1552302
Referência Externa KWPT-026378
Atualizado em 23/02/2026 01:02:46
KW Exclusive AMI 21960
Referência do imóvel: KWPT-026378
Phone
Chamada para a rede fixa nacional
KW Exclusive AMI 21960
Referência do imóvel: KWPT-026378
Phone
Chamada para a rede fixa nacional
1 / 27
Apartamento T1 para Venda em Caparica e Trafaria Foto 1
Apartamento T1 para Venda em Caparica e Trafaria Foto 2
Apartamento T1 para Venda em Caparica e Trafaria Foto 3
Apartamento T1 para Venda em Caparica e Trafaria Foto 4
Apartamento T1 para Venda em Caparica e Trafaria Foto 5
Apartamento T1 para Venda em Caparica e Trafaria Foto 6
Apartamento T1 para Venda em Caparica e Trafaria Foto 7
Apartamento T1 para Venda em Caparica e Trafaria Foto 8
Apartamento T1 para Venda em Caparica e Trafaria Foto 9
Apartamento T1 para Venda em Caparica e Trafaria Foto 10
Apartamento T1 para Venda em Caparica e Trafaria Foto 11
Apartamento T1 para Venda em Caparica e Trafaria Foto 12
Apartamento T1 para Venda em Caparica e Trafaria Foto 13
Apartamento T1 para Venda em Caparica e Trafaria Foto 14
Apartamento T1 para Venda em Caparica e Trafaria Foto 15
Apartamento T1 para Venda em Caparica e Trafaria Foto 16
Apartamento T1 para Venda em Caparica e Trafaria Foto 17
Apartamento T1 para Venda em Caparica e Trafaria Foto 18
Apartamento T1 para Venda em Caparica e Trafaria Foto 19
Apartamento T1 para Venda em Caparica e Trafaria Foto 20
Apartamento T1 para Venda em Caparica e Trafaria Foto 21
Apartamento T1 para Venda em Caparica e Trafaria Foto 22
Apartamento T1 para Venda em Caparica e Trafaria Foto 23
Apartamento T1 para Venda em Caparica e Trafaria Foto 24
Apartamento T1 para Venda em Caparica e Trafaria Foto 25
Apartamento T1 para Venda em Caparica e Trafaria Foto 26
Apartamento T1 para Venda em Caparica e Trafaria Foto 27
Clicky