Voltar
Prédio para Venda em Nossa Senhora do Pópulo, Coto e São Gregório Foto 1
Prédio para Venda em Nossa Senhora do Pópulo, Coto e São Gregório Foto 2
Prédio para Venda em Nossa Senhora do Pópulo, Coto e São Gregório Foto 3
Prédio para Venda em Nossa Senhora do Pópulo, Coto e São Gregório Foto 4

Prédio para Venda em Nossa Senhora do Pópulo, Coto e São Gregório

130.000 €

Tipo
Prédio
Negócio
Venda
Ano de Construção
1988
Área Bruta
309 m²
Área Útil
309 m²
Área do Terreno
309 m²

Prédio em Caldas da Rainha - Santo Onofre e Serra do Bouro de 309 m²

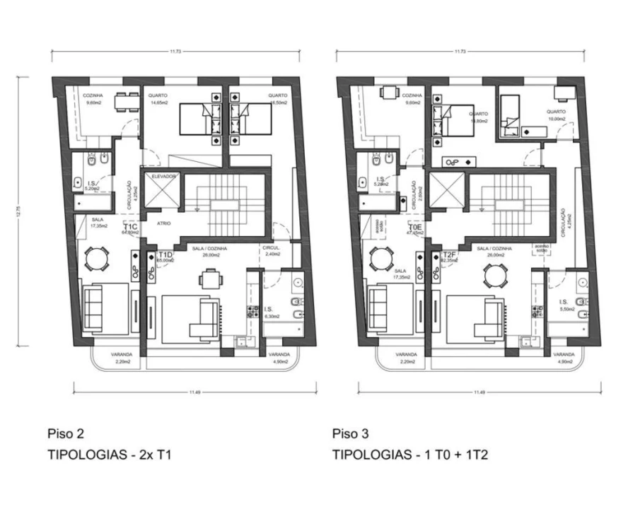
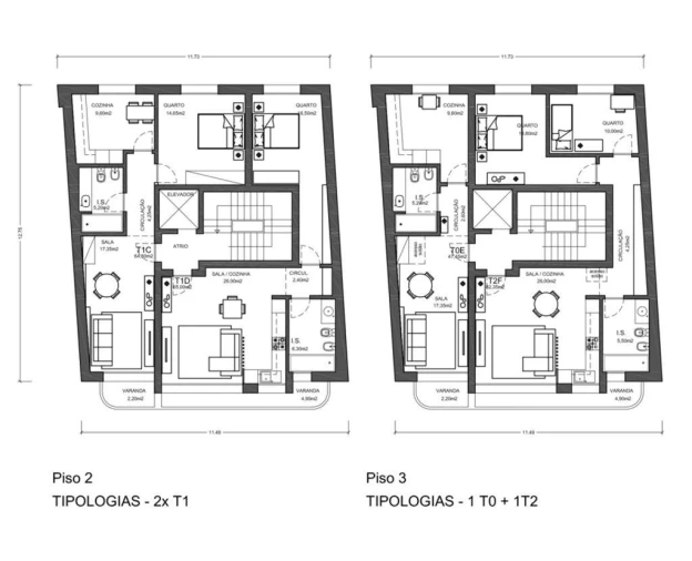
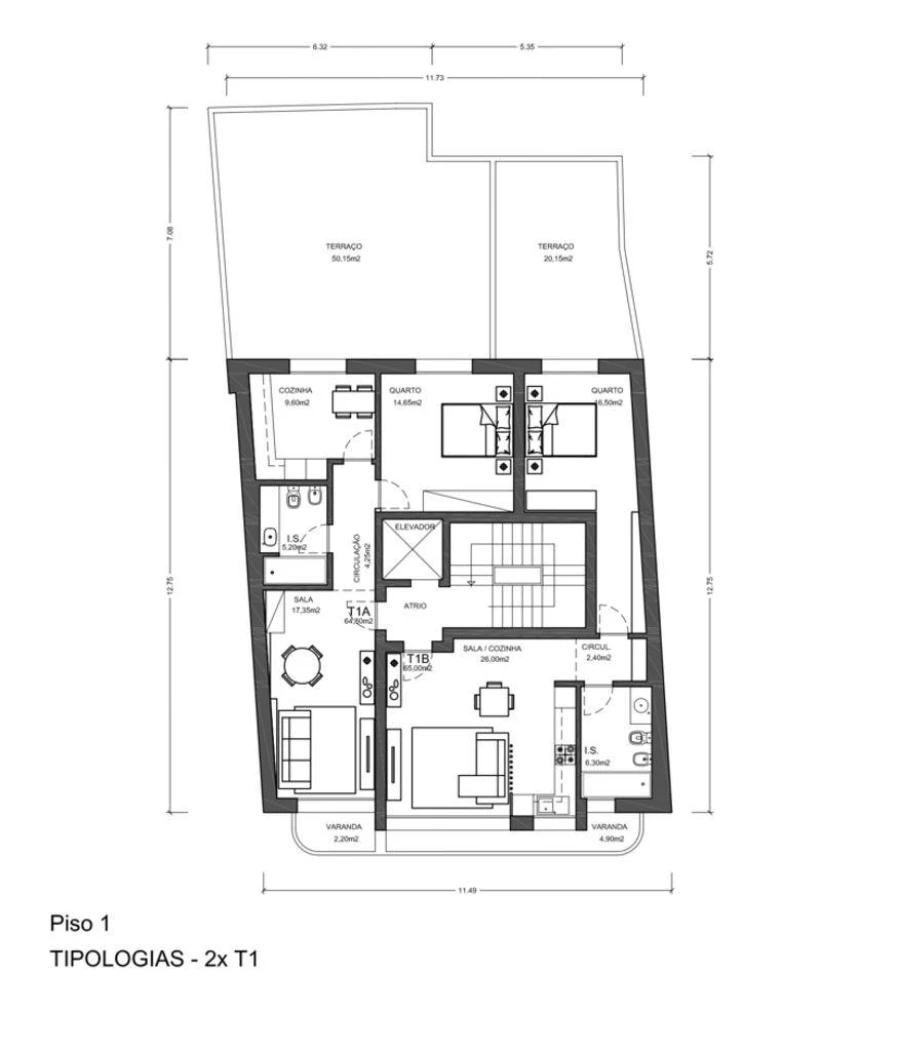
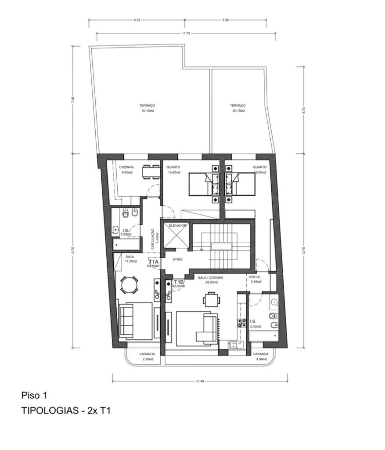
TERRENO URBANO NO CENTRO COM ESTUDO PARA 6 APARTAMENTOS E GARAGEM

Oportunidade de promoção imobiliária no Bairro dos Arneiros. Trata-se de um lote de 309m² com uma pequena ruína térrea (apenas paredes ao nível do solo, de demolição simples e baixo custo), libertando rapidamente o espaço para a obra nova. O estudo existente prevê um edifício moderno de habitação coletiva.

CAPACIDADE CONSTRUTIVA E ESTUDO PRÉVIO

Área Total do Terreno: 309 m²

Estado atual: Ruína térrea (não é prédio alto), facilitando a limpeza do terreno

Área Bruta de Construção (Habitação): 640,45 m²

Densidade Prevista: 6 Frações (1x T0, 4x T1, 1x T2)

Estacionamento: 6 Lugares de garagem no piso 0 (Elemento diferenciador no centro)

Valor Acrescentado: Projeto contempla elevador e 75 m² de varandas/terraços

LOCALIZAÇÃO E LIQUIDEZ Localização estratégica no Bairro dos Arneiros, consolidada e com procura constante. A proximidade a escolas, comércio e serviços, aliada ao mix de tipologias pequenas (T0 e T1), garante uma velocidade de venda ou colocação no arrendamento muito superior à média.

NOTA FINAL Venda do ativo com Estudo Prévio definido para maximizar o ABC. Ideal para construtor que procura iniciar obra sem perder tempo e dinheiro em demolições complexas.

Solicite o Estudo Prévio e agende visita ao local.
#ref: 763604

Localização

Nossa Senhora do Pópulo, Coto e São Gregório, Caldas da Rainha, Leiria

Informação do anúncio

ID do anúncio 1553953
Referência Externa 763604
Atualizado em 12/01/2026 00:27:26
IAD Portugal AMI 11220
Referência do imóvel: 763604
Phone
Chamada para a rede fixa nacional
IAD Portugal AMI 11220
Referência do imóvel: 763604
Phone
Chamada para a rede fixa nacional
1 / 4
Prédio para Venda em Nossa Senhora do Pópulo, Coto e São Gregório Foto 1
Prédio para Venda em Nossa Senhora do Pópulo, Coto e São Gregório Foto 2
Prédio para Venda em Nossa Senhora do Pópulo, Coto e São Gregório Foto 3
Prédio para Venda em Nossa Senhora do Pópulo, Coto e São Gregório Foto 4
Prédio para Venda em Nossa Senhora do Pópulo, Coto e São Gregório
Clicky