Terreno para Venda em Quelfes
8.900.000 €
Tipo
Terreno
Negócio
Venda
Área Bruta
3485 m²
Área Útil
2536 m²
Condição
Para Obras
Área do Terreno
9108 m²
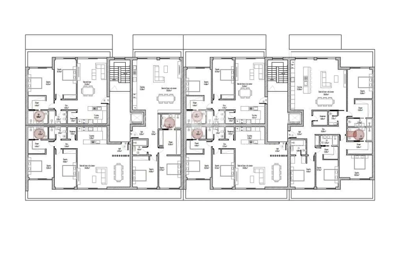
VENDE TERRENO COM PROJECTO APROVADO PARA 150 UNIDADES EM OLHÃO
A Greice Homes apresenta um exclusivo terreno urbano com 9.108 m², situado no coração de Olhão uma das localizações mais promissoras do Algarve. Com projeto aprovado e uma área de implantação de 2.536 m² e com área bruta de construção de 3485m², esta é uma oportunidade estratégica para desenvolver um empreendimento residencial ou turístico de elevado padrão.
Um cenário perfeito para criar valor:
Com projecto aprovado para construção de 150 fogos, sendo 146 unidades T2 e 4 unidades T4.
Potencial para aparthotel ou unidade hoteleira de luxo.
Infraestruturas complementares como piscina, jardim, churrasqueira e campo de ténis para um ambiente sofisticado e acolhedor
Localização de Excelência: Este terreno encontra-se numa zona tranquila e de fácil acesso, próximo ao Estádio Municipal, ao Ria Shopping e à vibrante baixa da cidade onde poderá desfrutar de uma vasta oferta gastronómica, cultural e de lazer. Além disso, está a apenas 11 km do Aeroporto de Faro e junto aos pontos de embarque para as ilhas Armona, Farol e Culatra.
Destaques que fazem a diferença:
Vista deslumbrante sobre a Ria Formosa
Exposição solar privilegiada
Forte potencial de valorização e impacto positivo no desenvolvimento urbano e económico da região
Este é o momento para transformar potencial em realidade. Seja para promover um condomínio residencial, um projeto turístico de charme ou uma solução mista este terreno representa um investimento sólido e diferenciado no mercado imobiliário premium do Algarve.
Aceita permuta.
Agende a sua visita com a Greice Homes e dê vida ao seu próximo grande projeto.
Um cenário perfeito para criar valor:
Com projecto aprovado para construção de 150 fogos, sendo 146 unidades T2 e 4 unidades T4.
Potencial para aparthotel ou unidade hoteleira de luxo.
Infraestruturas complementares como piscina, jardim, churrasqueira e campo de ténis para um ambiente sofisticado e acolhedor
Localização de Excelência: Este terreno encontra-se numa zona tranquila e de fácil acesso, próximo ao Estádio Municipal, ao Ria Shopping e à vibrante baixa da cidade onde poderá desfrutar de uma vasta oferta gastronómica, cultural e de lazer. Além disso, está a apenas 11 km do Aeroporto de Faro e junto aos pontos de embarque para as ilhas Armona, Farol e Culatra.
Destaques que fazem a diferença:
Vista deslumbrante sobre a Ria Formosa
Exposição solar privilegiada
Forte potencial de valorização e impacto positivo no desenvolvimento urbano e económico da região
Este é o momento para transformar potencial em realidade. Seja para promover um condomínio residencial, um projeto turístico de charme ou uma solução mista este terreno representa um investimento sólido e diferenciado no mercado imobiliário premium do Algarve.
Aceita permuta.
Agende a sua visita com a Greice Homes e dê vida ao seu próximo grande projeto.
Localização
Quelfes, Olhão, Faro
Informação do anúncio
ID do anúncio
1573822
Referência Externa
VGH1859
Atualizado em
16/04/2026 00:36:58
Consultor
Tiago Raposo
Terreno para Venda em Quelfes