Terreno para Construção - Vila Nova de Poiares | Projeto T3 Térreo com Piscina
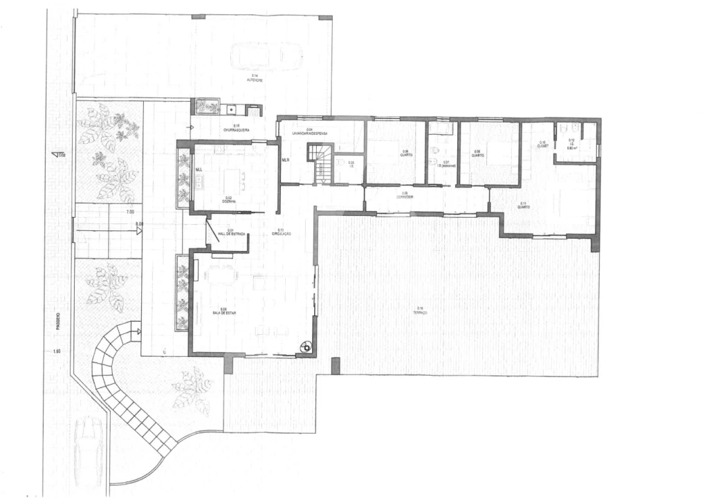
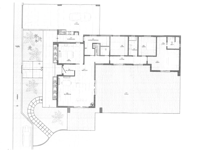
Terreno viável para construção, localizado em zona tranquila e com ótima exposição solar. Inclui projeto para moradia T3 de único piso, com suíte, áreas amplas, e piscina integrada na zona exterior.
Excelente oportunidade para quem procura construir uma casa moderna, funcional e perto de todos os serviços. Ideal para residência permanente ou investimento.
Localização
Poiares (Santo Andre), Vila Nova de Poiares, Coimbra
Este site utiliza cookies. Ao navegar no site estará a consentir a sua utilização. Para mais informações sobre os cookies pode consultar a
política de privacidade.