Prédio para Venda em Setubal (São Sebastião)
297.000 €
Tipo
Prédio
Negócio
Venda
Área Bruta
160 m²
Condição
Com Programa de Incentivos à Reabilitação
Certificado Energético
Isento
Área do Terreno
160 m²
Prédio para Reabilitação zona de ARU com Projeto aprovado, Setúbal
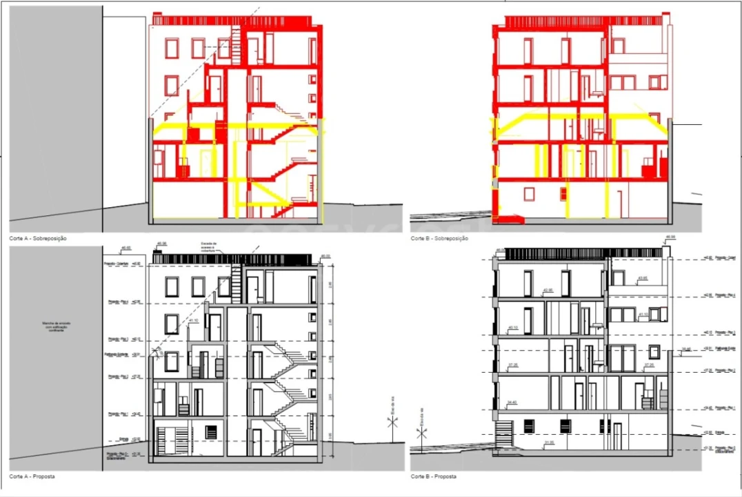
Prédio urbano localizado em Setúbal, destinado a reabilitação, com intervenção estrutural já realizada.
O imóvel encontra-se com o interior totalmente demolido, mantendo a fachada escorada, o que permite o enquadramento da intervenção como reabilitação/conservação, e não como construção nova, sendo este um factor relevante em termos urbanísticos e fiscais.
Inserido em Área de Reabilitação Urbana (ARU), o prédio beneficia de um enquadramento favorável, incluindo incentivos fiscais.
Já submetido e aprovado em Setembro de 2025, na Câmara Municipal de Setúbal, um Projecto que prevê:
Cave com estacionamento para 3 viaturas.
3 Fracções habitacionais (2 T2 + 1 T3 Duplex).
Vendido no estado atual, sendo uma solução ideal para investidor ou promotor imobiliário que pretenda dar continuidade ao desenvolvimento.
Tratamos do seu Crédito Habitação de forma simples, transparente e eficaz. Negociamos as melhores condições para o seu caso.
EasyGest Finance, o seu Intermediário de crédito de confiança, certificado pelo Banco de Portugal com o nº 0001802.
Ajudamos com todo o processo! Entre em contacto connosco ou deixe-nos os seus dados e entraremos em contacto assim que possível!
PN98602ES
O imóvel encontra-se com o interior totalmente demolido, mantendo a fachada escorada, o que permite o enquadramento da intervenção como reabilitação/conservação, e não como construção nova, sendo este um factor relevante em termos urbanísticos e fiscais.
Inserido em Área de Reabilitação Urbana (ARU), o prédio beneficia de um enquadramento favorável, incluindo incentivos fiscais.
Já submetido e aprovado em Setembro de 2025, na Câmara Municipal de Setúbal, um Projecto que prevê:
Cave com estacionamento para 3 viaturas.
3 Fracções habitacionais (2 T2 + 1 T3 Duplex).
Vendido no estado atual, sendo uma solução ideal para investidor ou promotor imobiliário que pretenda dar continuidade ao desenvolvimento.
Tratamos do seu Crédito Habitação de forma simples, transparente e eficaz. Negociamos as melhores condições para o seu caso.
EasyGest Finance, o seu Intermediário de crédito de confiança, certificado pelo Banco de Portugal com o nº 0001802.
Ajudamos com todo o processo! Entre em contacto connosco ou deixe-nos os seus dados e entraremos em contacto assim que possível!
PN98602ES
Localização
Setubal (São Sebastião), Setúbal, Setúbal
Informação do anúncio
ID do anúncio
1580112
Referência Externa
PN98602ES
Atualizado em
27/03/2026 15:39:42
Consultor
EasyGest Mediação Imobiliária
Prédio para Venda em Setubal (São Sebastião)
Vídeo