Terreno para Venda em Vila Nova de Famalicão e Calendário
Sob consulta
Tipo
Terreno
Negócio
Venda
Ano de Construção
2025
Área Bruta
11245 m²
Área Útil
11244 m²
Condição
Novo
Certificado Energético
Não se aplica
Área do Terreno
11243 m²
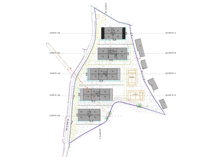
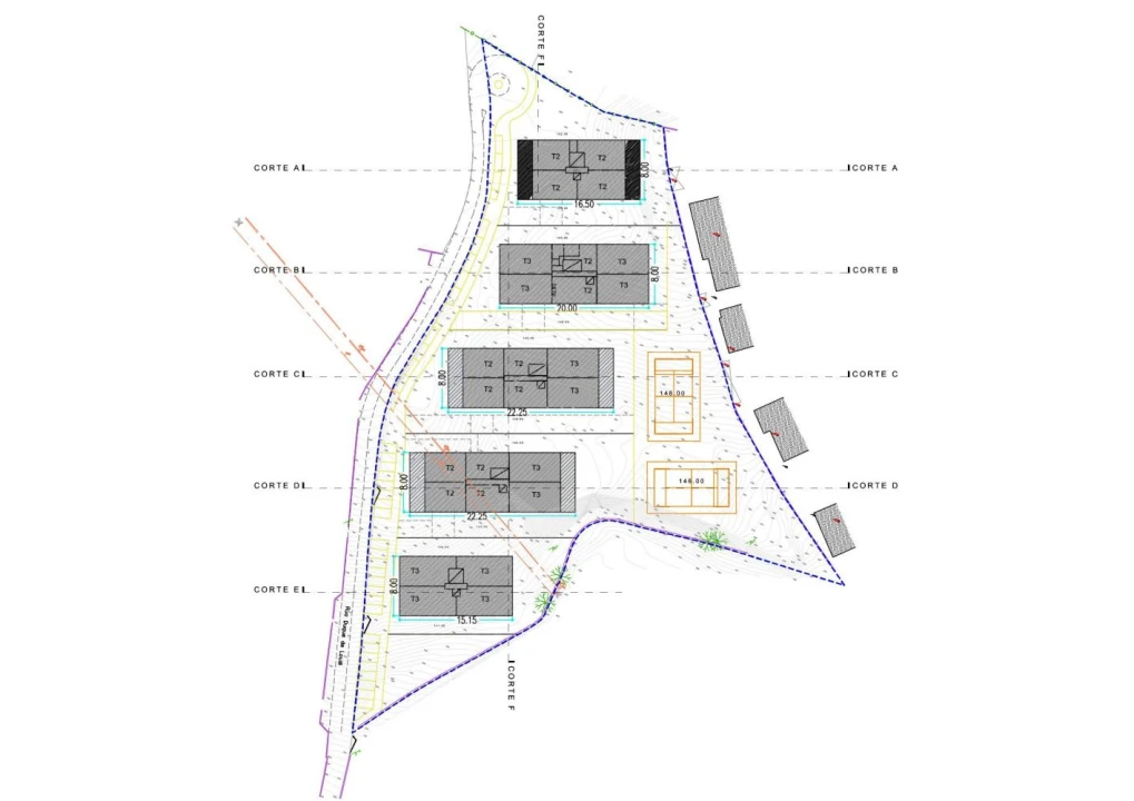
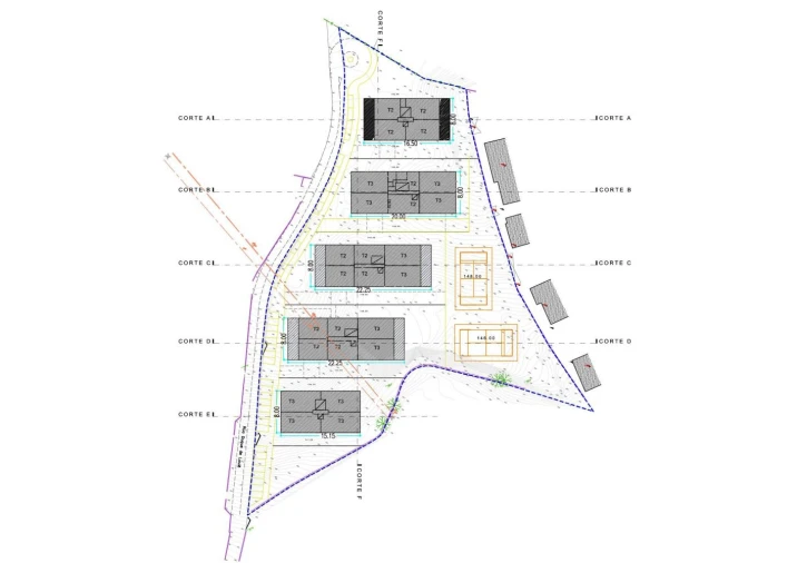
Terreno com Projeto Aprovado destinado a habitação multifamiliar – Domus São Julião
DOMUS S. JULIÃO – Novo Empreendimento em Calendário, Vila Nova de Famalicão
Apresentamos o DOMUS S. JULIÃO, um novo e ambicioso empreendimento a nascer em Calendário, na Rua Duque de Loulé, em Vila Nova de Famalicão. Inserido numa zona residencial tranquila e consolidada, o DOMUS S. JULIÃO distingue-se pela qualidade de vida, sustentabilidade e conforto que oferece aos seus residentes.
Composto por 5 blocos habitacionais integrados num condomínio fechado, o projeto contempla um total de 90 frações, distribuídas da seguinte forma:
• 16 apartamentos T1
• 38 apartamentos T2
• 36 apartamentos T3
Cada edifício foi concebido com arquitetura moderna, excelente exposição solar e materiais sustentáveis, assegurando eficiência energética e baixo impacto ambiental.
Mais do que habitar, é viver com qualidade
O DOMUS S. JULIÃO foi pensado para promover um estilo de vida mais saudável e equilibrado, oferecendo diversos equipamentos de apoio e valorização que estimulam o bem-estar e o convívio:
• Circuito pedonal
• Dois campos de pádel
• Parque infantil
• Zona de ginástica exterior equipada
• Espaços verdes e áreas de lazer
Os edifícios serão auto-sustentáveis, integrando soluções de energia limpa e gestão eficiente de recursos, contribuindo para um futuro mais responsável e ecológico.
Localização privilegiada
Situado numa zona de excelentes acessibilidades, o DOMUS S. JULIÃO beneficia da proximidade a empresas de referência, equipamentos de grande relevância e serviços essenciais, numa área com forte massa crítica e dinamismo económico.
Tudo isto faz do DOMUS S. JULIÃO uma oportunidade única de viver com conforto, saúde e sustentabilidade, no coração de Vila Nova de Famalicão.
Localização
Vila Nova de Famalicão e Calendário, Vila Nova de Famalicão, Braga
Este site utiliza cookies. Ao navegar no site estará a consentir a sua utilização. Para mais informações sobre os cookies pode consultar a
política de privacidade.