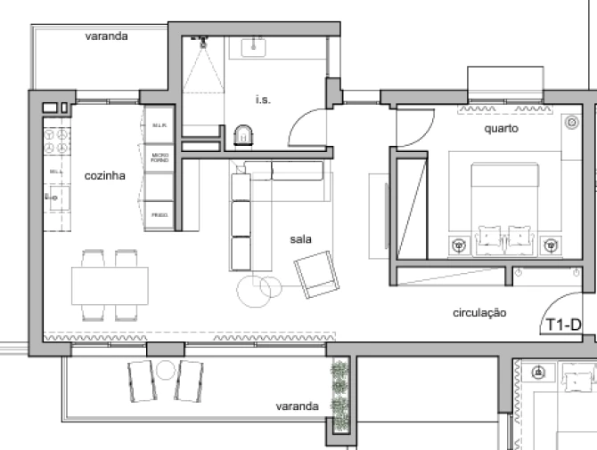
Apartamento T1 para Venda em Santo Antonio
350.000 €
Tipo
Apartamento
Negócio
Venda
Ano de Construção
2026
Quartos
1
Casas de Banho
1
Área Bruta
85 m²
Área Útil
72 m²
Condição
Novo
Certificado Energético
A
Apartamento T1 Moderno em Zona Tranquila no Funchal, Próximo do Centro
Apartamento T1 localizado no Funchal, inserido numa zona residencial calma e sossegada, ideal para quem procura fugir ao barulho da cidade mantendo-se próximo do centro urbano. Situado a poucos minutos de carro do centro do Funchal, este imóvel beneficia da proximidade a supermercados, farmácias, bancos, escolas e restantes serviços essenciais.
O apartamento apresenta acabamentos modernos e de qualidade, destacando-se o pavimento vinílico Skuba TAJ MAHAL sobre base anti-ruído nas zonas habitacionais, proporcionando conforto térmico e acústico. As paredes interiores têm acabamento em estuque projetado liso com pintura de cor clara, e os tetos são em gesso cartonado liso, garantindo um aspeto contemporâneo e elegante.
Nas zonas húmidas, como cozinha e instalação sanitária, os revestimentos são em mosaico de grés porcelânico de elevada resistência, com soluções antiderrapantes, assegurando durabilidade e segurança. Os rodapés são em material cerâmico ou branco Skuba, harmonizando com o pavimento.
Este apartamento T1 é uma excelente opção para habitação própria, casa de férias ou investimento imobiliário, beneficiando de uma localização estratégica que combina tranquilidade, bons acessos e proximidade à cidade do Funchal.
Marque já a sua visita e descubra o seu novo lar!
Tratamos de todo processo bancário.
Imobiliária com Licença de Mediação de Crédito atribuída pelo Banco de Portugal Nº3772
Aegis Realty, a sua imobiliária de confiança!
O apartamento apresenta acabamentos modernos e de qualidade, destacando-se o pavimento vinílico Skuba TAJ MAHAL sobre base anti-ruído nas zonas habitacionais, proporcionando conforto térmico e acústico. As paredes interiores têm acabamento em estuque projetado liso com pintura de cor clara, e os tetos são em gesso cartonado liso, garantindo um aspeto contemporâneo e elegante.
Nas zonas húmidas, como cozinha e instalação sanitária, os revestimentos são em mosaico de grés porcelânico de elevada resistência, com soluções antiderrapantes, assegurando durabilidade e segurança. Os rodapés são em material cerâmico ou branco Skuba, harmonizando com o pavimento.
Este apartamento T1 é uma excelente opção para habitação própria, casa de férias ou investimento imobiliário, beneficiando de uma localização estratégica que combina tranquilidade, bons acessos e proximidade à cidade do Funchal.
Marque já a sua visita e descubra o seu novo lar!
Tratamos de todo processo bancário.
Imobiliária com Licença de Mediação de Crédito atribuída pelo Banco de Portugal Nº3772
Aegis Realty, a sua imobiliária de confiança!
Localização
Santo Antonio, Funchal, Ilha da Madeira
Informação do anúncio
ID do anúncio
1606656
Referência Externa
AG1279/2026
Atualizado em
19/03/2026 09:35:17
Anunciante
Chamada para a rede móvel nacional
AEGIS REALTY
AMI 13062
Referência do imóvel:
AG1279/2026
Apartamento T1 para Venda em Santo Antonio