Apartamento T2 para Venda em Santo Antonio
450.000 €
Tipo
Apartamento
Negócio
Venda
Ano de Construção
2026
Quartos
2
Casas de Banho
2
Área Bruta
133 m²
Área Útil
94 m²
Condição
Novo
Certificado Energético
A
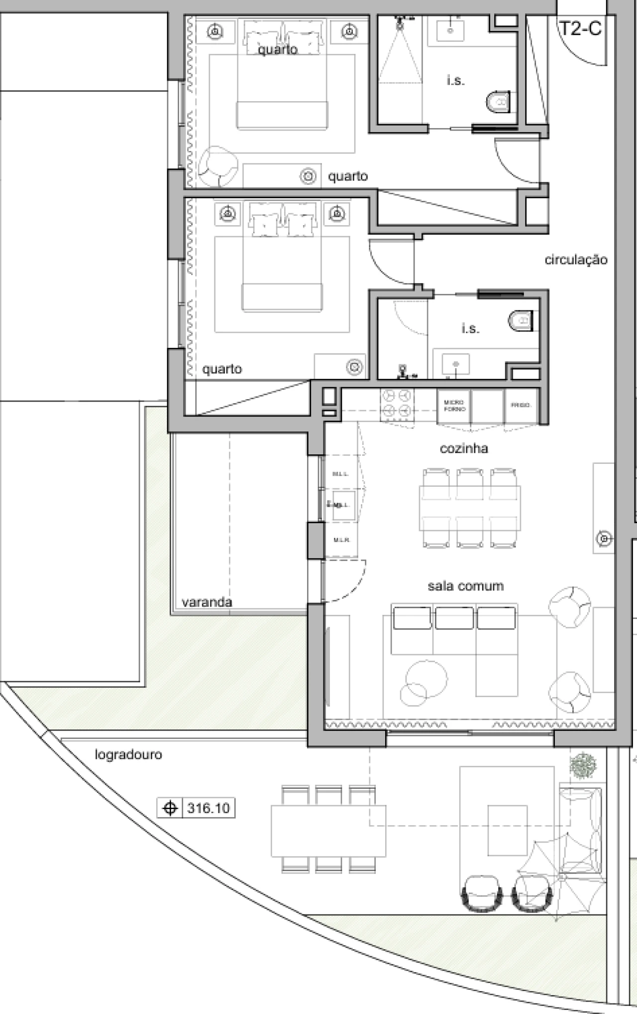
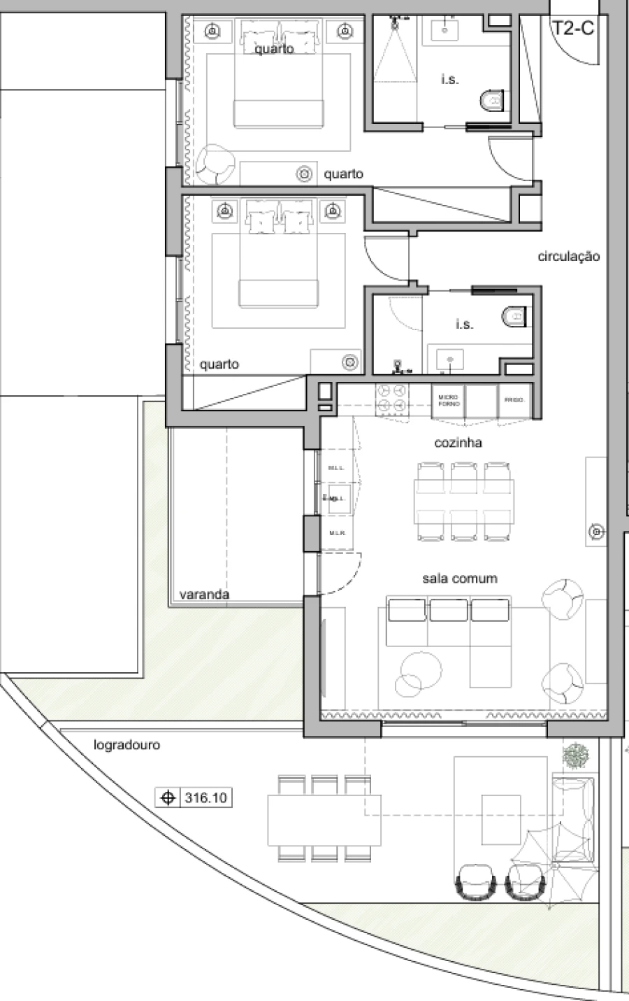
Apartamento T2 com Logradouro em Zona Sossegada no Funchal, a Minutos do Centro
Apartamento T2 situado no Funchal, numa zona residencial tranquila e bem servida de acessos, ideal para quem deseja viver próximo do centro da cidade sem abdicar de sossego e qualidade de vida. Localizado a poucos minutos de carro do centro do Funchal, encontra-se próximo de todos os serviços essenciais, como supermercados, farmácias, bancos, escolas e comércio local.
Este imóvel distingue-se pelas suas boas áreas interiores e pela existência de um logradouro privativo, espaço exterior ideal para momentos de lazer, refeições ao ar livre ou zona de descanso.
Em termos de acabamentos, o apartamento dispõe de pavimento vinílico Skuba TAJ MAHAL com base anti-ruído nas áreas sociais e quartos, proporcionando conforto e resistência. As paredes interiores são revestidas com estuque projetado liso e pintura de tons claros, e os tetos são em gesso cartonado liso, conferindo um ambiente moderno e luminoso.
As instalações sanitárias e a cozinha apresentam revestimentos em mosaico de grés porcelânico de junta reta, com acabamento antiderrapante nas zonas técnicas. Nos espaços exteriores, como o logradouro, os pavimentos são em materiais próprios para exterior, garantindo durabilidade e segurança.
Este apartamento T2 é ideal para quem procura um imóvel com espaço exterior, boas áreas e acabamentos de qualidade, numa zona sossegada do Funchal, com excelente ligação ao centro da cidade. Perfeito tanto para habitação própria como para investimento imobiliário.
Marque já a sua visita e descubra o seu novo lar!
Tratamos de todo processo bancário.
Imobiliária com Licença de Mediação de Crédito atribuída pelo Banco de Portugal Nº3772
Aegis Realty, a sua imobiliária de confiança!
Este imóvel distingue-se pelas suas boas áreas interiores e pela existência de um logradouro privativo, espaço exterior ideal para momentos de lazer, refeições ao ar livre ou zona de descanso.
Em termos de acabamentos, o apartamento dispõe de pavimento vinílico Skuba TAJ MAHAL com base anti-ruído nas áreas sociais e quartos, proporcionando conforto e resistência. As paredes interiores são revestidas com estuque projetado liso e pintura de tons claros, e os tetos são em gesso cartonado liso, conferindo um ambiente moderno e luminoso.
As instalações sanitárias e a cozinha apresentam revestimentos em mosaico de grés porcelânico de junta reta, com acabamento antiderrapante nas zonas técnicas. Nos espaços exteriores, como o logradouro, os pavimentos são em materiais próprios para exterior, garantindo durabilidade e segurança.
Este apartamento T2 é ideal para quem procura um imóvel com espaço exterior, boas áreas e acabamentos de qualidade, numa zona sossegada do Funchal, com excelente ligação ao centro da cidade. Perfeito tanto para habitação própria como para investimento imobiliário.
Marque já a sua visita e descubra o seu novo lar!
Tratamos de todo processo bancário.
Imobiliária com Licença de Mediação de Crédito atribuída pelo Banco de Portugal Nº3772
Aegis Realty, a sua imobiliária de confiança!
Localização
Santo Antonio, Funchal, Ilha da Madeira
Informação do anúncio
ID do anúncio
1606657
Referência Externa
AG1280/2026
Atualizado em
19/03/2026 09:35:17
Anunciante
Chamada para a rede móvel nacional
AEGIS REALTY
AMI 13062
Referência do imóvel:
AG1280/2026
Apartamento T2 para Venda em Santo Antonio