Terreno para Venda em Alverca do Ribatejo e Sobralinho
91.150 €
Tipo
Terreno
Negócio
Venda
Área Bruta
317 m²
Área Útil
100 m²
Condição
Não Aplicável
Certificado Energético
Isento
Área do Terreno
226 m²
Arcena - Terreno 226 m2
PROPONHA-SE A CONSTRUIR JÁ A SUA MORADIA DE SONHO, NUM LOTE COM PROJETO APROVADO!
REILAR convida a visitar uma excelente oportunidade para construir de imediato a sua moradia de sonho, num dos locais mais tranquilos e procurados de Alverca o Alto de Arcena.
Este lote de terreno, com 226 m², encontra-se totalmente legalizado, com infraestruturas pagas e projeto aprovado pela Câmara Municipal de Vila Franca de Xira, permitindo-lhe avançar já para a fase de construção sem burocracias ou atrasos.
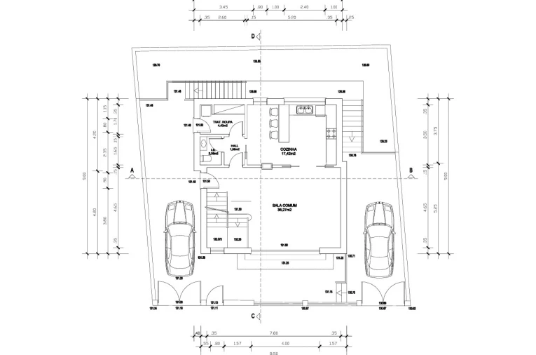
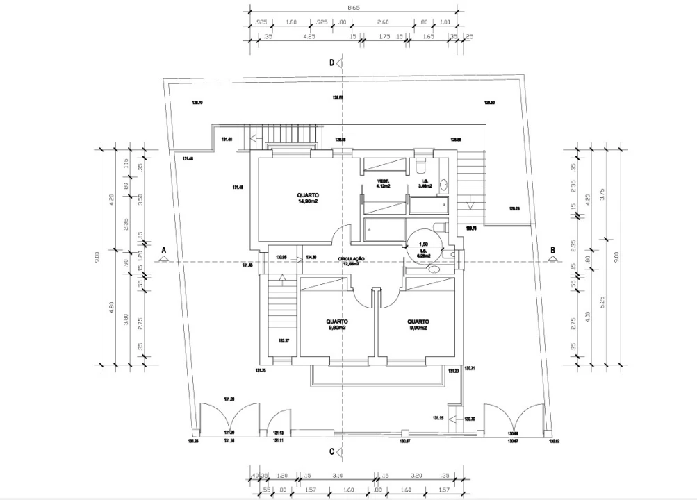
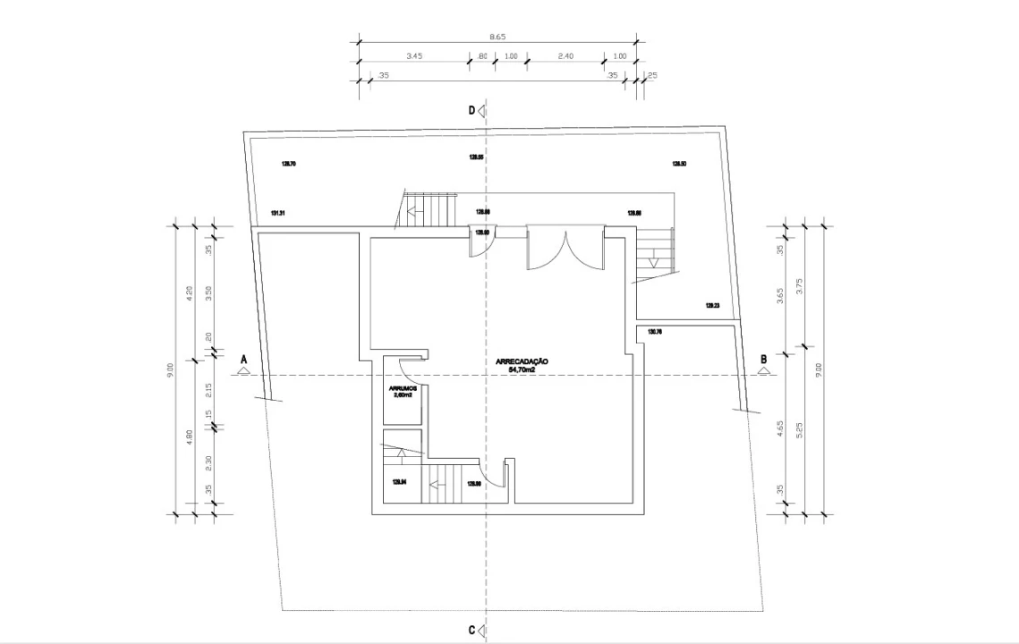
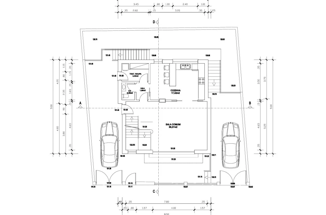
O projeto prevê a demolição do anexo existente e a edificação de uma moradia isolada T3, distribuída por dois pisos de habitação e cave, com 77,27 m² de implantação e uma área total de construção de 231,81 m².
O desenho moderno e funcional da casa garante o máximo conforto e luminosidade, beneficiando ainda de vista rio no piso superior, um cenário perfeito para desfrutar do final de cada dia.
O lote inclui também dois lugares de parqueamento, e o estudo completo de arquitetura e especialidades está disponível para consulta em loja, sendo possível visualizar as plantas da moradia através das fotografias incluídas no anúncio.
Inserido numa zona calma e exclusivamente residencial, rodeada por moradias modernas, este terreno oferece a combinação ideal entre tranquilidade, privacidade e proximidade urbana.
A poucos minutos encontra todo o tipo de comércio local, serviços, transportes públicos e os principais acessos a Lisboa, garantindo a conveniência do dia a dia sem abdicar da qualidade de vida.
Uma oportunidade rara para quem procura construir já a sua casa de sonho, num local privilegiado e com projeto aprovado!
Para marcação de Visita, ligue-me!
Sofia Cardigos, a sua Consultora Imobiliária.
»» ««
NÃO ENCONTRA O IMÓVEL QUE PROCURA ?
Sabia que há proprietários que preferem que os seus imóveis não sejam publicitados?
É verdade! Temos mais imóveis disponíveis no nosso portal REILAR e outros ainda que aguardam por si.
REILAR convida a visitar uma excelente oportunidade para construir de imediato a sua moradia de sonho, num dos locais mais tranquilos e procurados de Alverca o Alto de Arcena.
Este lote de terreno, com 226 m², encontra-se totalmente legalizado, com infraestruturas pagas e projeto aprovado pela Câmara Municipal de Vila Franca de Xira, permitindo-lhe avançar já para a fase de construção sem burocracias ou atrasos.
O projeto prevê a demolição do anexo existente e a edificação de uma moradia isolada T3, distribuída por dois pisos de habitação e cave, com 77,27 m² de implantação e uma área total de construção de 231,81 m².
O desenho moderno e funcional da casa garante o máximo conforto e luminosidade, beneficiando ainda de vista rio no piso superior, um cenário perfeito para desfrutar do final de cada dia.
O lote inclui também dois lugares de parqueamento, e o estudo completo de arquitetura e especialidades está disponível para consulta em loja, sendo possível visualizar as plantas da moradia através das fotografias incluídas no anúncio.
Inserido numa zona calma e exclusivamente residencial, rodeada por moradias modernas, este terreno oferece a combinação ideal entre tranquilidade, privacidade e proximidade urbana.
A poucos minutos encontra todo o tipo de comércio local, serviços, transportes públicos e os principais acessos a Lisboa, garantindo a conveniência do dia a dia sem abdicar da qualidade de vida.
Uma oportunidade rara para quem procura construir já a sua casa de sonho, num local privilegiado e com projeto aprovado!
Para marcação de Visita, ligue-me!
Sofia Cardigos, a sua Consultora Imobiliária.
»» ««
NÃO ENCONTRA O IMÓVEL QUE PROCURA ?
Sabia que há proprietários que preferem que os seus imóveis não sejam publicitados?
É verdade! Temos mais imóveis disponíveis no nosso portal REILAR e outros ainda que aguardam por si.
Localização
Alverca do Ribatejo e Sobralinho, Vila Franca de Xira, Lisboa
Informação do anúncio
ID do anúncio
1623936
Referência Externa
L5/03355
Atualizado em
26/04/2026 14:41:06
Anunciante
Chamada para a rede fixa nacional
REILAR - SOC MEDIACAO IMOBILIARIA LDA
AMI 2092
Referência do imóvel:
L5/03355
Terreno para Venda em Alverca do Ribatejo e Sobralinho