Voltar
Armazém para Arrendamento em Constantim e Vale de Nogueiras Foto 1
Armazém para Arrendamento em Constantim e Vale de Nogueiras Foto 2
Armazém para Arrendamento em Constantim e Vale de Nogueiras Foto 3
Armazém para Arrendamento em Constantim e Vale de Nogueiras Foto 4
Armazém para Arrendamento em Constantim e Vale de Nogueiras Foto 5

Armazém para Arrendamento em Constantim e Vale de Nogueiras

9.000 €

Tipo
Armazém
Negócio
Arrendamento
Casas de Banho
4
Área Bruta
1719 m²
Área Útil
1472 m²
Condição
Novo
Certificado Energético
Isento
Área do Terreno
3636 m²

Armazém novo com 2 pisos e cais junto à Zona Industrial de Vila Real

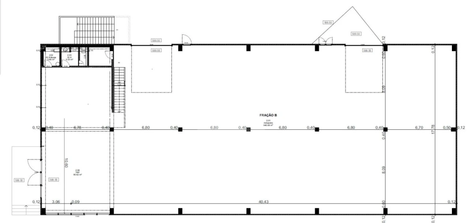
Junto à Zona Industrial de Constantim em Vila Real, armazém novo com 1719 m2, de rés do chão (área bruta: 789 m2) e andar (área bruta: 930 m2), licenciado para Armazém, Comércio e Serviços, com duas montras, entradas independentes, cais e logradouro de 1917 m2.


Características principais de cada andar:


- Rés do chão:

| Medidas |

- Área: Comprimento: 43 m | Largura 17 m

- Pé direito: À viga: 4,55 m; À laje: 5,15 m

- Portão: Largura: 3,70 m; Altura: 4,90 m

- Montra: Comprimento: 13 m | Altura: 4,90 m
---------------------------------------------


- 1º Andar:

| Medidas |

- Área: Comprimento: 43 m | Largura 17 m (completamente desobstruídos - não tem pilares no meio)

- Pé direito:

Armazém: À viga: 4,55 m; à laje: 5,15 m

Por baixo do mezanino: À viga: 2,20 m; à laje: 2,90 m

Mezanino: 2,30 m a 3,10 m

- Portão principal: Largura: 4,20 m; altura: 4,00 m

- Portão cais: Largura: 4,00 m; altura: 4,00 m

- Área do mezanino: 112 m2 (16 m x 7 m)

- Montra: Comprimento: 22 m | Altura: 2,20 m


| Nota |

Os armazéns do R/C e 1º Andar são completamente independentes e estão disponíveis para serem arrendados em separado:

- Rés do chão (área bruta: 789 m2): 4.000€ mensais;

- 1º Andar (área bruta: 930 m2): 5.000€ mensais


| Zona Envolvente |

Aeródromo, Ampla Oferta de Serviços, Autoestrada, Estacionamento, Estacionamento Público, Excelentes Acessos, Posto de Combustível, Transportes Públicos, Zona Industrial


| Condições de arrendamento | A combinar

Localização

Constantim e Vale de Nogueiras, Vila Real, Vila Real

Informação do anúncio

ID do anúncio 1629415
Referência Externa MAG_1099
Atualizado em 13/02/2026 17:04:45
OMY - Mediação Imobiliária AMI 14033
Referência do imóvel: MAG_1099
Phone
Chamada para a rede fixa nacional
OMY - Mediação Imobiliária AMI 14033
Referência do imóvel: MAG_1099
Phone
Chamada para a rede fixa nacional
1 / 18
Armazém para Arrendamento em Constantim e Vale de Nogueiras Foto 1
Armazém para Arrendamento em Constantim e Vale de Nogueiras Foto 2
Armazém para Arrendamento em Constantim e Vale de Nogueiras Foto 3
Armazém para Arrendamento em Constantim e Vale de Nogueiras Foto 4
Armazém para Arrendamento em Constantim e Vale de Nogueiras Foto 5
Armazém para Arrendamento em Constantim e Vale de Nogueiras Foto 6
Armazém para Arrendamento em Constantim e Vale de Nogueiras Foto 7
Armazém para Arrendamento em Constantim e Vale de Nogueiras Foto 8
Armazém para Arrendamento em Constantim e Vale de Nogueiras Foto 9
Armazém para Arrendamento em Constantim e Vale de Nogueiras Foto 10
Armazém para Arrendamento em Constantim e Vale de Nogueiras Foto 11
Armazém para Arrendamento em Constantim e Vale de Nogueiras Foto 12
Armazém para Arrendamento em Constantim e Vale de Nogueiras Foto 13
Armazém para Arrendamento em Constantim e Vale de Nogueiras Foto 14
Armazém para Arrendamento em Constantim e Vale de Nogueiras Foto 15
Armazém para Arrendamento em Constantim e Vale de Nogueiras Foto 16
Armazém para Arrendamento em Constantim e Vale de Nogueiras Foto 17
Armazém para Arrendamento em Constantim e Vale de Nogueiras Foto 18
Clicky