Escritório para Arrendamento em Avenidas Novas
7.500 €
Tipo
Escritório
Negócio
Arrendamento
Casas de Banho
3
Área Bruta
345 m²
Área Útil
285 m²
Condição
Renovado
Certificado Energético
C
Escritório 345m2 duplex de prestígio com vista panorâmica AV. António Augusto Aguiar
Escritório duplex de prestígio com vista panorâmica AV. António Augusto Aguiar
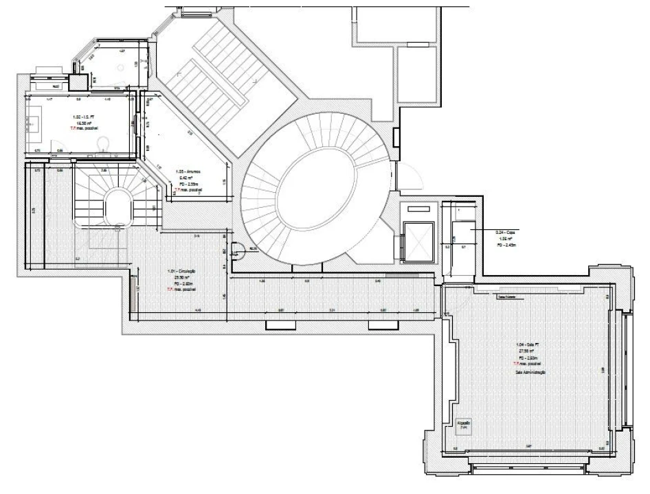
Com 345 m2 e tem 8 Salas, 2 Wc, 1 arquivo/bastidor e copa, com proximidade às principais artérias da cidade, Av. Da Liberdade, Parque Eduardo VII, Marquês do Pombal, e Av. da República
Escritório duplex premium morada de prestígio para elevar a sua empresa
Recentemente remodelado este espaço está pronto a entrar tirando pequenas correções que podem ser combinadas entre as partes interessadas.
Avenida António Augusto Aguiar escritório duplex com vista rio e Parque Eduardo VII
Instale a sua empresa numa das avenidas mais valorizadas de Lisboa. A António Augusto Aguiar é sinónimo de imagem corporativa forte, centralidade e prestígio, garantindo visibilidade, acessos excelentes e uma envolvente empresarial de alto nível fatores que impactam diretamente a perceção dos seus clientes.
Este escritório duplex combina dimensão, organização e conforto, com ar condicionado em conduta, múltiplos gabinetes e áreas de apoio ideal para equipas estruturadas, atendimento profissional e operações exigentes.
Piso principal
* Sala / hall de entrada 37 m²
* Zona técnica dedicada
* Sala 2 22 m²
* Sala 3 29 m²
* Sala 4 15 m²
* Sala 5 15 m² + 5 m² arrumação
* Sala 6 15 m²
* Sala 7 15 m²
* Copa 16 m²
* WC senhoras e senhores 25 m²
* WC social 15 m²
* Arrumos 3 m²
* Corredores amplos com capacidade extra de armazenamento
Piso superior
* Casa de banho completa com duche 10 m²
* Zona adicional de arrumos
* Sala de reuniões 31 m² com vista panorâmica
Um espaço que permite organizar equipas, criar gabinetes independentes e receber clientes com uma imagem profissional de alto nível pronto para potenciar o crescimento do seu negócio.
Prédio com um elevador
Agende já a sua visita e posicione a sua empresa numa morada que faz a diferença.
Com 345 m2 e tem 8 Salas, 2 Wc, 1 arquivo/bastidor e copa, com proximidade às principais artérias da cidade, Av. Da Liberdade, Parque Eduardo VII, Marquês do Pombal, e Av. da República
Escritório duplex premium morada de prestígio para elevar a sua empresa
Recentemente remodelado este espaço está pronto a entrar tirando pequenas correções que podem ser combinadas entre as partes interessadas.
Avenida António Augusto Aguiar escritório duplex com vista rio e Parque Eduardo VII
Instale a sua empresa numa das avenidas mais valorizadas de Lisboa. A António Augusto Aguiar é sinónimo de imagem corporativa forte, centralidade e prestígio, garantindo visibilidade, acessos excelentes e uma envolvente empresarial de alto nível fatores que impactam diretamente a perceção dos seus clientes.
Este escritório duplex combina dimensão, organização e conforto, com ar condicionado em conduta, múltiplos gabinetes e áreas de apoio ideal para equipas estruturadas, atendimento profissional e operações exigentes.
Piso principal
* Sala / hall de entrada 37 m²
* Zona técnica dedicada
* Sala 2 22 m²
* Sala 3 29 m²
* Sala 4 15 m²
* Sala 5 15 m² + 5 m² arrumação
* Sala 6 15 m²
* Sala 7 15 m²
* Copa 16 m²
* WC senhoras e senhores 25 m²
* WC social 15 m²
* Arrumos 3 m²
* Corredores amplos com capacidade extra de armazenamento
Piso superior
* Casa de banho completa com duche 10 m²
* Zona adicional de arrumos
* Sala de reuniões 31 m² com vista panorâmica
Um espaço que permite organizar equipas, criar gabinetes independentes e receber clientes com uma imagem profissional de alto nível pronto para potenciar o crescimento do seu negócio.
Prédio com um elevador
Agende já a sua visita e posicione a sua empresa numa morada que faz a diferença.
Localização
Avenidas Novas, Lisboa, Lisboa
Informação do anúncio
ID do anúncio
1633618
Referência Externa
L0802/26
Atualizado em
15/02/2026 02:26:28
Escritório para Arrendamento em Avenidas Novas
Vídeo