Apartamento T1 para Venda em Canelas
235.000 €
Tipo
Apartamento
Negócio
Venda
Ano de Construção
2027
Quartos
1
Casas de Banho
2
Área Bruta
836 m²
Área Útil
836 m²
Condição
Em construção
Certificado Energético
A
Área do Terreno
12 m²
Apartamento T1+1 em Canelas
1+1 Moderno com Garagem na Serra de Canelas – Conforto e Localização
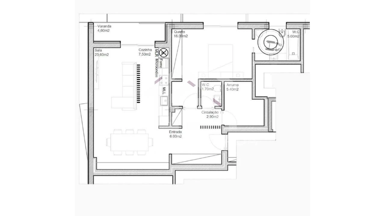
Apresentamos um acolhedor e moderno apartamento T1+1, com 83,6 m², lugar de garagem com 12 m² e +1 com 5,70 m², situado na tranquila e valorizada zona da Senhora do Monte, Serra de Canelas, em Vila Nova de Gaia. Trata?se de uma cedência de posição, ideal para quem procura um imóvel NOVO (ainda em construção), funcional e com excelentes acessos.
O apartamento destaca?se pelos seus acabamentos contemporâneos, pensados para proporcionar conforto e praticidade no dia a dia. A cozinha totalmente equipada com eletrodomésticos modernos. A sala, igualmente equipada com focos embutidos, oferece um espaço luminoso e convidativo, perfeito para momentos de descanso ou convívio, possui ainda sancas decorativas e estores elétricos garante funcionalidade e elegância, tornando cada momento mais prático e agradável. A suite conta com roupeiro embutido criando um ambiente acolhedor e organizado, O espaço adicional (+1) permite criar escritório, zona de arrumação ou quarto de apoio, adaptando?se às necessidades de cada família, possui ainda uma segunda casa de banho, de serviço, hall dos quartos com roupeiro, que apoios o quarto interior.
A localização é um dos grandes destaques deste imóvel. Na zona de Senhora Do Monte, Serra de Canelas, que é conhecida pela sua tranquilidade, segurança e proximidade a todo o tipo de comércio e serviços, como supermercados, cafés, restaurantes, farmácias e pastelarias. Nas imediações encontra clínicas privadas, centros de saúde, escolas, creches e infantários, tornando esta zona ideal para famílias.
Para momentos de lazer, a área oferece parques verdes, ginásios, piscinas municipais e espaços de caminhada. A poucos minutos encontra também pontos de interesse cultural e histórico, bem como zonas de convívio ao ar livre.
A rede de transportes públicos é eficiente e variada, apresenta boas acessibilidades, facilitando deslocações rápidas para o centro de Gaia e Porto, acesso à A1 e A29, A20 e A32. O Aeroporto Francisco Sá Carneiro situa?se a cerca de 22 km, garantindo acessibilidade nacional e internacional.
Este é o imóvel ideal para quem procura qualidade de vida, modernidade e uma localização privilegiada.
VILLA DOURADA IMOBILIÁRIA
ESPERAMOS POR SI!
ESTAMOS EMPENHADOS EM AJUDAR
Bem-vindo à Villa Dourada Imobiliária, onde a sua satisfação é a nossa prioridade.
A nossa missão é transformar o processo de compra, venda ou arrendamento de imóveis numa experiência agradável e sem complicações.
Nossos Serviços:
Compra e Venda de Imóveis: Ajudamos a encontrar o imóvel dos seus sonhos ou a vender a sua propriedade pelo melhor preço.
Arrendamento: Facilitamos o processo de arrendamento, garantindo segurança e transparência para proprietários e inquilinos.
Consultoria Imobiliária: Oferecemos aconselhamento especializado para que tome as melhores decisões no mercado imobiliário.
Gestão de Imóveis: Cuidamos da administração do seu imóvel, assegurando a sua valorização e rentabilidade.
Porquê Escolher a Villa Dourada?
Experiência e Conhecimento: Anos de atuação no mercado imobiliário, com um profundo conhecimento das tendências e oportunidades.
Atendimento Personalizado: Foco nas suas necessidades e objetivos, com soluções feitas à medida.
Transparência e Confiança: Compromisso com a ética e a transparência em todas as nossas ações.
Esperamos por si! Para mais informações.
Na Villa Dourada Imobiliária, estamos empenhados em ajudar!
Apresentamos um acolhedor e moderno apartamento T1+1, com 83,6 m², lugar de garagem com 12 m² e +1 com 5,70 m², situado na tranquila e valorizada zona da Senhora do Monte, Serra de Canelas, em Vila Nova de Gaia. Trata?se de uma cedência de posição, ideal para quem procura um imóvel NOVO (ainda em construção), funcional e com excelentes acessos.
O apartamento destaca?se pelos seus acabamentos contemporâneos, pensados para proporcionar conforto e praticidade no dia a dia. A cozinha totalmente equipada com eletrodomésticos modernos. A sala, igualmente equipada com focos embutidos, oferece um espaço luminoso e convidativo, perfeito para momentos de descanso ou convívio, possui ainda sancas decorativas e estores elétricos garante funcionalidade e elegância, tornando cada momento mais prático e agradável. A suite conta com roupeiro embutido criando um ambiente acolhedor e organizado, O espaço adicional (+1) permite criar escritório, zona de arrumação ou quarto de apoio, adaptando?se às necessidades de cada família, possui ainda uma segunda casa de banho, de serviço, hall dos quartos com roupeiro, que apoios o quarto interior.
A localização é um dos grandes destaques deste imóvel. Na zona de Senhora Do Monte, Serra de Canelas, que é conhecida pela sua tranquilidade, segurança e proximidade a todo o tipo de comércio e serviços, como supermercados, cafés, restaurantes, farmácias e pastelarias. Nas imediações encontra clínicas privadas, centros de saúde, escolas, creches e infantários, tornando esta zona ideal para famílias.
Para momentos de lazer, a área oferece parques verdes, ginásios, piscinas municipais e espaços de caminhada. A poucos minutos encontra também pontos de interesse cultural e histórico, bem como zonas de convívio ao ar livre.
A rede de transportes públicos é eficiente e variada, apresenta boas acessibilidades, facilitando deslocações rápidas para o centro de Gaia e Porto, acesso à A1 e A29, A20 e A32. O Aeroporto Francisco Sá Carneiro situa?se a cerca de 22 km, garantindo acessibilidade nacional e internacional.
Este é o imóvel ideal para quem procura qualidade de vida, modernidade e uma localização privilegiada.
VILLA DOURADA IMOBILIÁRIA
ESPERAMOS POR SI!
ESTAMOS EMPENHADOS EM AJUDAR
Bem-vindo à Villa Dourada Imobiliária, onde a sua satisfação é a nossa prioridade.
A nossa missão é transformar o processo de compra, venda ou arrendamento de imóveis numa experiência agradável e sem complicações.
Nossos Serviços:
Compra e Venda de Imóveis: Ajudamos a encontrar o imóvel dos seus sonhos ou a vender a sua propriedade pelo melhor preço.
Arrendamento: Facilitamos o processo de arrendamento, garantindo segurança e transparência para proprietários e inquilinos.
Consultoria Imobiliária: Oferecemos aconselhamento especializado para que tome as melhores decisões no mercado imobiliário.
Gestão de Imóveis: Cuidamos da administração do seu imóvel, assegurando a sua valorização e rentabilidade.
Porquê Escolher a Villa Dourada?
Experiência e Conhecimento: Anos de atuação no mercado imobiliário, com um profundo conhecimento das tendências e oportunidades.
Atendimento Personalizado: Foco nas suas necessidades e objetivos, com soluções feitas à medida.
Transparência e Confiança: Compromisso com a ética e a transparência em todas as nossas ações.
Esperamos por si! Para mais informações.
Na Villa Dourada Imobiliária, estamos empenhados em ajudar!
Localização
Canelas, Penafiel, Porto
Informação do anúncio
ID do anúncio
1642357
Referência Externa
VDAS33
Atualizado em
25/04/2026 06:58:22
Apartamento T1 para Venda em Canelas