Terreno para Venda em Vila Nova de Foz Côa
105.000 €
Tipo
Terreno
Negócio
Venda
Área Bruta
231 m²
Condição
Para recuperar
Certificado Energético
B
Casa em Ruína para Reconstrução com Projeto Aprovado para AL – Vila Nova de Foz Côa
Excelente oportunidade de investimento em Vila Nova de Foz Côa, inserida no Vale do Côa classificado como Património Mundial pela UNESCO uma das regiões culturais e arqueológicas mais relevantes de Portugal e integrada na região do Douro.
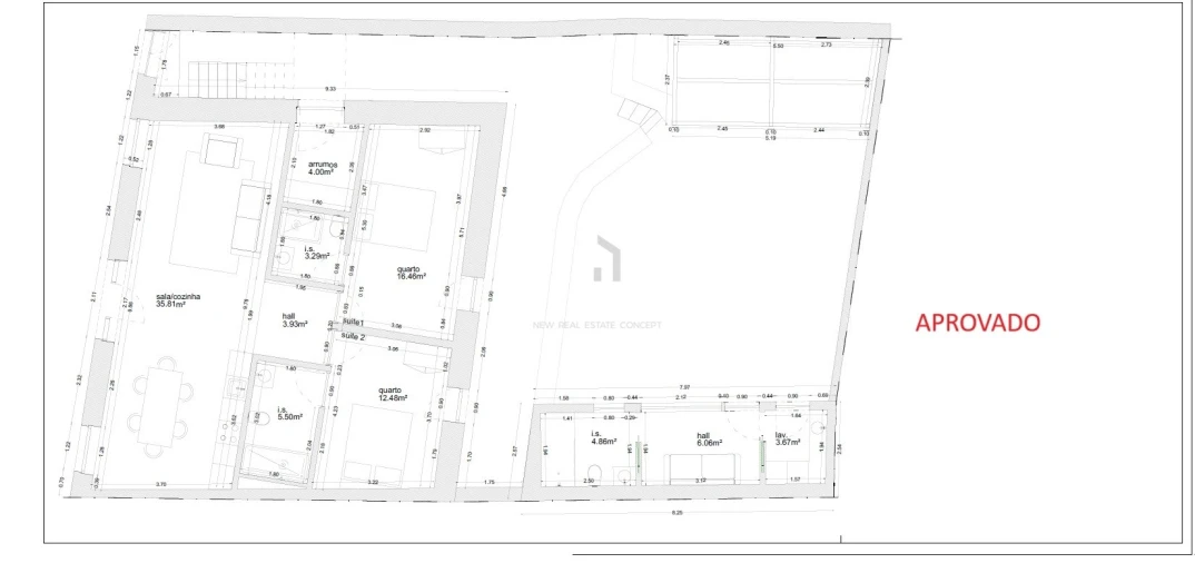
O imóvel encontra-se atualmente em estado de ruína e é vendido com projeto de reconstrução totalmente aprovado, incluindo arquitetura, todas as especialidades e licenciamento camarário, permitindo ao novo proprietário iniciar a obra de imediato, sem entraves burocráticos.
O projeto foi concebido para Alojamento Local (AL), com uma configuração versátil e otimizada para rentabilidade, ideal para arrendamento turístico de curta duração ou pequena unidade de alojamento de charme.
Informações Principais
Área de construção aprovada: 231 m²
Localização: Vila Nova de Foz Côa Vale do Côa (UNESCO)
Estado: Ruína para reconstrução total
Uso aprovado: Alojamento Local (AL)
Tipologia: T5
Casas de banho: 5
Certificado energético: Classe B
Distribuição do Projeto Aprovado
Rés-do-chão (acesso independente):
2 quartos
Sala e cozinha em open space
Unidade autónoma, ideal para arrendamento independente
1.º Piso:
3 quartos independentes
Concebidos para arrendamento individual
Espaço Exterior:
Pátio privativo com pérgula, pensado para usufruto dos hóspedes
Anexo Posterior:
Lavandaria
Arrecadação / zona técnica
Destaques do Imóvel
Projeto e licenças totalmente aprovados
Redução significativa do risco e do tempo de desenvolvimento
Localização em zona turística em forte crescimento
Proximidade ao património arqueológico do Vale do Côa e à região vinícola do Douro
Elevado potencial de rentabilidade para Alojamento Local ou unidade de charme
Trata-se de um verdadeiro projeto chave na mão para construção imediata, representando uma oportunidade rara de investimento numa zona protegida, de elevado valor cultural, turístico e patrimonial.
Excelente potencial de rentabilidade.
Localização estratégica em zona histórica e vínica.
Para mais informações ou envio do projeto aprovado, entre em contacto.
Porquê investir e viver em Portugal?
7.º país mais seguro (Global Peace Index 2024/2025)
Excelentes infraestruturas e rede de autoestradas
Destino turístico de topo (World Travel Awards)
Lisboa, Porto, Madeira e Algarve entre os destinos mais premiados (WTA)
Clima ameno todo o ano Verão: 25ºC | Inverno: 1516ºC
Top 10 em qualidade de vida (InterNations)
Um dos melhores países para expatriados viverem (InterNations)
Dieta Mediterrânica Património Cultural (UNESCO)
Gastronomia de excelência
Praia da Marinha (Algarve) entre as melhores praias internacionais (Tripadvisor)
Vinhos portugueses premiados (Forbes / rankings)
Povo português reconhecido pela hospitalidade (InterNations)
O imóvel encontra-se atualmente em estado de ruína e é vendido com projeto de reconstrução totalmente aprovado, incluindo arquitetura, todas as especialidades e licenciamento camarário, permitindo ao novo proprietário iniciar a obra de imediato, sem entraves burocráticos.
O projeto foi concebido para Alojamento Local (AL), com uma configuração versátil e otimizada para rentabilidade, ideal para arrendamento turístico de curta duração ou pequena unidade de alojamento de charme.
Informações Principais
Área de construção aprovada: 231 m²
Localização: Vila Nova de Foz Côa Vale do Côa (UNESCO)
Estado: Ruína para reconstrução total
Uso aprovado: Alojamento Local (AL)
Tipologia: T5
Casas de banho: 5
Certificado energético: Classe B
Distribuição do Projeto Aprovado
Rés-do-chão (acesso independente):
2 quartos
Sala e cozinha em open space
Unidade autónoma, ideal para arrendamento independente
1.º Piso:
3 quartos independentes
Concebidos para arrendamento individual
Espaço Exterior:
Pátio privativo com pérgula, pensado para usufruto dos hóspedes
Anexo Posterior:
Lavandaria
Arrecadação / zona técnica
Destaques do Imóvel
Projeto e licenças totalmente aprovados
Redução significativa do risco e do tempo de desenvolvimento
Localização em zona turística em forte crescimento
Proximidade ao património arqueológico do Vale do Côa e à região vinícola do Douro
Elevado potencial de rentabilidade para Alojamento Local ou unidade de charme
Trata-se de um verdadeiro projeto chave na mão para construção imediata, representando uma oportunidade rara de investimento numa zona protegida, de elevado valor cultural, turístico e patrimonial.
Excelente potencial de rentabilidade.
Localização estratégica em zona histórica e vínica.
Para mais informações ou envio do projeto aprovado, entre em contacto.
Porquê investir e viver em Portugal?
7.º país mais seguro (Global Peace Index 2024/2025)
Excelentes infraestruturas e rede de autoestradas
Destino turístico de topo (World Travel Awards)
Lisboa, Porto, Madeira e Algarve entre os destinos mais premiados (WTA)
Clima ameno todo o ano Verão: 25ºC | Inverno: 1516ºC
Top 10 em qualidade de vida (InterNations)
Um dos melhores países para expatriados viverem (InterNations)
Dieta Mediterrânica Património Cultural (UNESCO)
Gastronomia de excelência
Praia da Marinha (Algarve) entre as melhores praias internacionais (Tripadvisor)
Vinhos portugueses premiados (Forbes / rankings)
Povo português reconhecido pela hospitalidade (InterNations)
Localização
Vila Nova de Foz Côa, Vila Nova de Foz Coa, Guarda
Informação do anúncio
ID do anúncio
1659501
Referência Externa
ITH4098
Atualizado em
26/04/2026 00:36:18
Terreno para Venda em Vila Nova de Foz Côa