Negócio para Venda em Santa Marinha e São Pedro da Afurada
250.000 €
Tipo
Negócio
Negócio
Venda
Casas de Banho
2
Área Bruta
95 m²
Área Útil
95 m²
Condição
Usado
Certificado Energético
C
Descrição
Identificação do imóvel: ZMPT585898
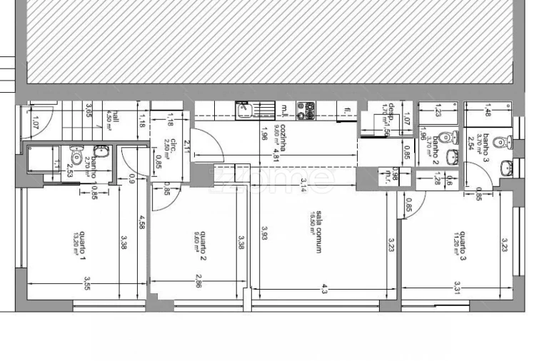
Loja com 95 m² ao nível de rés-do-chão elevado, com três frentes e janelas generosas, o que garante muita luminosidade natural ao longo do dia.
O espaço está organizado em open space, oferecendo uma base clara para diversas possibilidades de reorganização interior, conforme projeto pretendido.
Situada na Rua Francisco Alexandre Ferreira, esta loja tem uma localização estratégica numa artéria com presença de comércio e serviços diversos, numa zona com mobilidade e densidade urbana consolidadas.
A envolvente urbana inclui transportes públicos e equipamentos para a população local, o que contribui para um fluxo constante de pessoas e uma dinâmica comercial interessante. Em frente ao imóvel está a área das piscinas municipais de Gaia (Piscina Municipal de Maravedi), um equipamento de referência que tem vindo a ser alvo de obras de requalificação/construção, gerando movimento na zona e reforçando a qualidade da localização imediata.
Além da utilização como loja, o imóvel apresenta viabilidade de conversão para um apartamento T3, existindo já estudo, planta final e orçamento de obra. Para quem pretende uma solução chave-na-mão, existe a possibilidade de aquisição já com a reconversão concluída, em condições a definir conforme o modelo de aquisição pretendido. Uma abordagem interessante para habitação própria ou investimento, beneficiando da localização e do potencial de valorização.
Uma proposta com visibilidade, luz natural e boas perspetivas de valorização futura.
As obras de reabilitação do prédio já estão pagas.
3 razões para comprar com a Zome
+ acompanhamento
Com uma preparação e experiência única no mercado imobiliário, os consultores Zome põem toda a sua dedicação em dar-lhe o melhor acompanhamento, orientando-o com a máxima confiança, na direção certa das suas necessidades e ambições.
Daqui para a frente, vamos criar uma relação próxima e escutar com atenção as suas expectativas, porque a nossa prioridade é a sua felicidade! Porque é importante que sinta que está acompanhado, e que estamos consigo sempre.
+ simples
Os consultores Zome têm uma formação única no mercado, ancorada na partilha de experiência prática entre profissionais e fortalecida pelo conhecimento de neurociência aplicada que lhes permite simplificar e tornar mais eficaz a sua experiência imobiliária.
Deixe para trás os pesadelos burocráticos porque na Zome encontra o apoio total de uma equipa experiente e multidisciplinar que lhe dá suporte prático em todos os aspetos fundamentais, para que a sua experiência imobiliária supere as expectativas.
+ feliz
O nosso maior valor é entregar-lhe felicidade!
Liberte-se de preocupações e ganhe o tempo de qualidade que necessita para se dedicar ao que lhe faz mais feliz.
Agimos diariamente para trazer mais valor à sua vida com o aconselhamento fiável de que precisa para, juntos, conseguirmos atingir os melhores resultados.
Com a Zome nunca vai estar perdido ou desacompanhado e encontrará algo que não tem preço: a sua máxima tranquilidade!
É assim que se vai sentir ao longo de toda a experiência: Tranquilo, seguro, confortável e... FELIZ!
Notas:
1. Caso seja um consultor imobiliário, este imóvel está disponível para partilha de negócio. Não hesite em apresentar aos seus clientes compradores e fale connosco para agendar a sua visita.
2. Para maior facilidade na identificação deste imóvel, por favor, refira o respetivo ID ZMPT ou o respetivo agente que lhe tenha enviado a sugestão.
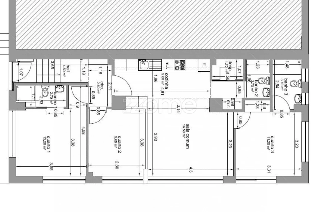
Loja com 95 m² ao nível de rés-do-chão elevado, com três frentes e janelas generosas, o que garante muita luminosidade natural ao longo do dia.
O espaço está organizado em open space, oferecendo uma base clara para diversas possibilidades de reorganização interior, conforme projeto pretendido.
Situada na Rua Francisco Alexandre Ferreira, esta loja tem uma localização estratégica numa artéria com presença de comércio e serviços diversos, numa zona com mobilidade e densidade urbana consolidadas.
A envolvente urbana inclui transportes públicos e equipamentos para a população local, o que contribui para um fluxo constante de pessoas e uma dinâmica comercial interessante. Em frente ao imóvel está a área das piscinas municipais de Gaia (Piscina Municipal de Maravedi), um equipamento de referência que tem vindo a ser alvo de obras de requalificação/construção, gerando movimento na zona e reforçando a qualidade da localização imediata.
Além da utilização como loja, o imóvel apresenta viabilidade de conversão para um apartamento T3, existindo já estudo, planta final e orçamento de obra. Para quem pretende uma solução chave-na-mão, existe a possibilidade de aquisição já com a reconversão concluída, em condições a definir conforme o modelo de aquisição pretendido. Uma abordagem interessante para habitação própria ou investimento, beneficiando da localização e do potencial de valorização.
Uma proposta com visibilidade, luz natural e boas perspetivas de valorização futura.
As obras de reabilitação do prédio já estão pagas.
3 razões para comprar com a Zome
+ acompanhamento
Com uma preparação e experiência única no mercado imobiliário, os consultores Zome põem toda a sua dedicação em dar-lhe o melhor acompanhamento, orientando-o com a máxima confiança, na direção certa das suas necessidades e ambições.
Daqui para a frente, vamos criar uma relação próxima e escutar com atenção as suas expectativas, porque a nossa prioridade é a sua felicidade! Porque é importante que sinta que está acompanhado, e que estamos consigo sempre.
+ simples
Os consultores Zome têm uma formação única no mercado, ancorada na partilha de experiência prática entre profissionais e fortalecida pelo conhecimento de neurociência aplicada que lhes permite simplificar e tornar mais eficaz a sua experiência imobiliária.
Deixe para trás os pesadelos burocráticos porque na Zome encontra o apoio total de uma equipa experiente e multidisciplinar que lhe dá suporte prático em todos os aspetos fundamentais, para que a sua experiência imobiliária supere as expectativas.
+ feliz
O nosso maior valor é entregar-lhe felicidade!
Liberte-se de preocupações e ganhe o tempo de qualidade que necessita para se dedicar ao que lhe faz mais feliz.
Agimos diariamente para trazer mais valor à sua vida com o aconselhamento fiável de que precisa para, juntos, conseguirmos atingir os melhores resultados.
Com a Zome nunca vai estar perdido ou desacompanhado e encontrará algo que não tem preço: a sua máxima tranquilidade!
É assim que se vai sentir ao longo de toda a experiência: Tranquilo, seguro, confortável e... FELIZ!
Notas:
1. Caso seja um consultor imobiliário, este imóvel está disponível para partilha de negócio. Não hesite em apresentar aos seus clientes compradores e fale connosco para agendar a sua visita.
2. Para maior facilidade na identificação deste imóvel, por favor, refira o respetivo ID ZMPT ou o respetivo agente que lhe tenha enviado a sugestão.
Localização
Rua Francisco Alexandre Ferreira
Santa Marinha e São Pedro da Afurada, Vila Nova de Gaia, Porto
A localização exacta do imóvel não está disponível. O mapa apresenta a zona aproximada.
Informação do anúncio
ID do anúncio
1664412
Referência Externa
ZMPT585898
Atualizado em
26/04/2026 06:03:13
Anunciante
Chamada para a rede fixa nacional
ZOME Porto - CEC
AMI 17432
Referência do imóvel:
ZMPT585898
Negócio para Venda em Santa Marinha e São Pedro da Afurada