Apartamento T1 para Arrendamento em Alcochete
1.850 €
Tipo
Apartamento
Negócio
Arrendamento
Ano de Construção
2026
Quartos
1
Casas de Banho
2
Área Bruta
162 m²
Área Útil
68 m²
Certificado Energético
A
Apartamento T1 a estrear - Terraço - Piscina- Garagem
Apartamento T1 moderno a estrear, com um layout inteligente que separa perfeitamente a zona social da zona privativa (quarto), inserido em um Condomínio que como residente, terá acesso a comodidades de um hotel de 5 estrelas: uma piscina rodeada por jardins paisagísticos e um ginásio privado totalmente equipado. Inclui ainda 2 lugares de garagem privativo e uma arrecadação, garantindo conveniência total no centro da vila.
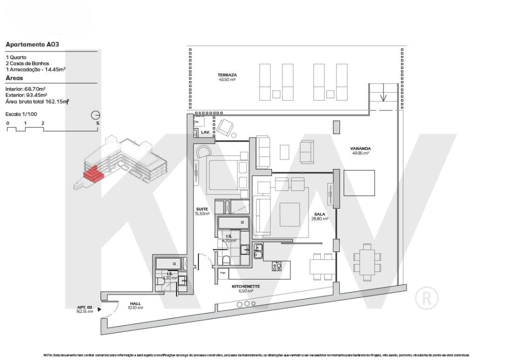
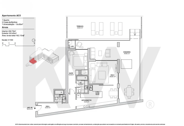
Com área bruta total de 162.15 m² sendo 93.45 m² de varandas e terraço, o apartamento distingue-se pelas suas proporções generosas e pela fluidez entre os espaços interiores e exteriores, criando um ambiente elegante, com charme e sofisticação, ideal para uma vivência urbana de elevado padrão.
A área privada inclui uma ampla suíte com roupeiros embutidos, lavabo e sala ampla com acesso a varanda e ao terraço que convida a uma refeição com vistas para piscina. Este piso é complementado por uma cozinha totalmente equipada com eletrodomésticos topo de gama que alia design contemporâneo à funcionalidade, além de 2 máquinas para lavar e outra para secar roupas em uma zona destinada apenas à lavandaria.
O apartamento oferece Tecnologia e Conforto: Climatização através de sistema Multi-Split e Bomba de Calor (Eficiência Energética Superior).
Com todas divisões muito amplas e orientação solar que favorece a entrada de luz natural em todas as divisões, reforça-se a sensação de amplitude, conforto e harmonia com total privacidade.
Lazer e Bem-Estar (Premium): Piscina exterior com área de solário, inserida num amplo e cuidado jardim paisagístico.
Health Club Privado: Ginásio totalmente equipado para uso exclusivo dos residentes.
Sustentabilidade: Projeto focado na eficiência energética, luminosidade natural e harmonia com a envolvente zona ribeirinha.
Segurança: Condomínio fechado com videovigilância (CCTV) e controlo de acessos permanente.
A localização central a poucos passos do Passeio do Rio Tejo, convida a caminhadas matinais, corridas ou passeios de bicicleta ao pôr do sol.
Conexão a Lisboa: A escassos 20 minutos de Lisboa e do Parque das Nações (via Ponte Vasco da Gama).
Agende a sua visita e confirme o padrão de excelência deste projeto único.
Nota: As imagens apresentadas são do andar modelo/apartamento tipo e têm caráter meramente ilustrativo. As áreas, acabamentos e vistas podem variar consoante a fração disponível, pode conter imagens de IA apenas para sugestão de decoração virtual.
Licença de utilização: 60/2025
Com área bruta total de 162.15 m² sendo 93.45 m² de varandas e terraço, o apartamento distingue-se pelas suas proporções generosas e pela fluidez entre os espaços interiores e exteriores, criando um ambiente elegante, com charme e sofisticação, ideal para uma vivência urbana de elevado padrão.
A área privada inclui uma ampla suíte com roupeiros embutidos, lavabo e sala ampla com acesso a varanda e ao terraço que convida a uma refeição com vistas para piscina. Este piso é complementado por uma cozinha totalmente equipada com eletrodomésticos topo de gama que alia design contemporâneo à funcionalidade, além de 2 máquinas para lavar e outra para secar roupas em uma zona destinada apenas à lavandaria.
O apartamento oferece Tecnologia e Conforto: Climatização através de sistema Multi-Split e Bomba de Calor (Eficiência Energética Superior).
Com todas divisões muito amplas e orientação solar que favorece a entrada de luz natural em todas as divisões, reforça-se a sensação de amplitude, conforto e harmonia com total privacidade.
Lazer e Bem-Estar (Premium): Piscina exterior com área de solário, inserida num amplo e cuidado jardim paisagístico.
Health Club Privado: Ginásio totalmente equipado para uso exclusivo dos residentes.
Sustentabilidade: Projeto focado na eficiência energética, luminosidade natural e harmonia com a envolvente zona ribeirinha.
Segurança: Condomínio fechado com videovigilância (CCTV) e controlo de acessos permanente.
A localização central a poucos passos do Passeio do Rio Tejo, convida a caminhadas matinais, corridas ou passeios de bicicleta ao pôr do sol.
Conexão a Lisboa: A escassos 20 minutos de Lisboa e do Parque das Nações (via Ponte Vasco da Gama).
Agende a sua visita e confirme o padrão de excelência deste projeto único.
Nota: As imagens apresentadas são do andar modelo/apartamento tipo e têm caráter meramente ilustrativo. As áreas, acabamentos e vistas podem variar consoante a fração disponível, pode conter imagens de IA apenas para sugestão de decoração virtual.
Licença de utilização: 60/2025
Localização
Alcochete, Alcochete, Setúbal
Informação do anúncio
ID do anúncio
1680681
Referência Externa
KWPT-029099
Atualizado em
25/04/2026 00:02:51
Anunciante
Chamada para a rede fixa nacional
KW Alfa Lisboa
AMI 18161
Referência do imóvel:
KWPT-029099
Apartamento T1 para Arrendamento em Alcochete