Apartamento T2 para Arrendamento em Alcochete
2.850 €
Tipo
Apartamento
Negócio
Arrendamento
Ano de Construção
2026
Quartos
2
Casas de Banho
4
Área Bruta
182 m²
Área Útil
138 m²
Certificado Energético
A
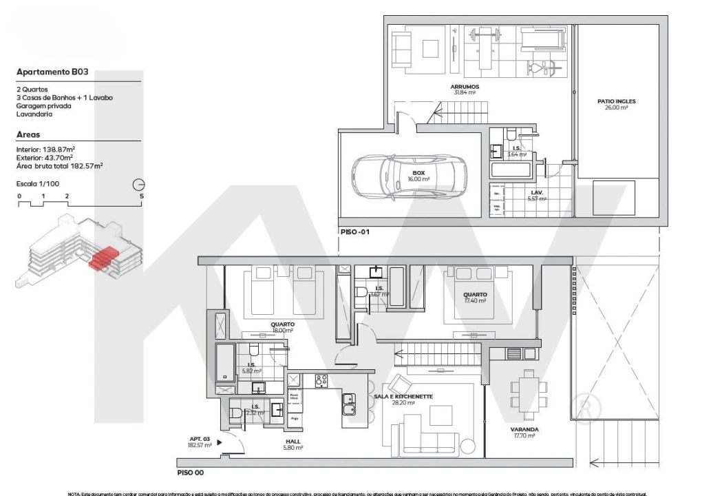
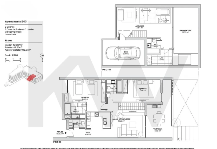
Apartamento duplex T2 +1 a estrear - 2 suítes - Terraço - Piscina- Garagem
Apartamento duplex T2 moderno a estrear, inserido em um Condomínio que como residente, terá acesso a comodidades de um hotel de 5 estrelas: uma piscina rodeada por jardins paisagísticos e um ginásio privado totalmente equipado. Inclui ainda 2 lugares de garagem privativo(Sendo 1 box com carregamento para carro elétrico) e arrecadação, garantindo conveniência total no centro da vila.
Com área bruta total de 182.57m2 sendo 43.70 m² de varandas, terraço e um encantador pátio interior, o apartamento distingue-se pelas suas proporções generosas e pela fluidez entre os espaços interiores e exteriores, criando um ambiente elegante, com charme e sofisticação, ideal para uma vivência urbana de elevado padrão.
No piso superior o apartamento dispõe de sala e Kitchenete, duas suítes, lavabo, varanda e um lindo jardim para aproveitar fazendo uma refeição com vistas para piscina. A cozinha, totalmente equipada com eletrodomésticos topo de gama, alia design contemporâneo à funcionalidade.
No piso inferior, tem-se o acesso direto a casa através da entrada privativa da garagem box, ao quarto +1 ou sala com entrada para o pátio interior com barbecue e servido por um lavabo para quem gosta de celebrar um momento familiar em privacidade.
Zona de lavandaria privada equipada com 2 máquinas, uma para lavar e outra para secar roupas.
O apartamento oferece Tecnologia e Conforto: Climatização através de sistema Multi-Split e Bomba de Calor (Eficiência Energética Superior).
Com todas divisões muito amplas e orientação solar que favorece a entrada de luz natural em todas as divisões, reforça-se a sensação de amplitude, conforto e harmonia com total privacidade.
Lazer e Bem-Estar (Premium): Piscina exterior com área de solário, inserida num amplo e cuidado jardim paisagístico.
Health Club Privado: Ginásio totalmente equipado para uso exclusivo dos residentes.
Sustentabilidade: Projeto focado na eficiência energética, luminosidade natural e harmonia com a envolvente ribeirinha.
Segurança: Condomínio fechado com videovigilância (CCTV) e controlo de acessos permanente.
Conexão a Lisboa: A escassos 20 minutos de Lisboa e do Parque das Nações (via Ponte Vasco da Gama). O refúgio pacífico perfeito ao final de um dia de trabalho na capital.
Agende a sua visita e confirme o padrão de excelência deste projeto único.
Nota: As imagens apresentadas são do andar modelo/apartamento tipo e têm caráter meramente ilustrativo. As áreas, acabamentos e vistas podem variar consoante a fração disponível, pode conter imagens de IA apenas para sugestão de decoração virtual.
Licença de utilização: 60/2025
Com área bruta total de 182.57m2 sendo 43.70 m² de varandas, terraço e um encantador pátio interior, o apartamento distingue-se pelas suas proporções generosas e pela fluidez entre os espaços interiores e exteriores, criando um ambiente elegante, com charme e sofisticação, ideal para uma vivência urbana de elevado padrão.
No piso superior o apartamento dispõe de sala e Kitchenete, duas suítes, lavabo, varanda e um lindo jardim para aproveitar fazendo uma refeição com vistas para piscina. A cozinha, totalmente equipada com eletrodomésticos topo de gama, alia design contemporâneo à funcionalidade.
No piso inferior, tem-se o acesso direto a casa através da entrada privativa da garagem box, ao quarto +1 ou sala com entrada para o pátio interior com barbecue e servido por um lavabo para quem gosta de celebrar um momento familiar em privacidade.
Zona de lavandaria privada equipada com 2 máquinas, uma para lavar e outra para secar roupas.
O apartamento oferece Tecnologia e Conforto: Climatização através de sistema Multi-Split e Bomba de Calor (Eficiência Energética Superior).
Com todas divisões muito amplas e orientação solar que favorece a entrada de luz natural em todas as divisões, reforça-se a sensação de amplitude, conforto e harmonia com total privacidade.
Lazer e Bem-Estar (Premium): Piscina exterior com área de solário, inserida num amplo e cuidado jardim paisagístico.
Health Club Privado: Ginásio totalmente equipado para uso exclusivo dos residentes.
Sustentabilidade: Projeto focado na eficiência energética, luminosidade natural e harmonia com a envolvente ribeirinha.
Segurança: Condomínio fechado com videovigilância (CCTV) e controlo de acessos permanente.
Conexão a Lisboa: A escassos 20 minutos de Lisboa e do Parque das Nações (via Ponte Vasco da Gama). O refúgio pacífico perfeito ao final de um dia de trabalho na capital.
Agende a sua visita e confirme o padrão de excelência deste projeto único.
Nota: As imagens apresentadas são do andar modelo/apartamento tipo e têm caráter meramente ilustrativo. As áreas, acabamentos e vistas podem variar consoante a fração disponível, pode conter imagens de IA apenas para sugestão de decoração virtual.
Licença de utilização: 60/2025
Localização
Alcochete, Alcochete, Setúbal
Informação do anúncio
ID do anúncio
1680703
Referência Externa
KWPT-029096
Atualizado em
25/04/2026 00:02:51
Anunciante
Chamada para a rede fixa nacional
KW Alfa Lisboa
AMI 18161
Referência do imóvel:
KWPT-029096
Apartamento T2 para Arrendamento em Alcochete