Terreno para Venda em Montemor-O-Velho e Gatões
29.500 €
Tipo
Terreno
Negócio
Venda
Área Bruta
131 m²
Área Útil
131 m²
Área do Terreno
1500 m²
Descrição
Identificação do imóvel: ZMPT586178
Apresento este terreno com excelentes características para construção de moradia unifamiliar, ideal para quem procura construir casa própria com projeto já desenvolvido. O terreno possui uma área aproximada de 1500 m², é plano e apresenta ótimas condições para implantação de habitação. Entre as mais valias do terreno destaca-se a existência de um poço, um elemento cada vez mais valorizado, que pode ser utilizado para rega de jardim, manutenção de zonas verdes ou apoio à piscina.
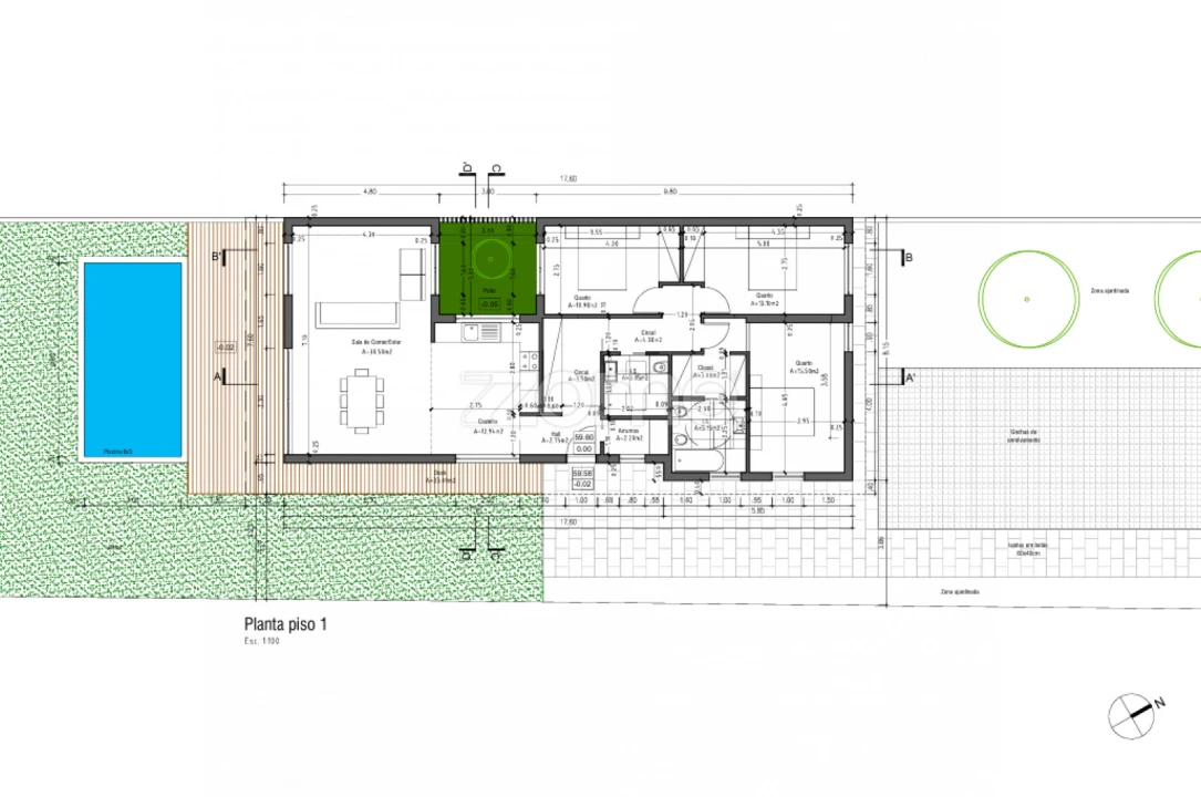
Projeto de Arquitetura
O terreno dispõe de projeto de arquitetura aprovado, para construção de:
• Moradia T3 térrea
• Área de construção aproximada de 131 m²
• Implantação em um único piso
• Piscina incluída no projeto
A moradia foi concebida com uma arquitetura contemporânea e uma distribuição funcional bem pensada, privilegiando o conforto e a relação com o exterior. Um dos elementos mais interessantes do projeto é a criação de um jardim interior, que permite trazer luz natural para o centro da casa e criar uma ligação harmoniosa entre os diferentes espaços.
A implantação da moradia foi também estudada tendo em conta a orientação solar, permitindo aproveitar melhor a exposição ao sol ao longo do dia, aumentando o conforto térmico e a eficiência energética da habitação.
Infraestruturas
O terreno já dispõe de ramal de eletricidade, facilitando o início da construção.
Flexibilidade construtiva
O projeto de arquitetura permite que a construção seja executada através de diferentes métodos construtivos, tais como:
• Alvenaria tradicional
• Estrutura metálica leve (LSF)
• Construção modular
• Outras soluções construtivas equivalentes
Um dos projetos de especialidades foi desenvolvido considerando a possibilidade de construção com estrutura de contentores marítimos.
Dependendo da intenção do comprador, existe a possibilidade de submeter todos os projetos de especialidades já desenvolvidos, permitindo acelerar o processo de aprovação e licenciamento.
Uma excelente oportunidade para quem pretende
• Construir moradia própria com projeto já desenvolvido
• Reduzir tempo no processo de licenciamento
• Beneficiar de uma moradia térrea com arquitetura funcional e luminosa
• Aproveitar um terreno plano com poço e grande potencial
Para mais informações ou agendamento de visita, entre em contacto.
Consigo sempre na procura de casa
3 razões para comprar com a Zome:
+ Acompanhamento
Com uma preparação e experiência única no mercado imobiliário, os consultores Zome põem toda a sua dedicação em dar-lhe o melhor acompanhamento, orientando-o com a máxima confiança, na direção certa das suas necessidades e ambições.
Daqui para a frente, vamos criar uma relação próxima e escutar com atenção as suas expectativas, porque a nossa prioridade é a sua felicidade! Porque é importante que sinta que está acompanhado, e que estamos consigo sempre.
+ Simples
Os consultores Zome têm uma formação única no mercado, ancorada na partilha de experiência prática entre profissionais e fortalecida pelo conhecimento de neurociência aplicada que lhes permite simplificar e tornar mais eficaz a sua experiência imobiliária.
Deixe para trás os pesadelos burocráticos porque na Zome encontra o apoio total de uma equipa experiente e multidisciplinar que lhe dá suporte prático em todos os aspetos fundamentais, para que a sua experiência imobiliária supere as expectativas.
+ Feliz
Liberte-se de preocupações e ganhe o tempo de qualidade que necessita para se dedicar ao que lhe faz mais feliz.
Agimos diariamente para trazer mais valor à sua vida com o aconselhamento fiável de que precisa para, juntos, conseguirmos atingir os melhores resultados.
Com a Zome nunca vai estar perdido ou desacompanhado e encontrará algo que não tem preço: a sua máxima tranquilidade!
É assim que se vai sentir ao longo de toda a experiência: Tranquilo, seguro, confortável e... FELIZ!
Notas:
● Caso seja um consultor imobiliário , este imóvel está disponível para partilha de negócio . Não hesite em apresentar aos seus clientes compradores e fale connosco para agendar a sua visita.
● Para maior facilidade na identificação deste imóvel, por favor, refira o respetivo ID ZMPT ou o respetivo agente que lhe tenha enviado a sugestão.
Apresento este terreno com excelentes características para construção de moradia unifamiliar, ideal para quem procura construir casa própria com projeto já desenvolvido. O terreno possui uma área aproximada de 1500 m², é plano e apresenta ótimas condições para implantação de habitação. Entre as mais valias do terreno destaca-se a existência de um poço, um elemento cada vez mais valorizado, que pode ser utilizado para rega de jardim, manutenção de zonas verdes ou apoio à piscina.
Projeto de Arquitetura
O terreno dispõe de projeto de arquitetura aprovado, para construção de:
• Moradia T3 térrea
• Área de construção aproximada de 131 m²
• Implantação em um único piso
• Piscina incluída no projeto
A moradia foi concebida com uma arquitetura contemporânea e uma distribuição funcional bem pensada, privilegiando o conforto e a relação com o exterior. Um dos elementos mais interessantes do projeto é a criação de um jardim interior, que permite trazer luz natural para o centro da casa e criar uma ligação harmoniosa entre os diferentes espaços.
A implantação da moradia foi também estudada tendo em conta a orientação solar, permitindo aproveitar melhor a exposição ao sol ao longo do dia, aumentando o conforto térmico e a eficiência energética da habitação.
Infraestruturas
O terreno já dispõe de ramal de eletricidade, facilitando o início da construção.
Flexibilidade construtiva
O projeto de arquitetura permite que a construção seja executada através de diferentes métodos construtivos, tais como:
• Alvenaria tradicional
• Estrutura metálica leve (LSF)
• Construção modular
• Outras soluções construtivas equivalentes
Um dos projetos de especialidades foi desenvolvido considerando a possibilidade de construção com estrutura de contentores marítimos.
Dependendo da intenção do comprador, existe a possibilidade de submeter todos os projetos de especialidades já desenvolvidos, permitindo acelerar o processo de aprovação e licenciamento.
Uma excelente oportunidade para quem pretende
• Construir moradia própria com projeto já desenvolvido
• Reduzir tempo no processo de licenciamento
• Beneficiar de uma moradia térrea com arquitetura funcional e luminosa
• Aproveitar um terreno plano com poço e grande potencial
Para mais informações ou agendamento de visita, entre em contacto.
Consigo sempre na procura de casa
3 razões para comprar com a Zome:
+ Acompanhamento
Com uma preparação e experiência única no mercado imobiliário, os consultores Zome põem toda a sua dedicação em dar-lhe o melhor acompanhamento, orientando-o com a máxima confiança, na direção certa das suas necessidades e ambições.
Daqui para a frente, vamos criar uma relação próxima e escutar com atenção as suas expectativas, porque a nossa prioridade é a sua felicidade! Porque é importante que sinta que está acompanhado, e que estamos consigo sempre.
+ Simples
Os consultores Zome têm uma formação única no mercado, ancorada na partilha de experiência prática entre profissionais e fortalecida pelo conhecimento de neurociência aplicada que lhes permite simplificar e tornar mais eficaz a sua experiência imobiliária.
Deixe para trás os pesadelos burocráticos porque na Zome encontra o apoio total de uma equipa experiente e multidisciplinar que lhe dá suporte prático em todos os aspetos fundamentais, para que a sua experiência imobiliária supere as expectativas.
+ Feliz
Liberte-se de preocupações e ganhe o tempo de qualidade que necessita para se dedicar ao que lhe faz mais feliz.
Agimos diariamente para trazer mais valor à sua vida com o aconselhamento fiável de que precisa para, juntos, conseguirmos atingir os melhores resultados.
Com a Zome nunca vai estar perdido ou desacompanhado e encontrará algo que não tem preço: a sua máxima tranquilidade!
É assim que se vai sentir ao longo de toda a experiência: Tranquilo, seguro, confortável e... FELIZ!
Notas:
● Caso seja um consultor imobiliário , este imóvel está disponível para partilha de negócio . Não hesite em apresentar aos seus clientes compradores e fale connosco para agendar a sua visita.
● Para maior facilidade na identificação deste imóvel, por favor, refira o respetivo ID ZMPT ou o respetivo agente que lhe tenha enviado a sugestão.
Localização
Rua do Casal do Jagaz - Pares de 212 a 450
Montemor-O-Velho e Gatões, Montemor-o-Velho, Coimbra
A localização exacta do imóvel não está disponível. O mapa apresenta a zona aproximada.
Informação do anúncio
ID do anúncio
1684012
Referência Externa
ZMPT586178
Atualizado em
26/04/2026 06:04:34
Anunciante
Chamada para a rede fixa nacional
ZOME Coimbra
AMI 11748
Referência do imóvel:
ZMPT586178
Terreno para Venda em Montemor-O-Velho e Gatões