Terreno para Venda em Darque
40.000 €
Tipo
Terreno
Negócio
Venda
Condição
Novo
Área do Terreno
152 m²
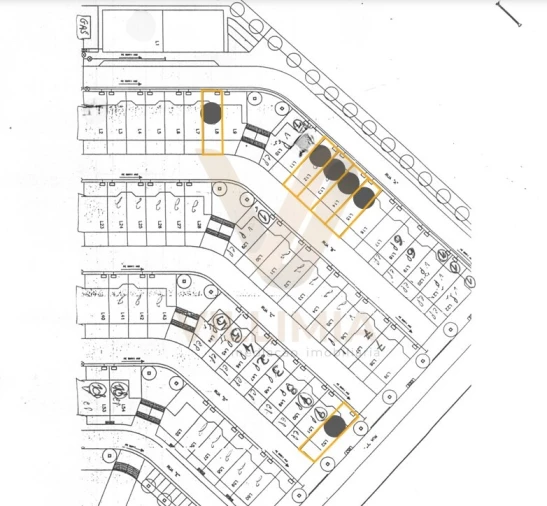
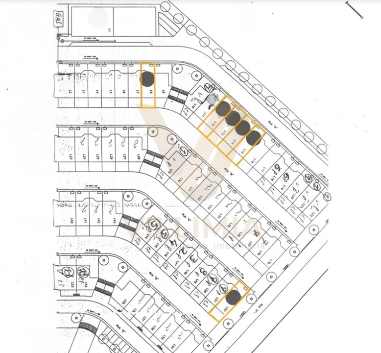
Lotes 152 m² para Construção - Darque, Viana do Castelo
Lotes para Construção - Darque, Viana do Castelo
Lotes de terreno com 152 m², preparados para construção de moradias com cave, rés do chão e primeiro andar, inseridos numa zona residencial tranquila e bem estruturada em Darque.
Características dos lotes:
Área do lote: 152 m²
Infraestruturas concluídas, com saneamento básico disponível
Terrenos preparados para moradias em altura (cave + 2 pisos)
Boa topografia, adequada a construção com cave
Excelente exposição solar ao longo de todo o dia
Exemplos de soluções habitacionais viáveis:
Moradia T3 ou T4
Cave com garagem para 2 viaturas
Rés do chão composto por:
Sala
Cozinha
Casa de banho
Escritório ou quarto
Primeiro andar com:
Suíte
Dois quartos
Casa de banho completa
Jardim ou logradouro integrado na área não ocupada do lote
Localização e envolvente:
Zona calma, com contacto direto com a natureza
Junto a escola e serviços de proximidade
A cerca de 4 minutos da praia
A 4 minutos do centro histórico de Viana do Castelo
Excelentes acessos rodoviários, com ligações rápidas ao centro da cidade e às principais vias
Uma solução ideal para quem pretende construir uma moradia moderna, funcional e bem localizada, conciliando tranquilidade, proximidade ao mar e acesso rápido à cidade.
NOTA: PROJETO 3D MERAMENTE ILUSTRATIVO
Lotes de terreno com 152 m², preparados para construção de moradias com cave, rés do chão e primeiro andar, inseridos numa zona residencial tranquila e bem estruturada em Darque.
Características dos lotes:
Área do lote: 152 m²
Infraestruturas concluídas, com saneamento básico disponível
Terrenos preparados para moradias em altura (cave + 2 pisos)
Boa topografia, adequada a construção com cave
Excelente exposição solar ao longo de todo o dia
Exemplos de soluções habitacionais viáveis:
Moradia T3 ou T4
Cave com garagem para 2 viaturas
Rés do chão composto por:
Sala
Cozinha
Casa de banho
Escritório ou quarto
Primeiro andar com:
Suíte
Dois quartos
Casa de banho completa
Jardim ou logradouro integrado na área não ocupada do lote
Localização e envolvente:
Zona calma, com contacto direto com a natureza
Junto a escola e serviços de proximidade
A cerca de 4 minutos da praia
A 4 minutos do centro histórico de Viana do Castelo
Excelentes acessos rodoviários, com ligações rápidas ao centro da cidade e às principais vias
Uma solução ideal para quem pretende construir uma moradia moderna, funcional e bem localizada, conciliando tranquilidade, proximidade ao mar e acesso rápido à cidade.
NOTA: PROJETO 3D MERAMENTE ILUSTRATIVO
Localização
Darque, Viana do Castelo, Viana do Castelo
Informação do anúncio
ID do anúncio
1689800
Referência Externa
V387-15
Atualizado em
12/03/2026 09:42:18
Terreno para Venda em Darque