Apartamento T2 para Venda em Freamunde
258.000 €
Tipo
Apartamento
Negócio
Venda
Ano de Construção
2026
Quartos
2
Casas de Banho
2
Área Bruta
101 m²
Área Útil
101 m²
Condição
Certificado Energético
A
Apartamento T2 para venda
Apartamento T2 com varanda e lugar de garagem, em Freamunde, Paços de Ferreira
Localização e envolvente:
Localização privilegiada na Avenida da Escola Secundária, em área de habitação do tipo unifamiliar e multifamiliar. Zona calma. Fácil acesso/distribuição automóvel e pedonal.
Próximo da Escola Básica e Secundária de Freamunde
Principais características:
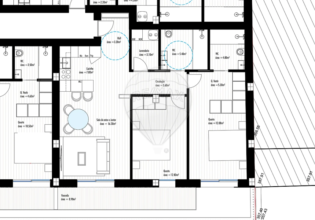
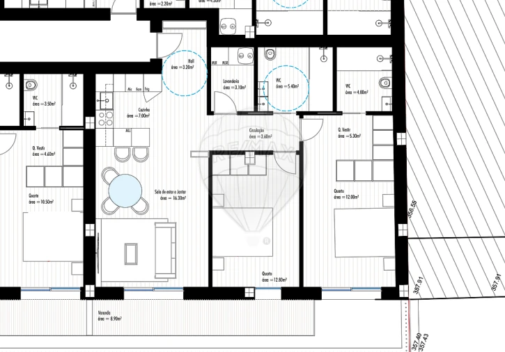
- apartamento T2 (80,00m2)
- varanda (8,90m2)
- 3.º andar
- uma frente (orientação poente)
- suite
- lugar de garagem
Apartamento:
- átrio de entrada (3,20m2)
- sala comum (16,30m2) em open space com a cozinha (7,00m2), equipada com placa de indução, exaustor, forno, microondas e frigorífico, com acesso a uma varanda
- varanda (8,90m2)
- zona de circulação dos quartos (3,60m2)
- lavandaria (3,10m2)
- instalação sanitária (5,40m2) com lavatório, sanita e base de duche
- quarto (12,80m2) com armário embutido
- suite (12,00m2) com quarto de vestir (5,30m2) e instalação sanitária (4,00m2) com lavatório, sanita e base de duche
Outras características e valências:
Apartamento:
- pavimento vinílico
- instalações sanitárias com pavimento cerâmico
- tetos falsos com projetores led
- carpintarias lacadas (branco mate)
- caixilharia em alumínio com vidro duplo
- estores elétricos
- aquecimento de águas sanitárias com bomba de calor
- pré-instalação de ar condicionado para aparelhos murais
- videoporteiro
Geral
- revestimento da fachada do prédio com isolamento térmico (ETICS)
Pontos de interesse:
- junto a uma pastelaria
- a 100 da Escola Básica e Secundária de Freamunde
- a 400m do Pavilhão Desportivo de Freamunde
- a 650m do Intermarché
- a 700m do Centro Escolar de Freamunde
- a 800m da Piscina Municipal de Freamunde
- a 1,2km da Escola Básica 2,3 Dr. Manuel Pinto Vasconcelos
- a 1,6km do Parque de Lazer de Freamunde
- a 1,6km do Hospital Lusíadas Paços de Ferreira
- a 1,6km do Continente
- a 2,6km do centro de Paços de Ferreira
Transportes e acessos:
- a 400m da N207
- a 3,8km do acesso à A42
Nota: para maior facilidade na identificação deste imóvel, por favor, refira o respectivo ID. Em caso de agendamento de visita, faça-se acompanhar de um documento de identificação. Muito obrigado!
*****
;ID RE/MAX: 126401038-266
Localização e envolvente:
Localização privilegiada na Avenida da Escola Secundária, em área de habitação do tipo unifamiliar e multifamiliar. Zona calma. Fácil acesso/distribuição automóvel e pedonal.
Próximo da Escola Básica e Secundária de Freamunde
Principais características:
- apartamento T2 (80,00m2)
- varanda (8,90m2)
- 3.º andar
- uma frente (orientação poente)
- suite
- lugar de garagem
Apartamento:
- átrio de entrada (3,20m2)
- sala comum (16,30m2) em open space com a cozinha (7,00m2), equipada com placa de indução, exaustor, forno, microondas e frigorífico, com acesso a uma varanda
- varanda (8,90m2)
- zona de circulação dos quartos (3,60m2)
- lavandaria (3,10m2)
- instalação sanitária (5,40m2) com lavatório, sanita e base de duche
- quarto (12,80m2) com armário embutido
- suite (12,00m2) com quarto de vestir (5,30m2) e instalação sanitária (4,00m2) com lavatório, sanita e base de duche
Outras características e valências:
Apartamento:
- pavimento vinílico
- instalações sanitárias com pavimento cerâmico
- tetos falsos com projetores led
- carpintarias lacadas (branco mate)
- caixilharia em alumínio com vidro duplo
- estores elétricos
- aquecimento de águas sanitárias com bomba de calor
- pré-instalação de ar condicionado para aparelhos murais
- videoporteiro
Geral
- revestimento da fachada do prédio com isolamento térmico (ETICS)
Pontos de interesse:
- junto a uma pastelaria
- a 100 da Escola Básica e Secundária de Freamunde
- a 400m do Pavilhão Desportivo de Freamunde
- a 650m do Intermarché
- a 700m do Centro Escolar de Freamunde
- a 800m da Piscina Municipal de Freamunde
- a 1,2km da Escola Básica 2,3 Dr. Manuel Pinto Vasconcelos
- a 1,6km do Parque de Lazer de Freamunde
- a 1,6km do Hospital Lusíadas Paços de Ferreira
- a 1,6km do Continente
- a 2,6km do centro de Paços de Ferreira
Transportes e acessos:
- a 400m da N207
- a 3,8km do acesso à A42
Nota: para maior facilidade na identificação deste imóvel, por favor, refira o respectivo ID. Em caso de agendamento de visita, faça-se acompanhar de um documento de identificação. Muito obrigado!
*****
;ID RE/MAX: 126401038-266
Localização
Freamunde, Paços de Ferreira, Porto
Informação do anúncio
ID do anúncio
1689937
Referência Externa
126401038-266
Atualizado em
16/05/2026 12:52:50
Anunciante
Chamada para a rede fixa nacional
Collection Vantagem Oporto
AMI 7772
Referência do imóvel:
126401038-266
Apartamento T2 para Venda em Freamunde