Terreno para Venda em Quelfes
8.900.000 €
Tipo
Terreno
Negócio
Venda
Área Bruta
23582 m²
Condição
Usado
Área do Terreno
9180 m²
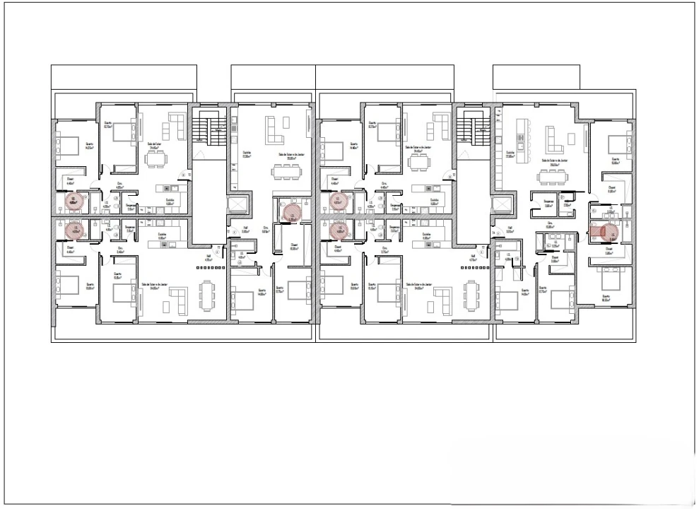
Terreno com projeto aprovado para 8 blocos de apartamentos - Olhão
Apresentamos este magnífico Terreno com projeto aprovado para construção de 150 apartamentos,
dos quais são 146 unidades T2 e 4 unidades T4. Situado numa zona nobre em Olhão.
O imóvel é vendido com projeto e especialidades aprovadas.
Destaques do projeto:
- 8 blocos
- 146 apartamentos T2
- 4 apartamentos T4
- varandas
- Piscina comum
- Garagens
- Amplos espaços verdes
- Área total do terreno: 9.108 m²
- Área de Construção: 23.582,85 m²
- Área de Implantação: 3886.00 m²
- Área de Cave: 8383.30m²
- Zona de Piscina: 356 m²
Olhão é uma cidade com grande desenvolvimento e bastante procurado pelos Portugueses e estrangeiros.
Marcado pela beleza do seu edifício histórico no mercado municipal e seus restaurantes típicos, frente á ria Formosa.
Situado a poucos minutos do Aeroporto de Faro e a 2 horas de Sevilha.
Venha conhecer este projeto muito interessante.
dos quais são 146 unidades T2 e 4 unidades T4. Situado numa zona nobre em Olhão.
O imóvel é vendido com projeto e especialidades aprovadas.
Destaques do projeto:
- 8 blocos
- 146 apartamentos T2
- 4 apartamentos T4
- varandas
- Piscina comum
- Garagens
- Amplos espaços verdes
- Área total do terreno: 9.108 m²
- Área de Construção: 23.582,85 m²
- Área de Implantação: 3886.00 m²
- Área de Cave: 8383.30m²
- Zona de Piscina: 356 m²
Olhão é uma cidade com grande desenvolvimento e bastante procurado pelos Portugueses e estrangeiros.
Marcado pela beleza do seu edifício histórico no mercado municipal e seus restaurantes típicos, frente á ria Formosa.
Situado a poucos minutos do Aeroporto de Faro e a 2 horas de Sevilha.
Venha conhecer este projeto muito interessante.
Localização
Quelfes, Olhão, Faro
Informação do anúncio
ID do anúncio
1703122
Referência Externa
TER9263
Atualizado em
19/03/2026 02:38:08
Terreno para Venda em Quelfes