Terreno para Venda em Quelfes
8.900.000 €
Tipo
Terreno
Negócio
Venda
Área Bruta
23583 m²
Condição
Usado
Certificado Energético
Isento
Área do Terreno
9108 m²
Terreno urbano para Empreendimento residencial
Terreno urbano com 9.108 m² | Empreendimento residencial (150 fogos) em fase final de aprovação | Piscina | Olhão
Oportunidade para promotores e investidores: terreno urbano com 9.108 m², destinado a desenvolvimento residencial, inserido numa zona em crescimento na cidade de Olhão, com bons acessos e proximidade a comércio e serviços.
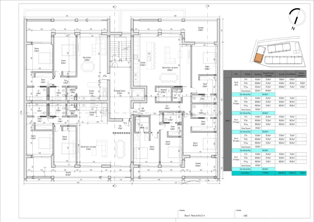
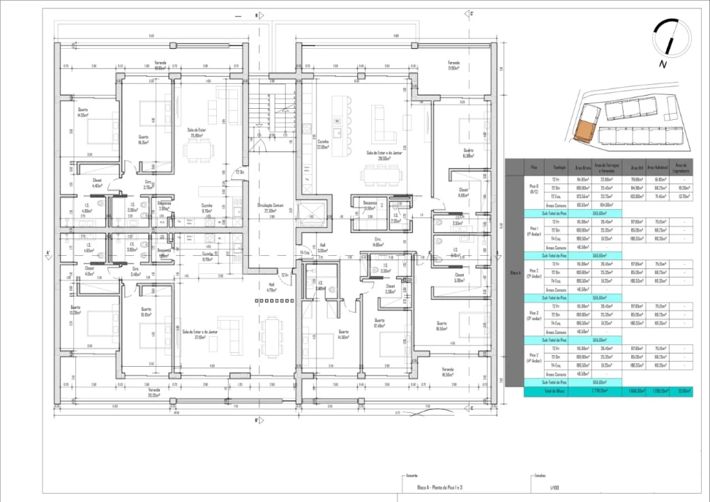
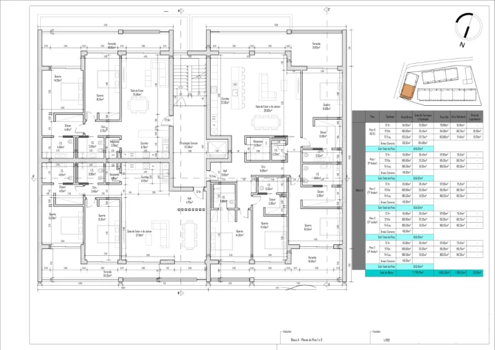
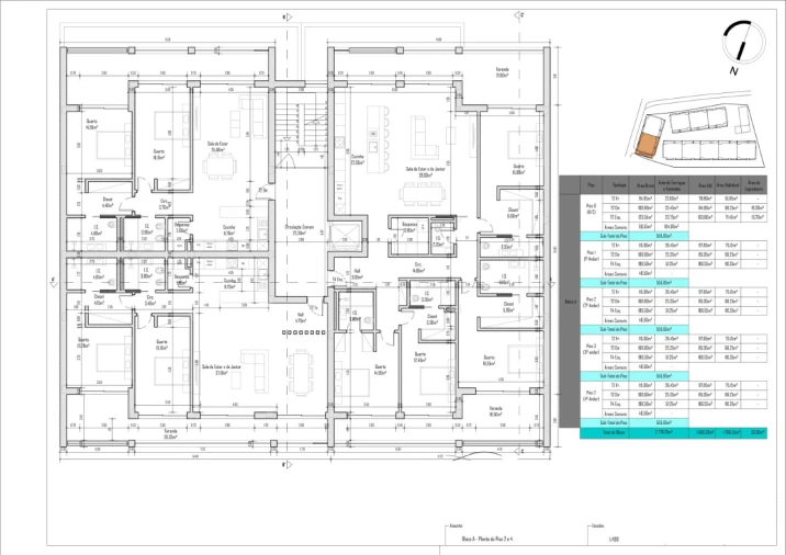
Encontra-se em curso um projeto de empreendimento com 10 blocos (A-J), com piscina comum e áreas exteriores, concebido para dar resposta à procura atual do mercado. De acordo com o projeto, prevê-se a construção de 150 fogos, distribuídos por 146 apartamentos de Tipologia T2 e 4 apartamentos de Tipologia T4.
Destaques do projeto/terreno:
Área total do terreno: 9.108 m²
Área de Construção: 23582.85 m²
Área de Implantação: 3886.00 m²
Área de Cave: 8383.30m²
Zona de Piscina: 356 m²
Infraestruturas disponíveis na envolvente (água, eletricidade, saneamento e acessos)
Implantação com zonas verdes e circulação interna, pensada para funcionalidade e valorização do conjunto (conforme plantas).
Projeto ideal para quem procura um ativo com escala, forte potencial de valorização e capacidade de absorção pelo mercado (habitação própria e/ou investimento).
O terreno é vendido com pojecto aprovado.
Localização:
Olhão é uma tradicional e característica vila piscatória da região centro do Algarve, reconhecida pela excelente qualidade da sua pesca e marisco, assim como pelas paradisíacas e únicas ilhas que se avistam desta belíssima cidade.
Olhão situa-se a 20 minutos do aeroporto de Faro e a 3 horas de Lisboa. A 50 minutos da costa Alentejana.
Oportunidade para promotores e investidores: terreno urbano com 9.108 m², destinado a desenvolvimento residencial, inserido numa zona em crescimento na cidade de Olhão, com bons acessos e proximidade a comércio e serviços.
Encontra-se em curso um projeto de empreendimento com 10 blocos (A-J), com piscina comum e áreas exteriores, concebido para dar resposta à procura atual do mercado. De acordo com o projeto, prevê-se a construção de 150 fogos, distribuídos por 146 apartamentos de Tipologia T2 e 4 apartamentos de Tipologia T4.
Destaques do projeto/terreno:
Área total do terreno: 9.108 m²
Área de Construção: 23582.85 m²
Área de Implantação: 3886.00 m²
Área de Cave: 8383.30m²
Zona de Piscina: 356 m²
Infraestruturas disponíveis na envolvente (água, eletricidade, saneamento e acessos)
Implantação com zonas verdes e circulação interna, pensada para funcionalidade e valorização do conjunto (conforme plantas).
Projeto ideal para quem procura um ativo com escala, forte potencial de valorização e capacidade de absorção pelo mercado (habitação própria e/ou investimento).
O terreno é vendido com pojecto aprovado.
Localização:
Olhão é uma tradicional e característica vila piscatória da região centro do Algarve, reconhecida pela excelente qualidade da sua pesca e marisco, assim como pelas paradisíacas e únicas ilhas que se avistam desta belíssima cidade.
Olhão situa-se a 20 minutos do aeroporto de Faro e a 3 horas de Lisboa. A 50 minutos da costa Alentejana.
Localização
Quelfes, Olhão, Faro
Informação do anúncio
ID do anúncio
1703834
Referência Externa
TE226NS
Atualizado em
28/04/2026 01:46:15
Anunciante
Chamada para a rede fixa nacional
CLUTTONS Algarve
AMI 19669
Referência do imóvel:
TE226NS
Terreno para Venda em Quelfes
Vídeo