Terreno para Venda em Arroios
1.900.000 €
Tipo
Terreno
Negócio
Venda
Área Bruta
1191 m²
Condição
Por recuperar
Certificado Energético
Isento
Área do Terreno
427 m²
Terreno com Projeto Aprovado para Prédio e Moradia, Graça, Lisboa
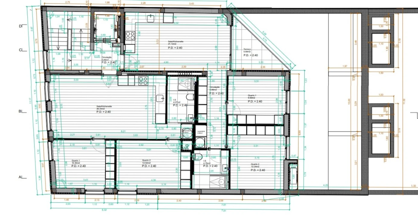
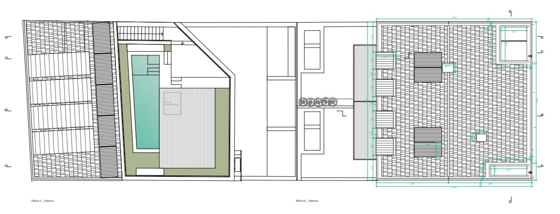
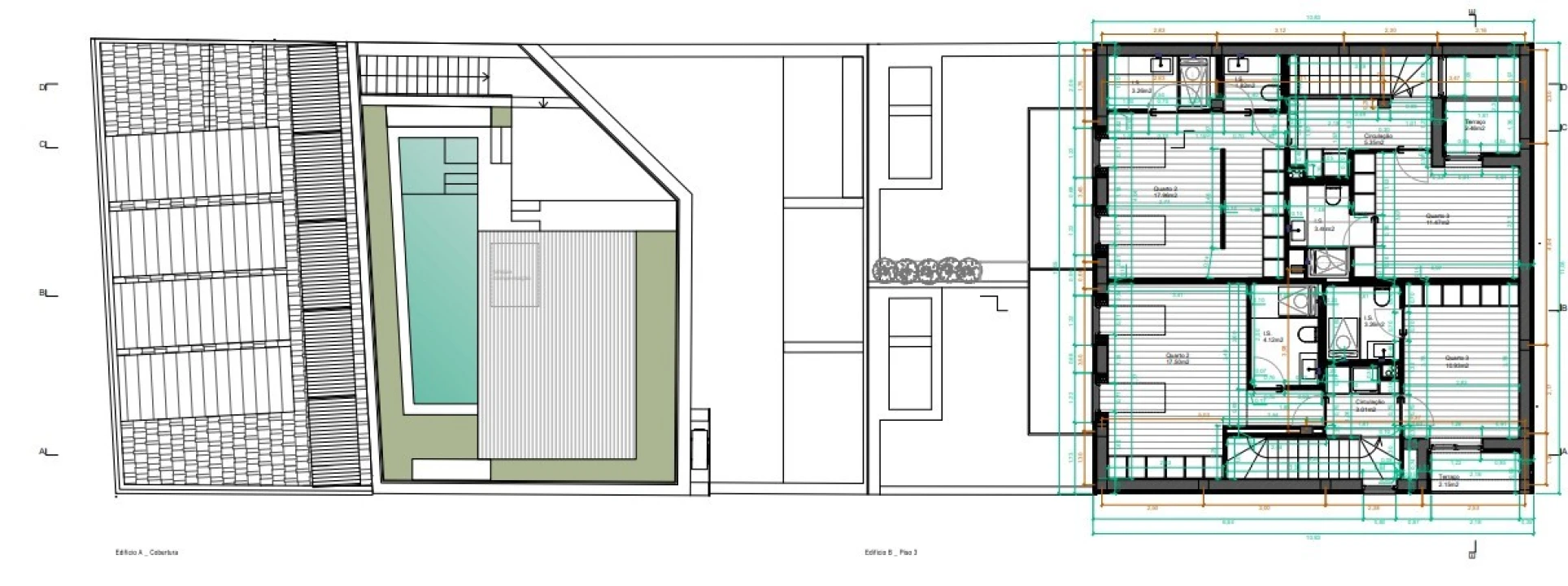
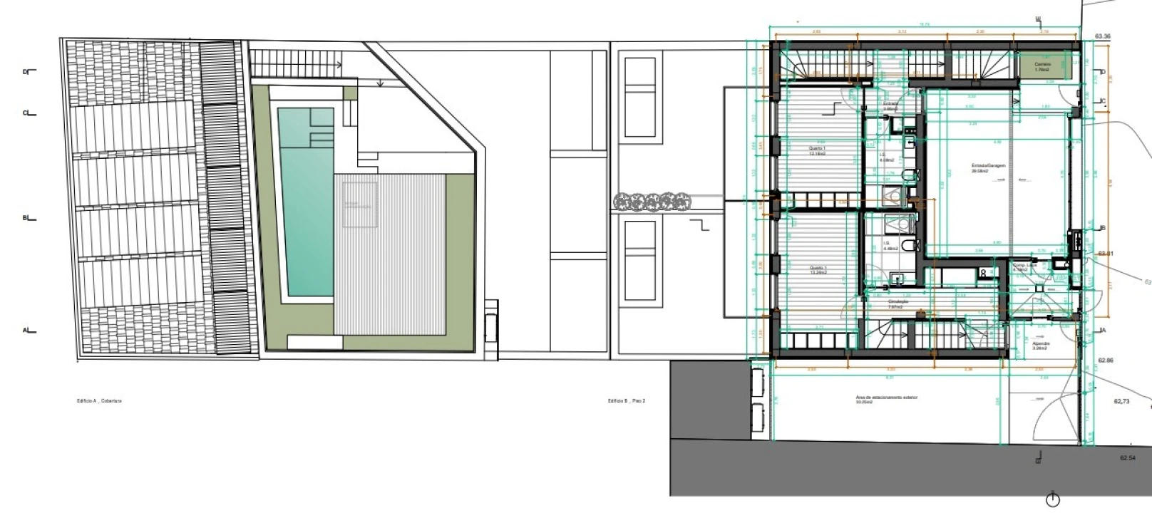
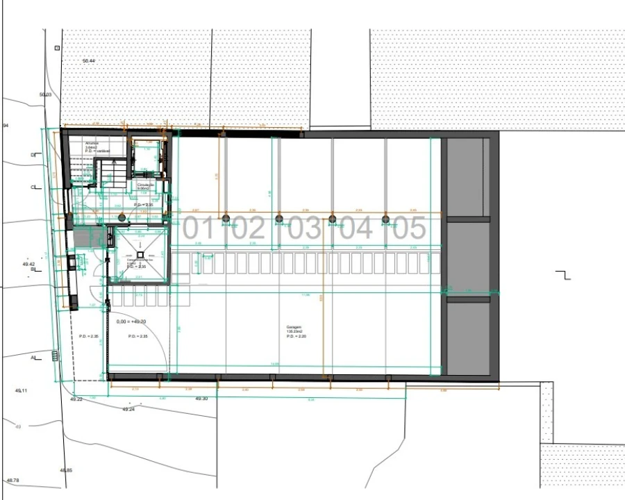
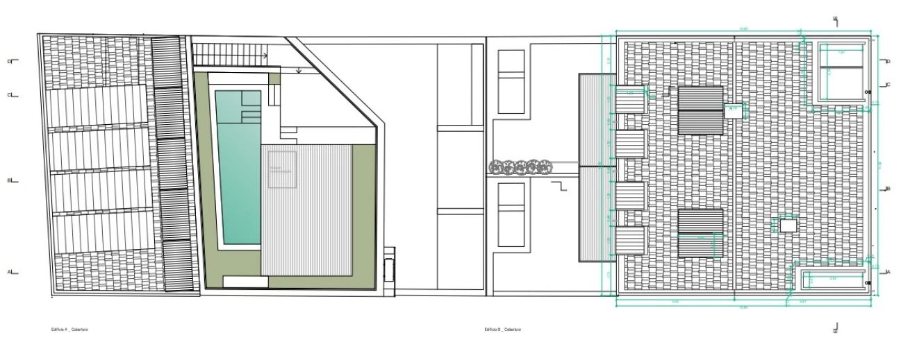
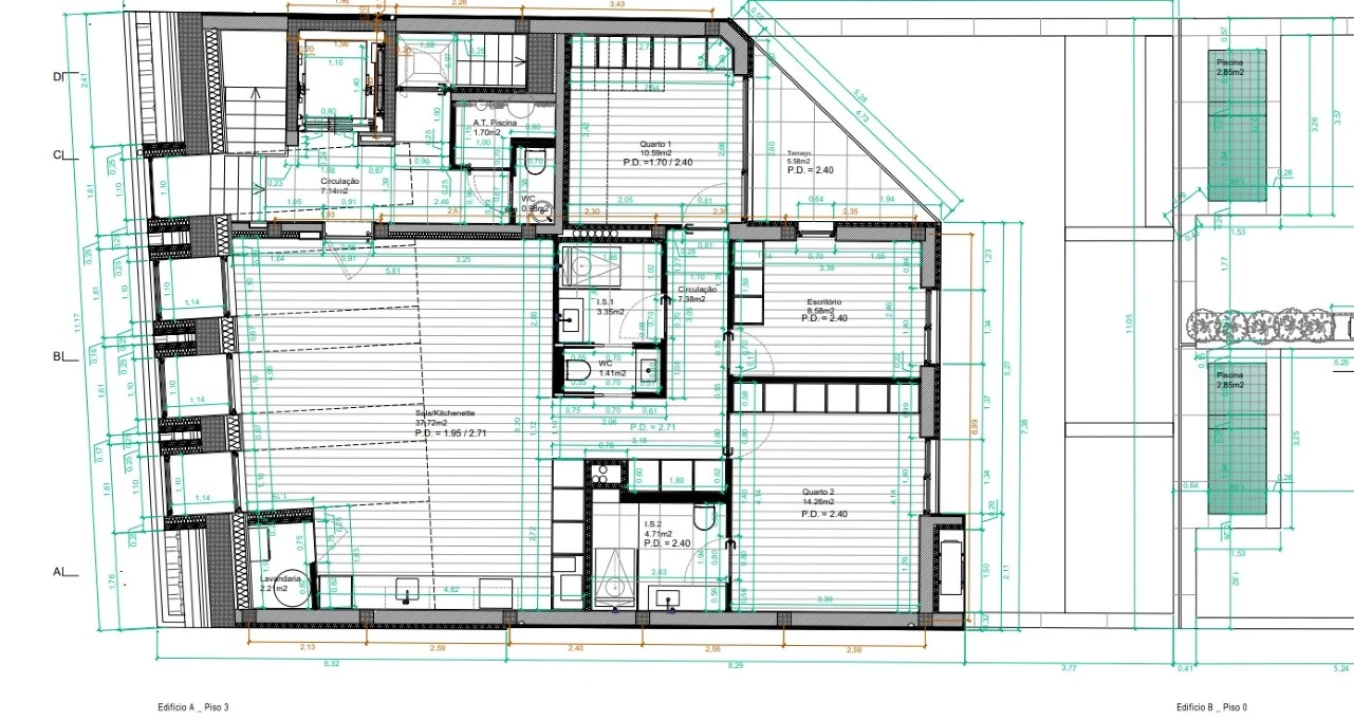
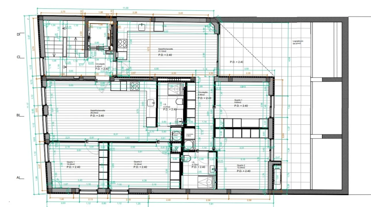
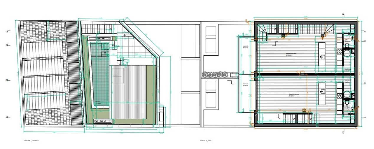
Graça Living é um condomínio de luxo e exclusividade, um verdadeiro refúgio urbano com apenas 7 frações únicas, desenhadas para proporcionar o máximo bem-estar e privacidade. Um projeto contemporâneo que alia elegância, conforto e funcionalidade, no coração de um dos bairros mais carismáticos de Lisboa. Trata-se de um terreno com projeto aprovado para a construção de prédio com 5 apartamentos e bloco com duas moradias, com licença a pagamento, distribuídos em 1.191 m2 de área bruta.
O projeto conta com:
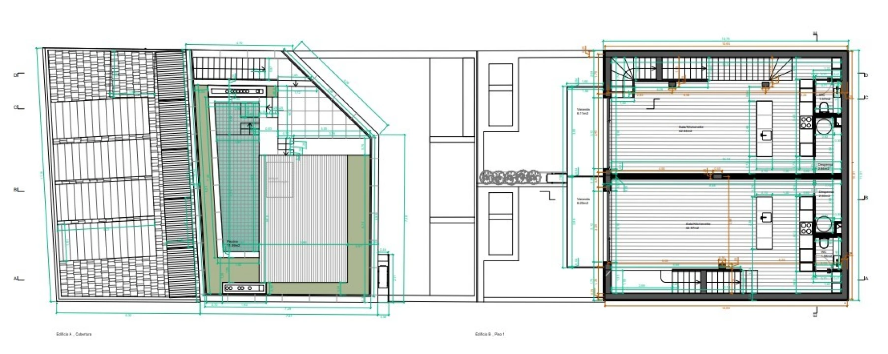
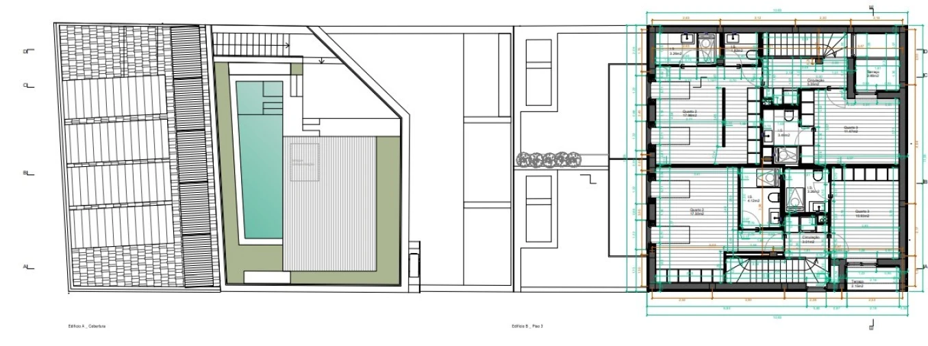
- Prédio com 5 apartamentos (T2 e T3), todos com acesso a uma magnífica piscina rooftop com solário e vistas deslumbrantes sobre Lisboa.
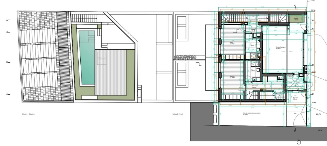
- 2 moradias independentes, com entrada privada, estacionamento exclusivo, jardim e piscina privativa, trazendo a combinação perfeita entre tranquilidade e centralidade.
Áreas:
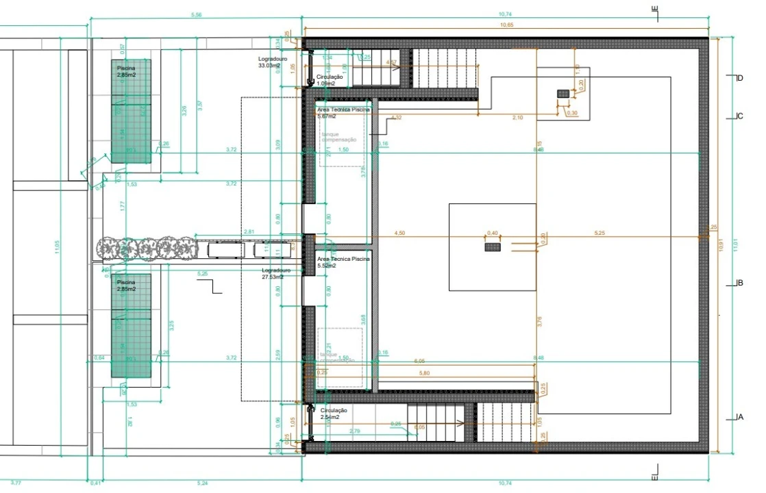
R/C: 150,85m2 Parque
Piso 1: T2 - 63,13m2
Piso 1: T2 - 66,26m2 + 57,37m2 Logradouro
Piso 2: T2 - 63,13m2 + 5,82m2 Varanda
Piso 3: T2 - 66,26 m2
Piso 3: T2+1 - 115,48m2 + 5,82m2 Varanda
Cobertura: 82,54m2 Piscina/Solário
Moradia V3: 224m2
Moradia V3: 218m2
O projecto 'Graça Living' está em ARU, e ORU, reunindo por isso as exigências para IVA de 6% na construção.
Cada unidade foi pensada ao detalhe para proporcionar uma experiência de vida sofisticada, com espaços amplos, luz natural abundante e uma arquitetura que promove a harmonia entre o interior e o exterior. Estacionamento para todas as frações.
O projeto dispõe de piscina rooftop com solário para os apartamentos, com vistas panorâmicas. Jardins privativos com piscina nas moradias. Elevados padrões de conforto térmico e acústico, que garantem um ambiente calmo e acolhedor.
Um projeto com design contemporâneo com identidade Lisboeta. O Graça Living beneficia de um ambiente vibrante onde tradição e modernidade convivem em perfeita sintonia. A tranquilidade e o charme de um bairro histórico, com a conveniência de estar no centro de tudo. Situado numa das localizações mais carismáticas e em crescente valorização de Lisboa, onde a tradição se funde com a modernidade, oferecendo um ambiente autêntico e vibrante. Com acesso fácil, comércio local e pontos turísticos, além de transportes e pontos turísticos.
O projeto conta com:
- Prédio com 5 apartamentos (T2 e T3), todos com acesso a uma magnífica piscina rooftop com solário e vistas deslumbrantes sobre Lisboa.
- 2 moradias independentes, com entrada privada, estacionamento exclusivo, jardim e piscina privativa, trazendo a combinação perfeita entre tranquilidade e centralidade.
Áreas:
R/C: 150,85m2 Parque
Piso 1: T2 - 63,13m2
Piso 1: T2 - 66,26m2 + 57,37m2 Logradouro
Piso 2: T2 - 63,13m2 + 5,82m2 Varanda
Piso 3: T2 - 66,26 m2
Piso 3: T2+1 - 115,48m2 + 5,82m2 Varanda
Cobertura: 82,54m2 Piscina/Solário
Moradia V3: 224m2
Moradia V3: 218m2
O projecto 'Graça Living' está em ARU, e ORU, reunindo por isso as exigências para IVA de 6% na construção.
Cada unidade foi pensada ao detalhe para proporcionar uma experiência de vida sofisticada, com espaços amplos, luz natural abundante e uma arquitetura que promove a harmonia entre o interior e o exterior. Estacionamento para todas as frações.
O projeto dispõe de piscina rooftop com solário para os apartamentos, com vistas panorâmicas. Jardins privativos com piscina nas moradias. Elevados padrões de conforto térmico e acústico, que garantem um ambiente calmo e acolhedor.
Um projeto com design contemporâneo com identidade Lisboeta. O Graça Living beneficia de um ambiente vibrante onde tradição e modernidade convivem em perfeita sintonia. A tranquilidade e o charme de um bairro histórico, com a conveniência de estar no centro de tudo. Situado numa das localizações mais carismáticas e em crescente valorização de Lisboa, onde a tradição se funde com a modernidade, oferecendo um ambiente autêntico e vibrante. Com acesso fácil, comércio local e pontos turísticos, além de transportes e pontos turísticos.
Localização
Arroios, Lisboa, Lisboa
Informação do anúncio
ID do anúncio
1709004
Referência Externa
EMP_333.BG.LX
Atualizado em
19/03/2026 14:32:03
Anunciante
Chamada para a rede móvel nacional
Brightman Group
AMI 17077
Referência do imóvel:
EMP_333.BG.LX
Terreno para Venda em Arroios