Terreno para Venda em Arroios
1.900.000 €
Tipo
Terreno
Negócio
Venda
Condição
Não aplicável
Certificado Energético
Área do Terreno
427 m²
Terreno Para Construção Venda em Arroios,Lisboa
Projeto Aprovado | Licença Paga | Condomínio 7 frações | Graça
Projeto arquitetónico contemporâneo, para construção de um condomínio exclusivo, no coração da Graça, uma das zonas mais autênticas e em maior valorização de Lisboa, combinando tradição, identidade histórica e crescente atratividade residencial e turística.
Apresentamos uma oportunidade única de investimento com Projeto Aprovado e Licença Paga, em terreno urbano, com estacionamento, pronto para início imediato de construção de um condomínio premium e exclusivo com apenas 7 frações únicas, desenhadas para proporcionar o máximo bem-estar e privacidade.
Um conceito residencial de luxo de baixa densidade, com 1.191 m2 de área bruta de construção, localizado em zona ARU e ORU com IVA de 6% na construção.
Projeto Aprovado:
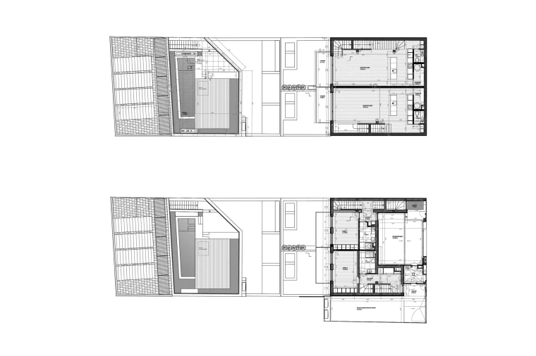
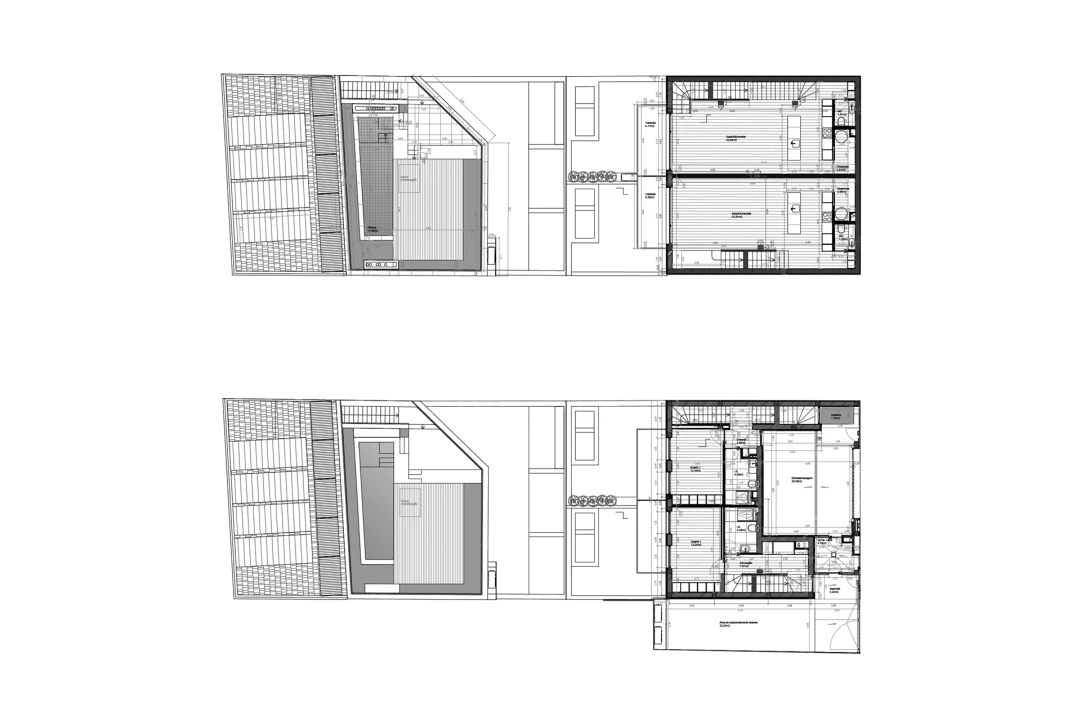
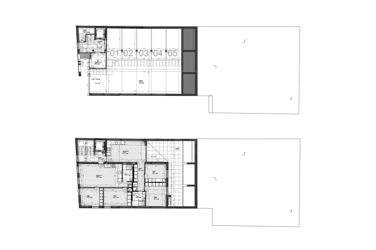
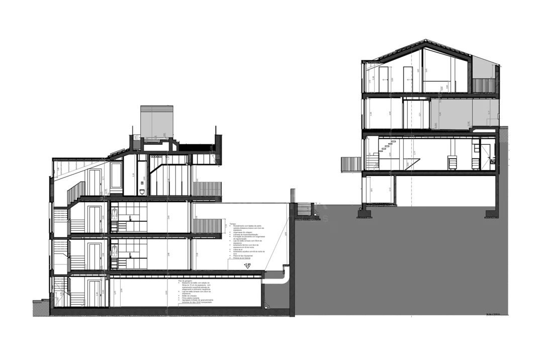
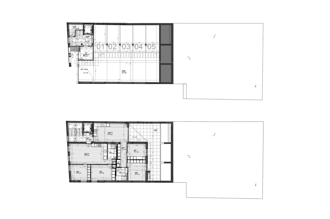
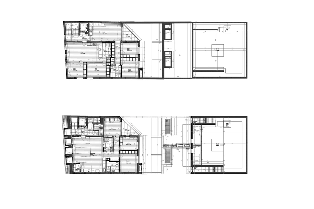
Este terreno de 428 m², com ruína, tem um projeto aprovado para um prédio com 675 m² de área bruta privativa e 515 m² de área bruta dependente com as seguintes caracteristicas:
- Bloco com 5 apartamentos (T2, T3 e T2+1) Estacionamento privativo (uma viatura cada) Elevador Piscina e solário comum, no rooftop com vista panorâmica - Bloco com 2 moradias T3 independentes
Entrada privada Estacionamento exclusivo (2 viaturas cada) Jardim e piscina privativa
Localização Única: No coração da Graça, junto ao emblemático Miradouro da Senhora do Monte, este projeto beneficia de uma envolvente autêntica e vibrante, onde a tradição lisboeta se cruza com a vida contemporânea. A proximidade ao centro histórico de Lisboa, bem como a vasta oferta de comércio local, restaurantes e serviços, garante uma vivência prática e dinâmica. Com excelentes acessos a transportes públicos, incluindo o icónico elétrico, esta localização oferece o equilíbrio perfeito entre centralidade e tranquilidade, tornando-se uma das mais procuradas e valorizadas da cidade.
Excelente oportunidade rara de desenvolver um projeto exclusivo numa das localizações mais desejadas de Lisboa.Contacte-nos para mais informações e detalhes.
5SP Lda - AMI 22398
Projeto arquitetónico contemporâneo, para construção de um condomínio exclusivo, no coração da Graça, uma das zonas mais autênticas e em maior valorização de Lisboa, combinando tradição, identidade histórica e crescente atratividade residencial e turística.
Apresentamos uma oportunidade única de investimento com Projeto Aprovado e Licença Paga, em terreno urbano, com estacionamento, pronto para início imediato de construção de um condomínio premium e exclusivo com apenas 7 frações únicas, desenhadas para proporcionar o máximo bem-estar e privacidade.
Um conceito residencial de luxo de baixa densidade, com 1.191 m2 de área bruta de construção, localizado em zona ARU e ORU com IVA de 6% na construção.
Projeto Aprovado:
Este terreno de 428 m², com ruína, tem um projeto aprovado para um prédio com 675 m² de área bruta privativa e 515 m² de área bruta dependente com as seguintes caracteristicas:
- Bloco com 5 apartamentos (T2, T3 e T2+1) Estacionamento privativo (uma viatura cada) Elevador Piscina e solário comum, no rooftop com vista panorâmica - Bloco com 2 moradias T3 independentes
Entrada privada Estacionamento exclusivo (2 viaturas cada) Jardim e piscina privativa
Localização Única: No coração da Graça, junto ao emblemático Miradouro da Senhora do Monte, este projeto beneficia de uma envolvente autêntica e vibrante, onde a tradição lisboeta se cruza com a vida contemporânea. A proximidade ao centro histórico de Lisboa, bem como a vasta oferta de comércio local, restaurantes e serviços, garante uma vivência prática e dinâmica. Com excelentes acessos a transportes públicos, incluindo o icónico elétrico, esta localização oferece o equilíbrio perfeito entre centralidade e tranquilidade, tornando-se uma das mais procuradas e valorizadas da cidade.
Excelente oportunidade rara de desenvolver um projeto exclusivo numa das localizações mais desejadas de Lisboa.Contacte-nos para mais informações e detalhes.
5SP Lda - AMI 22398
Localização
Arroios, Lisboa, Lisboa
Informação do anúncio
ID do anúncio
1722222
Referência Externa
6372-TER-AB
Atualizado em
26/04/2026 02:14:10
Terreno para Venda em Arroios