Terreno para Venda em Carnaxide e Queijas
3.250.000 €
Tipo
Terreno
Negócio
Venda
Condição
Não Aplicável
Certificado Energético
Isento
Área do Terreno
807 m²
Lote de Terreno para Construção em Outurela/ Portela - Carnaxide
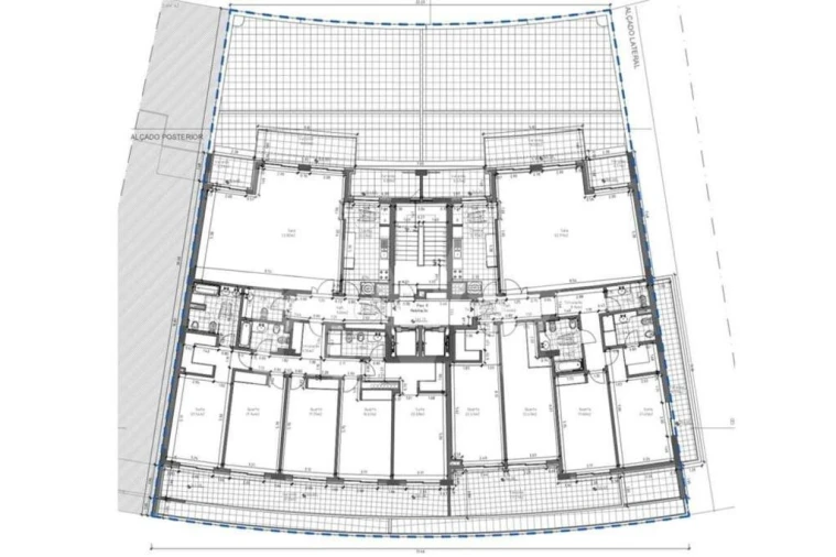
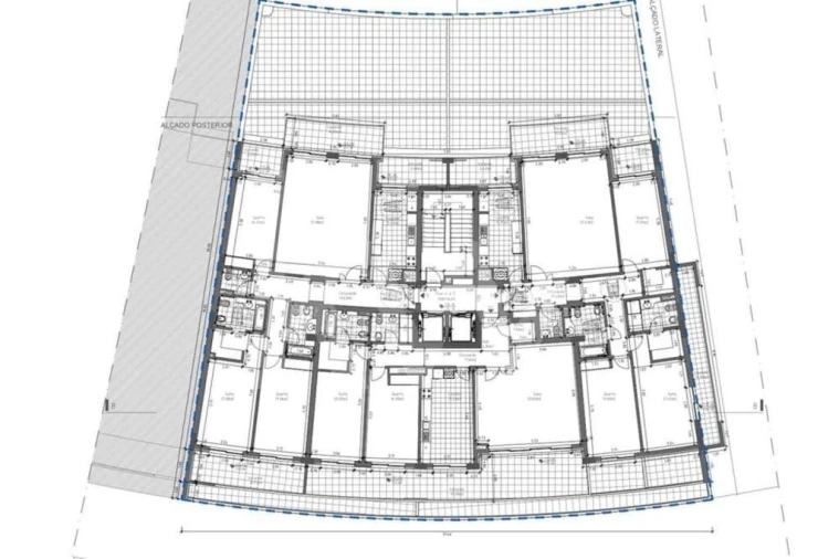
Lote de terreno para construção de 24 apartamentos para habitação e uma loja para comercio e serviços.
Está inserido num projecto de loteamento de 49 lotes, com um total de 741 fogos, com uma área total de intervenção do loteamento de 191.264m2.
Situada no Alto de Carnaxide, disfruta de uma excelente vista sobre a sua envolvente, destacando-se a vista para todo o Vale do Jamor e Rio Tejo.
Na sua envolvente existem hospitais e uma ampla zona comercial, incluindo um dos centros comerciais mais requisitados de Lisboa, Allegro. A Sul encontra-se o Complexo Desportivo do Jamor, onde se localiza o Estádio Nacional, o Centro de Alto Rendimento Desportivo, o complexo de piscinas, um campo de golfe, o complexo de ténis e onde se realiza o Portugal Open.
Este lote é 42, com uma vista privilegiada.
O lote tem uma área de implantação de 808,60m2, uma área de construção acima do solo de 3.845,20 m2 e abaixo do solo de 2.692,50 m2.
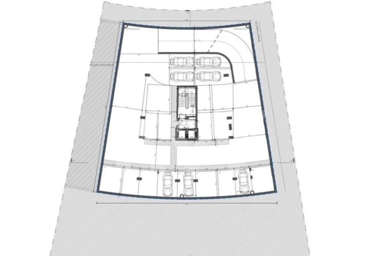
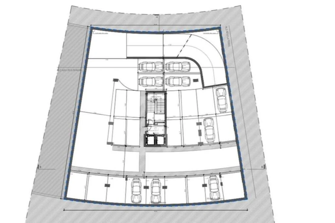
No total são 24 apartamentos para habitação e uma loja e 49 lugares de estacionamento. O edifício tem 9 pisos para habitação e dois pisos de estacionamento e ainda uma loja com 70 m2 ao nível da entrada e apresenta um total de 24 fogos, variando entre tipologias T1, T2, T3, T4 e T5.
- Área de terreno: 808,60 m²;
- Área Bruta de construção de Habitação: 3775,20 m²;
- Área Bruta de construção de Comércio: 70,00 m²;
- 9 pisos;
- 2 piso em Cave;
- 24 fogos Habitação + 1 Comércio
Loteamento inserido num núcleo habitacional de elevada qualidade, até pelas tipologias apresentadas, bem como pela qualidade do espaço urbano. Os edifícios estão inseridos numa grande zona verde de estadia e recreio.
Equipamento:
- Água;
- Eletricidade;
- Saneamento básico;
- Gás natural;
- Iluminação;
- Calçadas.
Características:
Características Exteriores - Parqueamento; Terraço/Deck; Porta blindada; Vídeo Porteiro; Andar Alto;
Características Interiores - Hall de entrada; Eletrodomésticos embutidos; Casa de Banho da Suite; Closet; Roupeiros; Lavandaria; Tecnologia Smart Home;
Características Gerais - Primeiro Proprietário; Despensa; Portão elétrico;
Outros Equipamentos - Serviço de internet; TV Por Cabo; Gás canalizado; Aquecimento central; Sistema de Segurança; Alarme de segurança; Painéis Solares; Máquina de lavar louça; Secador de roupa; Frigorífico; Micro-ondas; Máquina de lavar roupa;
Vistas - Vista cidade; Vista jardim; Vista campo; Vista rio;
Outras características - Garagem; Varanda; Cozinha Equipada; Arrecadação; Suite; Acesso apropriado a pessoas com mobilidade reduzida; Elevador; Ar Condicionado;
Está inserido num projecto de loteamento de 49 lotes, com um total de 741 fogos, com uma área total de intervenção do loteamento de 191.264m2.
Situada no Alto de Carnaxide, disfruta de uma excelente vista sobre a sua envolvente, destacando-se a vista para todo o Vale do Jamor e Rio Tejo.
Na sua envolvente existem hospitais e uma ampla zona comercial, incluindo um dos centros comerciais mais requisitados de Lisboa, Allegro. A Sul encontra-se o Complexo Desportivo do Jamor, onde se localiza o Estádio Nacional, o Centro de Alto Rendimento Desportivo, o complexo de piscinas, um campo de golfe, o complexo de ténis e onde se realiza o Portugal Open.
Este lote é 42, com uma vista privilegiada.
O lote tem uma área de implantação de 808,60m2, uma área de construção acima do solo de 3.845,20 m2 e abaixo do solo de 2.692,50 m2.
No total são 24 apartamentos para habitação e uma loja e 49 lugares de estacionamento. O edifício tem 9 pisos para habitação e dois pisos de estacionamento e ainda uma loja com 70 m2 ao nível da entrada e apresenta um total de 24 fogos, variando entre tipologias T1, T2, T3, T4 e T5.
- Área de terreno: 808,60 m²;
- Área Bruta de construção de Habitação: 3775,20 m²;
- Área Bruta de construção de Comércio: 70,00 m²;
- 9 pisos;
- 2 piso em Cave;
- 24 fogos Habitação + 1 Comércio
Loteamento inserido num núcleo habitacional de elevada qualidade, até pelas tipologias apresentadas, bem como pela qualidade do espaço urbano. Os edifícios estão inseridos numa grande zona verde de estadia e recreio.
Equipamento:
- Água;
- Eletricidade;
- Saneamento básico;
- Gás natural;
- Iluminação;
- Calçadas.
Características:
Características Exteriores - Parqueamento; Terraço/Deck; Porta blindada; Vídeo Porteiro; Andar Alto;
Características Interiores - Hall de entrada; Eletrodomésticos embutidos; Casa de Banho da Suite; Closet; Roupeiros; Lavandaria; Tecnologia Smart Home;
Características Gerais - Primeiro Proprietário; Despensa; Portão elétrico;
Outros Equipamentos - Serviço de internet; TV Por Cabo; Gás canalizado; Aquecimento central; Sistema de Segurança; Alarme de segurança; Painéis Solares; Máquina de lavar louça; Secador de roupa; Frigorífico; Micro-ondas; Máquina de lavar roupa;
Vistas - Vista cidade; Vista jardim; Vista campo; Vista rio;
Outras características - Garagem; Varanda; Cozinha Equipada; Arrecadação; Suite; Acesso apropriado a pessoas com mobilidade reduzida; Elevador; Ar Condicionado;
Localização
Carnaxide e Queijas, Oeiras, Lisboa
Informação do anúncio
ID do anúncio
1710147
Referência Externa
1217-1826
Atualizado em
26/04/2026 15:48:02
Terreno para Venda em Carnaxide e Queijas
Vídeo