Apartamento T3 para Venda em Oeiras e São Julião da Barra, Paço de Arcos e Caxias
850.000 €
Tipo
Apartamento
Negócio
Venda
Quartos
3
Casas de Banho
3
Área Bruta
234 m²
Área Útil
234 m²
Condição
Novo
Certificado Energético
A+
T3 NOVO com 2 varandas e estacionamento privativo para 3 carros | Paço de Arcos, OEIRAS
T3 NOVO com 2 varandas e estacionamento privativo para 3 carros | Paço de Arcos, OEIRAS
MODERNIDADE, SOFISTICAÇÃO e CONVENIÊNCIA no coração de PAÇO de ARCOS
Espaçoso apartamento T3 em novo empreendimento de arquitetura moderna e contemporânea com qualidade de construção premium e elevada eficiência energética (Classe A+).
Localizado na prestigiada freguesia de Paço de Arcos, no concelho de Oeiras, este empreendimento permite conjugar um estilo de vida cosmopolita e ativo com a serenidade de viver junto ao mar e a grandes espaços verdes.
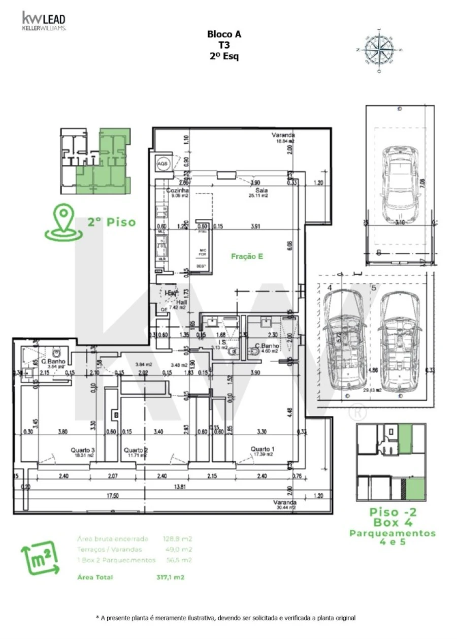
Com uma Área Total de 234,3 m² e 128,8 m² de Área Útil, este apartamento T3 distingue-se por:
1. Amplo Hall de Entrada, com 1 roupeiro embutido;
2. Áreas privativa e social perfeitamente separadas;
3. Sala e cozinha independentes, mas inteligentemente interligadas, otimizando a circulação e interação no dia a dia;
4. Cozinha equipada com eletrodomésticos BOSCH e bancada em Silestone;
5. Casas de Banho com sanitários suspensos ROCA e torneiras GROHE;
6. Piso flutuante na sala, cozinha, hall e suíte;
7. Portas interiores e de roupeiros lacadas a branco;
8. Varanda (orientada a nascente e sul) e Terraço (orientado a poente) com piso cerâmico (simulando flutuante)
9. Estacionamento privado em Box fechada, para duas viaturas, com cabo de alimentação (vindo da fração) para carros elétricos.
Distribuição das Áreas:
1. Área Social:
- Sala: 25,11 m²
- Cozinha: 9,09 m²
- Hall de Entrada: 7,42m²
2. Área Privativa:
- Suíte 1: 18,31 m²
- Casa de Banho da Suíte 1: 3,54 m²
- Suíte 2: 17,39 m²
- Casa de Banho da Suíte 2: 4,60 m²
- Quarto: 11,71 m²
- Casa de Banho Comum: 3,13 m²
3. Varandas: 49,0 m²
4. Box Privativa + 2 PP: 56,5 m².
Outras características que vai encontrar neste apartamento:
- Domótica;
- Porta blindada de alta segurança;
- Vídeo porteiro;
- Estores elétricos isotérmicos;
- Caixilharia em PVC com vidro duplo;
- Bomba de calor;
- Ar-condicionado em todas as divisões;
- Guardas de varanda em vidro;
- Edifício com 2 elevadores e painéis fotovoltaicos;
- Edifício preparado para mobilidade reduzida.
Localização e Infraestruturas: O Privilégio de Viver em Oeiras
A localização estratégica deste empreendimento traduz-se no acesso imediato ao melhor que o concelho de Oeiras e a freguesia de Paço de Arcos têm para oferecer:
Educação: proximidade a escolas de referência como a Nova SBE (Carcavelos), Oeiras International School e St. Julian's School, além de excelentes escolas públicas e colégios na vila de Paço de Arcos;
Saúde: A poucos minutos do Hospital da Luz Oeiras e de diversas clínicas privadas de excelência;
Desporto e Lazer: A dois passos do Parque dos Poetas, do Passeio Marítimo de Oeiras e das praias da Linha. O Complexo Desportivo do Jamor encontra-se a menos de 10 minutos.
Acessos e Transportes:
- Acesso direto à A5 (Lisboa-Cascais) e à Avenida Marginal;
- A curta distância a pé da estação de comboios de Paço de Arcos (Linha de Cascais);
- A poucos minutos de carro dos principais polos empresariais (Taguspark, Quinta da Fonte e Lagoas Park).
Informações Adicionais:
- Empreendimento em fase final de construção, prevendo-se a sua total conclusão em Agosto de 2026;
- As fotos e a visita virtual constantes neste anúncio dizem respeito ao Andar Modelo;
- Por razões de ordem técnica, jurídica, de mercado ou de gestão de obra, alguns dos acabamentos, materiais ou equipamentos aqui referidos poderão ser substituídos por outros de qualidade idêntica ou superior.
Para mais informações ou agendamento de visita, CONTATE-ME!
Na Keller Williams Portugal acreditamos na partilha como forma de prestar o melhor serviço aos nossos clientes. Por isso, se é profissional do setor e tem um cliente comprador qualificado, contacte-me! Partilhamos negócios com todas as imobiliárias e/ou profissionais com licença AMI válida, em regime de 50% - 50%.
MODERNIDADE, SOFISTICAÇÃO e CONVENIÊNCIA no coração de PAÇO de ARCOS
Espaçoso apartamento T3 em novo empreendimento de arquitetura moderna e contemporânea com qualidade de construção premium e elevada eficiência energética (Classe A+).
Localizado na prestigiada freguesia de Paço de Arcos, no concelho de Oeiras, este empreendimento permite conjugar um estilo de vida cosmopolita e ativo com a serenidade de viver junto ao mar e a grandes espaços verdes.
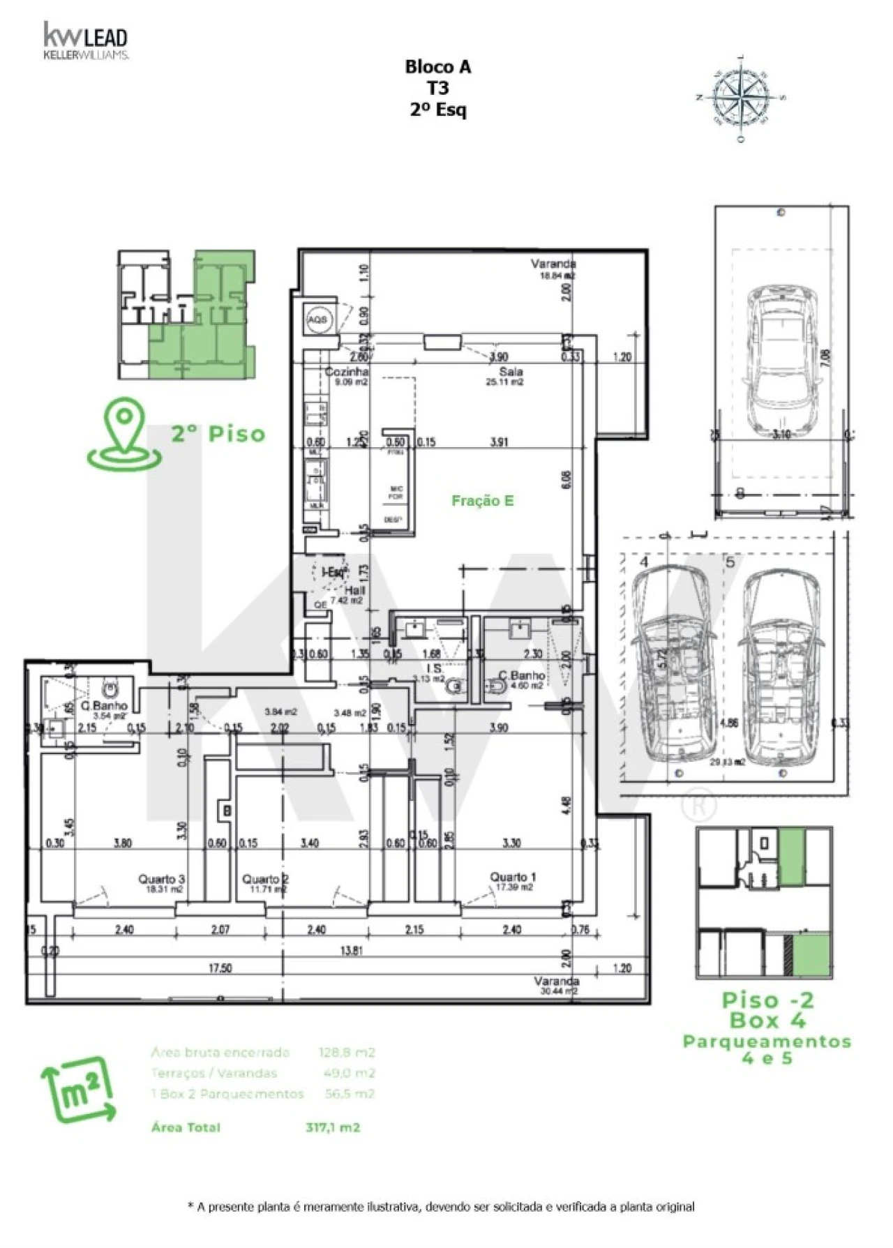
Com uma Área Total de 234,3 m² e 128,8 m² de Área Útil, este apartamento T3 distingue-se por:
1. Amplo Hall de Entrada, com 1 roupeiro embutido;
2. Áreas privativa e social perfeitamente separadas;
3. Sala e cozinha independentes, mas inteligentemente interligadas, otimizando a circulação e interação no dia a dia;
4. Cozinha equipada com eletrodomésticos BOSCH e bancada em Silestone;
5. Casas de Banho com sanitários suspensos ROCA e torneiras GROHE;
6. Piso flutuante na sala, cozinha, hall e suíte;
7. Portas interiores e de roupeiros lacadas a branco;
8. Varanda (orientada a nascente e sul) e Terraço (orientado a poente) com piso cerâmico (simulando flutuante)
9. Estacionamento privado em Box fechada, para duas viaturas, com cabo de alimentação (vindo da fração) para carros elétricos.
Distribuição das Áreas:
1. Área Social:
- Sala: 25,11 m²
- Cozinha: 9,09 m²
- Hall de Entrada: 7,42m²
2. Área Privativa:
- Suíte 1: 18,31 m²
- Casa de Banho da Suíte 1: 3,54 m²
- Suíte 2: 17,39 m²
- Casa de Banho da Suíte 2: 4,60 m²
- Quarto: 11,71 m²
- Casa de Banho Comum: 3,13 m²
3. Varandas: 49,0 m²
4. Box Privativa + 2 PP: 56,5 m².
Outras características que vai encontrar neste apartamento:
- Domótica;
- Porta blindada de alta segurança;
- Vídeo porteiro;
- Estores elétricos isotérmicos;
- Caixilharia em PVC com vidro duplo;
- Bomba de calor;
- Ar-condicionado em todas as divisões;
- Guardas de varanda em vidro;
- Edifício com 2 elevadores e painéis fotovoltaicos;
- Edifício preparado para mobilidade reduzida.
Localização e Infraestruturas: O Privilégio de Viver em Oeiras
A localização estratégica deste empreendimento traduz-se no acesso imediato ao melhor que o concelho de Oeiras e a freguesia de Paço de Arcos têm para oferecer:
Educação: proximidade a escolas de referência como a Nova SBE (Carcavelos), Oeiras International School e St. Julian's School, além de excelentes escolas públicas e colégios na vila de Paço de Arcos;
Saúde: A poucos minutos do Hospital da Luz Oeiras e de diversas clínicas privadas de excelência;
Desporto e Lazer: A dois passos do Parque dos Poetas, do Passeio Marítimo de Oeiras e das praias da Linha. O Complexo Desportivo do Jamor encontra-se a menos de 10 minutos.
Acessos e Transportes:
- Acesso direto à A5 (Lisboa-Cascais) e à Avenida Marginal;
- A curta distância a pé da estação de comboios de Paço de Arcos (Linha de Cascais);
- A poucos minutos de carro dos principais polos empresariais (Taguspark, Quinta da Fonte e Lagoas Park).
Informações Adicionais:
- Empreendimento em fase final de construção, prevendo-se a sua total conclusão em Agosto de 2026;
- As fotos e a visita virtual constantes neste anúncio dizem respeito ao Andar Modelo;
- Por razões de ordem técnica, jurídica, de mercado ou de gestão de obra, alguns dos acabamentos, materiais ou equipamentos aqui referidos poderão ser substituídos por outros de qualidade idêntica ou superior.
Para mais informações ou agendamento de visita, CONTATE-ME!
Na Keller Williams Portugal acreditamos na partilha como forma de prestar o melhor serviço aos nossos clientes. Por isso, se é profissional do setor e tem um cliente comprador qualificado, contacte-me! Partilhamos negócios com todas as imobiliárias e/ou profissionais com licença AMI válida, em regime de 50% - 50%.
Localização
Oeiras e São Julião da Barra, Paço de Arcos e Caxias, Oeiras, Lisboa
Informação do anúncio
ID do anúncio
1719641
Referência Externa
KWPT-029363
Atualizado em
26/05/2026 00:21:58
Apartamento T3 para Venda em Oeiras e São Julião da Barra, Paço de Arcos e Caxias
Vídeo