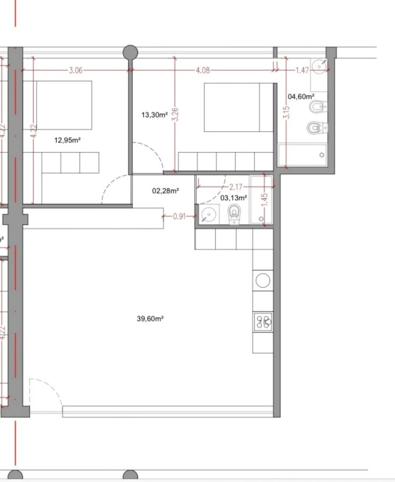
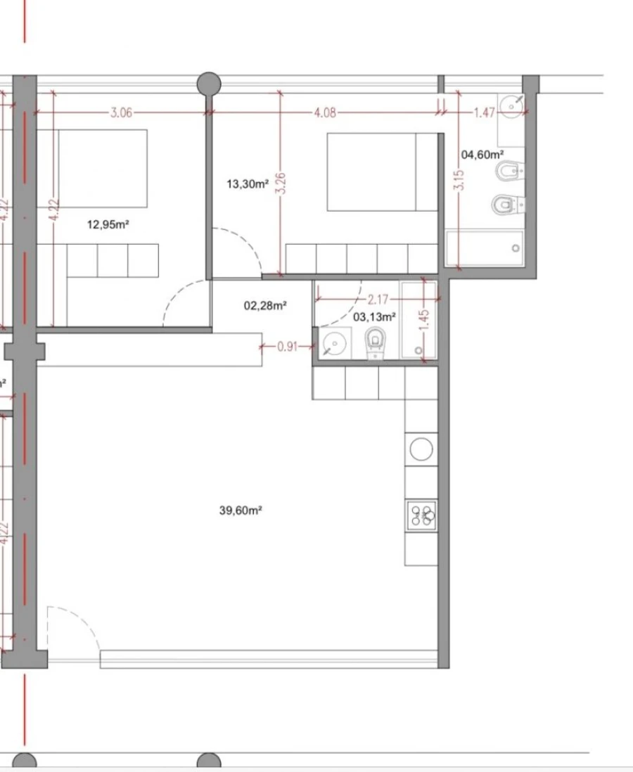
Loja em Rio Tinto para transformação em apartamento
Loja com Potencial de Conversão em T2 – Rio Tinto
81 m² | Duas Frentes | Entre Estações de Comboio e Metro
Excelente oportunidade de investimento em Rio Tinto, na Rua das Perlinhas, com potencial de conversão em apartamento T2.
Imóvel com 81 m², duas frentes, inserido em zona residencial consolidada, entre as estações de comboio e metro, com ótimas acessibilidades e rodeado por comércio e serviços.
**Características principais:**
* Área total: 81 m²
* Duas frentes
* Excelente estado de conservação
* Possibilidade de adaptação a habitação (sujeito a viabilidade camarária)
* Localização estratégica, com forte procura habitacional e de arrendamento
Ideal para quem procura um projeto de conversão com rentabilidade garantida ou um espaço para uso próprio num dos locais mais centrais de Rio Tinto.
Marque já a sua visita e explore todo o potencial deste imóvel.
* Imagens virtuais de estudo para conversão do espaço comercial em T2
Este site utiliza cookies. Ao navegar no site estará a consentir a sua utilização. Para mais informações sobre os cookies pode consultar a
política de privacidade.