Prédio para Venda em Charneca de Caparica e Sobreda
505.000 €
Tipo
Prédio
Negócio
Venda
Área Útil
130 m²
Condição
Renovado
Certificado Energético
F
Área do Terreno
484 m²
Oportunidade de Investimento em Lazarim|Alto Potencial de rentabilidade
Localizada na prestigiada zona de Lazarim, Charneca da Caparica, apresentamos uma propriedade com características únicas para investidores que procuram rentabilidade ou projetos de reabilitação num mercado em constante valorização.
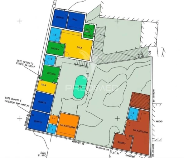
Inserida num lote de 484,80m², a propriedade conta com uma área total de implantação de 130,20m², atualmente configurada da seguinte forma:
Casa principal (83,90m²): Dividida em dois apartamentos T1 independentes.
Casa secundária (46,30m²): Configurada como um apartamento T1.
Anexos: Dois anexos adicionais transformados em T1, com acabamentos equivalentes às moradias.
Esta propriedade destaca-se pela sua versatilidade, permitindo o desenvolvimento de um projeto de renovação total, reconstrução ou a regularização urbanística para maximizar o retorno.
Estado Atual:
O imóvel é comercializado sem licença de utilização, refletindo-se num preço competitivo e numa excelente margem para valorização pós-intervenção.
Acessos: Proximidade imediata aos acessos para Lisboa e Almada.
Conveniência: Zona servida por comércio, serviços e escolas de referência.
Lifestyle: A poucos minutos das melhores praias da Costa da Caparica.
Maximize o seu capital numa das zonas com maior procura da Margem Sul.
Inserida num lote de 484,80m², a propriedade conta com uma área total de implantação de 130,20m², atualmente configurada da seguinte forma:
Casa principal (83,90m²): Dividida em dois apartamentos T1 independentes.
Casa secundária (46,30m²): Configurada como um apartamento T1.
Anexos: Dois anexos adicionais transformados em T1, com acabamentos equivalentes às moradias.
Esta propriedade destaca-se pela sua versatilidade, permitindo o desenvolvimento de um projeto de renovação total, reconstrução ou a regularização urbanística para maximizar o retorno.
Estado Atual:
O imóvel é comercializado sem licença de utilização, refletindo-se num preço competitivo e numa excelente margem para valorização pós-intervenção.
Acessos: Proximidade imediata aos acessos para Lisboa e Almada.
Conveniência: Zona servida por comércio, serviços e escolas de referência.
Lifestyle: A poucos minutos das melhores praias da Costa da Caparica.
Maximize o seu capital numa das zonas com maior procura da Margem Sul.
Localização
Charneca de Caparica e Sobreda, Almada, Setúbal
Informação do anúncio
ID do anúncio
1752779
Referência Externa
PD-058921
Atualizado em
26/04/2026 07:19:06
Prédio para Venda em Charneca de Caparica e Sobreda