Terreno para Venda em Santa Marinha e São Pedro da Afurada
400.000 €
Tipo
Terreno
Negócio
Venda
Área Útil
119 m²
Condição
Para recuperar
Certificado Energético
F
Área do Terreno
229 m²
Ilha com 8 Casas, investimento com Elevado Potencial - Vila Nova de Gaia
Ativo imobiliário com forte potencial de valorização e fonte de rendimento, localizado em Santa Marinha e São Pedro da Afurada. Uma zona em clara trajetória de crescimento, impulsionada pela proximidade ao Porto e à frente ribeirinha do Rio Douro.
Este ativo distingue-se pela sua flexibilidade de exploração, permitindo diferentes estratégias de rentabilização consoante o perfil do investidor e a evolução do mercado.
Características do imóvel:
Prédio em propriedade total
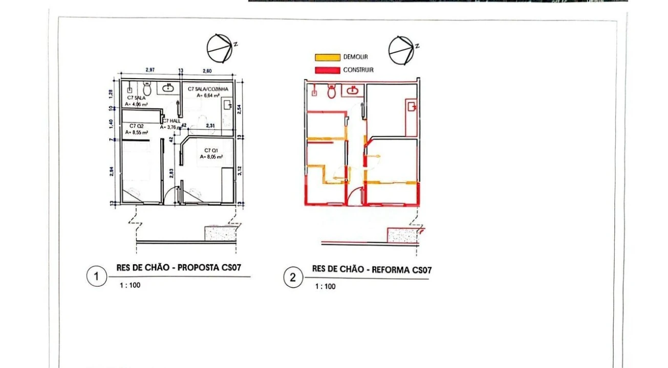
Configuração tradicional em "ilha"
8 unidades habitacionais independentes
Projeto de reabilitação já desenvolvido
1 unidade atualmente arrendada (180€/mês)
A disposição das unidades permite adaptação para tipologias compactas (T0/T1), ideais tanto para arrendamento como para exploração turística.
Esta adaptação poderá incluir a criação de espaços em open space, com zonas de estar e dormir bem definidas, kitchenette funcional e instalações sanitárias independentes, otimizando ao máximo a área disponível sem comprometer o conforto.
Este tipo de tipologia é especialmente procurado em mercados urbanos como Vila Nova de Gaia e Porto, tanto por:
Inquilinos de longa duração, como jovens profissionais, estudantes ou casais, que privilegiam localizações centrais e rendas mais acessíveis
Turistas, no contexto de alojamento local, que valorizam unidades práticas, modernas e bem localizadas
A criação destas unidades compactas permite assim maximizar o número de frações rentáveis, aumentar o rendimento por metro quadrado e adaptar o imóvel às tendências atuais do mercado, quer no segmento residencial, quer no turístico.
Não perca esta oportunidade de investimento em uma das zonas mais promissoras da região.
Este ativo distingue-se pela sua flexibilidade de exploração, permitindo diferentes estratégias de rentabilização consoante o perfil do investidor e a evolução do mercado.
Características do imóvel:
Prédio em propriedade total
Configuração tradicional em "ilha"
8 unidades habitacionais independentes
Projeto de reabilitação já desenvolvido
1 unidade atualmente arrendada (180€/mês)
A disposição das unidades permite adaptação para tipologias compactas (T0/T1), ideais tanto para arrendamento como para exploração turística.
Esta adaptação poderá incluir a criação de espaços em open space, com zonas de estar e dormir bem definidas, kitchenette funcional e instalações sanitárias independentes, otimizando ao máximo a área disponível sem comprometer o conforto.
Este tipo de tipologia é especialmente procurado em mercados urbanos como Vila Nova de Gaia e Porto, tanto por:
Inquilinos de longa duração, como jovens profissionais, estudantes ou casais, que privilegiam localizações centrais e rendas mais acessíveis
Turistas, no contexto de alojamento local, que valorizam unidades práticas, modernas e bem localizadas
A criação destas unidades compactas permite assim maximizar o número de frações rentáveis, aumentar o rendimento por metro quadrado e adaptar o imóvel às tendências atuais do mercado, quer no segmento residencial, quer no turístico.
Não perca esta oportunidade de investimento em uma das zonas mais promissoras da região.
Localização
Santa Marinha e São Pedro da Afurada, Vila Nova de Gaia, Porto
Informação do anúncio
ID do anúncio
1762563
Referência Externa
PD-059488
Atualizado em
26/04/2026 07:20:17
Terreno para Venda em Santa Marinha e São Pedro da Afurada