Terreno para Venda em Colmeias e Memória
115.000 €
Tipo
Terreno
Negócio
Venda
Condição
Não aplicável
Certificado Energético
Área do Terreno
1800 m²
Terreno Venda em Colmeias e Memória,Leiria
ANG1569
Descrição do Imóvel:
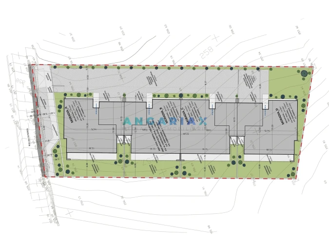
Terreno com cerca de 1.800 m², praticamente plano, com vistas desafogadas e excelente exposição solar, situado em zona residencial tranquila, em Colmeias.
O imóvel dispõe de projeto aprovado para a construção de 4 moradias térreas T3, de arquitetura moderna, todas com garagem dupla.
O projeto contempla uma área total de implantação de 696 m², área bruta de construção de 808 m², área bruta habitacional de 690 m² e área bruta complementar de 118 m².
Distribuição do Projeto:
- Moradia A – Área Bruta de Construção: 207 m² | Área de Terreno: 325 m²
- Moradia B – Área Bruta de Construção: 197 m² | Área de Terreno: 284 m²
- Moradia C – Área Bruta de Construção: 197 m² | Área de Terreno: 284 m²
- Moradia D – Área Bruta de Construção: 207 m² | Área de Terreno: 442 m²
Localização e Envolvente:
Localizado em Colmeias, este terreno beneficia de uma envolvente residencial sossegada, ideal para quem procura tranquilidade sem abdicar de acessos e conveniência.
A sua configuração praticamente plana, aliada às vistas abertas e à boa exposição solar, valoriza ainda mais o potencial do projeto, tornando-o especialmente atrativo.
Principais Características:
- Terreno com cerca de 1.800 m²
- Praticamente plano
- Projeto aprovado para 4 moradias T3 térreas
- Vistas desafogadas
- Boa exposição solar
- Inserido em zona residencial tranquila
-> Para mais celeridade na resposta ao seu contacto pedimos que indique o ID ou Referência Interna do imóvel que está a ver (ex.: ANG…).
PORQUÊ COMPRAR COM A ANGARIAX?
Basta dizer-nos o que procura e iremos ajudá-lo(a).
+ CONSULTORES ESPECIALISTAS em acompanhamento de compradores;
+ DEDICAÇÃO na procura do imóvel ideal para si;
+ FOCO no cliente;
+ ORIENTAÇÃO para as suas necessidades;
+ EXPERIÊNCIA comprovada;
+ INFORMAÇÃO de qualidade ao seu dispor;
+ ACOMPANHAMENTO em todas as fases do processo;
+ APOIO nas burocracias.
PORQUÊ VENDER COM A ANGARIAX?
Basta contactar-nos e iremos ajudá-lo(a).
+ RESULTADOS comprovados;
+ EFICÁCIA na venda dos imóveis;
+ CONHECIMENTO profundo do mercado imobiliário;
+ ORIENTAÇÃO para as suas necessidades;
+ PARTILHA com qualquer entidade portadora de licença AMI válida;
+ FOCO na prestação do melhor serviço;
+ EXPERIÊNCIA vasta e multidisciplinar;
+ INFORMAÇÃO de qualidade ao seu dispor;
+ ACOMPANHAMENTO em todas as fases do processo;
+ APOIO nas burocracias;
+ TEMPO livre de qualidade para a si a para a sua família.
CONTACTE-NOS, TEMOS O SERVIÇO CERTO PARA SI!
Vender ou comprar uma casa não tem que ser uma tarefa difícil, encontre em nós as pessoas certas e deixe o negócio acontecer.
A equipa é composta por especialistas na promoção e venda dos imóveis e especialistas no acompanhamento a compradores, todos eles formados e orientados para o serviço ao cliente e para a obtenção dos melhores resultados.
Descrição do Imóvel:
Terreno com cerca de 1.800 m², praticamente plano, com vistas desafogadas e excelente exposição solar, situado em zona residencial tranquila, em Colmeias.
O imóvel dispõe de projeto aprovado para a construção de 4 moradias térreas T3, de arquitetura moderna, todas com garagem dupla.
O projeto contempla uma área total de implantação de 696 m², área bruta de construção de 808 m², área bruta habitacional de 690 m² e área bruta complementar de 118 m².
Distribuição do Projeto:
- Moradia A – Área Bruta de Construção: 207 m² | Área de Terreno: 325 m²
- Moradia B – Área Bruta de Construção: 197 m² | Área de Terreno: 284 m²
- Moradia C – Área Bruta de Construção: 197 m² | Área de Terreno: 284 m²
- Moradia D – Área Bruta de Construção: 207 m² | Área de Terreno: 442 m²
Localização e Envolvente:
Localizado em Colmeias, este terreno beneficia de uma envolvente residencial sossegada, ideal para quem procura tranquilidade sem abdicar de acessos e conveniência.
A sua configuração praticamente plana, aliada às vistas abertas e à boa exposição solar, valoriza ainda mais o potencial do projeto, tornando-o especialmente atrativo.
Principais Características:
- Terreno com cerca de 1.800 m²
- Praticamente plano
- Projeto aprovado para 4 moradias T3 térreas
- Vistas desafogadas
- Boa exposição solar
- Inserido em zona residencial tranquila
-> Para mais celeridade na resposta ao seu contacto pedimos que indique o ID ou Referência Interna do imóvel que está a ver (ex.: ANG…).
PORQUÊ COMPRAR COM A ANGARIAX?
Basta dizer-nos o que procura e iremos ajudá-lo(a).
+ CONSULTORES ESPECIALISTAS em acompanhamento de compradores;
+ DEDICAÇÃO na procura do imóvel ideal para si;
+ FOCO no cliente;
+ ORIENTAÇÃO para as suas necessidades;
+ EXPERIÊNCIA comprovada;
+ INFORMAÇÃO de qualidade ao seu dispor;
+ ACOMPANHAMENTO em todas as fases do processo;
+ APOIO nas burocracias.
PORQUÊ VENDER COM A ANGARIAX?
Basta contactar-nos e iremos ajudá-lo(a).
+ RESULTADOS comprovados;
+ EFICÁCIA na venda dos imóveis;
+ CONHECIMENTO profundo do mercado imobiliário;
+ ORIENTAÇÃO para as suas necessidades;
+ PARTILHA com qualquer entidade portadora de licença AMI válida;
+ FOCO na prestação do melhor serviço;
+ EXPERIÊNCIA vasta e multidisciplinar;
+ INFORMAÇÃO de qualidade ao seu dispor;
+ ACOMPANHAMENTO em todas as fases do processo;
+ APOIO nas burocracias;
+ TEMPO livre de qualidade para a si a para a sua família.
CONTACTE-NOS, TEMOS O SERVIÇO CERTO PARA SI!
Vender ou comprar uma casa não tem que ser uma tarefa difícil, encontre em nós as pessoas certas e deixe o negócio acontecer.
A equipa é composta por especialistas na promoção e venda dos imóveis e especialistas no acompanhamento a compradores, todos eles formados e orientados para o serviço ao cliente e para a obtenção dos melhores resultados.
Localização
Colmeias e Memória, Leiria, Leiria
Informação do anúncio
ID do anúncio
1764309
Referência Externa
ANG1569
Atualizado em
07/04/2026 02:01:14
Terreno para Venda em Colmeias e Memória